424B4 1 e5606_424b4.htm FORM 424B4

 

 

 

Filed Pursuant to Rule 424(b)(4)
Registration No. 333-252127

 

 PROSPECTUS

 

1,500,000 Ordinary Shares

 

 

CDT Environmental Technology Investment Holdings Limited 

 

We are offering 1,500,000 ordinary shares. This is the initial public offering of ordinary shares of CDT Environmental Technology Investment Holdings Limited, a Cayman Islands holding company. The offering price of our ordinary shares in this offering is $4.00 per share. Prior to this offering, there has been no public market for our ordinary shares.

 

Our ordinary shares have been approved for listing on the Nasdaq Capital Market under the symbol “CDTG.”

 

Investing in our ordinary shares is highly speculative and involves a high degree of risk.

 

We, CDT Environmental Technology Investment Holdings Limited, are a Cayman Islands holding company, not an operating company, with all of our operations conducted by our subsidiaries in the PRC, and this structure involves unique risks to investors. These risks are discussed more fully in “Risk Factors” beginning on page 13. We are not a PRC operating company. Investors purchasing ordinary shares in this offering would be purchasing ordinary shares of CDT Environmental Technology Investment Holdings Limited, the Cayman Islands holding company, not the PRC operating companies. Investors may never hold direct equity interests in the PRC operating companies.

 

We currently conduct all of our operations in, and all of our revenue is generated in, the PRC through our subsidiaries. Accordingly, changes in economic, political, and legal environments in the PRC can significantly affect our business, including financial condition, results of operations, and business prospects. The Chinese government may exercise significant oversight and discretion over the conduct of our business and may intervene in or influence our operations at any time, which could result in a material change in our operations and/or the value of our ordinary shares.

 

Policies, regulations, rules, and the enforcement of laws of the Chinese government can have significant effects on economic conditions in the PRC and therefore, corporate profitability. Our profitability in the PRC may be adversely affected by changes in policies, regulations, rules, and the enforcement of laws by the Chinese government, which changes may be announced or implemented with little or no advance notice.

 

Recent statements by the Chinese government have indicated an intent to exert more oversight and control over offerings that are conducted overseas and/or foreign investments in China based issuers. On February 17, 2023, the China Securities Regulatory Commission, or the CSRC, announced the Circular on the Administrative Arrangements for Filing of Securities Offering and Listing By Domestic Companies, or the Circular, and released a set of new regulations which consists of the Trial Administrative Measures of Overseas Securities Offering and Listing by Domestic Companies, or the Trial Measures, and five supporting guidelines. The Trial Measures came into effect on March 31, 2023. The Trial Measures refine the regulatory system by subjecting both direct and indirect overseas offering and listing activities to the CSRC filing-based administration. Requirements for filing entities, time points and procedures are specified. A PRC domestic company that seeks to offer and list securities in overseas markets shall fulfill the filing procedure with the CSRC per the requirements of the Trial Measures. Where a PRC domestic company seeks to indirectly offer and list securities in overseas markets, the issuer shall designate a major domestic operating entity, which shall, as the domestic responsible entity, file with the CSRC. The Trial Measures also lay out requirements for the reporting of material events. Breaches of the Trial Measures, such as offering and listing securities overseas without fulfilling the filing procedures, shall bear legal liabilities, including a fine between RMB 1.0 million (approximately $150,000) and RMB 10.0 million (approximately $1.5 million), and the Trial Measures heighten the cost for offenders by enforcing accountability with administrative penalties and incorporating the compliance status of relevant market participants into the Securities Market Integrity Archives.

 

 The Trial Measures provide that if an issuer meets both of the following conditions, the overseas securities offering and listing conducted by such issuer will be determined as an indirect overseas offering and listing which shall be subject to the filing procedure set forth under the Trial Measures: (i) 50% or more of the issuer’s operating revenue, total profit, total assets or net assets as documented in its audited consolidated financial statements over the same period for the most recent accounting year is accounted for by domestic companies; and (ii) the main parts of the issuer’s business activities are conducted in the PRC, or its main places of business are located in the PRC, or the senior managers in charge of its business operation and management are mostly Chinese citizens or domiciled in the PRC. As confirmed by our PRC counsel, this offering is an indirect overseas offering and listing.

According to the Circular, since the date of effectiveness of the Trial Measures on March 31, 2023, PRC domestic enterprises falling within the scope of filing that have been listed overseas or met the following circumstances are “existing enterprises”: before the effectiveness of the Trial Measures on March 31, 2023, the application for indirect overseas issuance and listing has been approved by the overseas regulators or overseas stock exchanges (such as the registration statement has become effective on the U.S. market), it is not required to perform issuance and listing supervision procedures of the overseas regulators or overseas stock exchanges, and the overseas issuance and listing will be completed by September 30, 2023. Existing enterprises are not required to file with the CSRC immediately, and filings with the CSRC should be made as required if they involve refinancings and other filing matters. PRC domestic enterprises that have submitted valid applications for overseas issuance and listing but have not been approved by overseas regulatory authorities or overseas stock exchanges at the date of effectiveness of the Trial Measures on March 31, 2023 can reasonably arrange the timing of filing applications with the CSRC and shall complete the filing with the CSRC before the overseas issuance and listing.

We are not classified as an existing enterprise. We therefore are required to file with the CSRC and shall complete the filing with the CSRC in accordance with the Trial Measures before this offering. On August 2, 2023, we submitted our filing materials and applied for registration to the CSRC in accordance with the requirements of the Trial Measures. We have completed the filing with the CSRC and obtained the required filing notice from the CSRC regarding this offering, or the Filing Notice, on November 28, 2023, which serves as notification from the CSRC of our completion of the required filing procedures with the CSRC for this offering. The main contents of the Filing Notice are as follows: (1) we propose to issue not more than 2,300,000 ordinary shares (exclusive of the ordinary shares underlying the representative’s warrants) and list them on The Nasdaq Stock Market LLC in the United States; (2) from the date of issuance of the Filing Notice to the completion of this offering, we shall, in accordance with the relevant provisions of the overseas issuance and listing of domestic enterprises, namely the Circular, the Trial Measures, and five supporting guidelines, report any major event to the CSRC through its filing management information system; (3) we shall, within 15 working days after completion of this offering, report the issuance and listing of our shares in connection with this offering through the CSRC’s filing management information system; and (4) if we fail to complete this offering within 12 months of the issuance date of the Filing Notice and intend to continue to proceed with this offering, we shall update the filing materials with the CSRC.

 

  

As of the date of this prospectus, except for comments from the CSRC regarding the filing materials and the Filing Notice noted above, we have not received any formal inquiry, notice, warning, sanction, or objection from the CSRC with respect to this offering. Our PRC legal counsel, Beijing Dacheng Law Offices, LLP (Fuzhou), has advised us that, based on its understanding of the current PRC laws and regulations, apart from the requirement of reporting the issuance and listing of our shares in connection with this offering within 15 working days after the completion of this offering as stated in the Filing Notice and above, we and our subsidiaries are not required to obtain any other permission, consent, or approval from, or make any filing or other notice to, the PRC authorities, including the CSRC, relating to this offering.

 

Recently, the Chinese government promulgated a series of statements and actions to regulate business operations in China with limited advance notice, including cracking down on illegal activities in the securities market, enhancing supervision over China-based companies listed overseas using variable interest entity structures, adopting new measures to extend the scope of cybersecurity reviews, and expanding efforts with respect to anti-monopoly enforcement. We and our subsidiaries are not subject to cybersecurity review with the Cyberspace Administration of China, or the CAC, and are not deemed as critical information infrastructure operator or online platform operators mentioned in Cybersecurity Review Measures, which became effective on February 15, 2022, because all of our customers in China are corporate customers, rather than individuals. As a result, we do not currently have over one million users’ personal information and do not anticipate that we will be collecting over one million users’ personal information in the foreseeable future, which we understand might otherwise subject us to the Cybersecurity Review Measures.

   

Since these statements and regulatory actions are relatively new, it is highly uncertain how soon legislative or administrative regulation-making bodies will respond. New laws or regulations may be implemented, and existing laws or regulations, or the interpretation and enforcement of existing laws and regulations, may be modified, and it is unclear what potential impact these changes might have on our daily business operations, ability to accept foreign investments, or obtain and maintain listing on a U.S. exchange. Given the current regulatory environment in the PRC, we are still subject to the uncertainty of different interpretation and enforcement of the rules and regulations in the PRC adverse to us, which may be announced or implemented with little or no advance notice, and which may materially and adversely impact our results of operations and the value of our ordinary shares, may limit or completely hinder our ability to offer or continue to offer securities to investors, and/or may cause the value of such securities to significantly decline or be worthless.

   

Our securities may be prohibited from being traded on a national securities exchange or in the over-the-counter market in the United States if the Public Company Accounting Oversight Board, or the PCAOB, is unable to inspect our auditor for two consecutive years. The Holding Foreign Companies Accountable Act, or the HFCAA, was enacted on December 18, 2020. Under the HFCAA, if the SEC determines that we have filed audit reports issued by a registered public accounting firm that has not been subject to inspection by the PCAOB, for two consecutive years beginning in 2021, the SEC may prohibit our shares from being traded on a national securities exchange or in the over-the-counter market in the United States. On June 22, 2021, the U.S. Senate passed the Accelerating Holding Foreign Companies Accountable Act, which was enacted on December 29, 2022 under the Consolidated Appropriations Act, 2023, as further described below, and amended the HFCAA to require the SEC to prohibit an issuer’s securities from trading on any U.S. securities exchange or any U.S. over-the-counter market if its auditor is not subject to PCAOB inspections for two consecutive years instead of three consecutive years, meaning the number of “non-inspection” years was decreased from three to two, and thus, this reduced the time before securities would be prohibited from trading or delisted. On September 22, 2021, the PCAOB adopted a final rule implementing the HFCAA, which provides a framework for the PCAOB to use when determining, as contemplated under the HFCAA, whether the PCAOB is unable to inspect or investigate completely registered public accounting firms located in a non-U.S. jurisdiction because of a position taken by one or more authorities in any non-U.S. jurisdiction.

 

 

 

Pursuant to the HFCAA, the PCAOB issued a determination report on December 16, 2021 which found that the PCAOB was unable to inspect or investigate completely registered public accounting firms headquartered in: (1) mainland China of the People’s Republic of China; and (2) Hong Kong, a Special Administrative Region of the PRC, which determinations were vacated by the PCAOB on December 15, 2022. In addition, the PCAOB’s report identified the specific registered public accounting firms which were subject to these determinations, which determinations were vacated by the PCAOB on December 15, 2022. Our current registered public accounting firm, Wei, Wei & Co., LLP, who audited our financial statements for the fiscal years ended December 31, 2022 and 2021, is not headquartered in mainland China or Hong Kong and was not identified in the PCAOB’s report on December 16, 2021 as a firm subject to the PCAOB’s determinations, which determinations were vacated by the PCAOB on December 15, 2022. Notwithstanding the foregoing, if the PCAOB is not able to fully conduct inspections of our auditor’s work papers in China, investors may be deprived of the benefits of such inspection which could result in limitation or restriction of our access to the U.S. capital markets and trading of our securities may be prohibited under the HFCAA. In addition, on August 26, 2022, the PCAOB signed a Statement of Protocol, or SOP, Agreement with the CSRC and China’s Ministry of Finance. The SOP, together with two protocol agreements governing inspections and investigation, establishes a specific, accountable framework to make possible complete inspections and investigations by the PCAOB of audit firms based in China and Hong Kong, as required under U.S. law.

  

On December 15, 2022, the PCAOB announced that it was able to secure complete access to inspect and investigate PCAOB-registered public accounting firms headquartered in mainland China and Hong Kong completely in 2022. The PCAOB vacated its previous 2021 determinations that the PCAOB was unable to inspect or investigate completely registered public accounting firms headquartered in mainland China and Hong Kong. However, whether the PCAOB will continue to be able to satisfactorily conduct inspections of PCAOB-registered public accounting firms headquartered in mainland China and Hong Kong is subject to uncertainty and depends on a number of factors out of our, and our auditor’s, control. The PCAOB continues to demand complete access in mainland China and Hong Kong moving forward and has resumed regular inspections since March 2023. The PCAOB is continuing pursuing ongoing investigations and may initiate new investigations as needed. The PCAOB has indicated that it will act immediately to consider the need to issue new determinations with the HFCAA if needed. Notwithstanding the foregoing, in the event it is later determined that the PCAOB is unable to inspect or investigate completely our auditor, then such lack of inspection could cause our securities to be delisted from the stock exchange. The delisting of our shares, or the threat of their being delisted, may materially and adversely affect the value of your investment. Further, on December 29, 2022, the Consolidated Appropriations Act, 2023, was signed into law by the U.S. President, which, among other things, amended the HFCAA to reduce the number of consecutive non-inspection years that would trigger the trading prohibition under the HFCAA from three years to two years (originally such threshold under the HFCAA was three consecutive years), and so that any non-U.S. jurisdiction could be the reason why the PCAOB does not have complete access to inspect or investigate a company’s public accounting firm (originally the HFCAA only applied if the PCAOB’s ability to inspect or investigate was due to a position taken by an authority in the jurisdiction where the relevant public accounting firm was located). See “Risk Factors—Risks Related to Doing Business in China—The recent joint statement by the SEC and PCAOB, proposed rule changes submitted by Nasdaq, and the HFCAA all call for additional and more stringent criteria to be applied to emerging market companies upon assessing the qualification of their auditors, especially the non-U.S. auditors who are not inspected by the PCAOB. These developments could add uncertainties to our offering.”

 

Unless otherwise indicated or the context otherwise requires, all references in this prospectus to the terms “CDT Cayman,” the “Company,” “we,” “us” and “our” refer to CDT Environmental Technology Investment Holdings Limited, a Cayman Islands holding company, and its subsidiaries: CQ BVI, CDT BVI, Ultra HK, Shenzhen CDT and CDT HK, as defined and described in “Corporate History and Structure” and below.

 

CDT Environmental Technology Investment Holdings Limited, or CDT Cayman, is a holding company incorporated on November 28, 2016, under the laws of the Cayman Islands. CDT Cayman has no substantive operations other than holding all of the outstanding equity of Chao Qiang Holdings Limited, or CQ BVI, established under the laws of the British Virgin Islands on December 14, 2015, and all of the outstanding equity of CDT Environmental Technology Group Limited, or CDT BVI, established under the laws of the British Virgin Islands on June 26, 2015.

 

 

  

CQ BVI is a holding company holding all of the outstanding equity of Ultra Leader Investments Limited, or Ultra HK, which was established in Hong Kong on February 27, 2015. Ultra HK is a holding company holding 15% of the outstanding equity of Shenzhen CDT Environmental Technology Co., Ltd., or Shenzhen CDT, which was established on August 27, 2012 under the laws of the PRC.

 

CDT BVI is a holding company holding all of the outstanding equity of CDT Environmental Technology (Hong Kong) Limited, or CDT HK, which was established in Hong Kong on July 30, 2015. CDT HK is also a holding company holding 85% of the outstanding equity of Shenzhen CDT. We, through Ultra HK and CDT HK, hold 100% of the outstanding equity of Shenzhen CDT. Shenzhen CDT holds equity interests in the PRC subsidiaries noted in the charts in “Corporate History and Structure”.

  

The structure of cash flows within our organization, and a summary of the applicable regulations, is as follows:

 

1. Our equity structure is a direct holding structure. The overseas entity to be listed in the U.S., CDT Environmental Technology Investment Holdings Limited, or CDT Cayman, which was established in the Cayman Islands, directly controls all of the outstanding share capital of Shenzhen CDT Environmental Technology Co., Ltd., or Shenzhen CDT, which was established in the PRC, and other operating subsidiaries in the PRC.

 

CDT Cayman holds all of the outstanding equity of Chao Qiang Holdings Limited, or CQ BVI, which was established in the British Virgin Islands, and CDT Environmental Technology Group Limited, or CDT BVI, which was established in the British Virgin Islands.

 

CQ BVI holds all of the outstanding equity of Ultra Leader Investments Limited, or Ultra HK, which was established in Hong Kong. CDT BVI holds all of the outstanding equity of CDT Environmental Technology (Hong Kong) Limited, or CDT HK, which was established in Hong Kong.

 

Ultra HK holds 15% of the outstanding equity of Shenzhen CDT. CDT HK holds 85% of the outstanding equity of Shenzhen CDT.

 

CDT Cayman, through Ultra HK and CDT HK, holds 100% of the outstanding equity of Shenzhen CDT. See “Corporate History and Structure” for additional details.

 

2. Within our direct holding structure, the cross-border transfer of funds within our corporate group is legal and compliant with the laws and regulations of the PRC. After foreign investors’ funds enter CDT Cayman at the close of this offering, the funds can be directly transferred to CDT BVI, then transferred to CDT HK, and then to subordinate PRC entities through Shenzhen CDT, subject to applicable PRC regulations, as noted below. The net proceeds from this offering must be remitted to China before we will be able to use the funds to grow our business in China.

 

Any funds we transfer to our PRC subsidiaries, including those received from this offering, must be transferred either as a shareholder loan or as an increase in registered capital and are subject to approval by or registration with relevant governmental authorities in China, which may take several months. The net proceeds from this offering must be remitted to China before we will be able to use the funds to grow the business in China. The procedure to remit funds may take several months after completion of this offering, and we will be unable to use the offering proceeds in China until remittance is completed. An increase in registered capital procedure requires prior approval from each of the respective local counterparts of China’s Ministry of Commerce, or MOFCOM, the State Administration for Market Regulation, or SAMR, and the State Administration of Foreign Exchange, or SAFE. In addition, (a) any foreign loan procured by our PRC subsidiaries is required to be registered with the SAFE or its local branches, and (b) our PRC subsidiaries may not procure loans which exceed the statutory amount as approved by the MOFCOM or its local branches. Further, any medium-or long- term loan to be provided by us to our PRC subsidiaries must be approved by the National Development and Reform Commission, or NDRC, and the SAFE or its local branches.

  

Further, regulations on the control of currency conversions, including SAFE Circular 19 may significantly limit our ability to use Renminbi converted from the net proceeds of this offering to fund the establishment of new entities in China by our subsidiaries, to invest in or acquire any other PRC companies through our PRC subsidiaries, or to establish consolidated variable interest entities in the PRC, which may adversely affect our business, financial condition and results of operations. See “Risk Factors—Risks Related to Doing Business in China—PRC regulation of loans to and direct investment in PRC entities by offshore holding companies and governmental control of currency conversion may delay us from using the proceeds of this offering to make loans or additional capital contributions to our PRC subsidiaries, which could materially and adversely affect our liquidity and our ability to fund and expand our business.”

 

 

  

Further, SAFE Circular 37 requires PRC residents (including PRC individuals and PRC corporate entities) to register with SAFE or its local branches in connection with their direct or indirect offshore investment activities. When a registered overseas special purpose company changes basic information such as its Chinese resident individual shareholders, name or operating terms, or changes important matters such as capital increase, capital reduction, equity transfer or replacement, merger or division of Chinese resident individual shareholders, it shall promptly go through the registration formalities for changes in foreign exchange for overseas investment with the SAFE. According to the provisions of SAFE Circular 37, except for Yunwu Li, no other relevant personnel of this listing are required to register foreign exchange or foreign exchange changes. As of the date of this prospectus, to our knowledge, Yunwu Li, our chief executive officer and chairman of our board of directors and chairman of the board of directors and general manager of Shenzhen CDT, had completed the foreign exchange registration, but had not completed the change registration and was in the process of registration. The completion of his change registration will affect the procedure of transferring any dividends he obtains from CDT Cayman to China. Yunwu Li will not be able to process the remittance of profits and dividends before completing the registration of foreign exchange changes in overseas investments. However, the net proceeds from this offering which must be remitted to China will not be affected since Shenzhen CDT previously completed the foreign direct investment foreign exchange registration in 2016. See “Risk Factors—Risks Related to Doing Business in China—PRC regulations relating to the establishment of offshore special purpose companies by PRC residents may subject our PRC resident beneficial owners or our PRC subsidiaries to liability or penalties, limit our ability to inject capital into our PRC subsidiaries, limit our PRC subsidiaries’ ability to increase their registered capital or distribute profits to us, or may otherwise adversely affect us.”

  

If we intend to distribute dividends, we will transfer the dividends to CDT HK in accordance with the laws and regulations of the PRC, then CDT HK will transfer the dividends to CDT BVI, and then to CDT Cayman, and the dividends will be distributed from CDT Cayman to all shareholders respectively in proportion to the shares they hold, regardless of whether the shareholders are U.S. investors or investors in other countries or regions.

 

3. As of the date of this prospectus, no cash and other asset transfers have occurred among us, CDT Cayman, and our subsidiaries; no dividends or distributions by any subsidiary have been made to date to us, CDT Cayman, or to investors; and no transfers, dividends or distributions have been made by us, CDT Cayman, to our subsidiaries or to U.S. investors to date. For the foreseeable future, we intend to retain all available funds and any future earnings to fund the development and expansion of our business. As a result, we do not expect to pay any cash dividends. To date, we, CDT Cayman and our subsidiaries, have been funded through shareholder capital contributions, bank loans, third party loans and related party loans. See the unaudited condensed consolidated statements of change in shareholders’ equity on page F-4 and Notes 10 and 11 on pages F-21 through F-23 of the notes to the unaudited condensed consolidated financial statements included elsewhere in this prospectus. As of June 30, 2023, these consisted of shareholder capital contributions of $7.5 million, which are reflected as par value and additional paid-in capital in the unaudited condensed consolidated financial statements included elsewhere in this prospectus (see the unaudited condensed consolidated statements of change in shareholders’ equity on page F-4 of the unaudited condensed consolidated financial statements included elsewhere in this prospectus), bank loans of $2.3 million (see pages F-22 and F-23 of Note 11 of the notes to the unaudited condensed consolidated financial statements included elsewhere in this prospectus), third party loans of $0.3 million (see page F-23 of Note 11 of the notes to the unaudited condensed consolidated financial statements included elsewhere in this prospectus) and related party loans of $4.3 million (see page F-22 of Note 10 of the notes to the unaudited condensed consolidated financial statements included elsewhere in this prospectus). See the unaudited condensed consolidated statements of change in shareholders’ equity on page F-4 and Notes 10 and 11 on pages F-21 through F-23 of the notes to the unaudited condensed consolidated financial statements included elsewhere in this prospectus. As of the date of this prospectus, none of CDT Cayman or its subsidiaries has written cash management policies or procedures in place that dictate how funds are transferred. Rather, the funds can be transferred in accordance with the applicable PRC laws and regulations.

  

4. Our PRC subsidiaries’ ability to distribute dividends is based upon their distributable earnings. Current PRC regulations permit such PRC subsidiaries to pay dividends to their respective shareholders only out of their accumulated profits, if any, determined in accordance with PRC accounting standards and regulations. In addition, each of our PRC subsidiaries is required to set aside at least 10% of its after-tax profits each year, if any, to fund a statutory reserve until such reserve reaches 50% of each of their respective registered capital. These reserves are not distributable as cash dividends.

 

To address persistent capital outflows and the RMB’s depreciation against the U.S. dollar in the fourth quarter of 2016, the People’s Bank of China and the SAFE have implemented a series of capital control measures in the subsequent months, including stricter vetting procedures for China-based companies to remit foreign currency for overseas acquisitions, dividend payments and shareholder loan repayments. The PRC government may continue to strengthen its capital controls and our PRC subsidiaries’ dividends and other distributions may be subject to tightened scrutiny in the future. The PRC government also imposes controls on the conversion of RMB into foreign currencies and the remittance of currencies out of the PRC. Therefore, we may experience difficulties in completing the administrative procedures necessary to obtain and remit foreign currency for the payment of dividends from the profits of any of our PRC subsidiaries, if any. Furthermore, if any of our subsidiaries in the PRC incur debt on their own in the future, the instruments governing the debt may restrict their ability to pay dividends or make other payments.

 

In addition, the Enterprise Income Tax Law and its implementation rules provide that a withholding tax at a rate of 10% would be applicable to dividends paid by mainland China companies to non-PRC-resident enterprises unless reduced under treaties or arrangements between the PRC central government and the governments of other countries or regions where the non-PRC resident enterprises are tax resident. Pursuant to the tax agreement between mainland China and the Hong Kong Special Administrative Region, the withholding tax rate in respect to the payment of dividends by a mainland China enterprise to a Hong Kong enterprise may be reduced to 5% from a standard rate of 10%. However, if the relevant tax authorities determine that our transactions or arrangements are for the primary purpose of enjoying a favorable tax treatment, the relevant tax authorities may decide that a tax rate that is more than the favorable withholding tax rate of 5% will be applicable to dividends received by our Hong Kong subsidiary from our mainland China subsidiaries in the future. Accordingly, there is no assurance that the reduced 5% withholding rate will apply to dividends received by our Hong Kong subsidiary from our mainland China subsidiaries. A higher withholding tax rate will reduce the amount of dividends we may receive from our mainland China subsidiaries.

 

Before buying any shares, you should carefully read the discussion of material risks of investing in our ordinary shares in “Risk Factors” beginning on page 13 of this prospectus.

 

We are an “emerging growth company” as defined under the federal securities laws and, as such, will be subject to reduced public company reporting requirements. See “Prospectus Summary—Implications of Being an Emerging Growth Company and a Foreign Private Issuer” for additional information.

 

 
 

 

Neither the Securities and Exchange Commission nor any other regulatory body has approved or disapproved of these securities or passed upon the accuracy or adequacy of this prospectus. Any representation to the contrary is a criminal offense.

 

   PER SHARE  TOTAL
Initial public offering price  $4.00   $6,000,000 
Underwriting discounts(1)  $0.32   $480,000 
Proceeds, before expenses, to us  $3.68   $5,520,000 

  

(1) We have agreed to issue, on the closing date of this offering, warrants, or the representative’s warrants, to the representative of the underwriters, WestPark Capital, Inc., in an amount equal to 10% of the aggregate number of ordinary shares sold by us in this offering. For a description of other terms of the representative’s warrants and a description of the other compensation to be received by the underwriters, see “Underwriting” beginning on page 105.

 

We expect our total cash expenses for this offering (including cash expenses payable to our underwriters for their out-of-pocket expenses) to be approximately $0.64 million, exclusive of the above discounts. In addition, we will pay additional items of value in connection with this offering that are viewed by the Financial Industry Regulatory Authority, or FINRA, as underwriting compensation. These payments will further reduce proceeds available to us before expenses. See “Underwriting.”

 

This offering is being conducted on a firm commitment basis. The underwriters are obligated to take and pay for all of the shares if any such shares are taken. We have granted the underwriters an option for a period of 45 days after the closing of this offering to purchase up to 15% of the total number of our ordinary shares to be offered by us pursuant to this offering (excluding shares subject to this option), solely for the purpose of covering over-allotments, at the initial public offering price less the underwriting discounts. If the underwriters exercise the option in full, the total underwriting discounts payable will be $552,000 based on the initial public offering price of $4.00 per ordinary share, and the total gross proceeds to us, before underwriting discounts and expenses, will be $6,900,000. If we complete this offering, net proceeds will be delivered to us on the closing date. We will not be able to use such proceeds in China, however, until we complete capital contribution procedures which require prior approval from each of the respective local counterparts of China’s MOFCOM, the SAMR, and the SAFE, or shareholder loan procedures which require registration with the SAFE or its local branches. See also the section titled “Use of Proceeds” beginning on page 40. 

 

The underwriters expect to deliver the ordinary shares against payment as set forth under “Underwriting”, on or about April 22, 2024.

  

WESTPARK CAPITAL

 

 

 

The date of this prospectus is April 17, 2024.

   

 

 

TABLE OF CONTENTS

 

  Page
Prospectus Summary 1
Risk Factors 13
Special Note Regarding Forward-Looking Statements 38
Industry and Market Data 39
Use of Proceeds 40
Dividend Policy 41
Capitalization 42
Dilution 43
Exchange Rate Information 44
Corporate History and Structure 45
Management’s Discussion and Analysis of Financial Condition and Results of Operations 49
Business 66
Management 82
Related Party Transactions 87
Principal Shareholders 90
Description of Share Capital and Governing Documents 91
Shares Eligible for Future Sale 100
Material Income Tax Considerations 101
Underwriting 105
Expenses Related to this Offering 110
Legal Matters 111
Experts 111
Change in Registrant’s Certifying Accountant

111

Enforcement of Liabilities 112
Where You Can Find Additional Information 113
Index to Consolidated Financial Statements F-1

 

We are responsible for the information contained in this prospectus and any free writing prospectus we prepare or authorize. We have not, and the underwriters have not, authorized anyone to provide you with different information, and we and the underwriters take no responsibility for any other information others may give you. We are not, and the underwriters are not, making an offer to sell our ordinary shares in any jurisdiction where the offer or sale is not permitted. You should not assume that the information contained in this prospectus is accurate as of any date other than the date on the front cover of this prospectus, regardless of the time of delivery of this prospectus or the sale of any ordinary shares.

 

For investors outside the United States: Neither we nor the underwriters have done anything that would permit this offering or possession or distribution of this prospectus in any jurisdiction, other than the United States, where action for that purpose is required. Persons outside the United States who come into possession of this prospectus must inform themselves about, and observe any restrictions relating to, the offering of the ordinary shares and the distribution of this prospectus outside the United States.

 

We are incorporated under the laws of the Cayman Islands as an exempted company with limited liability and a majority of our outstanding securities are owned by non-U.S. residents. Under the rules of the U.S. Securities and Exchange Commission, or the SEC, we currently qualify for treatment as a “foreign private issuer.” As a foreign private issuer, we will not be required to file periodic reports and financial statements with the SEC as frequently or as promptly as domestic registrants whose securities are registered under the Securities Exchange Act of 1934, as amended, or the Exchange Act.

 

Until and including May 12, 2024 (25 days after the date of this prospectus), all dealers that buy, sell or trade our ordinary shares, whether or not participating in this offering, may be required to deliver a prospectus. This delivery requirement is in addition to the obligation of dealers to deliver a prospectus when acting as underwriters and with respect to their unsold allotments or subscriptions.

 

i

 

 

CONVENTIONS THAT APPLY TO THIS PROSPECTUS

 

Unless otherwise indicated or the context otherwise requires, all references in this prospectus to:

 

“CDT Cayman,” the “Company,” “we,” “us” and “our” refer to CDT Environmental Technology Investment Holdings Limited, a Cayman Islands holding company, and its subsidiaries: CQ BVI, CDT BVI, Ultra HK, Shenzhen CDT and CDT HK. See “Corporate History and Structure” for additional details.
   
“CQ BVI” refers to Chao Qiang Holdings Limited, a holding company established under the laws of the British Virgin Islands and a wholly-owned subsidiary of CDT Cayman.
   
“CDT BVI” refers to CDT Environmental Technology Group Limited, a holding company established under the laws of the British Virgin Islands and a wholly-owned subsidiary of CDT Cayman.
   
“Ultra HK” refers to Ultra Leader Investments Limited, a holding company established under the laws of Hong Kong and a wholly-owned subsidiary of CQ BVI.
   
“Shenzhen CDT” refers to Shenzhen CDT Environmental Technology Co., Ltd., a company established under the laws of the PRC and a 15% subsidiary of Ultra HK and 85% subsidiary of CDT HK.

  

“PRC” or “China” refers to the People’s Republic of China, excluding, for the purpose of this prospectus, Taiwan. “RMB” or “Renminbi” refers to the legal currency of China. “HKD” or “HK$” refers to the legal currency of Hong Kong. “$” or “U.S. dollars” refers to the legal currency of the United States.

 

We have made rounding adjustments to some of the figures included in this prospectus. Accordingly, numerical figures shown as totals in some tables may not be an arithmetic aggregation of the figures that preceded them.

 

Unless the context indicates otherwise, all information in this prospectus assumes no exercise by the underwriters of their over-allotment option and no exercise of the representative’s warrants.

 

Our functional currency is RMB. Our consolidated financial statements are presented in U.S. dollars. We use U.S. dollars as the reporting currency in our consolidated financial statements and in this prospectus. Assets and liabilities are translated into U.S. dollars at the unified exchange rates as quoted by the People’s Bank of China as of the balance sheet dates, the statements of income are translated using the average rate of exchange in effect during the reporting periods, and the equity accounts are translated at historical exchange rates. Translation adjustments resulting from this process are included in accumulated other comprehensive income (loss). Transaction gains and losses that arise from exchange rate fluctuations on transactions denominated in a currency other than the functional currency are included in the results of operations as incurred. Translation adjustments included in accumulated other comprehensive income (loss) amounted to $2,505,799, $1,490,621 and $559,752 as of June 30, 2023, December 31, 2022 and December 31, 2021, respectively. The balance sheet amounts, with the exception of shareholders’ equity at June 30, 2023, December 31, 2022 and December 31, 2021 were translated at 7.23 RMB, 6.96 RMB RMB and 6.38 RMB to $1.00, respectively, and at 7.84 HKD, 7.80 HKD and 7.80 HKD to $1.00, respectively. The shareholders’ equity accounts are stated at their historical exchange rates. The average translation rates applied to the statements of income accounts for the six months ended June 30, 2023 and 2022 were 6.93 RMB and 6.48 RMB to $1.00, respectively, and were 7.84 HKD and 7.83 HKD to $1.00, respectively. The average translation rates applied to the statements of income accounts for the years ended December 31, 2022 and 2021 were 6.73 RMB and 6.45 RMB to $1.00, respectively, and were 7.83 HKD and 7.77 HKD to $1.00, respectively. Cash flows are also translated at average translation rates for the periods, therefore, amounts reported on the statements of cash flows will not necessarily agree with changes in the corresponding balances on the consolidated balance sheets.

 

With respect to amounts not recorded in our consolidated financial statements included elsewhere in this prospectus, unless otherwise stated, all translations from RMB to U.S. dollars were made at RMB 7.2513 to $1.00, the noon buying rate on June 30, 2023, as set forth in the H.10 statistical release of the Board of Governors of the Federal Reserve System. We make no representation that the RMB or U.S. dollar amounts referred to in this prospectus could have been or could be converted into U.S. dollars or RMB, as the case may be, at any particular rate or at all.

 

In October 2019, our shareholders resolved to create an additional 50,000,000 of authorized ordinary shares with a par value of $0.001, or the Increase in Share Capital. Following the Increase in Share Capital, we issued 23,000,000 ordinary shares with a par value of $0.001, or the USD Shares Issued, to our existing shareholders as fully paid shares at par value. Following the USD Shares Issued, we repurchased and cancelled 900,000 of the then outstanding ordinary shares with a par value of HK$0.01 then issued and outstanding from our existing shareholders and cancelled 38,000,000 of the authorized ordinary shares with a par value of HK$ 0.01.

 

We considered the above transactions to be a 25.56-for-1 share split of our ordinary shares and deemed the cancellation of 900,000 original ordinary shares with par value of HK$ 0.01 and the new issuance of 23,000,000 ordinary shares with par value of $0.001 to our existing shareholders to be part of our recapitalization prior to completion of this offering. We believe it is appropriate to reflect the above transactions on a retroactive basis similar to a stock split or dividend pursuant to the Financial Accounting Standards Board, or FASB, Accounting Standards Codification, or ASC, Topic 260. All share and per share amounts used herein and in the consolidated financial statements included elsewhere herein have been retroactively restated to reflect the share split, unless otherwise indicated. In December 2020, our shareholders resolved to divide 50,000,000 of our authorized ordinary shares with a par value of $0.001, or the Decrease in Share Capital, into 20,000,000 of our authorized ordinary shares with a par value of $0.0025. Following the Decrease in Share Capital, our then existing 23,000,000 ordinary shares with a par value of $0.001 were divided into a total of 9,200,000 ordinary shares with a par value of $0.0025. We considered the above transactions to be a 1-for-2.5 reverse share split of our ordinary shares. We believe it is appropriate to reflect the above transactions on a retroactive basis similar to a stock split or dividend pursuant to FASB ASC 260. All share and per share amounts used herein and in the consolidated financial statements have been retroactively adjusted to reflect the share split, unless otherwise indicated.

 As a result, as of the date of this prospectus, our authorized ordinary share capital is 20,000,000 ordinary shares with a par value of $0.0025 each and there are 9,200,000 issued and outstanding ordinary shares with a par value of $0.0025 each.

  

ii

 

 

PROSPECTUS SUMMARY

 

 The following summary highlights information contained elsewhere in this prospectus and does not contain all of the information you should consider before investing in our ordinary shares. You should read the entire prospectus carefully, including “Risk Factors,” “Management’s Discussion and Analysis of Financial Condition and Results of Operations,” and our consolidated financial statements and the related notes thereto, in each case included in this prospectus. You should carefully consider, among other things, the matters discussed in the section of this prospectus titled “Business” before making an investment decision.

 

Overview

 

We, through our subsidiaries, are a waste treatment company that generates revenue through design, development, manufacture, sales, installation, operation and maintenance of sewage treatment systems and by providing sewage treatment services. We, through our subsidiaries, primarily engage in two business lines: sewage treatment systems and sewage treatment services in both urban and rural areas. Sewage treatment systems are sometimes also referred to herein as rural sewage treatment, and sewage treatment services are sometimes also referred to herein as septic tank treatment.

 

Our Business

 

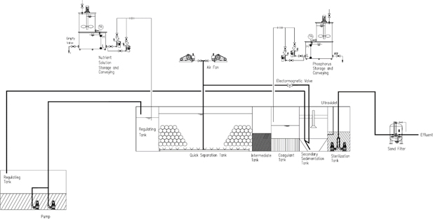
For sewage treatment systems, we sell complete sewage treatment systems, construct rural sewage treatment plants, install the systems, and provide on-going operation and maintenance services for such systems and plants in China for municipalities and enterprise clients. We provide decentralized rural sewage treatment services with our integrated and proprietary system using our advanced quick separation technology. Our quick separation technology uses a biochemical process for economically and sufficiently treating rural sewage. In addition, our integrated equipment generally has a lifespan of over 10 years without replacement of the core components. Due to our quick separation technology and our technological expertise and experience, our integrated rural sewage treatment system produces a high quality of outflowing water, with high degrees of automation, efficient construction and start up, and low operational costs. In addition, our equipment is typically able to process abrupt increases of sewage inflows and high contamination. Our integrated equipment consists of a compact structure and is buried underground in order to minimize changes to the surrounding environment.

 

For sewage treatment services, we offer on site, or in-situ, septic tank treatment services with our proprietary systems in the urban and rural areas of China for municipalities and residential and business property management companies. We have developed both mobile and fixed systems to meet the various needs of our customers. Our mobile system uses automated equipment assembled on a vehicle in order to allow for transport between dispersed septic tanks in both urban and rural areas. Our mobile system treats the waste at each site and extracts such waste from the septic tank through a narrow opening, which reduces odor and noise as well as spillage and safety issues that occur during traditional methods of pumping and transporting septic tank sewage. Our mobile system treatment processes include septic tank waste extraction, separation of solid waste from liquid sewage, dehydration of separated waste, residue filtration, and solid waste compacting. Our fixed system is an integrated waste treatment system that uses quick separation technology to service septic tank sewage collection stations for public toilets in urban areas and to service public toilets in the service stations along highways. It is a compact, stand-alone system that is able to decompose solid waste and treat sewage to meet the guidelines established by the Chinese government in Wastewater Quality Standards for Discharge to Municipal Sewers (GB/T 31962-2015).

 

We have established sales and marketing networks in many cities across several provinces in China with twelve majority-owned subsidiaries and two branch offices in China. For rural sewage treatment, we procure contracts from city or provincial level state-owned construction companies that are responsible for constructing rural sewage infrastructures for local governments to sell, install and operate decentralized rural sewage treatment systems. For septic tank treatment, we collaborate with the strategic partners at our subsidiaries in China to procure contracts for the treatment and servicing of septic tanks from our customers, particularly local governments and residential and business property management companies.

 

We intend to expand our sales and marketing efforts for our rural sewage treatment systems to further penetrate the market in Fujian and Zhejiang provinces. We are in the process of negotiating partnerships with state-owned companies at the central government level to expand the geographic market for rural sewage treatment. We also intend to promote our newly developed septic tank treatment systems, particularly in the septic tank sewage collection stations in the cities and public toilets in service stations. We have designed and completed internal testing of a fixed septic tank treatment system for septic tank sewage collection stations in cities, and we are actively pursuing projects with the Beijing government to treat the sewage from approximately 1,000 public toilets that currently exist in the Shunyi, Chaoyang and Dongcheng Districts. We also intend to vertically expand into organic fertilizer production using dehydrated solid waste from our mobile septic tank treatment system. 

 

Industry Background

 

Rural Sewage Treatment

 

According to the Prospective Industry Research Institute as of October 2020, in China, the total revenue generated from decentralized rural sewage treatment services and equipment in China reached approximately 92.5 billion RMB (approximately $13.8 billion) in 2019 and increased at a compound annual growth rate of approximately 40.3% from 2015 to 2019. In most rural areas, sewage is discharged without treatment, resulting in water pollution. According to the Ministry of Environmental Protection of China and the Ministry of Finance of China as of December 2016, in 2016, only approximately 22% of the incorporated villages in China treated rural sewage water. In addition, the Ministry of Ecology and Environment of China held a press conference on April 22, 2022, and the spokesperson stated that the data of the Ministry of Housing and Urban-Rural Development of China showed that as of 2021, only 28% of rural sewage in China was treated before discharge, and the percentage was up by only 6% during the five years between 2016 and 2022, which we believe indicates a large market in rural sewage treatment. According to Forward the Economist as of January 2018, it is estimated that the market size of rural sewage treatment in China will reach approximately RMB 200 billion (approximately $29.9 billion) in 2030.

 

Due to China’s recent focus on the continuous improvement of living standards through more stringent environmental laws and regulations for clean water, we believe compliance with such laws and regulations will become increasingly difficult for companies to achieve. Therefore, we believe new technology and applications in sewage treatment will be in greater demand, which we expect will drive demand for our services and products.

 

Septic Tank Treatment

 

The septic tank treatment industry has been subject to an increased number of regulations and policies of environmental protection in recent years. Traditional septic tank treatments pump a mixture of solid waste and sewage into a tank truck and transport it to a treatment center for processing. However, the cost of the traditional methodology continues to increase due to a lack of capacity of the existing treatment centers and the distance of transportation.

 

The industry is highly segmented with several participants being small and regional companies or contracted individuals. With the increasing awareness of issues in the septic tank treatment industry, including the illegal dumping of waste, municipal environmental protection departments are increasing their oversight and scrutiny of participants within this industry.

 

1

 

 

Currently, the sewage from septic tanks in urban areas is discharged into the sewer systems after simple treatment methods. The Chinese government implemented the new Wastewater Quality Standards for Discharge to Municipal Sewers (GB/T 31962-2015) in 2016 to enhance the treatment of septic tank sewage. However, we believe that in most regions, the sewage discharged from septic tanks to municipal sewers does not meet the standards promulgated by the Chinese government. We believe that the market for our systems to effectively treat the sewage from septic tanks in compliance with such government standards is large and growing.

 

Competitive Strengths

 

We believe the following competitive strengths differentiate us from our competitors and continue to contribute to our success in the waste treatment market:

 

Product Advantages. Our integrated rural sewage treatment system adopts quick separation technology, which we believe to be an advanced and cost-effective solution for decentralized sewage treatment at a small scale. Our two septic tank treatment systems, mobile and fixed, both have the capability to treat the septic tanks on site with reduced odor and noise. Our proprietary design and technology is adaptable to the needs of specific customers and produces treated water that we believe meets applicable government standards.

 

 

Extensive Operation and Marketing Network. With twelve subsidiaries in nine provinces in China, including majority-owned subsidiaries with strategic local partners and two branch offices, we are positioned near current and potential customers across China, which provides us with increased access to such customers and reduces our transportation and travel costs for equipment and services.

 

Experienced Management Team and Personnel with a Demonstrated Track Record. Our management team, led by Yunwu Li, has demonstrated a track record of managing costs, adapting to changing market conditions, and developing new products. In addition, our workforce is highly skilled with specialized training.

 

  Numerous Completed and Successful Projects. We believe we have pioneered the emerging rural sewage treatment and septic tank treatment industries in China. We have completed numerous projects in Fujian, Jiangxi, Liaoning, and Zhejiang provinces in China which we believe differentiates us from existing competitors that are small-scale and regional.

 

  Recognized Brand. We believe we have established a distinguished reputation and close relationships among the state-owned companies, local governments and residential and business property management companies from which we acquire new projects.

 

Full range of sewage treatment solutions. We are able to install complete sewage treatment solutions for customers, which allows us to target end users. Our ability to provide customers with complete solutions, including maintenance support, installation, and technical advice, for their sewage treatment needs allows us to capture various types of users in the sewage treatment market.

 

Our Strategy

 

We provide sewage treatment services and systems specializing in rural sewage treatment and septic tank treatment in both urban and rural areas. Our goal is to become one of the premier sewage treatment solution companies in China. We aim to achieve this goal by implementing the following strategies:

 

Increasing our market share in the rural sewage treatment industry by leveraging our proprietary technology and successful installation of our sewage treatment systems and plants.

 

Establishing partnerships with state-owned companies at the central government level for rural sewage treatment.

 

Providing septic tank treatment services to septic tank sewage collection stations.

 

Promoting our new fixed septic tank treatment system for public toilets in service stations.

 

Partnering with third parties to begin organic fertilizer production.

 

Corporate History and Structure

 

CDT Environmental Technology Investment Holdings Limited, or CDT Cayman, is a holding company incorporated on November 28, 2016, under the laws of the Cayman Islands. CDT Cayman has no substantive operations other than holding all of the outstanding equity of Chao Qiang Holdings Limited, or CQ BVI, established under the laws of the British Virgin Islands on December 14, 2015, and all of the outstanding equity of CDT Environmental Technology Group Limited, or CDT BVI, established under the laws of the British Virgin Islands on June 26, 2015.

 

CQ BVI is a holding company holding all of the outstanding equity of Ultra Leader Investments Limited, or Ultra HK, which was established in Hong Kong on February 27, 2015. Ultra HK is a holding company holding 15% of the outstanding equity of Shenzhen CDT Environmental Technology Co., Ltd., or Shenzhen CDT, which was established on August 27, 2012 under the laws of the PRC.

 

CDT BVI is a holding company holding all of the outstanding equity of CDT Environmental Technology (Hong Kong) Limited, or CDT HK, which was established in Hong Kong on July 30, 2015. CDT HK is also a holding company holding 85% of the outstanding equity of Shenzhen CDT. We, through Ultra HK and CDT HK, hold 100% of the outstanding equity of Shenzhen CDT. Shenzhen CDT holds equity interests in the PRC subsidiaries noted in the charts below.

 

We, through our subsidiaries, including Shenzhen CDT, engage in developing, producing, selling and installing sewage treatment systems and providing sewage treatment services.

 

In October 2019, our shareholders resolved to create an additional 50,000,000 of authorized ordinary shares with a par value of $0.001, or the Increase in Share Capital. Following the Increase in Share Capital, we issued 23,000,000 ordinary shares with a par value of $0.001, or the USD Shares Issued, to our existing shareholders as fully paid shares at par value. Following the USD Shares

 

2

 

 

Issued, we repurchased and cancelled 900,000 of the then outstanding ordinary shares with a par value of HK$0.01 then issued and outstanding from our existing shareholders and cancelled 38,000,000 of the authorized ordinary shares with a par value of HK$ 0.01.

 

We considered the above transactions to be a 25.56-for-1 share split of our ordinary shares and deemed the cancellation of 900,000 original ordinary shares with par value of HK$ 0.01 and the new issuance of 23,000,000 ordinary shares with par value of $0.001 to our existing shareholders to be part of our recapitalization prior to completion of this offering. We believe it is appropriate to reflect the above transactions on a retroactive basis similar to a stock split or dividend pursuant to FASB ASC 260. All share and per share amounts used herein and in the consolidated financial statements included elsewhere herein have been retroactively restated to reflect the share split, unless otherwise indicated. In December 2020, our shareholders resolved to divide 50,000,000 of our authorized ordinary shares with a par value of $0.001, or the Decrease in Share Capital, into 20,000,000 of our authorized ordinary shares with a par value of $0.0025. Following the Decrease in Share Capital, our then existing 23,000,000 ordinary shares with a par value of $0.001 were divided into a total of 9,200,000 ordinary shares with a par value of $0.0025. We considered the above transactions to be a 1-for-2.5 reverse share split of our ordinary shares. We believe it is appropriate to reflect the above transactions on a retroactive basis similar to a stock split or dividend pursuant to FASB ASC 260. All share and per share amounts used herein and in the consolidated financial statements have been retroactively adjusted to reflect the share split, unless otherwise indicated.

 

As a result, as of the date of this prospectus, our authorized ordinary share capital is 20,000,000 ordinary shares with a par value of $0.0025 each and there are 9,200,000 issued and outstanding ordinary shares with a par value of $0.0025 each.

 

The charts below summarize our corporate legal structure and identify our subsidiaries as of the date of this prospectus and upon completion of this offering:

 

  

Name   Background   Ownership
Chao Qiang Holdings Limited  

●       A British Virgin Islands company

●       Incorporated on December 14, 2015

●       A holding company

  100% owned by CDT Environmental Technology Investment Holdings Limited
CDT Environmental Technology Group Limited  

●       A British Virgin Islands company

●       Incorporated on June 26, 2015

●       A holding company

  100% owned by CDT Environmental Technology Investment Holdings Limited
Ultra Leader Investments Limited  

●       A Hong Kong company

●       Incorporated on February 27, 2015

●       A holding company

  100% owned by Chao
Qiang Holdings Limited
CDT Environmental Technology (Hong Kong) Limited  

●       A Hong Kong company

●       Incorporated on July 30, 2015

●       A holding company

  100% owned by CDT Environmental Technology Group Limited
Shenzhen CDT Environmental Technology Co., Ltd.  

●       A PRC limited liability company

●       Incorporated on August 27, 2012

●       Registered capital of RMB 60,000,000 (approximately $9.0 million)

●       Developing, producing, selling and installing sewage treatment systems and providing sewage treatment services

 

100% collectively owned by Ultra Leader Investments Limited (15%) and

CDT Environmental Technology (Hong Kong) Limited (85%)

Beijing CDT Environmental Technology Co., Ltd.  

●       A PRC limited liability company

●       Incorporated on April 25, 2016

●       Registered capital of RMB 20,000,000 (approximately $3.0 million)

●       Providing sewage treatment services

  100% owned by Shenzhen CDT Environmental Technology Co., Ltd.

 

3

 

 

Fuzhou LSY Environmental Technology Co., Ltd.  

●       A PRC limited liability company

●       Incorporated on March 13, 2015

●       Registered capital of RMB 5,000,000 (approximately $0.8 million )

●       Providing sewage treatment services

 

51% owned by Shenzhen CDT Environmental Technology Co., Ltd.

 

Tianjin CDT Environmental Technology Co., Ltd.  

●       A PRC limited liability company

●       Incorporated on October 22, 2014

●       Registered capital of RMB 10,000,000 (approximately $1.5 million)

●       Providing sewage treatment services

 

100% owned by Shenzhen CDT Environmental Technology Co., Ltd.

 

Chengde CDT Environmental Technology Co., Ltd.  

●       A PRC limited liability company

●       Incorporated on March 26, 2015

●       Registered capital of RMB 5,000,000 (approximately $0.8 million)

●       Providing sewage treatment services

 

51% owned by Shenzhen CDT Environmental Technology Co., Ltd.

 

Beijing Innovation CDT Environmental Technology Co., Ltd.  

●       A PRC limited liability company

●       Incorporated on September 7, 2016

●       Registered capital of RMB 5,000,000 (approximately $0.8 million)

●       Providing sewage treatment services

 

51% owned by Shenzhen CDT Environmental Technology Co., Ltd.

 

Baoding CDT Environmental Technology Co., Ltd.  

●       A PRC limited liability company

●       Incorporated on October 21, 2015

●       Registered capital of RMB 5,000,000 (approximately $0.8 million)

●       Providing sewage treatment services

 

51% owned by Shenzhen CDT Environmental Technology Co., Ltd.

 

Hengshui CDT Environmental Technology Co., Ltd.  

●       A PRC limited liability company

●       Incorporated on May 18, 2015

●       Registered capital of RMB 3,000,000 (approximately $0.5 million)

●       Providing sewage treatment services

 

51% owned by Shenzhen CDT Environmental Technology Co., Ltd.

 

Guangxi CWT Environmental Technology Co., Ltd.  

●       A PRC limited liability company

●       Incorporated on January 29, 2016

●       Registered capital of RMB 5,000,000 (approximately $0.8 million)

●       Providing sewage treatment services

 

51% owned by Shenzhen CDT Environmental Technology Co., Ltd.

 

Huzhou CDT Environmental Technology Co., Ltd.  

●       A PRC limited liability company

●       Incorporated on February 6, 2015

●       Registered capital of RMB 5,000,000 (approximately $0.8 million)

●       Providing sewage treatment services

 

51% owned by Shenzhen CDT Environmental Technology Co., Ltd.

 

Hohhot CDT Environmental Technology Co., Ltd.  

●       A PRC limited liability company

●       Incorporated on February 11, 2015

●       Registered capital of RMB 5,000,000 (approximately $0.8 million)

●       Providing sewage treatment services

 

51% owned by Shenzhen CDT Environmental Technology Co., Ltd.

 

Taiyuan CDT Environmental Technology Co., Ltd.  

●       A PRC limited liability company

●       Incorporated on March 23, 2015

●       Registered capital of RMB 5,000,000 (approximately $0.8 million)

●       Providing sewage treatment services

 

51% owned by Shenzhen CDT Environmental Technology Co., Ltd.

 

  

4

 

 

The structure of cash flows within our organization, and a summary of the applicable regulations, is as follows:

 

1. Our equity structure is a direct holding structure. The overseas entity to be listed in the U.S., CDT Environmental Technology Investment Holdings Limited, or CDT Cayman, which was established in the Cayman Islands, directly controls all of the outstanding share capital of Shenzhen CDT Environmental Technology Co., Ltd., or Shenzhen CDT, which was established in the PRC, and other domestic operating subsidiaries in the PRC.

CDT Cayman holds all of the outstanding equity of Chao Qiang Holdings Limited, or CQ BVI, which was established in the British Virgin Islands, and CDT Environmental Technology Group Limited, or CDT BVI, which was established in the British Virgin Islands.

 

CQ BVI holds all of the outstanding equity of Ultra Leader Investments Limited, or Ultra HK, which was established in Hong Kong. CDT BVI holds all of the outstanding equity of CDT Environmental Technology (Hong Kong) Limited, or CDT HK, which was established in Hong Kong. 

Ultra HK holds 15% of the outstanding equity of Shenzhen CDT. CDT HK holds 85% of the outstanding equity of Shenzhen CDT.

 

CDT Cayman, through Ultra HK and CDT HK, hold 100% of the outstanding equity of Shenzhen CDT. See “Corporate History and Structure” for additional details.

 

2. Within our direct holding structure, the cross-border transfer of funds within our corporate group is legal and compliant with the laws and regulations of the PRC. After foreign investors’ funds enter CDT Cayman at the close of this offering, the funds can be directly transferred to CDT BVI, then transferred to CDT HK, and then to subordinate PRC entities through Shenzhen CDT, subject to applicable PRC regulations, as noted below. The net proceeds from this offering must be remitted to China before we will be able to use the funds to grow our business in China.

 

Any funds we transfer to our PRC subsidiaries, including those received from this offering, must be transferred either as a shareholder loan or as an increase in registered capital, are subject to approval by or registration with relevant governmental authorities in China, which may take several months. The net proceeds from this offering must be remitted to China before we will be able to use the funds to grow the business in China. The procedure to remit funds may take several months after completion of this offering, and we will be unable to use the offering proceeds in China until remittance is completed. An increase in registered capital procedure requires prior approval from each of the respective local counterparts of the MOFCOM, the SAMR, and the SAFE. In addition, (a) any foreign loan procured by our PRC subsidiaries is required to be registered with the SAFE or its local branches, and (b) our PRC subsidiaries may not procure loans which exceed the statutory amount as approved by the MOFCOM or its local branches. Further, any medium-or long- term loan to be provided by us to our PRC subsidiaries must be approved by the NDRC and the SAFE or its local branches.

 

Further, regulations on the control of currency conversions, including SAFE Circular 19 may significantly limit our ability to use Renminbi converted from the net proceeds of this offering to fund the establishment of new entities in China by our subsidiaries, to invest in or acquire any other PRC companies through our PRC subsidiaries, or to establish consolidated variable interest entities in the PRC, which may adversely affect our business, financial condition and results of operations. See “Risk Factors—Risks Related to Doing Business in China—PRC regulation of loans to and direct investment in PRC entities by offshore holding companies and governmental control of currency conversion may delay us from using the proceeds of this offering to make loans or additional capital contributions to our PRC subsidiaries, which could materially and adversely affect our liquidity and our ability to fund and expand our business.”

  

Further, SAFE Circular 37 requires PRC residents (including PRC individuals and PRC corporate entities) to register with SAFE or its local branches in connection with their direct or indirect offshore investment activities. When a registered overseas special purpose company changes basic information such as its Chinese resident individual shareholders, name or operating terms, or changes important matters such as capital increase, capital reduction, equity transfer or replacement, merger or division of Chinese resident individual shareholders, it shall promptly go through the registration formalities for changes in foreign exchange for overseas investment with the SAFE. According to the provisions of SAFE Circular 37, except for Yunwu Li, no other relevant personnel of this listing are required to register foreign exchange or foreign exchange changes. As of the date of this prospectus, to our knowledge, Yunwu Li, our chief executive officer and chairman of our board of directors and chairman of the board of directors and general manager of Shenzhen CDT, had completed the foreign exchange registration, but had not completed the change registration and was in the process of registration. The completion of his change registration will affect the procedure of transferring any dividends he obtains from CDT Cayman to China. Yunwu Li will not be able to process the remittance of profits and dividends before completing the registration of foreign exchange changes in overseas investments. However, the net proceeds from this offering which must be remitted to China will not be affected since Shenzhen CDT previously completed the foreign direct investment foreign exchange registration in 2016. See “Risk Factors—Risks Related to Doing Business in China—PRC regulations relating to the establishment of offshore special purpose companies by PRC residents may subject our PRC resident beneficial owners or our PRC subsidiaries to liability or penalties, limit our ability to inject capital into our PRC subsidiaries, limit our PRC subsidiaries’ ability to increase their registered capital or distribute profits to us, or may otherwise adversely affect us.”

 

5

 

 

If we intend to distribute dividends, we will transfer the dividends to CDT HK in accordance with the laws and regulations of the PRC, then CDT HK will transfer the dividends to CDT BVI, and then to CDT Cayman, and the dividends will be distributed from CDT Cayman to all shareholders respectively in proportion to the shares they hold, regardless of whether the shareholders are U.S. investors or investors in other countries or regions.

 

3. As of the date of this prospectus, no cash and other asset transfers have occurred among us, CDT Cayman, and our subsidiaries; no dividends or distributions by any subsidiary have been made to date to us, CDT Cayman, or to investors; and no transfers, dividends or distributions have been made by us, CDT Cayman, to our subsidiaries or to U.S. investors to date. For the foreseeable future, we intend to retain all available funds and any future earnings to fund the development and expansion of our business. As a result, we do not expect to pay any cash dividends. To date, we, CDT Cayman and our subsidiaries, have been funded through shareholder capital contributions, bank loans, third party loans and related party loans. See the unaudited condensed consolidated statements of change in shareholders’ equity on page F-4 and Notes 10 and 11 on pages F-21 through F-23 of the notes to the unaudited condensed consolidated financial statements included elsewhere in this prospectus. As of June 30, 2023, these consisted of shareholder capital contributions of $7.5 million, which are reflected as par value and additional paid-in capital in the unaudited condensed consolidated financial statements included elsewhere in this prospectus (see the unaudited condensed consolidated statements of change in shareholders’ equity on page F-4 of the unaudited condensed consolidated financial statements included elsewhere in this prospectus), bank loans of $2.3 million (see pages F-22 and F-23 of Note 11 of the notes to the unaudited condensed consolidated financial statements included elsewhere in this prospectus), third party loans of $0.3 million (see page F-23 of Note 11 of the notes to the unaudited condensed consolidated financial statements included elsewhere in this prospectus) and related party loans of $4.3 million (see page F-22 of Note 10 of the notes to the unaudited condensed consolidated financial statements included elsewhere in this prospectus). See the unaudited condensed consolidated statements of change in shareholders’ equity on page F-4 and Notes 10, and 11 on pages F-21 through F-23 of the notes to the unaudited condensed consolidated financial statements included elsewhere in this prospectus. As of the date of this prospectus, none of CDT Cayman or its subsidiaries has written cash management policies or procedures in place that dictate how funds are transferred. Rather, the funds can be transferred in accordance with the applicable PRC laws and regulations.

 

4. Our PRC subsidiaries’ ability to distribute dividends is based upon their distributable earnings. Current PRC regulations permit such PRC subsidiaries to pay dividends to their respective shareholders only out of their accumulated profits, if any, determined in accordance with PRC accounting standards and regulations. In addition, each of our PRC subsidiaries is required to set aside at least 10% of its after-tax profits each year, if any, to fund a statutory reserve until such reserve reaches 50% of each of their respective registered capital. These reserves are not distributable as cash dividends.

 

To address persistent capital outflows and the RMB’s depreciation against the U.S. dollar in the fourth quarter of 2016, the People’s Bank of China and SAFE have implemented a series of capital control measures in the subsequent months, including stricter vetting procedures for China-based companies to remit foreign currency for overseas acquisitions, dividend payments and shareholder loan repayments. The PRC government may continue to strengthen its capital controls and our PRC subsidiaries’ dividends and other distributions may be subject to tightened scrutiny in the future. The PRC government also imposes controls on the conversion of RMB into foreign currencies and the remittance of currencies out of the PRC. Therefore, we may experience difficulties in completing the administrative procedures necessary to obtain and remit foreign currency for the payment of dividends from the profits of any of our PRC subsidiaries, if any. Furthermore, if any of our subsidiaries in the PRC incur debt on their own in the future, the instruments governing the debt may restrict their ability to pay dividends or make other payments.

 

In addition, the Enterprise Income Tax Law and its implementation rules provide that a withholding tax at a rate of 10% would be applicable to dividends paid by mainland China companies to non-PRC-resident enterprises unless reduced under treaties or arrangements between the PRC central government and the governments of other countries or regions where the non-PRC resident enterprises are tax resident. Pursuant to the tax agreement between mainland China and the Hong Kong Special Administrative Region, the withholding tax rate in respect to the payment of dividends by a mainland China enterprise to a Hong Kong enterprise may be reduced to 5% from a standard rate of 10%. However, if the relevant tax authorities determine that our transactions or arrangements are for the primary purpose of enjoying a favorable tax treatment, the relevant tax authorities may decide that a tax rate that is more than the favorable withholding tax rate of 5% will be applicable to dividends received by our Hong Kong subsidiary from our mainland China subsidiaries in the future. Accordingly, there is no assurance that the reduced 5% withholding rate will apply to dividends received by our Hong Kong subsidiary from our mainland China subsidiaries. A higher withholding tax rate will reduce the amount of dividends we may receive from our mainland China subsidiaries.

 

Summary of Risks Associated with Our Business

 

Our business is subject to a number of risks, including risks that may prevent us from achieving our business objectives or may adversely affect our business, financial condition, results of operations, cash flows and prospects, that you should consider before making a decision to invest in our ordinary shares. These risks are discussed more fully in “Risk Factors” beginning on page 13. These risks include, but are not limited to, the following:

 

Risks Related to Our Business

 

 

We have a limited operating history. There is no assurance that our future operations will be profitable operations. If we cannot generate sufficient revenues to operate profitably, we may suspend or cease operations (see page 13 of this prospectus).

     
 

We face risks related to natural disasters, health epidemics and other outbreaks, particularly the coronavirus, which could significantly disrupt our operations (see page 13 of this prospectus).

  

 

6

 

 

 

We operate in highly competitive markets and the size and resources of many of our competitors may allow them to compete more effectively than we can, preventing us from achieving profitability (see page 14 of this prospectus).

 

 

Issues or defects with products may lead to product liability, personal injury or property damage claims, recalls, withdrawals, replacements of products, or regulatory actions by governmental authorities that could divert resources, affect business operations, decrease sales, increase costs, and put us at a competitive disadvantage, any of which could have a significant adverse effect on our financial condition (see page 16 of this prospectus).

  

 

Our future growth depends in part on new products and new technology innovation, and failure to invent and innovate could adversely impact our business prospects (see page 16 of this prospectus).

 

Risks Related to Doing Business in China

 

  We are based in, and our operations are located in, China through our subsidiaries. Our ability to operate in China may be impaired by changes in Chinese laws and regulations, including those relating to taxation, environmental regulation, restrictions on foreign investment, and other matters.   Because our operations are conducted in China through our subsidiaries, the Chinese government may exercise significant oversight and discretion over the conduct of our business, may intervene in or influence our operations at any time, and may exert more control over offerings conducted overseas and/or foreign investment in China-based issuers, which could result in a material change in our operations and/or the value of our ordinary shares. The Chinese government has exercised and continues to exercise substantial control over virtually every sector of the Chinese economy through regulation and state ownership. The central Chinese government or local governments having jurisdiction within China may impose new, stricter regulations, or interpretations of existing regulations, that would require additional expenditures and efforts on our part to ensure our compliance with such regulations or interpretations. As such, our subsidiaries in the PRC may be subject to governmental and regulatory interference in the provinces in which they operate. We could also be subject to regulation by various political and regulatory entities, including local and municipal agencies and other governmental subdivisions. Our ability to operate in China and the value of our ordinary shares may be impaired by any such laws or regulations, or any changes in laws and regulations in the PRC. Any actions by the Chinese government to exert more oversight and control over offerings that are conducted overseas and/or foreign investment in China-based issuers could significantly limit or completely hinder our ability to offer or continue to offer securities to investors and cause the value of such securities to significantly decline or be worthless. For a further discussion of such risks, see “Risk Factors—Risks Related to Doing Business in China—We are based in, and our operations are located in, China through our subsidiaries. Our ability to operate in China may be impaired by changes in Chinese laws and regulations, including those relating to taxation, environmental regulation, restrictions on foreign investment, and other matters.” (see page 21 of this prospectus).  

 

  We could be subject to regulation by various political and regulatory entities, including local and municipal agencies and other governmental subdivisions, and rules and regulations in China can change quickly with little or no advance notice which could result in a material change in our operations and/or the value of our ordinary shares. The Trial Measures provide that if an issuer meets both of the following conditions, the overseas securities offering and listing conducted by such issuer will be determined as an indirect overseas offering and listing which shall be subject to the filing procedure set forth under the Trial Measures: (i) 50% or more of the issuer’s operating revenue, total profit, total assets or net assets as documented in its audited consolidated financial statements over the same period for the most recent accounting year is accounted for by domestic companies; and (ii) the main parts of the issuer’s business activities are conducted in the PRC, or its main places of business are located in the PRC, or the senior managers in charge of its business operation and management are mostly Chinese citizens or domiciled in the PRC. As confirmed by our PRC counsel, this offering is an indirect overseas offering and listing. According to the Circular, since the date of effectiveness of the Trial Measures on March 31, 2023, PRC domestic enterprises falling within the scope of filing that have been listed overseas or met the following circumstances are “existing enterprises”: before the effectiveness of the Trial Measures on March 31, 2023, the application for indirect overseas issuance and listing has been approved by the overseas regulators or overseas stock exchanges (such as the registration statement has become effective on the U.S. market), it is not required to perform issuance and listing supervision procedures of the overseas regulators or overseas stock exchanges, and the overseas issuance and listing will be completed by September 30, 2023. Existing enterprises are not required to file with the CSRC immediately, and filings with the CSRC should be made as required if they involve refinancings and other filing matters. PRC domestic enterprises that have submitted valid applications for overseas issuance and listing but have not been approved by overseas regulatory authorities or overseas stock exchanges at the date of effectiveness of the Trial Measures on March 31, 2023 can reasonably arrange the timing of filing applications with the CSRC and shall complete the filing with the CSRC before the overseas issuance and listing. We are not classified as an existing enterprise. We therefore are required to file with the CSRC and shall complete the filing with the CSRC in accordance with the Trial Measures before this offering. On August 2, 2023, we submitted our filing materials and applied for registration to the CSRC in accordance with the requirements of the Trial Measures. We have completed the filing with the CSRC and obtained the required Filing Notice from the CSRC regarding this offering on November 28, 2023, which serves as notification from the CSRC of our completion of the required filing procedures with the CSRC for this offering. The main contents of the Filing Notice are as follows: (1) we propose to issue not more than 2,300,000 ordinary shares (exclusive of the ordinary shares underlying the representative’s warrants) and list them on The Nasdaq Stock Market LLC in the United States; (2) from the date of issuance of the Filing Notice to the completion of this offering, we shall, in accordance with the relevant provisions of the overseas issuance and listing of domestic enterprises, namely the Circular, the Trial Measures, and five supporting guidelines, report any major event to the CSRC through its filing management information system; (3) we shall, within 15 working days after completion of this offering, report the issuance and listing of our shares in connection with this offering through the CSRC’s filing management information system; and (4) if we fail to complete this offering within 12 months of the issuance date of the Filing Notice and intend to continue to proceed with this offering, we shall update the filing materials with the CSRC. As of the date of this prospectus, except for comments from the CSRC regarding the filing materials and the Filing Notice noted above, we have not received any formal inquiry, notice, warning, sanction, or objection from the CSRC with respect to this offering. Our PRC legal counsel, Beijing Dacheng Law Offices, LLP (Fuzhou), has advised us that, based on its understanding of the current PRC laws and regulations, apart from the requirement of reporting the issuance and listing of our shares in connection with this offering within 15 working days after the completion of this offering as stated in the Filing Notice and above, we and our subsidiaries are not required to obtain any other permission, consent, or approval from, or make any filing or other notice to, the PRC authorities, including the CSRC, relating to this offering. While we believe, apart from the completed filing with the CSRC per the requirements of the Trial Measures, we are currently not required to obtain any other permission from any PRC authorities to operate or to issue our ordinary shares to foreign investors, and we believe we and our subsidiaries are not required to obtain any other permission or approval relating to our ordinary shares from PRC authorities, there are risks that such actions could require permission or consent from various PRC authorities. In addition, we believe that we and our subsidiaries are not required to obtain permission or approval relating to our ordinary shares from PRC authorities, including the CSRC, apart from the completed filing with the CSRC per the requirements of the Trial Measures, and the CAC, for our subsidiaries’ operations, nor have we or our subsidiaries received any other approvals or denial for our subsidiaries’ operations with respect to this offering. Therefore, the understanding is that we and our subsidiaries are not currently covered by permission requirements from the CSRC, apart from the completed filing with the CSRC per the requirements of the Trial Measures, the CAC or any other governmental agency that is required to approve our operations, and no such permissions or approvals have been received or denied, apart from the completed filing procedures with the CSRC. We and our investors would be adversely affected if we or our subsidiaries were required to receive or maintain such permission or approvals and did not do so, if we inadvertently concluded that such approvals are not required, or if applicable laws, regulations, or interpretations change and we become required to obtain approval in the future. For example, if it is determined in the future that any other approval of the CSRC, the CAC or any other regulatory authority is required for this offering, we may face sanctions by the CSRC, the CAC or other PRC regulatory agencies if we fail to obtain such approval. See “Risk Factors—Risks Related to Doing Business in China—We could be subject to regulation by various political and regulatory entities, including local and municipal agencies and other governmental subdivisions, and rules and regulations in China can change quickly with little or no advance notice which could result in a material change in our operations and/or the value of our ordinary shares” and “Risk Factors—Risks Related to our Ordinary Shares and this Offering—The approval of the CSRC is required in connection with this offering under PRC law (see page 23 of this prospectus).  

 

  Regulatory bodies of the United States may be limited in their ability to conduct investigations or inspections of our operations in China (see page 24 of this prospectus). Our current auditor, Wei, Wei & Co., LLP, is PCAOB registered and based in Flushing, New York. Under the HFCAA, the PCAOB is permitted to inspect our current independent public accounting firm. In addition, on December 16, 2021, the PCAOB issued a determination report which found that the PCAOB was unable to inspect or investigate completely registered public accounting firms headquartered in: (1) mainland China of the People’s Republic of China; and (2) Hong Kong, a Special Administrative Region of the PRC, because of positions taken by PRC authorities in those jurisdictions, which determinations were vacated by the PCAOB on December 15, 2022. Wei, Wei & Co., LLP is not headquartered in mainland China or Hong Kong and was not identified by the PCAOB in its report on December 16, 2021 as a firm subject to the PCAOB’s determinations, which determinations were vacated by the PCAOB on December 15, 2022. However, if the PCAOB later determined that it cannot inspect or fully investigate our auditor, trading in our securities may be prohibited under the HFCAA, and, as a result, Nasdaq may determine to delist our securities.
     
  Changes in China’s economic, political or social conditions or government policies could have a material adverse effect on our business and operations (see page 25 of this prospectus).

  

  Uncertainties with respect to China’s legal system could adversely affect us (see page 25 of this prospectus).
     
  If we become subject to the recent scrutiny, criticism and negative publicity involving U.S.-listed China-based companies, we may have to expend significant resources to investigate and resolve the matter which could harm our business operations, this offering and our reputation and could result in a loss of your investment in our ordinary shares, especially if such matter cannot be addressed and resolved favorably (see page 25 of this prospectus).  

 

 

Changes in international trade policies, trade disputes, barriers to trade, or the emergence of a trade war may dampen growth in China and may have a material adverse effect on our business (see page 26 of this prospectus).

 

7

 

   

  It may be difficult for overseas regulators to conduct investigation or collect evidence within China (see page 26 of this prospectus).
     
  Our current sewage treatment system customers are primarily state-owned companies in China and the end users of our system are primarily local governments in China, and the payment approval process from local governments is complex, which may increase our days sales outstanding and could impact our liquidity should any major delay of payment from our major customers occur (see page 26 of this prospectus).
     
  We must remit the offering proceeds to China before they may be used to benefit our business in China, and we cannot assure that we can finish all necessary governmental registration processes in a timely manner (see page 27 of this prospectus).
     
  You may experience difficulties in effecting service of legal process, enforcing foreign judgments, including those obtained in the U.S., or bringing actions in China against us or our management named in the prospectus based on foreign laws (see page 27 of this prospectus).
     
  We may rely on dividends and other distributions on equity paid by our PRC subsidiaries to fund any cash and financing requirements we may have, and any limitation on the ability of our PRC subsidiaries to make payments to us could have a material and adverse effect on our ability to conduct our business (see page 27 of this prospectus).
     
  PRC regulation of loans to and direct investment in PRC entities by offshore holding companies and governmental control of currency conversion may delay us from using the proceeds of this offering to make loans or additional capital contributions to our PRC subsidiaries, which could materially and adversely affect our liquidity and our ability to fund and expand our business (see page 27 of this prospectus).
     
  Fluctuations in exchange rates could have a material and adverse effect on our results of operations and the value of your investment (see page 28 of this prospectus).
     
  Changes in China’s environmental laws and policies may affect our financial condition (see page 28 of this prospectus).
     
  Governmental control of currency conversion may limit our ability to utilize our earnings effectively and affect the value of your investment (see page 28 of this prospectus).
     
  Certain PRC regulations may make it more difficult for us to pursue growth through acquisitions (see page 29 of this prospectus).
     
  PRC regulations relating to the establishment of offshore special purpose companies by PRC residents may subject our PRC resident beneficial owners or our PRC subsidiaries to liability or penalties, limit our ability to inject capital into our PRC subsidiaries, limit our PRC subsidiaries’ ability to increase their registered capital or distribute profits to us, or may otherwise adversely affect us (see page 29 of this prospectus).
     
  We face uncertainty with respect to indirect transfers of equity interests in PRC resident enterprises by their non-PRC holding companies (see page 30 of this prospectus).
     
  Additional factors outside of our control related to doing business in China could negatively affect our business (see page 30 of this prospectus).
     
  The recent joint statement by the SEC and PCAOB, proposed rule changes submitted by Nasdaq, and the HFCAA all call for additional and more stringent criteria to be applied to emerging market companies upon assessing the qualification of their auditors, especially the non-U.S. auditors who are not inspected by the PCAOB. These developments could add uncertainties to our offering (see page 30 of this prospectus).

  

Risks Related to Intellectual Property  
 
  If we are not able to adequately protect our proprietary intellectual property and information, and protect against third party claims that we are infringing on their intellectual property rights, our results of operations could be adversely affected (see page 18 of this prospectus).  

 

Risks Related to Our Ordinary Shares and this Offering  
 
  There has been no prior public market for our ordinary shares and an active trading market may never develop or be sustained (see page 32 of this prospectus).  
     
  If we fail to meet applicable listing requirements, Nasdaq may delist our ordinary shares from trading, in which case the liquidity and market price of our ordinary shares could decline (see page 33 of this prospectus).  
     
  Our directors, officers and principal shareholders have significant voting power and may take actions that may not be in the best interests of our other shareholders (see page 34 of this prospectus).  
     
  The price of our ordinary shares could be subject to rapid and substantial volatility, and such volatility may make it difficult for prospective investors to assess the rapidly changing value of our ordinary shares (see page 37 of this prospectus).

 

As of the date of this prospectus, our directors, officers and principal shareholders holding 5% or more of our ordinary shares, collectively, control approximately 81% of our ordinary shares. After this offering, it is expected that our directors, officers and principal shareholders holding 5% or more of our ordinary shares, collectively, will hold a controlling interest in our ordinary shares as they will hold approximately 69% of our outstanding ordinary shares. As a result, these shareholders, if they act together, will be able to control the management and affairs of our company and most matters requiring shareholder approval, including the election of directors and approval of significant corporate transactions.

 

Because our operations are conducted in China through our subsidiaries, the Chinese government may exercise significant oversight and discretion over the conduct of our business and may intervene in or influence our operations at any time, which could result in a material change in our operations and/or the value of our ordinary shares.

 

Recent statements by the Chinese government have indicated an intent to exert more oversight and control over offerings that are conducted overseas and/or foreign investments in China based issuers. See “Risk Factors—Risks Related to Doing Business in China— The approval of the CSRC is required in connection with this offering under PRC law”, “Risk Factors—Risks Related to Doing Business in China—We are based in, and our operations are located in, China through our subsidiaries. Our ability to operate in China may be impaired by changes in Chinese laws and regulations, including those relating to taxation, environmental regulation, restrictions on foreign investment, and other matters” and “Risk Factors—Risks Related to Doing Business in China—We could be subject to regulation by various political and regulatory entities, including local and municipal agencies and other governmental subdivisions, and rules and regulations in China can change quickly with little or no advance notice which could result in a material change in our operations and/or the value of our ordinary shares”.

 

8

 

 

Recently, the Chinese government initiated a series of regulatory actions and made a number of public statements on the regulation of business operations in China with little advance notice, including cracking down on illegal activities in the securities market, enhancing supervision over China-based companies listed overseas using a variable interest entity structure, adopting new measures to extend the scope of cybersecurity reviews, and expanding efforts in anti-monopoly enforcement. We do not believe that we are directly subject to these regulatory actions or statements, as we do not have a variable interest entity structure and our business does not involve the collection of user data, implicate cybersecurity, or involve any other type of restricted industry. Because these statements and regulatory actions are new, however, it is highly uncertain how soon legislative or administrative regulation making bodies in China will respond to them, or what existing or new laws or regulations will be modified or promulgated, if any, or the potential impact such modified or new laws and regulations will have on our daily business operations or our ability to accept foreign investments and list on an U.S. exchange.

 

Pursuant to the HFCAA, the PCAOB issued a determination report on December 16, 2021 which found that the PCAOB was unable to inspect or investigate completely registered public accounting firms headquartered in: (1) mainland China of the People’s Republic of China; and (2) Hong Kong, a Special Administrative Region of the PRC. In addition, the PCAOB’s report identified the specific registered public accounting firms which are subject to these determinations, which determinations were vacated by the PCAOB on December 15, 2022. The registered public accounting firm, Wei, Wei & Co., LLP, who audited our financial statements for the fiscal year ended December 31, 2022 and 2021, is not headquartered in mainland China or Hong Kong and was not identified in the PCAOB’s report on December 16, 2021 as a firm subject to the PCAOB’s determinations, which determinations were vacated by the PCAOB on December 15, 2022. Notwithstanding the foregoing, if the PCAOB is not able to fully conduct inspections of our auditor’s work papers in China, investors may be deprived of the benefits of such inspection which could result in limitation or restriction of our access to the U.S. capital markets and trading of our securities may be prohibited under the HFCAA. In addition, on August 26, 2022, the PCAOB signed a Statement of Protocol, or SOP, Agreement with the CSRC and China’s Ministry of Finance. The SOP, together with two protocol agreements governing inspections and investigation, establishes a specific, accountable framework to make possible complete inspections and investigations by the PCAOB of audit firms based in China and Hong Kong, as required under U.S. law. On December 15, 2022, the PCAOB announced that it was able to secure complete access to inspect and investigate PCAOB-registered public accounting firms headquartered in mainland China and Hong Kong completely in 2022. The PCAOB vacated its previous 2021 determinations that the PCAOB was unable to inspect or investigate completely registered public accounting firms headquartered in mainland China and Hong Kong. However, whether the PCAOB will continue to be able to satisfactorily conduct inspections of PCAOB-registered public accounting firms headquartered in mainland China and Hong Kong is subject to uncertainty and depends on a number of factors out of our, and our auditor’s, control. The PCAOB continues to demand complete access in mainland China and Hong Kong moving forward and has resumed regular inspections since March 2023. The PCAOB is continuing pursuing ongoing investigations and may initiate new investigations as needed. The PCAOB has indicated that it will act immediately to consider the need to issue new determinations with the HFCAA if needed. Notwithstanding the foregoing, in the event it is later determined that the PCAOB is unable to inspect or investigate completely our auditor, then such lack of inspection could cause our securities to be delisted from the stock exchange. The delisting of our shares, or the threat of their being delisted, may materially and adversely affect the value of your investment. Further, on December 29, 2022, the Consolidated Appropriations Act, 2023, was signed into law by the U.S. President, which, among other things, amended the HFCAA to reduce the number of consecutive non-inspection years that would trigger the trading prohibition under the HFCAA from three years to two years (originally such threshold under the HFCAA was three consecutive years), and so that any non-U.S. jurisdiction could be the reason why the PCAOB does not have complete access to inspect or investigate a company’s public accounting firm (originally the HFCAA only applied if the PCAOB’s ability to inspect or investigate was due to a position taken by an authority in the jurisdiction where the relevant public accounting firm was located). See “Risk Factors—Risks Related to Doing Business in China—The recent joint statement by the SEC and PCAOB, proposed rule changes submitted by Nasdaq, and the HFCAA all call for additional and more stringent criteria to be applied to emerging market companies upon assessing the qualification of their auditors, especially the non-U.S. auditors who are not inspected by the PCAOB. These developments could add uncertainties to our offering.”

 

Implications of Being an Emerging Growth Company and a Foreign Private Issuer

 

As a Company with less than $1.235 billion in revenue during our last fiscal year, we qualify as an “emerging growth company” as defined in the Jumpstart Our Business Startups Act, or JOBS Act, enacted in April 2012, and may take advantage of reduced reporting requirements that are otherwise applicable to public companies. These provisions include, but are not limited to: 

 

   ● being permitted to present only two years of audited financial statements and only two years of related Management’s Discussion and Analysis of Financial Condition and Results of Operations in our filings with the SEC;

 

   ● not being required to comply with the auditor attestation requirements in the assessment of our internal control over financial reporting;

 

   ● reduced disclosure obligations regarding executive compensation in periodic reports, proxy statements and registration statements; and

 

   ● exemptions from the requirements of holding a nonbinding advisory vote on executive compensation and shareholder approval of any golden parachute payments not previously approved.

   

9

 

 

We may take advantage of these provisions until the last day of our fiscal year following the fifth anniversary of the date of the first sale of our ordinary shares pursuant to this offering. However, if certain events occur before the end of such five-year period, including if we become a “large accelerated filer,” our annual gross revenues exceed $1.235 billion or we issue more than $1.0 billion of non-convertible debt in any three-year period, we will cease to be an emerging growth company before the end of such five-year period.

 

In addition, Section 107 of the JOBS Act provides that an “emerging growth company” can take advantage of the extended transition period provided in Section 7(a)(2)(B) of the Securities Act of 1933, as amended, or the Securities Act, for complying with new or revised accounting standards. We have elected to take advantage of the extended transition period for complying with new or revised accounting standards and acknowledge such election is irrevocable pursuant to Section 107 of the JOBS Act.

 

 We are a “foreign private issuer,” as defined by the SEC. As a result, in accordance with the rules and regulations of The Nasdaq Stock Market LLC, or Nasdaq, we may comply with home country governance requirements and certain exemptions thereunder rather than complying with Nasdaq corporate governance standards. We may choose to take advantage of the following exemptions afforded to foreign private issuers:

 

Exemption from filing quarterly reports on Form 10-Q, from filing proxy solicitation materials on Schedule 14A or 14C in connection with annual or special meetings of shareholders, from providing current reports on Form 8-K disclosing significant events within four days of their occurrence, and from the disclosure requirements of Regulation FD.

 

Exemption from Section 16 rules regarding sales of ordinary shares by insiders, which will provide less data in this regard than shareholders of U.S. companies that are subject to the Exchange Act.

 

Exemption from the Nasdaq rules applicable to U.S. domestic issuers requiring disclosure within four business days of any determination to grant a waiver of the code of business conduct and ethics to directors and officers. Although we will require board approval of any such waiver, we may choose not to disclose the waiver in the manner set forth in the Nasdaq rules, as permitted by the foreign private issuer exemption.

 

Exemption from the requirement that our board of directors have a compensation committee that is composed entirely of independent directors with a written charter addressing the committee's purpose and responsibilities.

 

Exemption from the requirements that director nominees are selected, or recommended for selection by our board of directors, either by (1) independent directors constituting a majority of our board of directors’ independent directors in a vote in which only independent directors participate, or (2) a committee comprised solely of independent directors, and that a formal written charter or board resolution, as applicable, addressing the nominations process is adopted.

 

Furthermore, Nasdaq Rule 5615(a)(3) provides that a foreign private issuer, such as us, may rely on our home country corporate governance practices in lieu of certain of the rules in the Nasdaq Rule 5600 Series and Rule 5250(d), provided that we nevertheless comply with Nasdaq's Notification of Noncompliance requirement (Rule 5625), the Voting Rights requirement (Rule 5640) and that we have an audit committee that satisfies Rule 5605(c)(3), consisting of committee members that meet the independence requirements of Rule 5605(c)(2)(A)(ii). If we rely on our home country corporate governance practices in lieu of certain of the rules of Nasdaq, our shareholders may not have the same protections afforded to shareholders of companies that are subject to all of the corporate governance requirements of Nasdaq. If we choose to do so, we may utilize these exemptions for as long as we continue to qualify as a foreign private issuer.

 

Although we are permitted to follow certain corporate governance rules that conform to Cayman Island requirements in lieu of many of the Nasdaq corporate governance rules, we intend to comply with the Nasdaq corporate governance rules applicable to foreign private issuers. 

 

Corporate Information

 

Our principal executive office is located at C1, 4th Floor, Building 1, Financial Base, No. 8 Kefa Road, Nanshan District, Shenzhen, China 518057. Our telephone number is 86-0755-86667996 and our hotline telephone number is 86-400-0829-066. Our registered office in the Cayman Islands is located at the office of Campbells Corporate Services Limited, Floor 4, Willow House, Cricket Square, Grand Cayman KY1-9010, Cayman Islands.

 

Our agent for service of process in the United States is Puglisi & Associates, located at 850 Library Ave., Suite 204, Newark, DE 19711.

 

Our website is located at http://www.cdthb.cn. Information contained on, or that can be accessed through, our website is not a part of, and shall not be incorporated by reference into, this prospectus.

 

10

 

 

The Offering(1)

 

Securities being offered   1,500,000 ordinary shares on a firm commitment basis.
     
Initial public offering price   $4.00 per ordinary share.
     
Number of ordinary shares outstanding before this offering    9,200,000 ordinary shares.
     
Number of ordinary shares outstanding after this offering   10,700,000 ordinary shares.
     
Use of proceeds   We intend to use approximately 45% of the net proceeds of this offering for working capital purposes for rural sewage treatment, including to build our sewage treatment equipment, approximately 35% for implementation of new systems and services and potential mergers and acquisitions of subsidiaries, although no definitive merger or acquisition targets have been identified, approximately 15% for research and development, and the remainder for sales and marketing, additional working capital and general corporate purposes. For more information on the use of proceeds, see “Use of Proceeds” on page 40 .
     
 Lock-up   All of our directors, officers and principal shareholders (defined as owners of 5% or more of our ordinary shares) have agreed with the underwriters, subject to certain exceptions, not to sell, transfer or dispose of, directly or indirectly, any of our ordinary shares or securities convertible into or exercisable or exchangeable for our ordinary shares for a period of 12 months after the date of this prospectus. Our other shareholders have agreed with the underwriters, subject to certain exceptions, not to sell, transfer or dispose of, directly or indirectly, any of our ordinary shares or securities convertible into or exercisable or exchangeable for our ordinary shares for a period of 6 months after the date of this prospectus. See “Shares Eligible for Future Sale” and “Underwriting” for more information.
     
Indemnification escrow   Net proceeds of this offering in the amount of $600,000 shall be used to fund an escrow account for a period of 24 months following the closing date of this offering, which account shall be used in the event we have to indemnify the underwriters pursuant to the terms of an underwriting agreement with the underwriters.
     
Representative’s warrants   Upon the closing of this offering, we will issue to WestPark Capital, Inc., as representative of the underwriters, the representative’s warrants entitling the representative to purchase 10% of the aggregate number of ordinary shares issued in this offering. The exercise price of the representative’s warrants is equal to 120% of the price of our ordinary shares offered hereby. The representative’s warrants, once issued, will be exercisable for a period of five years from the effective date of the registration statement of which this prospectus forms a part, may be exercised on a cash or cashless basis and will terminate on the fifth anniversary of the effective date of the registration statement.
     
Nasdaq symbol   Our ordinary shares have been approved for listing on the Nasdaq Capital Market under the symbol “CDTG”.
     
Risk factors   Investing in our ordinary shares is highly speculative and involves a high degree of risk. As an investor you should be able to bear a complete loss of your investment. You should carefully consider the information set forth in the “Risk Factors” section beginning on page 13.

  

(1) Unless otherwise indicated, all information contained in this prospectus assumes no exercise of the underwriters’ over-allotment option or the representative’s warrants and is based on 9,200,000 ordinary shares outstanding as of June 30, 2023 and as of the date of this prospectus.

 

11

 

 

Summary Consolidated Financial Data

 

The following tables summarize our consolidated financial data for the periods and as of the dates indicated. The summary consolidated statements of income and comprehensive income (loss) for the six months ended June 30, 2023 and 2022, the summary consolidated statements of income and comprehensive income for the years ended December 31, 2022 and 2021, and the summary consolidated balance sheet data as of June 30, 2023, December 31, 2022 and 2021, are derived from our consolidated financial statements, which have been prepared in accordance with accounting principles generally accepted in the United States of America, or U.S. GAAP, and included elsewhere in this prospectus. Our historical results are not necessarily indicative of the results that may be expected in the future. The following summary consolidated financial data should be read in conjunction with “Management’s Discussion and Analysis of Financial Condition and Results of Operations,” “Exchange Rate Information” and our consolidated financial statements included elsewhere in this prospectus.

 

    
   For the Six Months Ended June 30,
   2023 (Unaudited)  2022 (Unaudited)
   $  $
Consolidated Statements of Income and Comprehensive Income (Loss):          
Revenues   15,463,803    12,866,964 
Cost of revenues   10,639,643    8,179,909 
Gross profit   4,824,160    4,687,055 
Operating expenses   2,477,588    3,902,709 
Income from operations   2,346,572    784,346 
Other (expense) income, net   (109,093)   (14,810)
Income tax expense   429,197    215,944 
Net income   1,808,282    553,592 
Net income attributable to CDT Environmental Technology Investment Holdings Limited   2,033,985    842,830 
Earnings per share, basic and diluted   0.22    0.09 
Weighted average number of ordinary shares outstanding, basic and diluted   9,200,000    9,200,000 

 

   For the Years Ended December 31,
   2022  2021
   $  $
Consolidated Statements of Income and Comprehensive Income:          
Revenues   28,849,362    23,556,820 
Cost of revenues   18,596,207    15,062,490 
Gross profit   10,253,155    8,494,330 
Operating expenses   3,899,217    848,533 
Income from operations   6,353,938    7,645,797 
Other income, net   41,814    140,273 
Income tax expense   1,152,963    1,207,810 
Net income   5,242,789    6,578,260 
Net income attributable to CDT Environmental Technology Investment Holdings Limited   5,782,018    6,775,739 
Earnings per share, basic and diluted   0.63    0.74 
Weighted average number of ordinary shares outstanding, basic and diluted   9,200,000    9,200,000 

  

    June 30,
2023
(Unaudited)
  December
31, 2022
  December
31, 2021
Consolidated Balance Sheet Data:   $   $   $
Current assets     40,827,229       40,968,099       37,567,895  
Total assets     56,165,766       53,910,727       41,253,446  
Current liabilities     29,584,151       28,069,459       18,725,724  
Total liabilities     29,809,285       28,350,816       18,861,213  
Noncontrolling interest (1)     333,935       556,172       1,120,139  
Total CDT Cayman shareholders’ equity     26,022,546       25,003,739       21,272,094  

 

(1) Noncontrolling interest represents the portion of the net assets of CDT Cayman’s subsidiaries attributable to interests that are not owned by CDT Cayman and its subsidiaries.

 

12

 

 

RISK FACTORS

 

An investment in our ordinary shares involves a high degree of risk. You should carefully consider the following information about these risks, together with the other information appearing elsewhere in this prospectus, before deciding to invest in our ordinary shares. The occurrence of any of the following risks could have a material adverse effect on our business, financial condition, results of operations and future growth prospects. In these circumstances, the market price of our ordinary shares could decline, and you may lose all or part of your investment.

 

Risks Related to Our Business

 

We have a limited operating history. There is no assurance that our future operations will be profitable operations. If we cannot generate sufficient revenues to operate profitably, we may suspend or cease operations.

 

Given our limited operating history, there can be no assurance that we can build our business such that we can earn a significant profit or any profit at all. The future of our business will depend upon our ability to obtain and retain customers and when needed, obtain sufficient financing and support from creditors, while we strive to achieve and maintain profitable operations. The likelihood of success must be considered in light of the problems, expenses, difficulties, complications and delays encountered in connection with the operations that we undertake. There is no history upon which to base any assumption that our business will prove to be successful, and there is significant risk that we will not be able to generate the sales volumes and revenues necessary to achieve profitable operations. To the extent that we cannot achieve our plans and generate revenues which exceed expenses on a consistent basis, our business, results of operations, financial condition and prospects will be materially adversely affected.

 

Our management team has limited public company experience. We have never operated as a public company in the United States and several of our senior management positions are currently held by employees who have been with us for a short period of time. Our entire management team, as well as other Company personnel, will need to devote substantial time to compliance, and may not effectively or efficiently manage our transition into a public company. If we are unable to effectively comply with the regulations applicable to public companies or if we are unable to produce accurate and timely financial statements, which may result in material misstatements in our financial statements or possible restatement of financial results, our stock price may be materially adversely affected, and we may be unable to maintain compliance with the listing requirements of Nasdaq. Any such failures could also result in litigation or regulatory actions by the SEC or other regulatory authorities, loss of investor confidence, delisting of our securities, harm to our reputation and diversion of financial and management resources from the operation of our business, any of which could materially adversely affect our business, financial condition, results of operations and growth prospects. Additionally, the failure of a key employee to perform in his or her current position could result in our inability to continue to grow our business or to implement our business strategy.

 

We face risks related to natural disasters, health epidemics and other outbreaks, particularly the coronavirus, which could significantly disrupt our operations.

 

In recent years, there have been outbreaks of epidemics in various countries, including China and the United States. In December 2019, a novel strain of coronavirus, or COVID-19 or the coronavirus, surfaced and it has spread rapidly to many parts of China and other parts of the world, including the United States. COVID-19 has resulted in quarantines, travel restrictions, and the temporary closure of stores and business facilities throughout China and several other parts of the world, including the United States. In March 2020, the World Health Organization declared COVID-19 a pandemic. All of our revenue is concentrated in China through our subsidiaries. Consequently, our revenues were impacted by COVID-19 and were significantly lower in 2020 as compared to the same period of 2019. We had to comply with the temporary closure of facilities, or the ‘shelter in place’ order, in China in the first quarter of 2020. As a result, we closed our facilities in January 2020 and re-opened them in late March 2020. The COVID-19 outbreak materially adversely affected our business operations, financial condition and operating results for 2020 and 2021, including but not limited to material negative impact on our total revenues, slower collection of accounts receivable and additional allowances for doubtful accounts and could continue to adversely affect our business operations, financial condition and operating results. Despite the ongoing COVID-19 pandemic, we resumed relatively normal business operations after March 2020. However, the resurgence of COVID-19, particularly the Omnicron variant, has resulted in government restrictions in quarantines, travel and the temporary closures of stores and business facilities in parts of China and the world during the first few months of 2022. As of date of this prospectus, the PRC government has lifted the above mentioned restrictions. In December 2022, the Chinese government unveiled a series of new COVID-related policies to loosen its zero-COVID policy, and uplifted the existing prevention and control measures that were in place for the COVID-19 pandemic. On December 26, 2022, China’s National Health Commission announced that the COVID-19 infections will not be subject to the prevention and control measures of a Class A infectious disease, which means that COVID-19 infections will no longer be included in the administration of quarantinable infectious diseases. Starting from January 8, 2023, among other changes, China no longer conducts nucleic acid tests or centralized quarantine for all inbound travelers, and measures to control the number of international passenger flights have been lifted. We expect our business operations, financial condition and operating results to continue to recover from the negative impact of the COVID-19 pandemic. However, due to the significant uncertainties surrounding the COVID-19 pandemic, the extent of the business disruption and the related financial impact cannot be reasonably estimated at this time.

 

13

 

 

In general, our business could be materially and adversely affected by natural disasters, health epidemics or other public safety concerns affecting China and the world, particularly the coronavirus. Natural disasters may give rise to server interruptions, breakdowns, system failures, technology platform failures or internet failures, which could cause the loss or corruption of data or malfunctions of software or hardware as well as adversely affect our ability to operate our business and provide services and solutions. In recent years, there have been outbreaks of epidemics in China and globally, such as the coronavirus, H1N1 flu, and avian flu. Our business operations could be disrupted by any of these epidemics, in addition to any other epidemics. In addition, our results of operations could be adversely affected to the extent that any health epidemic harms the Chinese economy in general. A prolonged outbreak of any of these illnesses or other adverse public health developments in China or elsewhere in the world could have a material adverse effect on our business operations. Such outbreaks could significantly impact our industry, which could severely disrupt our operations and adversely affect our business, financial condition and results of operations. Our headquarters and factory are located in Shenzhen and Nanping, China. Consequently, if any natural disasters, health epidemics or other public safety concerns were to affect Shenzhen or Nanping, our business may experience material disruptions, which may materially and adversely affect our business, financial condition and results of operations.

 

We operate in highly competitive markets and the size and resources of many of our competitors may allow them to compete more effectively than we can, preventing us from achieving profitability.

 

The markets we compete in are highly competitive. Competition may result in pricing pressures, reduced profit margins or lost market share, or a failure to grow our market share, any of which could substantially harm our business and results of operations. We compete for customers primarily on the basis of our brand name, price and the range of products and services that we offer. Across our business, we face competitors who are constantly seeking ideas which will appeal to customers and introducing new products that compete with our products. Many of our competitors have significant competitive advantages, including longer operating histories, larger and broader customer bases, less-costly production, more established relationships with a broader set of suppliers and customers, greater brand recognition and greater financial, research and development, marketing, distribution and other resources than we do. We cannot assure that we will be able to successfully compete against new or existing competitors. If we fail to maintain our reputation and competitiveness, customers demand for our products and projects could decline.

 

In addition to existing competitors, new participants with a popular product idea could gain access to customers and become a significant source of competition in a short period of time. These existing and new competitors may be able to respond more rapidly than us to changes in customer preferences. Our competitors’ products may achieve greater market acceptance than our products and potentially reduce demand for our products, lower our revenues and lower our profitability.  

 

Any decline in the availability or increase in the cost of raw materials could materially impact our earnings.

 

Our products and project installation operations depend heavily on the ready availability of various raw materials. The availability of raw materials may decline, and their prices may fluctuate greatly. If our suppliers are unable or unwilling to provide us with raw materials on terms favorable to us, we may be unable to produce certain products. The inability to produce certain products or installation projects for customers could result in a decrease in profit and damage to our reputation. In the event our raw material costs increase, we may not be able to pass these higher costs on to our customers in full or at all.

 

Our revenue will decrease if the industries in which we and our customers operate experience a protracted slowdown.

 

We are subject to general changes in economic conditions impacting the economy. If the industries in which we and our customers operate do not grow or if there is a contraction in these industries, including if government spending is affected, demand for our business will decrease. Demand for our business is typically affected by a number of overarching economic factors, including interest rates, environmental laws and regulations, government spending, including the availability and magnitude of private and governmental investment in infrastructure projects and the health of the overall economy. If there is a decline in economic activity in China and the markets in which we operate or a protracted slowdown in industries upon which we rely for our sales, demand for our projects, products and our revenue will likewise decrease which would have a materially adverse effect on our business.

 

Our business depends in large part on the success of our vendors and outsourcers, and our brand and reputation may be harmed by actions taken by third parties that are outside of our control. In addition, any material failure, inadequacy, or interruption resulting from such vendors or outsourcers could harm our ability to effectively operate our business.

 

We rely on vendor and outsourcing relationships with third parties for services and systems including manufacturing and logistics. We outsource manufacturing of our integrated rural sewage treatment system primarily to three vendors in the Jiangsu and Fujian provinces. Any shortcoming of a vendor or an outsourcer, particularly an issue affecting the quality of these services or systems, may be attributed by customers to us, thus damaging our reputation and brand value, and potentially affecting our results of operations. In addition, problems with transitioning these services and systems to or operating failures with these vendors and outsourcers could cause delays in product sales, and reduce efficiency of our operations, and significant capital investments could be required to remediate the problem.

 

14

 

  

We primarily rely on a limited number of vendors, and the loss of any such vendor could harm our business.

For the six months ended June 30, 2023, one vendor accounted for 59.5%, respectively, of our total purchases, and three vendors accounted for 12.4%, 11.5%, and 10.8%, respectively, of our accounts payable. For the year ended December 31, 2022, two vendors accounted for 19.7% and 10.0%, respectively, of our total purchases, and two vendors accounted for 12.6% and 10.9%, respectively, of our accounts payable. For the year ended December 31, 2021, four vendors accounted for 40.7%, 23.6%, 11.7% and 10.0%, respectively, of our total purchases, and five vendors accounted for 15.3%, 14.5%, 13.2%, 11.3% and 10.3%, respectively, of our accounts payable. We generally do not have long term agreements or arrangements with our vendors. Our decision in choosing vendors is typically based on the compressive consideration of multiple factors including, among others, pricing, location, delivery terms and line of credit. Our vendors generally provide us with standard parts used in sewage treatment and integrated sewage treatment equipment. Any difficulty in replacing such vendors could negatively affect our performance. If we are prevented or delayed in obtaining products, or components for products, due to political, civil, labor or other factors beyond our control that affect our vendors, including natural disasters or pandemics, our operations may be substantially disrupted, potentially for a significant period of time. Such delays could significantly reduce our revenues and profitability and harm our business while alternative sources of supply are secured.

 

Our dependence on a limited number of customers could adversely affect our business and results of operations.

 

One or a few customers have in the past, and may in the future, represent a substantial portion of our total revenues in any one year or over a period of several years. For example, for the six months ended June 30, 2023, two customers accounted for 52.7% and 23.0%, respectively, of our total revenues, and three customers accounted for 17.6%, 16.7%, and 10.8%, respectively, of our accounts receivable. For the year ended December 31, 2022, three customers accounted for 48.5%, 15.2%, and 14.6%, respectively, of our total revenues, and four customers accounted for 18.2%, 15.1%, 12.9% and 11.2%, respectively, of our accounts receivable. For the year ended December 31, 2021, two customers accounted for 48.9% and 20.8%, respectively, of our total revenues, and four customers accounted for 16.1%, 13.1%, 11.6% and 10.2%, respectively, of our accounts receivable.

 

The customer that accounted for 52.7% of our total revenues for the six months ended June 30, 2023 was attributable to the Lianjiang Project. We expect the percentage of revenue attributable to the Lianjiang Project will decrease once such project is completed. We secured the agreement to undertake the Lianjiang Project in January 2023. The total contracted amount of this project is tentatively fixed at RMB 140 million (approximately $19.1 million). We commenced early-stage construction and material acquisition in January 2023 and expect to complete the entire Lianjiang Project by May 2024. Key terms of our agreement for the Lianjiang Project include the project name and location, duration, price and payment terms, quality, safety and construction requirements, and breach of contract terms.

 

The customer that accounted for less than 10% of our total revenues for the six months ended June 30, 2023 and 15.2% of our total revenues for the year ended December 31, 2022 was attributable to the Wuyishan Project. We expect the percentage of revenue attributable to the Wuyishan Project will decrease once such project is completed. We secured the agreement to undertake the Wuyishan Project in September 2022. The total contracted amount of this project is tentatively fixed at RMB 37 million (approximately $5.1 million). We commenced early-stage construction and material acquisition in September 2022 and completed the entire Wuyishan Project in August 2023 according to verbal discussions with such customer. Key terms of our agreement for the Wuyishan Project include the project name and location, duration, price and payment terms, quality, safety and construction requirements, and breach of contract terms. Additionally, we entered into a separate agreement with this customer for extended scope of work in July 2023, which we refer to as the Wuyishan Project – Phase 2. The total contracted amount of Wuyishan Project – Phase 2 is tentatively fixed at RMB 30 million (approximately $4.1 million). We expect to complete the entire Wuyishan Project – Phase 2 by May 2024. Key terms of our agreement for the Wuyishan Project – Phase 2 project include the project name and location, duration, price and payment terms, quality, safety and construction requirements, and breach of contract terms.

 

The customer that accounted for 14.6% of our total revenues for the year ended December 31, 2022 and 48.9% of our total revenues for the year ended December 31, 2021 was attributable to the Zhongshan Project. The Zhongshan Project accounted for less than 10% of our total revenues for the six months ended June 30, 2023. We expect the percentage of revenue attributable to the Zhongshan Project will decrease once such project is completed. We secured the agreement to undertake the Zhongshan Project in April 2021. The total contracted amount of this project is tentatively fixed at RMB 180 million (approximately $26.9 million), and is subject to the actual construction quantity settlement, per the agreement. We commenced early-stage construction and material acquisition in June 2021 and expect to complete the entire Zhongshan Project by the end of June 2024 according to verbal discussions with such customer. Key terms of our agreement for the Zhongshan Project include the project name and location, duration, price and payment terms, quality, safety and construction requirements, and breach of contract terms. Pursuant to the agreement for the Zhongshan Project, liquidated damages equal to: (i) 0.1% of the total contract amount each day must be paid by Shenzhen CDT if it fails to complete a task within the time specified in the contract, and (ii) 10% of the total contract amount may be required to be paid by Shenzhen CDT if a task is not completed within 45 days of delay and if the customer chooses to terminate the contract and request Shenzhen CDT to pay such liquidated damages. Therefore, if such circumstances occur, Shenzhen CDT may be required to pay such liquidated damages, which could result in significant cash expenditures.

 

The customer that accounted for 23.0% of our total revenues for the six months ended June 30, 2023, attributable to four different stages of such project, 48.5% of our total revenues for the year ended December 31, 2022, attributable to two different stages of such project, and 20.8% of our total revenues for the year ended December 31, 2021 was attributable to the Guankou Project. We do not have long term agreements or arrangements with such customer. We expect the percentage of revenue attributable to the Guankou Project will decrease as such project has been completed. We secured the agreement to undertake the Guankou Project in September 2021. The total contracted amount of this project is tentatively fixed at RMB 95 million (approximately $14.2 million), and is subject to the actual construction quantity settlement, per the agreement. We commenced early-stage construction and material acquisition in October 2021 and completed the entire Guankou Project in March 2023 according to verbal discussions with such customer. Key terms of our agreement for the Guankou Project include the project name and location, duration, price and payment terms, quality, safety and construction requirements, and breach of contract terms. Therefore, the loss of business from any one of such customers could have a material adverse effect on our business or results of operations. In addition, a default or delay in payment on a significant scale by a customer could materially adversely affect our business, results of operations, cash flows and financial condition.

  

15

 

  

We face substantial inventory risk, which if such risk is not addressed could have a material adverse effect on our business.

 

We must order materials for our products and projects and build inventory in advance of production. We typically acquire materials through a combination of purchase orders, supplier contracts and open orders, in each case based on projected demand.

 

As our markets are competitive and subject to technology and price changes, there is a risk that we will forecast incorrectly and order or produce incorrect amounts of products or not fully utilize purchase commitments. If we were unsuccessful in accurately quantifying appropriate levels of inventory, our business, financial condition and results of operation may be materially and adversely affected.

 

Any disruption in the supply chain of raw materials and our products could adversely impact our ability to produce and deliver products which could have a material adverse effect on our business.

 

In order to optimize our product manufacturing, we must manage our supply chain for raw materials and delivery of our products. Supply chain fragmentation and local protectionism within China further complicates supply chain disruption risks. Local administrative bodies and physical infrastructure built to protect local interests may pose transportation challenges for raw material transportation as well as product delivery. In addition, profitability and volume could be negatively impacted by limitations inherent within the supply chain, including competitive, governmental, legal, natural disasters, and other events that could impact both supply and price. Any of these occurrences could cause significant disruptions to our supply chain, manufacturing capability and distribution system that could adversely impact our ability to produce and deliver products. If we were unsuccessful in maintaining efficient operation of our supply chain, our business, financial condition and results of operation may be materially and adversely affected.

 

Our return on investment in client projects may be different from our projections.

 

Our return on investment in client projects typically takes some time to materialize. At the initial stages of project investment and construction, the depreciation of fixed assets may negatively affect our operating results. In addition, the projects may be subject to changes in market conditions during the installation and implementation phases. Changes in industry policy, the progress of the projects, project management, raw materials supply, market conditions and other variables may affect the profitability and the time in which we profit on projects, which may be different from our initial forecast, thus affecting the actual return on investment of the projects.

 

Issues or defects with products may lead to product liability, personal injury or property damage claims, recalls, withdrawals, replacements of products, or regulatory actions by governmental authorities that could divert resources, affect business operations, decrease sales, increase costs, and put us at a competitive disadvantage, any of which could have a significant adverse effect on our financial condition.

 

We may experience issues or defects with products that may lead to product liability, personal injury or property damage claims, recalls, withdrawals, replacements of products, or regulatory actions by governmental authorities. Any of these activities could result in increased governmental scrutiny, harm to our reputation, reduced demand by customers for our products, decreased willingness by our service providers to provide support for those products, absence or increased cost of insurance if insurance is available, or additional safety and testing requirements. Such results could divert development and management resources, adversely affect our business operations, decrease sales, increase legal fees and other costs, and put us at a competitive disadvantage compared to other companies not affected by similar issues with products, any of which could have a significant adverse effect on our financial condition and results of operations.

 

Our future growth depends in part on new products and new technology innovation, and failure to invent and innovate could adversely impact our business prospects.

 

Our future growth depends in part on maintaining our current products in new and existing markets, as well as our ability to develop new products and technologies to serve such markets. To the extent that competitors develop competitive products and technologies, or new products or technologies that achieve higher customer satisfaction, our business prospects could be adversely impacted. In addition, regulatory approvals for new products or technologies may be required, these approvals may not be obtained in a timely or cost effective manner, adversely impacting our business prospects.

 

16

 

 

Changes in demand for our products and business relationships with key customers and vendors may negatively affect operating results.

 

To achieve our objectives, we must develop and sell products that are subject to the demands of our customers. This is dependent on several factors, including managing and maintaining relationships with key customers, responding to the rapid pace of technological change and obsolescence, which may require increased investment by us or result in greater pressure to commercialize developments rapidly or at prices that may not fully recover the associated investment, and the effect on demand resulting from customers’ research and development, capital expenditure plans and capacity utilization. If we are unable to keep up with our customers’ demands, our sales, earnings and operating results may be negatively affected.

 

We may be unable to deliver our backlog on time, which could affect future sales and profitability and our relationships with customers.

 

Our ability to meet customer delivery schedules for backlog is dependent on a number of factors including sufficient manufacturing capacity, adequate supply channel access to raw materials and other inventory required for production, an adequately trained and capable workforce, engineering expertise for certain projects and appropriate planning and scheduling of manufacturing resources. Failure to deliver in accordance with customer expectations could subject us to contract cancellations and financial penalties, and may result in damage to existing customer relationships and could have a material adverse effect on our business, financial condition and results of operations.

 

Our future success depends in part on our ability to retain key executives and to attract, retain and motivate qualified personnel.

 

We are highly dependent on the principal members of our executive team listed in the section entitled “Management” located elsewhere in this prospectus, the loss of whose services may adversely impact the achievement of our objectives. Recruiting and retaining other qualified employees for our business, including technical personnel, will also be critical to our success. Competition for skilled personnel is intense and the turnover rate can be high. We may not be able to attract and retain personnel on acceptable terms given the competition among numerous companies for individuals with similar skill sets. The inability to recruit or loss of the services of any executive or key employee could adversely affect our business.

 

We will need to expand our organization, and we may experience difficulties in managing this growth, which could disrupt our operations.

 

As of December 31, 2023, we had 114 employees, of whom 107 were full-time employees, 7 were part-time employees and all were located in China. As our Company matures, we expect to expand our employee base. In addition, we intend to grow by expanding our business, increasing market penetration of our existing products, developing new products and increasing our targeting of certain markets in China. Future growth would impose significant additional responsibilities on our management, including the need to develop and improve our existing administrative and operational systems and our financial and management controls and to identify, recruit, maintain, motivate, train, manage and integrate additional employees, consultants and contractors. Also, our management may need to divert a disproportionate amount of its attention away from our day-to-day activities and devote a substantial amount of time to managing these growth activities. We may not be able to effectively manage the expansion of our operations, which may result in weaknesses in our infrastructure, give rise to operational mistakes, loss of business opportunities, loss of employees and reduced productivity among remaining employees. Future growth could require significant capital expenditures and may divert financial resources from other projects, such as the development of our existing or future product candidates. If our management is unable to effectively manage our growth, our expenses may increase more than expected, our ability to generate and grow revenue could be reduced, and we may not be able to implement our business strategy. Our future financial performance and our ability to compete effectively will depend, in part, on our ability to effectively manage any future growth.

 

Failure of beneficial owners of our shares who are PRC residents to comply with certain PRC foreign exchange regulations could restrict our ability to distribute profits, restrict our overseas and cross-border investment activities and subject us to liability under PRC law.

 

SAFE has promulgated regulations, including the Notice on Relevant Issues Relating to Foreign Exchange Control on Domestic Residents' Investment and Financing and Round-Trip Investment through Special Purpose Vehicles, or SAFE Circular 37, and its appendices. These regulations require PRC residents, including PRC institutions and individuals, to register with local branches of SAFE in connection with their direct establishment or indirect control of an offshore entity, for the purpose of overseas investment and financing, with such PRC residents' legally owned assets or equity interests in domestic enterprises or offshore assets or interests, referred to in SAFE Circular 37 as a "special purpose vehicle", or SPV. The term "control" under SAFE Circular 37 is broadly defined as the operation rights, beneficiary rights or decision-making rights acquired by the PRC residents in the offshore SPVs by such means as acquisition, trust, proxy, voting rights, repurchase, convertible bonds or other arrangements. SAFE Circular 37 further requires amendment to the registration in the event of any significant changes with respect to the SPV, such as increase or decrease of capital contributed by PRC individuals, share transfer or exchange, merger, division or other material event. In the event that a PRC shareholder holding interests in a SPV fails to fulfill the required SAFE registration, the PRC subsidiaries of that SPV may be prohibited from making profit distributions to the offshore parent and from carrying out subsequent cross-border foreign exchange activities, and the SPV may be restricted in its ability to contribute additional capital into its PRC subsidiaries. Further, failure to comply with the various SAFE registration requirements described above could result in liability under PRC law for foreign exchange evasion.

 

These regulations apply to our direct and indirect shareholders who are PRC residents and may apply to any offshore acquisitions or share transfers that we make in the future if our shares are issued to PRC residents. However, in practice, different local SAFE branches may have different views and procedures on the application and implementation of SAFE regulations, and there remains uncertainty with respect to its implementation. We cannot assure you that these direct or indirect shareholders of our company who are PRC residents will be able to successfully update the registration of their direct and indirect equity interest as required in the future. If they fail to update the registration, our PRC subsidiaries could be subject to fines and legal penalties, and SAFE could restrict our cross-border investment activities and our foreign exchange activities, including restricting our PRC subsidiaries’ ability to distribute dividends to, or obtain loans denominated in foreign currencies from, our company, or prevent us from contributing additional capital into our PRC subsidiaries. As a result, our business operations and our ability to make distributions to you could be materially and adversely affected. In addition, non-U.S. shareholders may experience unfavorable tax consequences if such non-U.S. shareholders are determined to be a resident enterprise for PRC tax purposes. See “Regulation—Legal Regulations on Tax in the PRC” and “Material Income Tax Considerations— PRC Taxation” for further information.

 

17

 

 

Failure to make adequate contributions to various employee benefits plans as required by PRC regulations may subject us to penalties.

 

Companies operating in China are required to participate in various government sponsored employee benefit plans, including certain social insurance, housing funds and other welfare-oriented payment obligations, and contribute to the plans in amounts equal to certain percentages of salaries, including bonuses and allowances, of employees up to a maximum amount specified by the local government from time to time at locations where they operate their businesses. The requirement of employee benefit plans has not been implemented consistently by the local governments in China given the different levels of economic development in different locations. If we fail to make contributions to various employee benefit plans and to comply with applicable PRC labor-related laws in the future, we may be subject to late payment penalties. We may be required to make up the contributions for these plans as well as to pay late fees and fines. If we are subject to late fees or fines in relation to the underpaid employee benefits, our financial condition and results of operations may be adversely affected.

 

We do not have business insurance coverage. Any future business liability, disruption or litigation we experience might divert management focus from our business and could significantly impact our financial results.

 

Availability of business insurance products and coverage in China is limited, and most such products are expensive in relation to the coverage offered. We have determined that the risks of disruption, cost of such insurance and the difficulties associated with acquiring such insurance on commercially reasonable terms make it impractical for us to maintain such insurance. As a result, we do not have any business liability, disruption or litigation insurance coverage for our operations in China. Accordingly, a business disruption, litigation or natural disaster may result in substantial costs and divert management’s attention from our business, which would have an adverse effect on our results of operations and financial condition.

 

We may require additional financing in the future and our operations could be curtailed if we are unable to obtain required additional financing when needed.

 

In addition to the proceeds to be raised in this offering, we may need to obtain additional debt or equity financing to fund future capital expenditures. While we do not anticipate seeking additional financing in the immediate future, any additional equity financing may result in dilution to the holders of our outstanding ordinary shares. Additional debt financing may impose affirmative and negative covenants that restrict our freedom to operate our business. We cannot guaranty that we will be able to raise proceeds in this offering or obtain additional financing on terms that are acceptable to us, or any financing at all, and the failure to obtain sufficient financing could adversely affect our business operations.

 

Risks Related to Intellectual Property

 

If we are not able to adequately protect our proprietary intellectual property and information, and protect against third party claims that we are infringing on their intellectual property rights, our results of operations could be adversely affected.

 

The value of our business depends in part on our ability to protect our intellectual property and information, including our patents, trade secrets, and rights under agreements with third parties, in China and around the world, as well as our customer, employee, and customer data. Third parties may try to challenge our ownership of our intellectual property in China and around the world. In addition, intellectual property rights and protections in China may be insufficient to protect material intellectual property rights in China. Further, our business is subject to the risk of third parties counterfeiting our products or infringing on our intellectual property rights. The steps we have taken may not prevent unauthorized use of our intellectual property. We may need to resort to litigation to protect our intellectual property rights, which could result in substantial costs and diversion of resources. If we fail to protect our proprietary intellectual property and information, including with respect to any successful challenge to our ownership of intellectual property or material infringements of our intellectual property, this failure could have a significant adverse effect on our business, financial condition, and results of operations.

 

If we are unable to adequately protect our intellectual property rights, or if we are accused of infringing on the intellectual property rights of others, our competitive position could be harmed or we could be required to incur significant expenses to enforce or defend our rights.

 

Our commercial success will depend in part on our success in obtaining and maintaining issued patents, and other intellectual property rights in China and elsewhere and protecting our proprietary technology. If we do not adequately protect our intellectual property and proprietary technology, competitors may be able to use our technologies or the goodwill we have acquired in the marketplace and erode or negate any competitive advantage we may have, which could harm our business and ability to achieve profitability. The core of our business is our proprietary systems and technology, together with our experience and expertise in waste treatment services, particularly in rural sewage treatment and septic tank treatment. As of December 31, 2023, we had 2 invention patents, 38 utility model patents, 3 trademarks and 2 computer software copyrights. We are continually working to upgrade our quick separation technology and septic tank treatment systems through independent research and development and partnerships with third-party institutions to further develop our mobile septic tank treatment system.

 

We cannot provide any assurances that any of our patents have, or that any of our pending patent applications that mature into issued patents will include, claims with a scope sufficient to protect our products, any additional features we develop for our products or any new products. Other parties may have developed technologies that may be related or competitive to our system, may have filed or may file patent applications and may have received or may receive patents that overlap or conflict with our patent applications, either by claiming the same methods or devices or by claiming subject matter that could dominate our patent position. Our patent position may involve complex legal and factual questions, and, therefore, the scope, validity and enforceability of any patent claims that we may obtain cannot be predicted with certainty. Patents, if issued, may be challenged, deemed unenforceable, invalidated or circumvented. Proceedings challenging our patents could result in either loss of the patent or denial of the patent application or loss or reduction in the scope of one or more of the claims of the patent or patent application. In addition, such proceedings may be costly. Thus, any patents that we may own may not provide any protection against competitors. Furthermore, an adverse decision in an interference proceeding can result in a third party receiving the patent right sought by us, which in turn could affect our ability to commercialize our products. 

 

Though an issued patent is presumed valid and enforceable, its issuance is not conclusive as to its validity or its enforceability and it may not provide us with adequate proprietary protection or competitive advantages against competitors with similar products. Competitors could purchase our products and attempt to replicate some or all of the competitive advantages we derive from our development efforts, willfully infringe our intellectual property rights, design around our patents, or develop and obtain patent protection for more effective technologies, designs or methods. We may be unable to prevent the unauthorized disclosure or use of our technical knowledge or trade secrets by consultants, suppliers, vendors, former employees and current employees.

 

18

 

 

Our ability to enforce our patent rights depends on our ability to detect infringement. It may be difficult to detect infringers who do not advertise the components that are used in their products. Moreover, it may be difficult or impossible to obtain evidence of infringement in a competitor's or potential competitor's product. We may not prevail in any lawsuits that we initiate and the damages or other remedies awarded if we were to prevail may not be commercially meaningful.

 

In addition, proceedings to enforce or defend our patents could put our patents at risk of being invalidated, held unenforceable or interpreted narrowly. Such proceedings could also provoke third parties to assert claims against us, including that some or all of the claims in one or more of our patents are invalid or otherwise unenforceable. If any of our patents covering our products are invalidated or found unenforceable, or if a court found that valid, enforceable patents held by third parties covered one or more of our products, our competitive position could be harmed or we could be required to incur significant expenses to enforce or defend our rights.

 

The degree of future protection for our proprietary rights is uncertain, and we cannot ensure that:

 

  any of our patents, or any of our pending patent applications, if issued, will include claims having a scope sufficient to protect our products;
     
  any of our pending patent applications will be issued as patents;
     
  we will be able to successfully commercialize our products on a substantial scale, if approved, before our relevant patents we may have expire;
     
  we were the first to make the inventions covered by each of our patents and pending patent applications;
     
  we were the first to file patent applications for these inventions;
     
  others will not develop similar or alternative technologies that do not infringe our patents; any of our patents will be found to ultimately be valid and enforceable;
     
  any patents issued to us will provide a basis for an exclusive market for our commercially viable products, will provide us with any competitive advantages or will not be challenged by third parties;
     
  we will develop additional proprietary technologies or products that are separately patentable; or
     
  our commercial activities or products will not infringe upon the patents of others.

 

We rely, in part, upon unpatented trade secrets, unpatented know-how and continuing technological innovation to develop and maintain our competitive position. Further, our trade secrets could otherwise become known or be independently discovered by our competitors.

 

Litigation or other proceedings or third-party claims of intellectual property infringement could require us to spend significant time and money and could prevent us from selling our products or affect our stock price. 

 

Our commercial success will depend in part on not infringing the patents or violating the other proprietary rights of others. Significant litigation regarding patent rights occurs in our industry. Our competitors in both the United States and abroad, many of which have substantially greater resources and have made substantial investments in patent portfolios and competing technologies, may have applied for or obtained or may in the future apply for and obtain, patents that will prevent, limit or otherwise interfere with our ability to make, use and sell our products. We do not always conduct independent reviews of patents issued to third parties. In addition, patent applications in China and elsewhere can be pending for many years before issuance, or unintentionally abandoned patents or applications can be revived, so there may be applications of others now pending or recently revived patents of which we are unaware. These applications may later result in issued patents, or the revival of previously abandoned patents, that will prevent, limit or otherwise interfere with our ability to make, use or sell our products. Third parties may, in the future, assert claims that we are employing their proprietary technology without authorization, including claims from competitors or from non-practicing entities that have no relevant product revenue and against whom our own patent portfolio may have no deterrent effect. As we continue to commercialize our products in their current or updated forms, launch new products and enter new markets, we expect competitors may claim that one or more of our products infringe their intellectual property rights as part of business strategies designed to impede our successful commercialization and entry into new markets. The large number of patents, the rapid rate of new patent applications and issuances, the complexities of the technology involved, and the uncertainty of litigation may increase the risk of business resources and management's attention being diverted to patent litigation. We have, and we may in the future, receive letters or other threats or claims from third parties inviting us to take licenses under, or alleging that we infringe, their patents.

 

Moreover, we may become party to future adversarial proceedings regarding our patent portfolio or the patents of third parties. Patents may be subjected to opposition, post-grant review or comparable proceedings lodged in various foreign, both national and regional, patent offices. The legal threshold for initiating litigation or contested proceedings may be low, so that even lawsuits or proceedings with a low probability of success might be initiated. Litigation and contested proceedings can also be expensive and time-consuming, and our adversaries in these proceedings may have the ability to dedicate substantially greater resources to prosecuting these legal actions than we can. We may also occasionally use these proceedings to challenge the patent rights of others. We cannot be certain that any particular challenge will be successful in limiting or eliminating the challenged patent rights of the third party.

 

Any lawsuits resulting from such allegations could subject us to significant liability for damages and invalidate our proprietary rights. Any potential intellectual property litigation also could force us to do one or more of the following:

 

  stop making, selling or using products or technologies that allegedly infringe the asserted intellectual property;
     
  lose the opportunity to license our technology to others or to collect royalty payments based upon successful protection and assertion of our intellectual property rights against others; incur significant legal expenses;

 

19

 

 

  pay substantial damages or royalties to the party whose intellectual property rights we may be found to be infringing;
     
  pay the attorney's fees and costs of litigation to the party whose intellectual property rights we may be found to be infringing;
     
  redesign those products that contain the allegedly infringing intellectual property, which could be costly, disruptive and infeasible; and
     
  attempt to obtain a license to the relevant intellectual property from third parties, which may not be available on reasonable terms or at all, or from third parties who may attempt to license rights that they do not have.

 

Any litigation or claim against us, even those without merit, may cause us to incur substantial costs, and could place a significant strain on our financial resources, divert the attention of management from our core business and harm our reputation. If we are found to infringe the intellectual property rights of third parties, we could be required to pay substantial damages (which may be increased up to three times of awarded damages) and/or substantial royalties and could be prevented from selling our products unless we obtain a license or are able to redesign our products to avoid infringement. Any such license may not be available on reasonable terms, if at all, and there can be no assurance that we would be able to redesign our products in a way that would not infringe the intellectual property rights of others. We could encounter delays in product introductions while we attempt to develop alternative methods or products. If we fail to obtain any required licenses or make any necessary changes to our products or technologies, we may have to withdraw existing products from the market or may be unable to commercialize one or more of our products.

 

If we are unable to protect the confidentiality of our trade secrets, our business and competitive position could be harmed. 

 

In addition to patent protection, we also rely upon trade secret protection as well as non-disclosure agreements with our employees, consultants and third parties, and may in the future rely on copyright and/or trademark protection, to protect our confidential and proprietary information. In addition to contractual measures, we try to protect the confidential nature of our proprietary information using commonly accepted physical and technological security measures. Such measures may not, for example, in the case of misappropriation of a trade secret by an employee or third party with authorized access, provide adequate protection for our proprietary information. Our security measures may not prevent an employee or consultant from misappropriating our trade secrets and providing them to a competitor, and recourse we take against such misconduct may not provide an adequate remedy to protect our interests fully. Unauthorized parties may also attempt to copy or reverse engineer certain aspects of our products that we consider proprietary. Enforcing a claim that a party illegally disclosed or misappropriated a trade secret can be difficult, expensive and time-consuming, and the outcome is unpredictable. Even though we use commonly accepted security measures, trade secret violations are often a matter of state law, and the criteria for protection of trade secrets can vary among different jurisdictions. In addition, trade secrets may be independently developed by others in a manner that could prevent legal recourse by us. If any of our confidential or proprietary information, such as our trade secrets, were to be disclosed or misappropriated, or if any such information was independently developed by a competitor, our business and competitive position could be harmed.

 

Third parties may assert ownership or commercial rights to inventions we develop, which could have a material adverse effect on our business.

 

Third parties may in the future make claims challenging the inventorship or ownership of our intellectual property. Any infringement claims or lawsuits, even if not meritorious, could be expensive and time consuming to defend, divert management’s attention and resources, require us to redesign our products and services, if feasible, require us to pay royalties or enter into licensing agreements in order to obtain the right to use necessary technologies, and/or may materially disrupt the conduct of our business.

 

In addition, we may face claims by third parties that our agreements with employees, contractors or third parties obligating them to assign intellectual property to us are ineffective or in conflict with prior or competing contractual obligations of assignment, which could result in ownership disputes regarding intellectual property we have developed or will develop and interfere with our ability to capture the commercial value of such intellectual property. Litigation may be necessary to resolve an ownership dispute, and if we are not successful, we may be precluded from using certain intellectual property or may lose our exclusive rights in that intellectual property. Either outcome could harm our business and competitive position.

 

Third parties may assert that our employees or contractors have wrongfully used or disclosed confidential information or misappropriated trade secrets, which could result in litigation.

 

We may employ individuals who previously worked with other companies, including our competitors or potential competitors. Although we try to ensure that our employees and contractors do not use the proprietary information or know-how of others in their work for us, we may be subject to claims that we or our employees or contractors have inadvertently or otherwise used or disclosed intellectual property or personal data, including trade secrets or other proprietary information, of a former employer or other third party. Litigation may be necessary to defend against these claims. If we fail in defending any such claims or settling those claims, in addition to paying monetary damages or a settlement payment, we may lose valuable intellectual property rights or personnel. Even if we are successful in defending against such claims, litigation could result in substantial costs and be a distraction to management and other employees.

 

Our computer systems and operations may be vulnerable to security breaches, which could adversely affect our business.

 

We believe the safety of our computer network and our secure transmission of information over the internet will be essential to our operations and our services. Our network and our computer infrastructure are potentially vulnerable to physical breaches or to the introduction of computer viruses, abuse of use and similar disruptive problems and security breaches that could cause loss (both economic and otherwise), interruptions, delays or loss of services to our users. It is possible that advances in computer capabilities or new technologies could result in a compromise or breach of the technology we use to protect user transaction data. A party that is able to circumvent our security systems could misappropriate proprietary information, cause interruptions in our operations or utilize our network without authorization. Security breaches also could damage our reputation and expose us to a risk of loss, litigation and possible liability. We cannot guarantee you that our security measures will prevent security breaches. 

 

20

 

 

Risks Related to Doing Business in China

 

We are based in, and our operations are located in, China through our subsidiaries. Our ability to operate in China may be impaired by changes in Chinese laws and regulations, including those relating to taxation, environmental regulation, restrictions on foreign investment, and other matters.

  

Because our operations are conducted in China through our subsidiaries, the Chinese government may exercise significant oversight and discretion over the conduct of our business, may intervene in or influence our operations at any time, and may exert more control over offerings conducted overseas and/or foreign investment in China-based issuers, which could result in a material change in our operations and/or the value of our ordinary shares. The Chinese government has exercised and continues to exercise substantial control over virtually every sector of the Chinese economy through regulation and state ownership. The central Chinese government or local governments having jurisdiction within China may impose new, stricter regulations, or interpretations of existing regulations, that would require additional expenditures and efforts on our part to ensure our compliance with such regulations or interpretations. As such, our subsidiaries in the PRC may be subject to governmental and regulatory interference in the provinces in which they operate. We could also be subject to regulation by various political and regulatory entities, including local and municipal agencies and other governmental subdivisions. Our ability to operate in China may be impaired by any such laws or regulations, or any changes in laws and regulations in the PRC. We may incur increased costs necessary to comply with existing and future laws and regulations or penalties for any failure to comply.

 

The Chinese government recently promulgated a series of new statements and actions to regulate business operations in China. For example, Cybersecurity Review Measures was released on December 28, 2021 and became effective on February 15, 2022, and provides that critical information infrastructure operators, or CIIOs, that intend to purchase Internet products and online platform operators engaging in data processing activities that affect or may affect national security must be subject to cybersecurity review by the Cybersecurity Review Office of the PRC. According to the Cybersecurity Review Measures, a cybersecurity review assesses potential national security risks that may arise in connection with any procurement of data processing. The Cybersecurity Review Measures further requires that an online platform operator that possess personal data of more than one million users shall declare to the Office of Cybersecurity Review for cybersecurity review before listing in a foreign country. As of the date of this prospectus, we have not received any notice from any authorities identifying us as a CIIO or an online platform operator or requiring us to go through cybersecurity review by the CAC. We believe that our operations and listing will not be affected and that we will not be subject to cybersecurity review by the CAC for this offering, given that: (i) as a waste treatment company, we and our PRC subsidiaries are unlikely to be classified as CIIOs or online platform operators by the PRC regulatory agencies; (ii) our customers are enterprises in different provinces in China and we do not have customers who are individuals; as a result, we possess personal data of fewer than one million individuals in our business operations as of the date of this prospectus and do not anticipate that we will be collecting over one million individuals’ personal information in the near future, which we understand might otherwise subject us to the Cybersecurity Review Measures; and (iii) data processing in our industry is unlikely to have a bearing on national security and therefore is unlikely to be classified as core or important data by the relevant authorities. There remains uncertainty, however, as to how the Cybersecurity Review Measures will be interpreted or implemented and whether the PRC regulatory agencies, including the CAC, may adopt new laws, regulations, rules, or detailed implementations and interpretations related to the Cybersecurity Review Measures. If any such new laws, regulations, rules, or implementations and interpretations come into effect, we will take all reasonable measures and actions to comply with them and to minimize any adverse effects on our business. We cannot guarantee, however, that we will not be subject to cybersecurity review in the future. If such review is or becomes necessary, we may be required to suspend our operations or experience other disruption to our operations. Cybersecurity review could also result in negative publicity with respect to our Company and diversion of our managerial and financial resources, which could materially and adversely affect our business, financial conditions, and results of operations.

 

We could be subject to regulation by various political and regulatory entities, including local and municipal agencies and other governmental subdivisions, and rules and regulations in China can change quickly with little or no advance notice which could result in a material change in our operations and/or the value of our ordinary shares.

 

We may incur increased costs necessary to comply with existing and future laws and regulations or penalties for any failure to comply. While we believe, apart from the completed filing with the CSRC per the requirements of the Trial Measures, as described below, we are currently not required to obtain any other permission from any PRC authorities to operate or to issue our ordinary shares to foreign investors, and we believe we and our subsidiaries are not required to obtain any other permission or approval relating to our ordinary shares from PRC authorities, there are risks that such actions could require permission or consent from various PRC authorities. In addition, we believe that we and our subsidiaries are not required to obtain permission or approval relating to our ordinary shares from PRC authorities, including the CSRC, apart from the completed filing with the CSRC per the requirements of the Trial Measures, and the CAC, for our subsidiaries’ operations, nor have we or our subsidiaries received any other approvals or denial for our subsidiaries’ operations with respect to this offering. Therefore, the understanding is that we and our subsidiaries are not currently covered by permission requirements from the CSRC, apart from the completed filing with the CSRC per the requirements of the Trial Measures, the CAC or any other governmental agency that is required to approve our operations, and no such permissions or approvals have been received or denied, apart from the completed filing procedures with the CSRC. We have completed the filing with the CSRC and obtained the required Filing Notice from the CSRC regarding this offering on November 28, 2023, which serves as notification from the CSRC of our completion of the required filing procedures with the CSRC for this offering. The main contents of the Filing Notice are as follows: (1) we propose to issue not more than 2,300,000 ordinary shares (exclusive of the ordinary shares underlying the representative’s warrants) and list them on The Nasdaq Stock Market LLC in the United States; (2) from the date of issuance of the Filing Notice to the completion of this offering, we shall, in accordance with the relevant provisions of the overseas issuance and listing of domestic enterprises, namely the Circular, the Trial Measures, and five supporting guidelines, report any major event to the CSRC through its filing management information system; (3) we shall, within 15 working days after completion of this offering, report the issuance and listing of our shares in connection with this offering through the CSRC’s filing management information system; and (4) if we fail to complete this offering within 12 months of the issuance date of the Filing Notice and intend to continue to proceed with this offering, we shall update the filing materials with the CSRC. Our PRC legal counsel, Beijing Dacheng Law Offices, LLP (Fuzhou), has advised us that, based on its understanding of the current PRC laws and regulations, apart from the requirement of reporting the issuance and listing of our shares in connection with this offering within 15 working days after the completion of this offering as stated in the Filing Notice and above, we and our subsidiaries are not required to obtain any other permission, consent, or approval from, or make any filing or other notice to, the PRC authorities, including the CSRC, relating to this offering.

 

21

 

 

Recent statements by the Chinese government have indicated an intent to exert more oversight and control over offerings that are conducted overseas and/or foreign investments in China based issuers. Recently, the General Office of the Central Committee of the Communist Party of China and the General Office of the State Council jointly issued the “Opinions on Severely Cracking Down on Illegal Securities Activities According to Law”, or the Opinions, which were made available to the public on July 6, 2021. The Opinions emphasized the need to strengthen administration over illegal securities activities and the need to strengthen supervision with respect to overseas listings of Chinese companies. Certain measures, such as promoting effective regulatory systems, will be implemented to address the risks involved with the overseas listing of Chinese firms, cybersecurity, data privacy protection requirements, and other similar matters. The Opinions and any related implementing rules to be enacted may subject us to compliance requirements in the future. There is also a risk that approval by the CSRC may be required in connection with this offering. See “—The approval of the CSRC is required in connection with this offering under PRC law.” Given the current regulatory environment in the PRC, we are still subject to the uncertainty of different interpretation and enforcement of the rules and regulations in the PRC adverse to us, which may be announced or implemented with little or no advance notice. Our operations could be adversely affected, directly or indirectly, by existing or future laws and regulations relating to our business or industry. Accordingly, the Chinese government’s actions in the future, including any decision to intervene in or influence our operations at any time or to exert control over an offering of securities conducted overseas and/or foreign investment in China-based issuers, may cause us to make material changes to our operations, may limit or completely hinder our ability to offer or continue to offer securities to investors, and/or may cause the value of such securities to significantly decline or be worthless.

  

In addition, on February 17, 2023, the CSRC announced the Circular and released a set of new regulations which consists of the Trial Measures and five supporting guidelines. The Trial Measures came into effect on March 31, 2023. The Trial Measures refine the regulatory system by subjecting both direct and indirect overseas offering and listing activities to the CSRC filing-based administration. Requirements for filing entities, time points and procedures are specified. A PRC domestic company that seeks to offer and list securities in overseas markets shall fulfill the filing procedure with the CSRC per the requirements of the Trial Measures. Where a PRC domestic company seeks to indirectly offer and list securities in overseas markets, the issuer shall designate a major domestic operating entity, which shall, as the domestic responsible entity, file with the CSRC. The Trial Measures also lay out requirements for the reporting of material events. Breaches of the Trial Measures, such as offering and listing securities overseas without fulfilling the filing procedures, shall bear legal liabilities, including a fine between RMB 1.0 million (approximately $150,000) and RMB 10.0 million (approximately $1.5 million), and the Trial Measures heighten the cost for offenders by enforcing accountability with administrative penalties and incorporating the compliance status of relevant market participants into the Securities Market Integrity Archives.

 

The Trial Measures provide that if an issuer meets both of the following conditions, the overseas securities offering and listing conducted by such issuer will be determined as an indirect overseas offering and listing which shall be subject to the filing procedure set forth under the Trial Measures: (i) 50% or more of the issuer’s operating revenue, total profit, total assets or net assets as documented in its audited consolidated financial statements over the same period for the most recent accounting year is accounted for by domestic companies; and (ii) the main parts of the issuer’s business activities are conducted in the PRC, or its main places of business are located in the PRC, or the senior managers in charge of its business operation and management are mostly Chinese citizens or domiciled in the PRC. As confirmed by our PRC counsel, this offering is an indirect overseas offering and listing.

 

According to the Circular, since the date of effectiveness of the Trial Measures on March 31, 2023, PRC domestic enterprises falling within the scope of filing that have been listed overseas or met the following circumstances are “existing enterprises”: before the effectiveness of the Trial Measures on March 31, 2023, the application for indirect overseas issuance and listing has been approved by the overseas regulators or overseas stock exchanges (such as the registration statement has become effective on the U.S. market), it is not required to perform issuance and listing supervision procedures of the overseas regulators or overseas stock exchanges, and the overseas issuance and listing will be completed by September 30, 2023. Existing enterprises are not required to file with the CSRC immediately, and filings with the CSRC should be made as required if they involve refinancings and other filing matters. PRC domestic enterprises that have submitted valid applications for overseas issuance and listing but have not been approved by overseas regulatory authorities or overseas stock exchanges at the date of effectiveness of the Trial Measures on March 31, 2023 can reasonably arrange the timing of filing applications with the CSRC and shall complete the filing with the CSRC before the overseas issuance and listing.

We are not classified as an existing enterprise. We therefore are required to file with the CSRC and shall complete the filing with the CSRC in accordance with the Trial Measures before this offering. On August 2, 2023, we submitted our filing materials and applied for registration to the CSRC in accordance with the requirements of the Trial Measures. We have completed the filing with the CSRC and obtained the required Filing Notice from the CSRC regarding this offering on November 28, 2023, which serves as notification from the CSRC of our completion of the required filing procedures with the CSRC for this offering. The main contents of the Filing Notice are as follows: (1) we propose to issue not more than 2,300,000 ordinary shares (exclusive of the ordinary shares underlying the representative’s warrants) and list them on The Nasdaq Stock Market LLC in the United States; (2) from the date of issuance of the Filing Notice to the completion of this offering, we shall, in accordance with the relevant provisions of the overseas issuance and listing of domestic enterprises, namely the Circular, the Trial Measures, and five supporting guidelines, report any major event to the CSRC through its filing management information system; (3) we shall, within 15 working days after completion of this offering, report the issuance and listing of our shares in connection with this offering through the CSRC’s filing management information system; and (4) if we fail to complete this offering within 12 months of the issuance date of the Filing Notice and intend to continue to proceed with this offering, we shall update the filing materials with the CSRC.

 

As of the date of this prospectus, except for comments from the CSRC regarding the filing materials and the Filing Notice noted above, we have not received any formal inquiry, notice, warning, sanction, or objection from the CSRC with respect to this offering. Our PRC legal counsel, Beijing Dacheng Law Offices, LLP (Fuzhou), has advised us that, based on its understanding of the current PRC laws and regulations, apart from the requirement of reporting the issuance and listing of our shares in connection with this offering within 15 working days after the completion of this offering as stated in the Filing Notice and above, we and our subsidiaries are not required to obtain any other permission, consent, or approval from, or make any filing or other notice to, the PRC authorities, including the CSRC, relating to this offering.

 

22

 

 

We and our investors would be adversely affected if we or our subsidiaries were required to receive or maintain such permission or approvals and did not do so, if we inadvertently concluded that such approvals are not required, or if applicable laws, regulations, or interpretations change and we become required to obtain approval in the future. For example, if it is determined in the future that any other approval of the CSRC, the CAC or any other regulatory authority is required for this offering, we may face sanctions by the CSRC, the CAC or other PRC regulatory agencies if we fail to obtain such approval. These regulatory agencies may impose fines and penalties on our operations in China, limit our ability to pay dividends outside of China, limit our operations in China, delay or restrict the repatriation of the proceeds from this offering into China or take other actions that could have a material adverse effect on our business, financial condition, results of operations and prospects, as well as the trading price and/or listing of our securities. The CSRC, the CAC, or other PRC regulatory agencies also may take actions requiring us, or making it advisable for us, to halt this offering before settlement and delivery of our ordinary shares. Consequently, if you engage in market trading or other activities in anticipation of and prior to settlement and delivery, you do so at the risk that settlement and delivery may not occur. In addition, if the CSRC, the CAC or other regulatory PRC agencies later promulgate new rules requiring that we obtain their approvals for this offering, we may be unable to obtain a waiver of such approval requirements, if and when procedures are established to obtain such a waiver. Any uncertainties and/or negative publicity regarding such an approval requirement could have a material adverse effect on the trading price of our securities.

  

The approval of the CSRC is required in connection with this offering under PRC law.

 

On February 17, 2023, the CSRC announced the Circular and released a set of new regulations which consists of the Trial Measures and five supporting guidelines. The Trial Measures came into effect on March 31, 2023. The Trial Measures refine the regulatory system by subjecting both direct and indirect overseas offering and listing activities to the CSRC filing-based administration. Requirements for filing entities, time points and procedures are specified. A PRC domestic company that seeks to offer and list securities in overseas markets shall fulfill the filing procedure with the CSRC per the requirements of the Trial Measures. Where a PRC domestic company seeks to indirectly offer and list securities in overseas markets, the issuer shall designate a major domestic operating entity, which shall, as the domestic responsible entity, file with the CSRC. The Trial Measures also lay out requirements for the reporting of material events. Breaches of the Trial Measures, such as offering and listing securities overseas without fulfilling the filing procedures, shall bear legal liabilities, including a fine between RMB 1.0 million (approximately $150,000) and RMB 10.0 million (approximately $1.5 million), and the Trial Measures heighten the cost for offenders by enforcing accountability with administrative penalties and incorporating the compliance status of relevant market participants into the Securities Market Integrity Archives.

 

The Trial Measures provide that if an issuer meets both of the following conditions, the overseas securities offering and listing conducted by such issuer will be determined as an indirect overseas offering and listing which shall be subject to the filing procedure set forth under the Trial Measures: (i) 50% or more of the issuer’s operating revenue, total profit, total assets or net assets as documented in its audited consolidated financial statements over the same period for the most recent accounting year is accounted for by domestic companies; and (ii) the main parts of the issuer’s business activities are conducted in the PRC, or its main places of business are located in the PRC, or the senior managers in charge of its business operation and management are mostly Chinese citizens or domiciled in the PRC. As confirmed by our PRC counsel, this offering is an indirect overseas offering and listing.

 

According to the Circular, since the date of effectiveness of the Trial Measures on March 31, 2023, PRC domestic enterprises falling within the scope of filing that have been listed overseas or met the following circumstances are “existing enterprises”: before the effectiveness of the Trial Measures on March 31, 2023, the application for indirect overseas issuance and listing has been approved by the overseas regulators or overseas stock exchanges (such as the registration statement has become effective on the U.S. market), it is not required to perform issuance and listing supervision procedures of the overseas regulators or overseas stock exchanges, and the overseas issuance and listing will be completed by September 30, 2023. Existing enterprises are not required to file with the CSRC immediately, and filings with the CSRC should be made as required if they involve refinancings and other filing matters. PRC domestic enterprises that have submitted valid applications for overseas issuance and listing but have not been approved by overseas regulatory authorities or overseas stock exchanges at the date of effectiveness of the Trial Measures on March 31, 2023 can reasonably arrange the timing of filing applications with the CSRC and shall complete the filing with the CSRC before the overseas issuance and listing.

We are not classified as an existing enterprise. We therefore are required to file with the CSRC and shall complete the filing with the CSRC in accordance with the Trial Measures before this offering. On August 2, 2023, we submitted our filing materials and applied for registration to the CSRC in accordance with the requirements of the Trial Measures. We have completed the filing with the CSRC and obtained the required Filing Notice from the CSRC regarding this offering on November 28, 2023, which serves as notification from the CSRC of our completion of the required filing procedures with the CSRC for this offering. The main contents of the Filing Notice are as follows: (1) we propose to issue not more than 2,300,000 ordinary shares (exclusive of the ordinary shares underlying the representative’s warrants) and list them on The Nasdaq Stock Market LLC in the United States; (2) from the date of issuance of the Filing Notice to the completion of this offering, we shall, in accordance with the relevant provisions of the overseas issuance and listing of domestic enterprises, namely the Circular, the Trial Measures, and five supporting guidelines, report any major event to the CSRC through its filing management information system; (3) we shall, within 15 working days after completion of this offering, report the issuance and listing of our shares in connection with this offering through the CSRC’s filing management information system; and (4) if we fail to complete this offering within 12 months of the issuance date of the Filing Notice and intend to continue to proceed with this offering, we shall update the filing materials with the CSRC.

As of the date of this prospectus, except for comments from the CSRC regarding the filing materials and the Filing Notice noted above, we have not received any formal inquiry, notice, warning, sanction, or objection from the CSRC with respect to this offering. Our PRC legal counsel, Beijing Dacheng Law Offices, LLP (Fuzhou), has advised us that, based on its understanding of the current PRC laws and regulations, apart from the requirement of reporting the issuance and listing of our shares in connection with this offering within 15 working days after the completion of this offering as stated in the Filing Notice and above, we and our subsidiaries are not required to obtain any other permission, consent, or approval from, or make any filing or other notice to, the PRC authorities, including the CSRC, relating to this offering.

  

In addition, the M&A Rules purport to require offshore SPVs that are controlled by PRC companies or individuals and that have been formed for the purpose of seeking a public listing on an overseas stock exchange through acquisitions of PRC domestic companies or assets to obtain CSRC approval prior to publicly listing their securities on an overseas stock exchange. In September 2006, the CSRC published a notice on its official website specifying documents and materials required to be submitted to it by a SPV seeking CSRC approval of its overseas listings. The interpretation and application of the regulations remain unclear, and this offering may ultimately require approval from the CSRC pursuant to the M&A Rules. If CSRC approval is required pursuant to the M&A Rules, it is uncertain whether it would be possible for us to obtain the approval, and any failure to obtain or delay in obtaining CSRC approval for this offering would subject us to sanctions imposed by the CSRC and other PRC regulatory agencies.

 

23

 

 

Our PRC legal counsel, Beijing Dacheng Law Offices, LLP (Fuzhou), has advised us that, based on its understanding of the current PRC laws and regulations, pursuant to the M&A Rules, we will not be required to submit an application to the CSRC for the approval of the listing and trading of our ordinary shares on Nasdaq because we established our PRC subsidiaries by means of direct investment and not through a merger or acquisition of the equity or assets of a "PRC domestic company" as such term is defined under the M&A Rules.

 

However, Beijing Dacheng Law Offices, LLP (Fuzhou), as our PRC legal counsel, has further advised us that there remains some uncertainty as to how the M&A Rules will be interpreted or implemented in the context of an overseas offering, and its opinions summarized above are subject to any new laws, rules and regulations or detailed implementations and interpretations in any form relating to the M&A Rules. We cannot assure you that relevant PRC government agencies, including the CSRC, would reach the same conclusion as our PRC legal counsel, and hence we may face regulatory actions or other sanctions from the CSRC or other PRC regulatory agencies. These regulatory agencies may impose fines and penalties on our operations in China, limit our ability to pay dividends outside of China, limit our operating privileges in China, delay or restrict the repatriation of the proceeds from this offering into China or take other actions that could have a material adverse effect on our business, financial condition, results of operations and prospects, as well as the trading price and/or listing of our ordinary shares. The CSRC or other PRC regulatory agencies also may take actions requiring us, or making it advisable for us, to halt this offering before settlement and delivery of the ordinary shares offered hereby. Consequently, if you engage in market trading or other activities in anticipation of and prior to settlement and delivery, you do so at the risk that settlement and delivery may not occur. In addition, if the CSRC or other regulatory agencies later promulgate new rules or explanations requiring that we obtain their approvals for this offering, we may be unable to obtain a waiver of such approval requirements, if and when procedures are established to obtain such a waiver. Any uncertainties and/or negative publicity regarding such approval requirement could have a material adverse effect on the trading price of the ordinary shares.

 

Regulatory bodies of the United States may be limited in their ability to conduct investigations or inspections of our operations in China.

 

From time to time, we may receive requests from certain U.S. agencies to investigate or inspect our operations or to otherwise provide information. While we will comply with requests from these regulators, there is no guarantee that such requests will be honored by those entities that provide services to us or with which we associate, especially for any such entities that are located in China. Furthermore, an on-site inspection of our facilities by any of these regulators may be limited or entirely prohibited. Such inspections, though permitted by us and our affiliates, are subject to the unpredictability of the Chinese enforcement and other government agencies and may therefore be impossible to facilitate.

 

Our current auditor, Wei, Wei & Co., LLP, is PCAOB registered and based in Flushing, New York. Under the HFCAA, the PCAOB is permitted to inspect our current independent public accounting firm. In addition, on December 16, 2021, the PCAOB issued a determination report which found that the PCAOB was unable to inspect or investigate completely registered public accounting firms headquartered in: (1) mainland China of the People’s Republic of China; and (2) Hong Kong, a Special Administrative Region of the PRC, because of positions taken by PRC authorities in those jurisdictions, which determinations were vacated by the PCAOB on December 15, 2022. Wei, Wei & Co., LLP is not headquartered in mainland China or Hong Kong and was not identified by the PCAOB in its report as a firm subject to the PCAOB’s determinations, which determinations were vacated by the PCAOB on December 15, 2022. However, if the PCAOB later determined that it cannot inspect or fully investigate our auditor, trading in our securities may be prohibited under the HFCAA, and, as a result, Nasdaq may determine to delist our securities.

  

24

 

 

Changes in China's economic, political or social conditions or government policies could have a material adverse effect on our business and operations.

 

All of our assets and operations are located in China through our subsidiaries. Accordingly, our business, financial condition, results of operations and prospects may be influenced to a significant degree by political, economic and social conditions in China generally and therefore by the significant discretion of Chinese governmental authorities. The Chinese economy differs from the economies of most developed countries in many respects, including the level of government involvement, level of development, growth rate, control of foreign exchange and allocation of resources. Although the Chinese government has implemented measures emphasizing the utilization of market forces for economic reform, the reduction of state ownership of productive assets, and the establishment of improved corporate governance in business enterprises, a substantial portion of productive assets in China is still owned by the government. In addition, the Chinese government continues to play a significant role in regulating industry development by imposing industrial policies. The Chinese government also exercises significant control over China’s economic growth through allocating resources, controlling payment of foreign currency-denominated obligations, setting monetary policy, and providing preferential treatment to particular industries or companies. The increased global focus on environmental and social issues and China’s potential adoption of more stringent standards in these areas may adversely impact the operations of China-based issuers, including us.

 

While the Chinese economy has experienced significant growth over past decades, growth has been uneven, both geographically and among various sectors of the economy, and the rate of growth has been slowing since 2012. Any adverse changes in economic conditions in China, in the policies of the Chinese government or in the laws and regulations in China could have a material adverse effect on the overall economic growth of China. Such developments could adversely affect our business and operating results, lead to a reduction in demand for our services and adversely affect our competitive position. The Chinese government has implemented various measures to encourage economic growth and guide the allocation of resources. Some of these measures may benefit the overall Chinese economy, but may have a negative effect on us. For example, our financial condition and results of operations may be adversely affected by government control over capital investments or changes in tax regulations. In addition, in the past the Chinese government has implemented certain measures, including interest rate adjustment, to control the pace of economic growth. These measures may cause decreased economic activity in China, which may adversely affect our business and operating results.

 

If we become subject to the recent scrutiny, criticism and negative publicity involving U.S.-listed China-based companies, we may have to expend significant resources to investigate and resolve the matter which could harm our business operations, this offering and our reputation and could result in a loss of your investment in our ordinary shares, especially if such matter cannot be addressed and resolved favorably.

 

Recently, U.S. public companies that have substantially all of their operations in China have been the subject of intense scrutiny, criticism and negative publicity by investors, financial commentators and regulatory agencies. Much of the scrutiny, criticism and negative publicity has centered around financial and accounting irregularities, a lack of effective internal controls over financial accounting, inadequate corporate governance policies or a lack of adherence thereto and, in some cases, allegations of fraud. As a result of the scrutiny, criticism and negative publicity, the publicly traded stock of many U.S.-listed China-based companies has decreased in value and, in some cases, has become virtually worthless. Many of these companies are now subject to shareholder lawsuits and SEC enforcement actions and are conducting internal and external investigations into the allegations. It is not clear what effect this sector-wide scrutiny, criticism and negative publicity will have on us, our business and this offering. If we become the subject of any unfavorable allegations, whether such allegations are proven to be true or untrue, we will have to expend significant resources to investigate such allegations and/or defend our company. This situation may be a major distraction to our management. If such allegations are not proven to be groundless, our business operations will be severely hindered and your investment in our ordinary shares could be rendered worthless.

 

Uncertainties with respect to China’s legal system could adversely affect us.

 

The PRC legal system is a civil law system based on written statutes. Unlike the common law system, prior court decisions under the civil law system may be cited for reference but have limited precedential value.

 

In 1979, the PRC government began to promulgate a comprehensive system of laws and regulations governing economic matters in general. The overall effect of legislation over the past three decades has significantly enhanced the protections afforded to various forms of foreign investments in China. However, PRC law still restricts certain foreign investments in China, and such laws are continually evolving, as more fully described under “Regulation - Regulations Relating to Foreign Investment”. China has not developed a fully integrated legal system, and recently enacted laws and regulations may not sufficiently cover all aspects of economic activities in China. In particular, the interpretation and enforcement of these laws and regulations involve uncertainties. Since PRC administrative and court authorities have significant discretion in interpreting and implementing statutory provisions and contractual terms, it may be difficult to evaluate the outcome of administrative and court proceedings and the level of legal protection we enjoy. These uncertainties may affect our judgment on the relevance of legal requirements and our ability to enforce our contractual arrangements and rights or tort claims. In addition, the regulatory uncertainties may be exploited through unmerited or frivolous legal actions or threats in attempts to extract payments or benefits from us.

 

Furthermore, the PRC legal system is based in part on government policies and internal rules, some of which are not published on a timely basis or at all and may have a retroactive effect. As a result, we may not be aware of our violation of any of these policies and rules until sometime after the violation. In addition, any administrative and court proceedings in China may be protracted, resulting in substantial costs and diversion of resources and management attention. Further, such evolving laws and regulations and the inconsistent enforcement thereof could also lead to failure to obtain or maintain licenses and permits to do business in China, which would adversely affect us.

 

25

 

 

It may be difficult for overseas regulators to conduct investigation or collect evidence within China.

Shareholder claims or regulatory investigation that are common in the United States generally are difficult to pursue as a matter of law or practicality in China. For example, in China, there are significant legal and other obstacles to providing information needed for regulatory investigations or litigation initiated outside China. Although the authorities in China may establish a regulatory cooperation mechanism with the securities regulatory authorities of another country or region to implement cross-border supervision and administration, such cooperation with the securities regulatory authorities in the Unities States may not be efficient in the absence of mutual and practical cooperation mechanism. Furthermore, according to Article 177 of the PRC Securities Law, or Article 177, which became effective in March 2020, no overseas securities regulator is allowed to directly conduct investigation or evidence collection activities within the territory of the PRC. While detailed interpretation of or implementation rules under Article 177 have yet to be promulgated, the inability for an overseas securities regulator to directly conduct investigation or evidence collection activities within China may further increase difficulties faced by you in protecting your interests. See also “—Risks Related to our Ordinary Shares and this Offering—You may face difficulties in protecting your interests, and your ability to protect your rights through U.S. courts may be limited, because we are incorporated under Cayman Islands law” for risks associated with investing in us as a Cayman Islands company.

 

Changes in international trade policies, trade disputes, barriers to trade, or the emergence of a trade war may dampen growth in China and may have a material adverse effect on our business.

 

Political events, international trade disputes, and other business interruptions could harm or disrupt international commerce and the global economy, and could have a material adverse effect on us and our customers, service providers, and other partners. International trade disputes could result in tariffs and other protectionist measures that could adversely affect our business. Tariffs could increase the cost of the goods and products which could affect customers’ spending levels. In addition, political uncertainty surrounding international trade disputes and the potential of the escalation to trade war and global recession could have a negative effect on customer confidence, which could adversely affect our business. We may have also access to fewer business opportunities, and our operations may be negatively impacted as a result. In addition, the current and future actions or escalations by either the United States or China that affect trade relations may cause global economic turmoil and potentially have a negative impact on our markets, our business, or our results of operations, and we cannot provide any assurances as to whether such actions will occur or the form that they may take.

  

Our current sewage treatment system customers are primarily state-owned companies in China and the end users of our system are primarily local governments in China, and the payment approval process from local governments is complex, which may increase our days sales outstanding and could impact our liquidity should any major delay of payment from our major customers occur.

 

Our current sewage treatment system customers are primarily state-owned companies in China and the end users of our system are primarily local governments in China. The payment approval process from local governments is complex as it requires us to go through several procedures and typically takes a longer period of time as all of the proper inspection documents must be provided in order for funds to be released. In addition, there are other contractors also working on the job sites for the non-sewage treatment related sections and the inspectors sometimes require the other contractors to complete their sections before the full projects can be inspected. As a result, our days sales outstanding rose from 171 days at December 31, 2017 to 180 days at December 31, 2018 to 306 days at December 31, 2019 to 615 days at December 31, 2020, decreased to 204 days at December 21, 2021, then increased to 220 days at December 31, 2022, then increased to 231 days at June 30, 2023. The liquidity of our operations highly depends on the timing of payment from our major customers, and should any major delay of payment from them occur, our operations and liquidity may be impacted.

 

26

 

 

We must remit the offering proceeds to China before they may be used to benefit our business in China, and we cannot assure that we can finish all necessary governmental registration processes in a timely manner.

 

The proceeds of this offering must be sent to China before they may be used to benefit our business in China, and the process for sending such proceeds to China may take several months after the closing of this offering. In utilizing the proceeds of this offering in the manner described in “Use of Proceeds,” as a Cayman Islands holding company of our PRC subsidiaries, we may only make (i) loans to our PRC subsidiaries, or (ii) additional capital contributions to our PRC subsidiaries. Any shareholder loan or additional capital contribution are subject to PRC regulations. For example, loans by us or making additional capital contributions to our subsidiaries in China, which are FIEs, to finance their activities cannot exceed statutory limits, while shareholder loans must be also registered with the SAFE and additional capital contributions are subject to prior PRC governmental approval. The statutory limit for the total amount of foreign debts of a foreign-invested company is the difference between the amount of total investment as approved by MOFCOM or its local counterpart and the amount of registered capital of such foreign-invested company. 

 

To remit the proceeds of this offering, we must take the steps legally required under the PRC laws, including obtaining PRC governmental registrations and approvals. In light of the various requirements imposed by PRC regulations on loans to, and direct investment in, PRC entities by offshore holding companies, we cannot assure you that we will be able to complete the necessary government registrations or obtain the necessary government approvals on a timely basis, if at all, with respect to future loans by us to our PRC subsidiaries or with respect to future capital contributions by us to our PRC subsidiaries. If we fail to complete such registrations or obtain such approvals, our ability to use the proceeds from this offering in China and to capitalize or otherwise fund our PRC operations may be negatively affected, which could materially and adversely affect our liquidity, our ability to fund and expand our business and our ordinary shares.

 

You may experience difficulties in effecting service of legal process, enforcing foreign judgments, including those obtained in the U.S., or bringing actions in China against us or our management named in the prospectus based on foreign laws.

 

We, CDT Cayman, are a holding company incorporated under the laws of the Cayman Islands. We, CDT Cayman, through our subsidiaries, conduct all of our operations in China and all of our assets are located in China. In addition, all our senior employees reside within China for a significant portion of the time and most are PRC residents. As a result, it may be difficult for our shareholders to effect service of process upon us or those persons inside mainland China, including our management. In addition, China does not have treaties providing for the reciprocal recognition and enforcement of judgments of courts with the Cayman Islands and many other countries and regions. Therefore, recognition and enforcement in China of judgments of a court in any of these non-PRC jurisdictions, including the U.S., in relation to any matter not subject to a binding arbitration provision may be difficult or impossible.

 

We may rely on dividends and other distributions on equity paid by our PRC subsidiaries to fund any cash and financing requirements we may have, and any limitation on the ability of our PRC subsidiaries to make payments to us could have a material and adverse effect on our ability to conduct our business.

 

We, CDT Cayman, are a Cayman Islands holding company and we may rely on dividends and other distributions on equity from our PRC subsidiaries for our cash requirements, including for services of any debt we may incur. To date, we, CDT Cayman and our subsidiaries, have been funded through shareholder capital contributions, bank loans, third party loans and related party loans. As of June 30, 2023, these consisted of shareholder capital contributions of $7.5 million, which are reflected as par value and additional paid-in capital in the unaudited condensed consolidated financial statements included elsewhere in this prospectus, bank loans of $2.3 million, third party loans of $0.3 million and related party loans of $4.3 million. See the unaudited condensed consolidated statements of change in shareholders’ equity on page F-4 and Notes 10 and 11 on pages F-21 through F-23 of the notes to the unaudited condensed consolidated financial statements included elsewhere in this prospectus. We may in the future also rely on dividends and other distributions on equity from our PRC subsidiaries. Our PRC subsidiaries’ ability to distribute dividends is based upon its distributable earnings. Current PRC regulations permit our PRC subsidiaries to pay dividends to its respective shareholders only out of their accumulated profits, if any, determined in accordance with PRC accounting standards and regulations. In addition, each of our PRC subsidiaries is required to set aside at least 10% of its after-tax profits each year, if any, to fund a statutory reserve until such reserve reaches 50% of its registered capital. Each of our PRC subsidiaries as a FIE is also required to further set aside a portion of its after-tax profits to fund the employee welfare fund, although the amount to be set aside, if any, is determined at its discretion. These reserves are not distributable as cash dividends. If our PRC subsidiaries incur debt on their own behalf in the future, the instruments governing the debt may restrict their ability to pay dividends or make other payments to us. Any limitation on the ability of our PRC subsidiaries to distribute dividends or other payments to their respective shareholders could materially and adversely limit our ability to grow, make investments or acquisitions that could be beneficial to our businesses, pay dividends or otherwise fund and conduct our business.

 

In addition, the Enterprise Income Tax Law and its implementation rules provide that a withholding tax rate of up to 10% will be applicable to dividends payable by Chinese companies to non-PRC-resident enterprises unless otherwise exempted or reduced according to treaties or arrangements between the PRC central government and governments of other countries or regions where the non-PRC resident enterprises are incorporated.

 

PRC regulation of loans to and direct investment in PRC entities by offshore holding companies and governmental control of currency conversion may delay us from using the proceeds of this offering to make loans or additional capital contributions to our PRC subsidiaries, which could materially and adversely affect our liquidity and our ability to fund and expand our business.

 

Any funds we transfer to our PRC subsidiaries, including those received from this offering, must be transferred either as a shareholder loan or as an increase in registered capital, and are subject to approval by or registration with relevant governmental authorities in China, which may take several months. According to the relevant PRC regulations on FIEs in China, capital contributions to our PRC subsidiaries are subject to the prior approval of each of the respective local counterparts of the MOFCOM, the SAMR, and the SAFE and registration with other governmental authorities in China. In addition, (a) any foreign loan procured by our PRC subsidiaries is required to be registered with SAFE or its local branches, and (b) our PRC subsidiaries may not procure loans which exceed the statutory amount as approved by the MOFCOM or its local branches. Any medium-or long- term loan to be provided by us to our PRC subsidiaries must be approved by the NDRC and the SAFE or its local branches. We may not obtain these government approvals or complete such registrations on a timely basis, with respect to future capital contributions or foreign loans by us to our PRC subsidiaries. If we fail to receive such approvals or complete such registration, our ability to use the proceeds of this offering and to capitalize our PRC operations may be negatively affected, which could adversely affect our liquidity and our ability to fund and expand our business. 

 

27

 

 

In 2008, SAFE promulgated the Circular on the Relevant Operating Issues Concerning the Improvement of the Administration of the Payment and Settlement of Foreign Currency Capital of Foreign-Invested Enterprises, or SAFE Circular 142. SAFE Circular 142 regulates the conversion by FIEs of foreign currency into Renminbi by restricting the usage of converted Renminbi. SAFE Circular 142 provides that any Renminbi capital converted from registered capitals in foreign currency of FIEs may only be used for purposes within the business scopes approved by PRC governmental authority and such Renminbi capital may not be used for equity investments within China unless otherwise permitted by PRC law. In addition, the SAFE strengthened its oversight of the flow and use of Renminbi capital converted from registered capital in foreign currency of FIEs. The use of such Renminbi capital may not be changed without SAFE approval, and such Renminbi capital may not in any case be used to repay Renminbi loans if the proceeds of such loans have not been utilized. On July 4, 2014, SAFE issued the Circular of the SAFE on Relevant Issues Concerning the Pilot Reform in Certain Areas of the Administrative Method of the Conversion of Foreign Exchange Funds by Foreign-invested Enterprises, or SAFE Circular 36, which launched the pilot reform of administration regarding conversion of foreign currency registered capitals of FIEs in 16 pilot areas. According to SAFE Circular 36, some of the restrictions under SAFE Circular 142 will not apply to the settlement of the foreign exchange capitals of an ordinary FIE in the pilot areas, and such FIE is permitted to use Renminbi converted from its foreign-currency registered capital to make equity investments in the PRC within and in accordance with the authorized business scope of such FIEs, subject to certain registration and settlement procedure as set forth in SAFE Circular 36. As this circular is relatively new, there remains uncertainty as to its interpretation and application and any other future foreign exchange related rules. On March 30, 2015, the SAFE promulgated the Notice of the SAFE on Reforming the Administration of Foreign Exchange Settlement of Capital of Foreign-invested Enterprises, or SAFE Circular 19. SAFE Circular 19 took effect as of June 1, 2015 and has been partially repealed and superseded SAFE Circular 142 on the same date. SAFE Circular 19 launched a nationwide reform of the administration of the settlement of the foreign exchange capitals of FIEs and allows FIEs to settle their foreign exchange capital at their discretion, but continues to prohibit FIEs from using the Renminbi fund converted from their foreign exchange capitals for expenditure beyond their business scopes, providing entrusted loans or repaying loans between non-financial enterprises. Violations of these Circulars could result in severe monetary or other penalties. SAFE Circular 19 may significantly limit our ability to use Renminbi converted from the net proceeds of this offering to fund the establishment of new entities in China by our subsidiaries, to invest in or acquire any other PRC companies through our PRC subsidiaries, or to establish consolidated variable interest entities in the PRC, which may adversely affect our business, financial condition and results of operations.

 

Fluctuations in exchange rates could have a material and adverse effect on our results of operations and the value of your investment.

 

The value of the Renminbi against the U.S. dollar and other currencies may fluctuate and is affected by, among other things, changes in political and economic conditions in China and by China's foreign exchange policies. On July 21, 2005, the PRC government changed its decade-old policy of pegging the value of the Renminbi to the U.S. dollar, and the Renminbi appreciated more than 20% against the U.S. dollar over the following three years. Between July 2008 and June 2010, this appreciation halted and the exchange rate between the Renminbi and the U.S. dollar remained within a narrow band. Since June 2010, the Renminbi has fluctuated against the U.S. dollar, at times significantly and unpredictably. On November 30, 2015, the Executive Board of the International Monetary Fund (IMF) completed the regular five-year review of the basket of currencies that make up the Special Drawing Right, or the SDR, and decided that with effect from October 1, 2016, Renminbi is determined to be a freely usable currency and will be included in the SDR basket as a fifth currency, along with the U.S. dollar, the Euro, the Japanese yen and the British pound. With the development of the foreign exchange market and progress towards interest rate liberalization and Renminbi internationalization, the PRC government may in the future announce further changes to the exchange rate system, and we cannot assure you that the Renminbi will not appreciate or depreciate significantly in value against the U.S. dollar in the future. It is difficult to predict how market forces or PRC or U.S. government policy may impact the exchange rate between the Renminbi and the U.S. dollar in the future.

 

Significant revaluation of the Renminbi may have a material and adverse effect on your investment. For example, to the extent that we need to convert U.S. dollars we receive from this offering into Renminbi for our operations, appreciation of the Renminbi against the U.S. dollar would have an adverse effect on the Renminbi amount we would receive from the conversion. Conversely, if we decide to convert our Renminbi into U.S. dollars for the purpose of making payments for dividends on our ordinary shares or for other business purposes, appreciation of the U.S. dollar against the Renminbi would have a negative effect on the U.S. dollar amount available to us. In addition, appreciation or depreciation in the value of the Renminbi relative to U.S. dollars would affect our financial results reported in U.S. dollar terms regardless of any underlying change in our business or results of operations. 

 

Very limited hedging options are available in China to reduce our exposure to exchange rate fluctuations. To date, we have not entered into any hedging transactions in an effort to reduce our exposure to foreign currency exchange risk. While we may decide to enter into hedging transactions in the future, the availability and effectiveness of these hedges may be limited, and we may not be able to adequately hedge our exposure, or at all. In addition, our currency exchange losses may be magnified by PRC exchange control regulations that restrict our ability to convert Renminbi into foreign currency.

 

Changes in China’s environmental laws and policies may affect our financial condition.

 

Our products and projects are mainly used in the fields of rural sewage treatment and septic tank treatment in urban and rural areas. We believe our business is in line with China’s current focus on environmental protection policies, particularly the Water Pollution Prevention and Control Action Plan, also known as the Water Ten Plan, and the 13th Five Year Plan for National Economic and Social Development of the PRC (2016–2020), also known as the 13th Five Year Plan. However, should China alter its environmental policies towards less regulation, we believe demand for our products could decrease, adversely impacting our results of operations, cash flows and financial position.

 

Governmental control of currency conversion may limit our ability to utilize our earnings effectively and affect the value of your investment.

 

The PRC government imposes controls on the convertibility of the Renminbi into foreign currencies and, in certain cases, the remittance of currency into or out of China, which essentially may restrict the ability to transfer funds into or out of China. We receive all of our revenues in Renminbi through our subsidiaries. Under our current corporate structure, we, CDT Cayman, a Cayman Islands holding company, may rely on dividend payments from our PRC subsidiaries to fund any cash and financing requirements we may have. To date, we, CDT Cayman and our subsidiaries, have been funded through shareholder capital contributions, bank loans, third party loans and related party loans. As of June 30, 2023, these consisted of shareholder capital contributions of $7.5 million, which are reflected as par value and additional paid-in capital in the unaudited condensed consolidated financial statements included elsewhere in this prospectus, bank loans of $2.3 million, third party loans of $0.3 million and related party loans of $4.3 million. See the unaudited condensed consolidated statements of change in shareholders’ equity on page F-4 and Notes 10 and 11 on pages F-21 through F-23 of the notes to the consolidated financial statements included elsewhere in this prospectus. Under existing PRC foreign exchange regulations, payments of current account items, including profit distributions, interest payments and trade and service-related foreign exchange transactions, can be made in foreign currencies without prior approval of the SAFE by complying with certain procedural requirements. Specifically, under the existing exchange restrictions, without prior approval of SAFE, cash generated from the operations of our PRC subsidiaries in China may be used to pay dividends to our company. However, approval from or registration with appropriate government authorities is required where Renminbi is to be converted into foreign currency and remitted out of China to pay capital expenses such as the repayment of loans denominated in foreign currencies. As a result, we need to obtain SAFE approval to use cash generated from the operations of our PRC subsidiaries to pay off their respective debt in a currency other than Renminbi owed to entities outside China, or to make other capital expenditure payments outside China in a currency other than Renminbi. The PRC government may at its discretion restrict access to foreign currencies for current account transactions in the future. If the foreign exchange control system prevents us from obtaining sufficient foreign currencies to satisfy our foreign currency demands, we may not be able to pay dividends in foreign currencies to our shareholders.

 

28

 

 

Certain PRC regulations may make it more difficult for us to pursue growth through acquisitions.

 

Among other things, the Regulations on Mergers and Acquisitions of Domestic Enterprises by Foreign Investors, or the M&A Rules, adopted by six PRC regulatory agencies in 2006 and amended in 2009, established additional procedures and requirements that could make merger and acquisition activities by foreign investors more time-consuming and complex. Such regulation requires, among other things, that the MOFCOM be notified in advance of any change-of-control transaction in which a foreign investor acquires control of a PRC domestic enterprise or a foreign company with substantial PRC operations, if certain thresholds under the Provisions on Thresholds for Prior Notification of Concentrations of Undertakings, issued by the State Council in 2008, are triggered. Moreover, the Anti-Monopoly Law promulgated by the Standing Committee of the NPC which became effective in 2008 requires that transactions which are deemed concentrations and involve parties with specified turnover thresholds must be cleared by the MOFCOM before they can be completed. In addition, PRC national security review rules which became effective in September 2011 require acquisitions by foreign investors of PRC companies engaged in military related or certain other industries that are crucial to national security be subject to security review before consummation of any such acquisition. We may pursue potential strategic acquisitions that are complementary to our business and operations. Complying with the requirements of these regulations to complete such transactions could be time-consuming, and any required approval processes, including obtaining approval or clearance from the MOFCOM, may delay or inhibit our ability to complete such transactions, which could affect our ability to expand our business or maintain our market share.

 

PRC regulations relating to the establishment of offshore special purpose companies by PRC residents may subject our PRC resident beneficial owners or our PRC subsidiaries to liability or penalties, limit our ability to inject capital into our PRC subsidiaries, limit our PRC subsidiaries’ ability to increase their registered capital or distribute profits to us, or may otherwise adversely affect us.

 

In July 2014, SAFE promulgated the Circular on Relevant Issues Concerning Foreign Exchange Control on Domestic Residents' Offshore Investment and Financing and Roundtrip Investment Through Special Purpose Vehicles, or SAFE Circular 37, to replace the Notice on Relevant Issues Concerning Foreign Exchange Administration for Domestic Residents' Financing and Roundtrip Investment Through Offshore Special Purpose Vehicles, or SAFE Circular 75, which ceased to be effective upon the promulgation of SAFE Circular 37. SAFE Circular 37 requires PRC residents (including PRC individuals and PRC corporate entities) to register with SAFE or its local branches in connection with their direct or indirect offshore investment activities. SAFE Circular 37 is applicable to our shareholders who are PRC residents and may be applicable to any offshore acquisitions that we make in the future. 

 

Under SAFE Circular 37, PRC residents who make, or have prior to the implementation of SAFE Circular 37 made, direct or indirect investments in offshore SPVs will be required to register such investments with the SAFE or its local branches. In addition, any PRC resident who is a direct or indirect shareholder of a SPV is required to update its filed registration with the local branch of SAFE with respect to that SPV, to reflect any material change. Moreover, any subsidiary of such SPV in China is required to urge the PRC resident shareholders to update their registration with the local branch of SAFE. If any PRC shareholder of such SPV fails to make the required registration or to update the previously filed registration, failure in the completion or update of such registration by any PRC shareholder of such SPV will affect the procedure of transferring any dividend he obtains from the listed company back to China. On February 13, 2015, the SAFE promulgated a Notice on Further Simplifying and Improving Foreign Exchange Administration Policy on Direct Investment, or SAFE Circular 13, which became effective on June 1, 2015. Under SAFE Circular 13, applications for foreign exchange registration of inbound foreign direct investments and outbound overseas direct investments, including those required under SAFE Circular 37, will be filed with qualified banks instead of the SAFE. The qualified banks will directly examine the applications and accept registrations under the supervision of the SAFE.

 

We cannot assure you that all of our shareholders that may be subject to SAFE regulations have completed all necessary registrations with the local SAFE branch or qualified banks as required by SAFE Circular 37, and we cannot assure you that these individuals may continue to make required filings or updates on a timely manner, or at all. We can provide no assurance that we are or will in the future continue to be informed of identities of all PRC residents holding direct or indirect interest in our company. When a registered overseas special purpose company changes basic information such as its Chinese resident individual shareholders, name or operating terms, or changes important matters such as capital increase, capital reduction, equity transfer or replacement, merger or division of Chinese resident individual shareholders, it shall promptly go through the registration formalities for changes in foreign exchange for overseas investment with the SAFE. According to the provisions of SAFE Circular 37, except for Yunwu Li, no other relevant personnel of this listing are required to register foreign exchange or foreign exchange changes. As of the date of this prospectus, to our knowledge, Yunwu Li, our chief executive officer and chairman of our board of directors and chairman of the board of directors and general manager of Shenzhen CDT, had completed the foreign exchange registration, but had not completed the change registration and was in the process of registration. The completion of Yunwu Li’s change registration will affect the procedure of transferring any dividends he obtains from CDT Cayman to China. However, the net proceeds from this offering which must be remitted to China will not be affected since Shenzhen CDT previously completed the foreign direct investment foreign exchange registration in 2016. Any failure or inability by such individuals to comply with the SAFE regulations may subject us to fines or legal sanctions.

 

Furthermore, as these foreign exchange regulations are still relatively new and their interpretation and implementation has been constantly evolving, it is unclear how these regulations, and any future regulation concerning offshore or cross-border transactions, will be interpreted, amended and implemented by the relevant government authorities. For example, we may be subject to a more stringent review and approval process with respect to our foreign exchange activities, such as remittance of dividends and foreign-currency-denominated borrowings, which may adversely affect our financial condition and results of operations. In addition, if we decide to acquire a PRC domestic company, we cannot assure you that we or the owners of such company, as the case may be, will be able to obtain the necessary approvals or complete the necessary filings and registrations required by the foreign exchange regulations. This may restrict our ability to implement our acquisition strategy and could adversely affect our business and prospects.

  

29

 

 

We face uncertainty with respect to indirect transfers of equity interests in PRC resident enterprises by their non-PRC holding companies.

 

On February 3, 2015, the SAT issued the Announcement of the State Administration of Taxation on Several Issues Relating to Enterprise Income Tax on Transfers of Assets between Non-resident Enterprises, or SAT Bulletin 7, which was partially abolished on December 29, 2017. SAT Bulletin 7 extends its tax jurisdiction to transactions involving transfer of taxable assets through the offshore transfer of a foreign intermediate holding company. In addition, SAT Bulletin 7 has introduced safe harbors for internal group restructurings and the purchase and sale of equity through a public securities market. SAT Bulletin 7 also brings challenges to both foreign transferor and transferee (or other person who is obligated to pay for the transfer) of taxable assets.

 

On October 17, 2017, the SAT issued the Announcement of the State Administration of Taxation on Issues Concerning the Withholding of Non-resident Enterprise Income Tax at Source, or SAT Bulletin 37, which was partially revised. SAT Bulletin 37 came into effect on December 1, 2017 and was revised on June 15, 2018. The SAT Bulletin 37 further clarifies the practice and procedure of withholding of non-resident enterprise income tax.

 

Where a non-resident enterprise transfers taxable assets indirectly by disposing of the equity interests of an overseas holding company, which is an Indirect Transfer, the non-resident enterprise as either transferor or transferee, or the PRC entity that directly owns the taxable assets, may report such Indirect Transfer to the relevant tax authority. Using a "substance over form" principle, the PRC tax authority may disregard the existence of the overseas holding company if it lacks a reasonable commercial purpose and was established for the purpose of reducing, avoiding or deferring PRC tax. As a result, gains derived from such Indirect Transfer may be subject to PRC enterprise income tax, and the transferee or other person who is obligated to pay for the transfer is obligated to withhold the applicable taxes, currently at a rate of 10% for the transfer of equity interests in a PRC resident enterprise. Both the transferor and the transferee may be subject to penalties under PRC tax laws if the transferee fails to withhold the taxes and the transferor fails to pay the taxes. 

 

We face uncertainties as to the reporting and other implications of certain past and future transactions where PRC taxable assets are involved, such as offshore restructuring, sale of the shares in our offshore subsidiaries and investments. Our company may be subject to filing obligations or taxed if our company is transferor in such transactions, and may be subject to withholding obligations if our company is transferee in such transactions, under SAT Bulletin 7 and/or SAT Bulletin 37. For transfer of shares in our company by investors who are non-PRC resident enterprises, our PRC subsidiaries may be requested to assist in the filing under SAT Bulletin 7 and/or SAT Bulletin 37. As a result, we may be required to expend valuable resources to comply with SAT Bulletin 7 and/or SAT Bulletin 37 or to request the relevant transferors from whom we purchase taxable assets to comply with these circulars, or to establish that our company should not be taxed under these circulars, which may have a material adverse effect on our financial condition and results of operations.

 

Additional factors outside of our control related to doing business in China could negatively affect our business.

 

Additional factors that could negatively affect our business include a potential significant revaluation of the Renminbi, which may result in an increase in the cost of producing products in China, labor shortages and increases in labor costs in China as well as difficulties in moving products manufactured in China out of the country, whether due to port congestion, labor disputes, slowdowns, product regulations and/or inspections or other factors. Prolonged disputes or slowdowns can negatively impact both the time and cost of transporting goods. Natural disasters or health pandemics impacting China can also have a significant negative impact on our business. Further, the imposition of trade sanctions or other regulations against products imported by us from, or the loss of “normal trade relations” status with, China, could significantly increase our cost of products exported outside of China and harm our business.

 

The recent joint statement by the SEC and PCAOB, proposed rule changes submitted by Nasdaq, and the HFCAA all call for additional and more stringent criteria to be applied to emerging market companies upon assessing the qualification of their auditors, especially the non-U.S. auditors who are not inspected by the PCAOB. These developments could add uncertainties to our offering.

 

On April 21, 2020, SEC Chairman Jay Clayton and PCAOB Chairman William D. Duhnke III, along with other senior SEC staff, released a joint statement highlighting the risks associated with investing in companies based in or have substantial operations in emerging markets including China. The joint statement emphasized the risks associated with lack of access for the PCAOB to inspect auditors and audit work papers in China and higher risks of fraud in emerging markets.

 

On May 18, 2020, Nasdaq filed three proposals with the SEC to (i) apply minimum offering size requirement for companies primarily operating in “Restrictive Market”, (ii) adopt a new requirement relating to the qualification of management or board of director for Restrictive Market companies, and (iii) apply additional and more stringent criteria to an applicant or listed company based on the qualifications of the company’s auditors.

 

30

 

 

On May 20, 2020, the U.S. Senate passed the HFCAA requiring a foreign company to certify it is not owned or controlled by a foreign government if the PCAOB is unable to audit specified reports because the company uses a foreign auditor not subject to PCAOB inspection. If the PCAOB is unable to inspect the company’s auditors for two consecutive years, the issuer’s securities will be prohibited to trade on a U.S. securities exchange or U.S. over-the-counter market. On December 2, 2020, the U.S. House of Representatives approved the HFCAA. On December 18, 2020, the HFCAA was signed into law. Additionally, in July 2020, the U.S. President’s Working Group on Financial Markets issued recommendations for actions that can be taken by the executive branch, the SEC, the PCAOB or other federal agencies and department with respect to Chinese companies listed on U.S. securities exchanges and their audit firms, in an effort to protect investors in the United States. In response, on November 23, 2020, the SEC issued guidance highlighting certain risks, and their implications to U.S. investors, associated with investments in China-based issuers and summarizing enhanced disclosures the SEC recommends China-based issuers make regarding such risks.

 

On December 2, 2021, the SEC adopted final amendments to its rules relating to the implementation of certain disclosure and documentation requirements of the HFCAA, which took effect on January 10, 2022. We will be required to comply with these rules if the SEC identifies us as having a “non-inspection” year, as defined in the rules. Under the HFCAA, our securities would be prohibited from trading on the Nasdaq or other U.S. securities exchange or any U.S. over-the-counter market if our auditor is not inspected by the PCAOB for two consecutive years, and this ultimately could result in our shares being delisted. On June 22, 2021, the U.S. Senate passed the Accelerating Holding Foreign Companies Accountable Act, which, was enacted on December 29, 2022 under the Consolidated Appropriations Act, 2023, as further described below, and amended the HFCAA to require the SEC to prohibit an issuer’s securities from trading on any U.S. securities exchange or any U.S. over-the-counter market if its auditor is not subject to PCAOB inspections for two consecutive years instead of three consecutive years, meaning the number of “non-inspection” years was decreased from three to two, and thus, this reduced the time before securities would be prohibited from trading or delisted. On September 22, 2021, the PCAOB adopted a final rule implementing the HFCAA, which provides a framework for the PCAOB to use when determining, as contemplated under the HFCAA, whether the PCAOB is unable to inspect or investigate completely registered public accounting firms located in a non-U.S. jurisdiction because of a position taken by one or more authorities in any non-U.S. jurisdiction.

 

On December 16, 2021, the PCAOB issued a determination report which found that the PCAOB was unable to inspect or investigate completely registered public accounting firms headquartered in: (1) mainland China of the People’s Republic of China; and (2) Hong Kong, a Special Administrative Region of the PRC, because of positions taken by PRC authorities in those jurisdictions, which determinations were vacated by the PCAOB on December 15, 2022. Our current auditor, Wei, Wei & Co., LLP, is not headquartered in mainland China or Hong Kong and was not identified by the PCAOB in its report on December 16, 2021 as a firm subject to the PCAOB’s determinations, which determinations were vacated by the PCAOB on December 15, 2022.

 

On August 26, 2022, the PCAOB signed a Statement of Protocol, or SOP, Agreement with the CSRC and China’s Ministry of Finance. The SOP, together with two protocol agreements governing inspections and investigation, establishes a specific, accountable framework to make possible complete inspections and investigations by the PCAOB of audit firms based in China and Hong Kong, as required under U.S. law.

 

On December 15, 2022, the PCAOB announced that it was able to secure complete access to inspect and investigate PCAOB-registered public accounting firms headquartered in mainland China and Hong Kong completely in 2022. The PCAOB vacated its previous 2021 determinations that the PCAOB was unable to inspect or investigate completely registered public accounting firms headquartered in mainland China and Hong Kong. However, whether the PCAOB will continue to be able to satisfactorily conduct inspections of PCAOB-registered public accounting firms headquartered in mainland China and Hong Kong is subject to uncertainty and depends on a number of factors out of our, and our auditor’s, control. The PCAOB continues to demand complete access in mainland China and Hong Kong moving forward and has resumed regular inspections since March 2023. The PCAOB is continuing pursuing ongoing investigations and may initiate new investigations as needed. The PCAOB has indicated that it will act immediately to consider the need to issue new determinations with the HFCAA if needed. Notwithstanding the foregoing, in the event it is later determined that the PCAOB is unable to inspect or investigate completely our auditor, then such lack of inspection could cause our securities to be delisted from the stock exchange. The delisting of our shares, or the threat of their being delisted, may materially and adversely affect the value of your investment.

 

On December 29, 2022, the U.S. President signed into law the Consolidated Appropriations Act, 2023, which, among other things, amended the HFCAA to reduce the number of consecutive non-inspection years that would trigger the trading prohibition under the HFCAA from three years to two years (originally such threshold under the HFCAA was three consecutive years), and so that any non-U.S. jurisdiction could be the reason why the PCAOB does not have complete access to inspect or investigate a company’s public accounting firm (originally the HFCAA only applied if the PCAOB’s ability to inspect or investigate was due to a position taken by an authority in the jurisdiction where the relevant public accounting firm was located). As noted above, on December 15, 2022, the PCAOB vacated its previous 2021 determinations that it was unable to inspect and investigate completely PCAOB-registered public accounting firms headquartered in mainland China and Hong Kong. 

 

If the PCAOB in the future again determines that it is unable to inspect and investigate completely auditors in mainland China and Hong Kong, then the lack of access to the PCAOB inspection in China would prevent the PCAOB from fully evaluating audits and quality control procedures of the auditors based in China. As a result, investors could be deprived of the benefits of such PCAOB inspections, if the PCAOB in the future again determines that it is unable to inspect and investigate completely auditors in mainland China and Hong Kong. The inability of the PCAOB to conduct inspections of auditors in China would make it more difficult to evaluate the effectiveness of these accounting firms’ audit procedures or quality control procedures, which could cause existing and potential investors in our stock to lose confidence in our audit procedures and reported financial information and the quality of our financial statements. Although our auditor was not identified by the PCAOB in its report as a firm subject to the PCAOB’s determinations, which determinations were vacated by the PCAOB on December 15, 2022, should the PCAOB be unable to fully conduct an inspection of our auditor’s work papers in China, this could adversely affect us and our securities for the reasons noted above.

 

Our auditor, the independent registered public accounting firm that issues the audit report included elsewhere in this prospectus, as an auditor of companies that are traded publicly in the United States and a firm registered with the PCAOB, is subject to laws in the United States pursuant to which the PCAOB conducts regular inspections to assess our auditor’s compliance with the applicable professional standards. Our auditor is headquartered in Flushing, New York, and has been inspected by the PCAOB on a regular basis with the last inspection in 2020. However, the recent developments would add uncertainties to our offering and we cannot assure you whether Nasdaq or regulatory authorities would apply additional and more stringent criteria to us after considering the effectiveness of our auditor’s audit procedures and quality control procedures, adequacy of personnel and training, or sufficiency of resources, geographic reach or experience as it relates to the audit of our financial statements. 

 

31

 

 

All of our operations are located in China through our subsidiaries. Our ability to operate in China may be impaired by changes in Chinese laws and regulations, including those relating to taxation, environmental regulation, restrictions on foreign investment, and other matters.

 

 We, CDT Cayman, are a Cayman Islands holding company. All of our operations are located in China through our subsidiaries. The Chinese government has exercised and continues to exercise substantial control over virtually every sector of the Chinese economy through regulation and state ownership. Our ability to operate in China may be impaired by changes in laws and regulations in the PRC. The PRC government recently promulgated a series of new statements and actions to regulate business operations in China.

 

According to the Circular, since the date of effectiveness of the Trial Measures on March 31, 2023, PRC domestic enterprises falling within the scope of filing that have been listed overseas or met the following circumstances are “existing enterprises”: before the effectiveness of the Trial Measures on March 31, 2023, the application for indirect overseas issuance and listing has been approved by the overseas regulators or overseas stock exchanges (such as the registration statement has become effective on the U.S. market), it is not required to perform issuance and listing supervision procedures of the overseas regulators or overseas stock exchanges, and the overseas issuance and listing will be completed by September 30, 2023. Existing enterprises are not required to file with the CSRC immediately, and filings with the CSRC should be made as required if they involve refinancings and other filing matters. PRC domestic enterprises that have submitted valid applications for overseas issuance and listing but have not been approved by overseas regulatory authorities or overseas stock exchanges at the date of effectiveness of the Trial Measures on March 31, 2023 can reasonably arrange the timing of filing applications with the CSRC and shall complete the filing with the CSRC before the overseas issuance and listing.

We are not classified as an existing enterprise. We therefore are required to file with the CSRC and shall complete the filing with the CSRC in accordance with the Trial Measures before this offering. On August 2, 2023, we submitted our filing materials and applied for registration to the CSRC in accordance with the requirements of the Trial Measures. We have completed the filing with the CSRC and obtained the required Filing Notice from the CSRC regarding this offering on November 28, 2023, which serves as notification from the CSRC of our completion of the required filing procedures with the CSRC for this offering. The main contents of the Filing Notice are as follows: (1) we propose to issue not more than 2,300,000 ordinary shares (exclusive of the ordinary shares underlying the representative’s warrants) and list them on The Nasdaq Stock Market LLC in the United States; (2) from the date of issuance of the Filing Notice to the completion of this offering, we shall, in accordance with the relevant provisions of the overseas issuance and listing of domestic enterprises, namely the Circular, the Trial Measures, and five supporting guidelines, report any major event to the CSRC through its filing management information system; (3) we shall, within 15 working days after completion of this offering, report the issuance and listing of our shares in connection with this offering through the CSRC’s filing management information system; and (4) if we fail to complete this offering within 12 months of the issuance date of the Filing Notice and intend to continue to proceed with this offering, we shall update the filing materials with the CSRC.

While we believe, apart from the completed filing with the CSRC per the requirements of the Trial Measures, we are currently not required to obtain any other permission from any PRC authorities to operate or to issue our ordinary shares to foreign investors, and we believe we and our subsidiaries are not required to obtain any other permission or approval relating to our ordinary shares from PRC authorities, there are risks that such actions could require permission or consent from various PRC authorities. In addition, we believe that we and our subsidiaries are not required to obtain permission or approval relating to our ordinary shares from PRC authorities, including the CSRC, apart from the completed filing with the CSRC per the requirements of the Trial Measures, and the CAC, for our subsidiaries’ operations, nor have we or our subsidiaries received any other approvals or denial for our subsidiaries’ operations with respect to this offering. Therefore, the understanding is that we and our subsidiaries are not currently covered by permission requirements from the CSRC, apart from the completed filing with the CSRC per the requirements of the Trial Measures, the CAC or any other governmental agency that is required to approve our operations, and no such permissions or approvals have been received or denied, apart from the completed filing procedures with the CSRC.

 

 As of the date of this prospectus, except for comments from the CSRC regarding the filing materials and the Filing Notice noted above, we have not received any formal inquiry, notice, warning, sanction, or objection from the CSRC with respect to this offering. Our PRC legal counsel, Beijing Dacheng Law Offices, LLP (Fuzhou), has advised us that, based on its understanding of the current PRC laws and regulations, apart from the requirement of reporting the issuance and listing of our shares in connection with this offering within 15 working days after the completion of this offering as stated in the Filing Notice and above, we and our subsidiaries are not required to obtain any other permission, consent, or approval from, or make any filing or other notice to, the PRC authorities, including the CSRC, relating to this offering.

  

 Governmental actions in China, including any decision to intervene or influence our operations at any time or to exert control over an offering of securities conducted overseas and/or foreign investment in China-based issuers, may cause us to make material changes to our operations, may limit or completely hinder our ability to offer or continue to offer securities to investors, and/or may cause the value of such securities to significantly decline or be worthless. 

 

Risks Related to our Ordinary Shares and this Offering

 

If we fail to implement and maintain an effective system of internal control, we may be unable to accurately report our operating results, meet our reporting obligations or prevent fraud.

 

Prior to this offering, we were a private company with limited accounting personnel and other resources with which to address our internal controls and procedures. Our management has not completed an assessment of the effectiveness of our internal control over financial reporting, and our independent registered public accounting firm has not conducted an audit of our internal control over financial reporting. 

 

In the course of auditing our consolidated financial statements as of and for the years ended December 31, 2022 and 2021, we and our independent registered public accounting firm identified two material weaknesses in our internal control over financial reporting as well as other control deficiencies. As defined in standards established by the Public Company Accounting Oversight Board (United States), a “material weakness” is a deficiency, or a combination of deficiencies, in internal control over financial reporting, such that there is a reasonable possibility that a material misstatement of our annual or interim financial statements will not be prevented or detected on a timely basis. The material weaknesses identified relate to (1) our lack of sufficient skilled staff with U.S. GAAP knowledge and the SEC reporting knowledge for the purpose of financial reporting as well as the lack in formal accounting policies and procedures manual to ensure proper financial reporting in accordance with U.S. GAAP and SEC reporting requirements; and (2) our lack of internal audit function to establish formal risk assessment process and internal control framework.

 

Upon completion of this offering, we will become a public company in the United States subject to the Sarbanes-Oxley Act of 2002. Section 404 of the Sarbanes-Oxley Act of 2002 will require that we include a report of management on our internal control over financial reporting in our annual report on Form 20-F beginning with our first required annual report for the prior fiscal year after completion of this offering. In addition, once we cease to be an “emerging growth company” as such term is defined under the JOBS Act, our independent registered public accounting firm must attest to and report on the effectiveness of our internal control over financial reporting. Our management may conclude that our internal control over financial reporting is not effective. Moreover, even if our management concludes that our internal control over financial reporting is effective, our independent registered public accounting firm, after conducting its own independent testing, may issue a report that is qualified if it is not satisfied with our internal controls or the level at which our controls are documented, designed, operated or reviewed, or if it interprets the relevant requirements differently from us. In addition, after we become a public company, our reporting obligations may place a significant strain on our management, operational and financial resources and systems for the foreseeable future. We may be unable to timely complete our evaluation testing and any required remediation.

 

During the course of documenting and testing our internal control procedures, in order to satisfy the requirements of Section 404 of the Sarbanes-Oxley Act of 2002, we may identify other weaknesses and deficiencies in our internal control over financial reporting. In addition, if we fail to maintain the adequacy of our internal control over financial reporting, as these standards are modified, supplemented or amended from time to time, we may not be able to conclude on an ongoing basis that we have effective internal control over financial reporting in accordance with Section 404 of the Sarbanes-Oxley Act of 2002. Generally, if we fail to achieve and maintain an effective internal control environment, we could suffer material misstatements in our financial statements and fail to meet our reporting obligations, which would likely cause investors to lose confidence in our reported financial information. This could in turn limit our access to capital markets, and harm our results of operations. Additionally, ineffective internal control over financial reporting could expose us to increased risk of fraud or misuse of corporate assets and subject us to potential delisting from the stock exchange on which we list, regulatory investigations and civil or criminal sanctions.

 

There has been no prior public market for our ordinary shares and an active trading market may never develop or be sustained.

 

Prior to this offering, there has been no public market for our ordinary shares. An active trading market for our ordinary shares may never develop following completion of this offering or, if developed, may not be sustained. The lack of an active trading market may impair the value of your shares and your ability to sell your shares at the time you wish to sell them. An inactive trading market may also impair our ability to raise capital by selling our ordinary shares and entering into strategic partnerships or acquiring other complementary products, technologies or businesses by using our ordinary shares as consideration. In addition, if we fail to satisfy exchange listing standards, we could be delisted, which would have a negative effect on the price of our ordinary shares.

  

32

 

 

We expect that the price of our ordinary shares will fluctuate substantially and you may not be able to sell the shares you purchase in this offering at or above the initial public offering price.

 

The initial public offering price for our ordinary shares sold in this offering is determined by negotiation between the representative of the underwriters and us. This price may not reflect the market price of our ordinary shares following this offering. In addition, the market price of our ordinary shares is likely to be highly volatile and may fluctuate substantially due to many factors, including:  

 

the volume and timing of sales of our products;

 

the introduction of new products or product enhancements by us or others in our industry;

 

disputes or other developments with respect to our or others’ intellectual property rights;

 

our ability to develop, obtain regulatory clearance or approval for, and market new and enhanced products on a timely basis;

 

product liability claims or other litigation;

 

variations in our results of operations or those of others in our industry;

 

media exposure of our products or of those of others in our industry;

 

changes in governmental regulations or in reimbursement;

 

changes in earnings estimates or recommendations by securities analysts; and

 

general market conditions and other factors, including factors unrelated to our operating performance or the operating performance of our competitors.

 

In recent years, the stock markets generally have experienced extreme price and volume fluctuations that have often been unrelated or disproportionate to the operating performance of those companies. Broad market and industry factors may significantly affect the market price of our ordinary shares, regardless of our actual operating performance. These fluctuations may be even more pronounced in the trading market for our ordinary shares shortly following this offering. If the market price of our ordinary shares after this offering does not ever exceed the initial public offering price, you may not realize any return on your investment in us and may lose some or all of your investment.

 

In addition, in the past, class action litigation has often been instituted against companies whose securities have experienced periods of volatility in market price. Securities litigation brought against us following volatility in our stock price, regardless of the merit or ultimate results of such litigation, could result in substantial costs, which would hurt our financial condition and operating results and divert management's attention and resources from our business.

 

Our stock is expected to initially trade under $5.00 per ordinary share and thus could be known as a penny stock, subject to certain exceptions. Trading in penny stocks has certain restrictions and these restrictions could negatively affect the price and liquidity of our ordinary shares.

 

Our stock is expected to initially trade below $5.00 per share. As a result, our stock could be known as a “penny stock”, subject to certain exceptions, which is subject to various regulations involving disclosures to be given to you prior to the purchase of any penny stock. The SEC has adopted regulations which generally define a “penny stock” to be any equity security that has a market price of less than $5.00 per share, subject to certain exceptions. Depending on market fluctuations, our ordinary shares could be considered to be a “penny stock”, subject to certain exceptions. A penny stock is subject to rules that impose additional sales practice requirements on broker/dealers who sell these securities to persons other than established members and accredited investors. For transactions covered by these rules, the broker/dealer must make a special suitability determination for the purchase of these securities. In addition, a broker/dealer must receive the purchaser’s written consent to the transaction prior to the purchase and must also provide certain written disclosures to the purchaser. Consequently, the “penny stock” rules may restrict the ability of broker/dealers to sell our ordinary shares, and may negatively affect the ability of holders of shares of our ordinary shares to resell them, if the “penny stock” rules apply. These disclosures require you to acknowledge that you understand the risks associated with buying penny stocks and that you can absorb the loss of your entire investment. Penny stocks generally do not have a very high trading volume. Consequently, the price of the stock is often volatile and you may not be able to buy or sell the stock when you want to.

 

If we fail to meet applicable listing requirements, Nasdaq may delist our ordinary shares from trading, in which case the liquidity and market price of our ordinary shares could decline.

 

Assuming our ordinary shares are listed on Nasdaq, we cannot assure you that we will be able to meet the continued listing standards of Nasdaq in the future. For example, legislative or other regulatory action in the United States could result in listing standards or other requirements that, if we cannot meet, may result in delisting and adversely affect our liquidity or the trading price of our shares that are listed or traded in the United States. If we fail to comply with the applicable listing standards and Nasdaq delists our ordinary shares, we and our shareholders could face significant material adverse consequences, including:

 

a limited availability of market quotations for our ordinary shares;

 

reduced liquidity for our ordinary shares;

 

a determination that our ordinary shares are “penny stock”, which would require brokers trading in our ordinary shares to adhere to more stringent rules and possibly result in a reduced level of trading activity in the secondary trading market for our ordinary shares;

 

a limited amount of news about us and analyst coverage of us; and

 

a decreased ability for us to issue additional equity securities or obtain additional equity or debt financing in the future.

 

If you purchase our ordinary shares in this offering, you will incur immediate and substantial dilution in the book value of your shares.

 

Investors purchasing our ordinary shares in this offering will pay a price per share that substantially exceeds the pro forma as adjusted net tangible book value per share. As a result, investors purchasing ordinary shares in this offering will incur immediate dilution of $1.23 per share, representing the difference between the initial public offering price of $4.00 per share and our pro forma as adjusted net tangible book value of $2.77 per share as of June 30, 2023. For more information on the dilution you may experience as a result of investing in this offering, see “Dilution.”

 

33

 

 

A significant portion of our total outstanding shares are restricted from immediate resale but may be sold into the market in the near future. This could cause the market price of our ordinary shares to drop significantly, even if our business is doing well.

 

Sales of a substantial number of our ordinary shares in the public market could occur at any time. These sales, or the perception in the market that these sales may occur, could result in a decrease in the market price of our ordinary shares. Immediately after this offering, we will have 10,700,000 outstanding ordinary shares, based on the number of ordinary shares outstanding as of June 30, 2023, assuming no exercise of the underwriters' over-allotment option. This includes the shares that we are selling in this offering, which may be resold in the public market immediately without restriction, unless purchased by our affiliates or existing shareholders. Of that amount, 9,200,000 shares are currently restricted as a result of securities laws and/or lock-up agreements, but will be able to be sold after the closing of this offering, subject to securities laws and/or lock-up agreements. If held by one of our affiliates, the resale of those securities will be subject to volume limitations under Rule 144 of the Securities Act. See “Shares Eligible for Future Sale.”

 

Our directors, officers and principal shareholders have significant voting power and may take actions that may not be in the best interests of our other shareholders.

 

As of the date of this prospectus, our directors, officers and principal shareholders holding 5% or more of our ordinary shares, collectively, control approximately 81% of our ordinary shares. After this offering, our directors, officers and principal shareholders holding 5% or more of our ordinary shares, collectively, will control approximately 69% of our outstanding ordinary shares. As a result, these shareholders, if they act together, will be able to control the management and affairs of our Company and most matters requiring shareholder approval, including the election of directors and approval of significant corporate transactions. The interests of these shareholders may not be the same as or may even conflict with your interests. For example, these shareholders could attempt to delay or prevent a change in control of us, even if such change in control would benefit our other shareholders, which could deprive our shareholders of an opportunity to receive a premium for their ordinary shares as part of a sale of us or our assets, and might affect the prevailing market price of our ordinary shares due to investors' perceptions that conflicts of interest may exist or arise. As a result, this concentration of ownership may not be in the best interests of our other shareholders.

 

We will have broad discretion in the use of proceeds of this offering designated for working capital and general corporate purposes.

 

We intend to use the net proceeds from this offering for working capital for our rural sewage treatment business, including to build our sewage treatment equipment, implementation of new systems and services and potential mergers and acquisitions of subsidiaries, although no definitive merger or acquisition targets have been identified, research and development, sales and marketing, and additional working capital and general corporate purposes, including increasing our liquidity. Within those categories, we have not determined the specific allocation of the net proceeds of this offering. Our management will have broad discretion over the use and investment of the net proceeds of this offering within those categories. Accordingly, investors in this offering have only limited information concerning management's specific intentions and will need to rely upon the judgment of our management with respect to the use of proceeds.

 

We expect to incur significant additional costs as a result of being a public company, which may adversely affect our business, financial condition and results of operations.

 

Upon completion of this offering, we expect to incur costs associated with corporate governance requirements that will become applicable to us as a public company, including rules and regulations of the SEC, under the Sarbanes-Oxley Act, the Dodd-Frank Wall Street Reform and Consumer Protection Act of 2010, and the Exchange Act, as well as the rules of the Nasdaq. These rules and regulations are expected to significantly increase our accounting, legal and financial compliance costs and make some activities more time-consuming. We also expect these rules and regulations to make it more expensive for us to obtain and maintain directors' and officers' liability insurance. As a result, it may be more difficult for us to attract and retain qualified persons to serve on our board of directors or as executive officers. Accordingly, increases in costs incurred as a result of becoming a publicly traded company may adversely affect our business, financial condition and results of operations.

 

Our disclosure controls and procedures may not prevent or detect all errors or acts of fraud.

 

Upon the closing of this offering, we will become subject to the periodic reporting requirements of the Exchange Act. We will design our disclosure controls and procedures to provide reasonable assurance that information we must disclose in reports we file or submit under the Exchange Act is accumulated and communicated to management, and recorded, processed, summarized and reported within the time periods specified in the rules and forms of the SEC. We believe that any disclosure controls and procedures, no matter how well-conceived and operated, can provide only reasonable, not absolute, assurance that the objectives of the control system are met.

 

These inherent limitations include the realities that judgments in decision-making can be faulty, and that breakdowns can occur because of simple error or mistake. Additionally, controls can be circumvented by the individual acts of some persons, by collusion of two or more people or by an unauthorized override of the controls. Accordingly, because of the inherent limitations in our control system, misstatements due to error or fraud may occur and not be detected.

 

Because we do not anticipate paying any cash dividends on our capital stock in the foreseeable future, capital appreciation, if any, will be your sole source of gain.

 

We have never declared or paid cash dividends. We currently intend to retain all of our future earnings, if any, to finance the growth and development of our business. As a result, capital appreciation, if any, of our ordinary shares will be your sole source of gain for the foreseeable future.

 

Securities analysts may not publish favorable research or reports about our business or may publish no information at all, which could cause our stock price or trading volume to decline.

 

If a trading market for our ordinary shares develops, the trading market will be influenced to some extent by the research and reports that industry or financial analysts publish about us and our business. We do not control these analysts. As a newly public company, we may be slow to attract research coverage and the analysts who publish information about our ordinary shares will have had relatively little experience with us or our industry, which could affect their ability to accurately forecast our results and could make it more likely that we fail to meet their estimates. In the event we obtain securities or industry analyst coverage, if any of the analysts who cover us provide inaccurate or unfavorable research or issue an adverse opinion regarding our stock price, our stock price could decline. If one or more of these analysts cease coverage of us or fail to publish reports covering us regularly, we could lose visibility in the market, which in turn could cause our stock price or trading volume to decline and result in the loss of all or a part of your investment in us.

 

34

 

 

Recently introduced economic substance legislation of the Cayman Islands may impact us and our operations.

 

The Cayman Islands, together with several other non-European Union jurisdictions, has recently introduced legislation aimed at addressing concerns raised by the Council of the European Union as to offshore structures engaged in certain activities which attract profits without real economic activity. With effect from January 1, 2019, the International Tax Co-operation (Economic Substance) Act, 2018, or the Substance Law, and issued Regulations and Guidance Notes came into force in the Cayman Islands introducing certain economic substance requirements for “relevant entities” which are engaged in certain “relevant activities,” which in the case of exempted companies incorporated before January 1, 2019, will apply in respect of financial years commencing July 1, 2019 and onwards. A “relevant entity” includes an exempted company incorporated in the Cayman Islands; however, it does not include an entity that is tax resident outside the Cayman Islands. Accordingly, for so long as we are a tax resident outside the Cayman Islands, we are not required to satisfy the economic substance test. Although it is presently anticipated that the Substance Law will have little material impact on us and our operations, as the legislation is new and remains subject to further clarification and interpretation it is not currently possible to ascertain the precise impact of these legislative changes on us and our operations.

 

You may face difficulties in protecting your interests, and your ability to protect your rights through U.S. courts may be limited, because we are incorporated under Cayman Islands law.

 

We are an exempted company incorporated under the laws of the Cayman Islands. Our corporate affairs are governed by our memorandum and articles of association, the Companies Act (2023 Revision) of the Cayman Islands and the common law of the Cayman Islands. The rights of shareholders to take action against our directors, actions by our minority shareholders and the fiduciary duties of our directors to us under Cayman Islands law are to a large extent governed by the common law of the Cayman Islands. The common law of the Cayman Islands is derived in part from comparatively limited judicial precedent in the Cayman Islands as well as from the common law of England, the decisions of whose courts are of persuasive authority, but are not binding, on a court in the Cayman Islands. The rights of our shareholders and the fiduciary duties of our directors under Cayman Islands law are not as clearly established as they would be under statutes or judicial precedent in some jurisdictions in the United States. In particular, the Cayman Islands have a less developed body of securities laws than the United States. Some U.S. states, such as Delaware, have more fully developed and judicially interpreted bodies of corporate law than the Cayman Islands. In addition, Cayman Islands companies may not have standing to initiate a shareholder derivative action in a federal court of the United States.

 

Shareholders of Cayman Islands exempted companies like us have no general rights under Cayman Islands law to inspect corporate records (other than the memorandum and articles of association) or to obtain copies of lists of shareholders of these companies. Our amended and restated memorandum and articles of association, or our post-offering memorandum and articles of association, will become effective and replace our current memorandum and articles of association in its entirety immediately prior to the completion of this offering. Our directors have discretion under our post-offering memorandum and articles of association to determine whether or not, and under what conditions, our corporate records may be inspected by our shareholders, but are not obliged to make them available to our shareholders unless required by the Companies Act of the Cayman Islands or other applicable law or authorized by the directors or by ordinary resolution. This may make it more difficult for you to obtain the information needed to establish any facts necessary for a shareholder motion or to solicit proxies from other shareholders in connection with a proxy contest.

 

Certain corporate governance practices in the Cayman Islands, which is our home country, differ significantly from requirements for companies incorporated in other jurisdictions such as the United States. Currently, we do not plan to rely on home country practices with respect to any corporate governance matter. To the extent we choose to follow home country practices with respect to corporate governance matters, our shareholders may be afforded less protection than they otherwise would under rules and regulations applicable to U.S. domestic issuers.

 

35

 

 

As a result of all of the above, our public shareholders may have more difficulty in protecting their interests in the face of actions taken by management, members of the board of directors or controlling shareholders than they would as public shareholders of a company incorporated in the United States. For a discussion of significant differences between the provisions of the Companies Act of the Cayman Islands and the laws applicable to companies incorporated in the United States and their shareholders, see “Description of Share Capital and Governing Documents — Comparison of Cayman Islands Corporate Law and U.S. Corporate Law.”

 

Certain judgments obtained against us by our shareholders may not be enforceable.

 

We, CDT Cayman, are a Cayman Islands holding company and all of our assets are located outside of the United States. All of our current operations are conducted in China through our subsidiaries. In addition, most of our current directors and officers are nationals and residents of countries other than the United States. Substantially all of the assets of these persons are located outside the United States. As a result, it may be difficult or impossible for you to bring an action against us or against these individuals in the United States in the event that you believe that your rights have been infringed under the U.S. federal securities laws or otherwise. Even if you are successful in bringing an action of this kind, the laws of the Cayman Islands and of China may render you unable to enforce a judgment against our assets or the assets of our directors and officers.

 

We are an emerging growth company within the meaning of the Securities Act and will take advantage of certain reduced reporting requirements.

 

We are an "emerging growth company," as defined in the JOBS Act, and we are taking advantage of certain exemptions from requirements applicable to other public companies that are not emerging growth companies, including, most significantly, not being required to comply with the auditor attestation requirements of Section 404 of the Sarbanes-Oxley Act of 2002 for so long as we remain an emerging growth company. As a result, as we will not comply with such auditor attestation requirements, our investors will not have access to certain information they may deem important.

 

The JOBS Act also provides that an emerging growth company does not need to comply with any new or revised financial accounting standards until such date that a private company is otherwise required to comply with such new or revised accounting standards. We do not plan to "opt out" of such exemptions afforded to an emerging growth company. As a result of this election, our financial statements may not be comparable to those of companies that comply with public company effective dates.

 

We qualify as a foreign private issuer and, as a result, we will not be subject to U.S. proxy rules and will be subject to Exchange Act reporting obligations that permit less detailed and less frequent reporting than that of a U.S. domestic public company.

 

Upon the closing of this offering, we will report under the Exchange Act as a non-U.S. company with foreign private issuer status. Because we qualify as a foreign private issuer under the Exchange Act, we are exempt from certain provisions of the Exchange Act that are applicable to U.S. domestic public companies, including (i) the sections of the Exchange Act regulating the solicitation of proxies, consents or authorizations in respect of a security registered under the Exchange Act; (ii) the sections of the Exchange Act requiring insiders to file public reports of their stock ownership and trading activities and liability for insiders who profit from trades made in a short period of time; and (iii) the rules under the Exchange Act requiring the filing with the SEC of quarterly reports on Form 10-Q containing unaudited financial and other specified information, or current reports on Form 8-K upon the occurrence of specified significant events. In addition, our officers, directors and principal shareholders are exempt from the reporting and “short-swing” profit recovery provisions of Section 16 of the Exchange Act and the rules thereunder. Therefore, our shareholders may not know on a timely basis when our officers, directors and principal shareholders purchase or sell our ordinary shares. In addition, foreign private issuers are not required to file their annual report on Form 20-F until 120 days after the end of each fiscal year, while U.S. domestic issuers that are accelerated filers are required to file their annual report on Form 10-K within 75 days after the end of each fiscal year. Foreign private issuers also are exempt from Regulation Fair Disclosure, aimed at preventing issuers from making selective disclosures of material information. As a result of the above, you may not have the same protections afforded to shareholders of companies that are not foreign private issuers.

 

If we lose our status as a foreign private issuer, we would be required to comply with the Exchange Act reporting and other requirements applicable to U.S. domestic issuers, which are more detailed and extensive than the requirements for foreign private issuers. We may also be required to make changes in our corporate governance practices in accordance with various SEC and Nasdaq rules. The regulatory and compliance costs to us under U.S. securities laws if we are required to comply with the reporting requirements applicable to a U.S. domestic issuer may be significantly higher than the cost we would incur as a foreign private issuer. As a result, we expect that a loss of foreign private issuer status would increase our legal and financial compliance costs and would make some activities highly time consuming and costly. We also expect that if we were required to comply with the rules and regulations applicable to U.S. domestic issuers, it would make it more difficult and expensive for us to obtain and maintain directors’ and officers’ liability insurance, and we may be required to accept reduced coverage or incur substantially higher costs to obtain coverage. These rules and regulations could also make it more difficult for us to attract and retain qualified members of our board of directors.

 

As a foreign private issuer, we are permitted to adopt certain home country practices in relation to corporate governance matters that differ significantly from Nasdaq corporate governance listing standards. These practices may afford less protection to shareholders than they would enjoy if we complied fully with corporate governance listing standards.

 

As a foreign private issuer, we are permitted to take advantage of certain provisions in the Nasdaq rules that allow us to follow our home country law for certain governance matters. Certain corporate governance practices in our home country, the Cayman Islands, may differ significantly from corporate governance listing standards. Currently, we do not plan to rely on home country practices with respect to our corporate governance after we complete this offering. However, if we choose to follow home country practices in the future, our shareholders may be afforded less protection than they would otherwise enjoy under the Nasdaq corporate governance listing standards applicable to U.S. domestic issuers.

 

36

 

 

There can be no assurance that we will not be a passive foreign investment company, or PFIC, for U.S. federal income tax purposes for any taxable year, which could result in adverse U.S. federal income tax consequences to U.S. holders of our ordinary shares.

 

A non-U.S. corporation will be a PFIC for any taxable year if either (1) at least 75% of its gross income for such year consists of certain types of "passive" income; or (2) at least 50% of the value of its assets (based on an average of the quarterly values of the assets) during such year is attributable to assets that produce passive income or are held for the production of passive income, or the asset test. Based on our current and expected income and assets (taking into account the expected cash proceeds and our anticipated market capitalization following this offering), we do not presently expect to be a PFIC for the current taxable year or the foreseeable future. However, no assurance can be given in this regard because the determination of whether we are or will become a PFIC is a fact-intensive inquiry made on an annual basis that depends, in part, upon the composition of our income and assets. In addition, there can be no assurance that the Internal Revenue Service, or IRS, will agree with our conclusion or that the IRS would not successfully challenge our position. Fluctuations in the market price of our ordinary shares may cause us to become a PFIC for the current or subsequent taxable years because the value of our assets for the purpose of the asset test may be determined by reference to the market price of our ordinary shares. The composition of our income and assets may also be affected by how, and how quickly, we use our liquid assets and the cash raised in this offering. If we were to be or become a PFIC for any taxable year during which a U.S. Holder holds our ordinary shares, certain adverse U.S. federal income tax consequences could apply to such U.S. Holder. See “Material Income Tax Considerations—Passive Foreign Investment Company Consequences.”

 

We may lose our foreign private issuer status in the future, which could result in significant additional costs and expenses.

 

As discussed above, we are a foreign private issuer, and therefore, we are not required to comply with all of the periodic disclosure and current reporting requirements of the Exchange Act. The determination of foreign private issuer status is made annually on the last business day of an issuer’s most recently completed second fiscal quarter. We would lose our foreign private issuer status if, for example, more than 50% of our ordinary shares are directly or indirectly held by residents of the United States and we fail to meet additional requirements necessary to maintain our foreign private issuer status. If we lose our foreign private issuer status on this date, we will be required to file with the SEC periodic reports and registration statements on U.S. domestic issuer forms, which are more detailed and extensive than the forms available to a foreign private issuer. We will also have to mandatorily comply with U.S. federal proxy requirements, and our officers, directors and principal shareholders will become subject to the short-swing profit disclosure and recovery provisions of Section 16 of the Exchange Act. In addition, we will lose our ability to rely upon exemptions from certain corporate governance requirements under the Nasdaq rules. As a U.S. listed public company that is not a foreign private issuer, we will incur significant additional legal, accounting and other expenses that we will not incur as a foreign private issuer, and accounting, reporting and other expenses in order to maintain a listing on a U.S. securities exchange. 

 

The price of our ordinary shares could be subject to rapid and substantial volatility, and such volatility may make it difficult for prospective investors to assess the rapidly changing value of our ordinary shares.

There have been instances of extreme stock price run-ups followed by rapid price declines and strong stock price volatility with recent initial public offerings, especially among those with relatively smaller public floats. As a relatively small-capitalization company with relatively small public float, we may experience greater stock price volatility, extreme price run-ups, lower trading volume and less liquidity than large-capitalization companies. In particular, our ordinary shares may be subject to rapid and substantial price volatility, low volumes of trades and large spreads in bid and ask prices. Such volatility, including any stock-run up, may be unrelated to our actual or expected operating performance and financial condition or prospects, making it difficult for prospective investors to assess the rapidly changing value of our ordinary shares.

In addition, if the trading volumes of our ordinary shares are low, persons buying or selling in relatively small quantities may easily influence prices of our ordinary shares. This low volume of trades could also cause the price of our ordinary shares to fluctuate greatly, with large percentage changes in price occurring in any trading day session. Holders of our ordinary shares may also not be able to readily liquidate their investment or may be forced to sell at depressed prices due to low volume trading. Broad market fluctuations and general economic and political conditions may also adversely affect the market price of our ordinary shares. As a result of this volatility, investors may experience losses on their investment in our ordinary shares. A decline in the market price of our Ordinary Shares also could adversely affect our ability to issue additional ordinary shares and our ability to obtain additional financing in the future. No assurance can be given that an active market in our ordinary shares will develop or be sustained. If an active market does not develop, holders of our ordinary shares may be unable to readily sell the shares they hold or may not be able to sell their shares at all.

37

 

 

SPECIAL NOTE REGARDING FORWARD-LOOKING STATEMENTS

 

This prospectus contains forward-looking statements that involve substantial risks and uncertainties. In some cases, you can identify forward-looking statements by the words “may,” “might,” “will,” “could,” “would,” “should,” “expect,” “intend,” “plan,” “goal,” “objective,” “anticipate,” “believe,” “estimate,” “predict,” “potential,” “continue” and “ongoing,” or the negative of these terms, or other comparable terminology intended to identify statements about the future. These statements involve known and unknown risks, uncertainties and other important factors that may cause our actual results, levels of activity, performance or achievements to be materially different from the information expressed or implied by these forward-looking statements. The forward-looking statements and opinions contained in this prospectus are based upon information available to us as of the date of this prospectus and, while we believe such information forms a reasonable basis for such statements, such information may be limited or incomplete, and our statements should not be read to indicate that we have conducted an exhaustive inquiry into, or review of, all potentially available relevant information. Forward-looking statements include statements about:

 

timing of the development of future business;

 

capabilities of our business operations;

 

expected future economic performance;

 

  the impact of COVID-19 on the Company;

 

competition in our markets;

 

continued market acceptance of our products;

 

exposure to product liability and defect claims;

 

protection of our intellectual property rights;

 

changes in the laws that affect our operations;

 

inflation and fluctuations in foreign currency exchange rates;

 

  our ability to obtain and maintain all necessary government certifications, approvals, and/or licenses to conduct our business;

 

continued development of a public trading market for our securities;

 

the cost of complying with current and future governmental regulations and the impact of any changes in the regulations on our operations;

 

managing our growth effectively;

 

projections of revenue, earnings, capital structure and other financial items;

 

fluctuations in operating results;

 

dependence on our senior management and key employees; and

 

other factors set forth under “Risk Factors.”

 

You should refer to the section titled “Risk Factors” for a discussion of important factors that may cause our actual results to differ materially from those expressed or implied by our forward-looking statements. As a result of these factors, we cannot assure you that the forward-looking statements in this prospectus will prove to be accurate. Furthermore, if our forward-looking statements prove to be inaccurate, the inaccuracy may be material. In light of the significant uncertainties in these forward-looking statements, you should not regard these statements as a representation or warranty by us or any other person that we will achieve our objectives and plans in any specified time frame, or at all. We undertake no obligation to publicly update any forward-looking statements, whether as a result of new information, future events or otherwise, except as required by law.

 

You should read this prospectus and the documents that we reference in this prospectus and have filed as exhibits to the registration statement, of which this prospectus forms a part, completely and with the understanding that our actual future results may be materially different from what we expect. We qualify all of our forward-looking statements by these cautionary statements.

 

38

 

 

INDUSTRY AND MARKET DATA

 

This prospectus includes statistical and other industry and market data that we obtained from industry publications and research, surveys and studies conducted by third parties, as well estimates by our management based on such data. The market data and estimates used in this prospectus involve a number of assumptions and limitations, and you are cautioned not to give undue weight to such data and estimates. While we believe that the information from these industry publications, surveys and studies is reliable, the industry in which we operate is subject to a high degree of uncertainty and risk due to a variety of important factors, including those described in the section titled “Risk Factors.” These and other factors could cause results to differ materially from those expressed in the estimates made by the independent parties and by us.

 

39

 

 

USE OF PROCEEDS

 

We estimate that the net proceeds from the sale of 1,500,000 ordinary shares in this offering will be approximately $4.9 million after deducting the underwriting discounts and estimated offering expenses payable by us, based on the initial public offering price of $4.00 per ordinary share. If the underwriters exercise their over-allotment option in full, we estimate that the net proceeds to us from this offering will be approximately $5.7 million, after deducting the underwriting discounts and estimated offering expenses payable by us.

  

The primary purposes of this offering are to create a public market for our shares for the benefit of all shareholders, retain talented employees, and obtain additional capital. We plan to use the net proceeds of this offering as follows:

 

approximately 45% for working capital purposes for rural sewage treatment, including to build our sewage treatment equipment;

 

approximately 35% for implementation of new systems and services and potential mergers and acquisitions of subsidiaries, although no definitive merger or acquisition targets have been identified;

 

approximately 15% for research and development; and

 

the remainder for sales and marketing, additional working capital and general corporate purposes, including increasing our liquidity.

 

This expected use of the net proceeds from this offering represents our intentions based upon our current plans and prevailing business conditions, which could change in the future as our plans and prevailing business conditions evolve. As a result, our management will retain broad discretion over the allocation of the net proceeds from this offering and we reserve the right to change the use of proceeds that we presently anticipate and describe herein.

 

Pending any use described above, we plan to invest the net proceeds in short-term, interest-bearing, debt instruments.

 

We have agreed with the underwriters in this offering to establish an escrow account in the United States and to fund such account with $600,000 from this offering that may be utilized by the underwriters to fund any bona fide indemnification claims of the underwriters arising during a 24 month period following the closing of this offering. The escrow account will be interest bearing, and we will be free to invest the assets in securities. All funds that are not subject to an indemnification claim will be returned to us after the applicable period expires.

 

The net proceeds from this offering must be remitted to China before we will be able to use the funds to grow our business in China. The procedure to remit funds may take several months after completion of this offering, and we will be unable to use the offering proceeds in China until remittance is completed.

 

In utilizing the proceeds of this offering in the manner described herein, as a Cayman Islands holding company of our PRC subsidiaries, we may only make (i) loans to our PRC subsidiaries, or (ii) additional capital contributions to our PRC subsidiaries. Any shareholder loan or additional capital contribution are subject to PRC regulations. For example, loans by us or making additional capital contributions to our subsidiaries in China, which are FIEs, to finance their activities cannot exceed statutory limits, while shareholder loans must be also registered with the SAFE and additional capital contributions are subject to prior PRC governmental approval. The statutory limit for the total amount of foreign debts of a foreign-invested company is the difference between the amount of total investment as approved by MOFCOM or its local counterpart and the amount of registered capital of such foreign-invested company.

 

To remit the proceeds of this offering, we must take the steps legally required under the PRC laws, including obtaining PRC governmental registrations and approvals, which may take several months. In light of the various requirements imposed by PRC regulations on loans to, and direct investment in, PRC entities by offshore holding companies, we cannot assure you that we will be able to complete the necessary government registrations or obtain the necessary government approvals on a timely basis, if at all, with respect to future loans by us to our PRC subsidiaries or with respect to future capital contributions by us to our PRC subsidiaries. If we fail to complete such registrations or obtain such approvals, our ability to use the proceeds from this offering in China and to capitalize or otherwise fund our PRC operations may be negatively affected, which could materially and adversely affect our liquidity, our ability to fund and expand our business and the value of our ordinary shares.

  

40

 

 

DIVIDEND POLICY

 

We have never declared or paid a dividend, and we do not anticipate declaring or paying dividends in the foreseeable future. We intend to retain all available funds and any future earnings to fund the development and expansion of our business.

 

We, CDT Cayman, are a holding company incorporated in the Cayman Islands. We may rely on dividends from our subsidiaries in China for our cash requirements, including any payment of dividends to our shareholders. PRC, Hong Kong and British Virgin Islands regulations may restrict the ability of our PRC, Hong Kong and British Virgin Islands subsidiaries to pay dividends to us.

 

41

 

 

CAPITALIZATION

 

The following table sets forth our capitalization as of June 30, 2023 on:

 

an actual basis; and

 

  a pro forma as adjusted basis to give effect to the sale of 1,500,000 ordinary shares in this offering at the initial public offering price of $4.00 per ordinary share after deducting the underwriting discounts and estimated offering expenses payable by us, assuming the underwriters do not exercise the over-allotment option.

 

You should read this information together with our audited consolidated financial statements appearing elsewhere in this prospectus and the information set forth under the sections titled “Exchange Rate Information,” “Use of Proceeds” and “Management’s Discussion and Analysis of Financial Condition and Results of Operations.” 

 

   As of June 30, 2023
   Actual
(Unaudited)
  Pro Forma As
Adjusted (1)
Ordinary shares, $0.0025 par value per share: 20,000,000 shares authorized; 9,200,000 shares issued and outstanding; 10,700,000 shares issued and outstanding pro forma  $23,000   $26,750 
Additional paid-in capital   7,453,265    12,330,747 
Statutory reserves   2,629,667    2,629,667 
Retained earnings   18,422,413    18,422,413 
Accumulated other comprehensive loss   (2,505,799)   (2,505,799)
Total CDT Cayman shareholders’ equity   26,022,546    30,903,778 
Noncontrolling interest (2)   333,935    333,935 
Total shareholders’ equity   26,356,481    31,237,713 
Total capitalization  $26,356,481   $31,237,713 

 

(1) Reflects the sale of ordinary shares in this offering at an initial public offering price of $4.00 per share, and after deducting the underwriting discounts and estimated offering expenses payable by us. Additional paid-in capital reflects the net proceeds we expect to receive, after deducting the underwriting discounts and estimated offering expenses payable by us. We estimate that such net proceeds will be approximately $4.9 million. For an itemization of an estimation of the total offering expenses payable by us, see “Expenses Related to this Offering”.

 

(2) Noncontrolling interest represents the portion of the net assets of CDT Cayman’s subsidiaries attributable to interests that are not owned by CDT Cayman and its subsidiaries.

 

42

 

 

DILUTION

 

If you invest in our ordinary shares in this offering, your interest will be immediately diluted to the extent of the difference between the initial public offering price per ordinary share in this offering and the net tangible book value per ordinary share after this offering. Dilution results from the fact that the initial public offering price per ordinary share is substantially in excess of the net tangible book value per ordinary share. As of June 30, 2023, we had a historical net tangible book value of approximately $24.7 million or $2.69 per ordinary share. Our net tangible book value per share represents total tangible assets less total liabilities, all divided by the number of ordinary shares outstanding as of June 30, 2023.

 

After giving effect to the sale of ordinary shares in this offering at the initial public offering price of $4.00 per ordinary share and after deducting the underwriting discounts and estimated offering expenses payable by us, our pro forma as adjusted net tangible book value at June 30, 2023 would have been approximately $29.6 million, or $2.77 per ordinary share. This represents an immediate increase in pro forma as adjusted net tangible book value of $0.08 per ordinary share to existing investors and immediate dilution of $1.23 per ordinary share to new investors. The following table illustrates this dilution to new investors purchasing ordinary shares in this offering:

 

   Post-
Offering
(1)
  Full
Exercise
of Over-
allotment
Option
Initial public offering price per ordinary share  $4.00   $4.00 
Net tangible book value per ordinary share as of June 30, 2023  $2.69   $2.69 
Increase in pro forma as adjusted net tangible book value per ordinary share attributable to new investors purchasing ordinary shares in this offering  $0.08   $0.10 
Pro forma as adjusted net tangible book value per ordinary share after this offering  $2.77   $2.78 
Dilution per ordinary share to new investors in this offering  $1.23   $1.22 

   

(1)Assumes that the underwriters’ over-allotment option has not been exercised.

 

If the underwriters exercise their over-allotment option in full, the pro forma as adjusted net tangible book value per ordinary share after this offering would be $2.78 per share, the increase in net tangible book value per ordinary share to existing shareholders would be $0.10 per share, and the immediate dilution in net tangible book value per ordinary share to new investors in this offering would be $1.22 per share.

 

The table and discussion above is based on 9,200,000 ordinary shares outstanding as of June 30, 2023.

 

To the extent that we issue additional ordinary shares in the future, there will be further dilution to new investors participating in this offering.

 

43

 

 

EXCHANGE RATE INFORMATION

 

We are a Cayman Islands holding company and our business is primarily conducted in China through our subsidiaries, and the financial records of our subsidiaries in China are maintained in RMB, their functional currency. However, we use the U.S. dollar as our reporting and functional currency; therefore, reports made to shareholders will include current period amounts translated into U.S. dollars using the then-current exchange rates, for the convenience of the readers. Our consolidated financial statements have been translated into U.S. dollars in accordance with FASB ASC Topic 830, “Foreign Currency Matters.” The financial information is first prepared in RMB and then is translated into U.S. dollars at period-end exchange rates as to assets and liabilities and average exchange rates as to the statements of income Equity accounts are translated at their historical exchange rates when the equity transactions occurred. Translation adjustments resulting from this process are included in accumulated other comprehensive income (loss). Transaction gains and losses that arise from exchange rate fluctuations on transactions denominated in a currency other than the functional currency are included in the results of operations as incurred. Translation adjustments included in accumulated other comprehensive income (loss) amounted to $2,505,799, $1,490,621 and $559,752 as of June 30, 2023, December 31, 2022 and December 31, 2021, respectively. The balance sheet amounts, with the exception of shareholders’ equity at June 30, 2023, December 31, 2022 and December 31, 2021 were translated at 7.23 RMB, 6.96 RMB and 6.38 RMB to $1.00, respectively, and at 7.84 HKD, 7.80 HKD and 7.80 HKD to $1.00, respectively. The shareholders’ equity accounts are stated at their historical exchange rates. The average translation rates applied to the statements of income accounts for the six months ended June 30, 2023 and 2022 were 6.93 RMB and 6.48 RMB to $1.00, respectively, and were 7.84 HKD and 7.83 HKD to $1.00, respectively. The average translation rates applied to the statements of income accounts for the years ended December 31, 2022 and 2021 were 6.73 RMB and 6.45 RMB to $1.00, respectively, and were 7.83 HKD and 7.77 HKD to $1.00, respectively. Cash flows are also translated at average translation rates for the periods, therefore, amounts reported on the statements of cash flows will not necessarily agree with changes in the corresponding balances on the consolidated balance sheets.

 

We make no representation that any RMB or U.S. dollar amounts could have been, or could be, converted into U.S. dollars or RMB, as the case may be, at any particular rate, or at all. The PRC government imposes control over its foreign currency reserves in part through direct regulation of the conversion of RMB into foreign exchange and through restrictions on foreign trade. We do not currently engage in currency hedging transactions.

 

With respect to amounts not recorded in our consolidated financial statements included elsewhere in this prospectus, unless otherwise stated, all translations from RMB to U.S. dollars were made at RMB 7.2513 to $1.00, the noon buying rate on June 30, 2023, as set forth in the H.10 statistical release of the Board of Governors of the Federal Reserve System. We make no representation that the RMB or U.S. dollar amounts referred to in this prospectus could have been or could be converted into U.S. dollars or RMB, as the case may be, at any particular rate or at all.

 

44

 

 

CORPORATE HISTORY AND STRUCTURE

 

Corporate History and Structure

 

CDT Environmental Technology Investment Holdings Limited, or CDT Cayman, is a holding company incorporated on November 28, 2016, under the laws of the Cayman Islands. CDT Cayman has no substantive operations other than holding all of the outstanding equity of Chao Qiang Holdings Limited, or CQ BVI, established under the laws of the British Virgin Islands on December 14, 2015, and all of the outstanding equity of CDT Environmental Technology Group Limited, or CDT BVI, established under the laws of the British Virgin Islands on June 26, 2015.

 

CQ BVI is a holding company holding all of the outstanding equity of Ultra Leader Investments Limited, or Ultra HK, which was established in Hong Kong on February 27, 2015. Ultra HK is a holding company holding 15% of the outstanding equity of Shenzhen CDT Environmental Technology Co., Ltd., or Shenzhen CDT, which was established on August 27, 2012 under the laws of the PRC.

 

CDT BVI is a holding company holding all of the outstanding equity of CDT Environmental Technology (Hong Kong) Limited, or CDT HK, which was established in Hong Kong on July 30, 2015. CDT HK is also a holding company holding 85% of the outstanding equity of Shenzhen CDT. We, through Ultra HK and CDT HK, hold 100% of the outstanding equity of Shenzhen CDT. Shenzhen CDT holds equity interests in the PRC subsidiaries noted in the charts below.

 

We, through our subsidiaries, including Shenzhen CDT, engage in developing, producing, selling and installing sewage treatment systems and providing sewage treatment services.

 

The charts below summarize our corporate legal structure and identify our subsidiaries as of the date of this prospectus and upon completion of this offering:

  

Name   Background   Ownership
Chao Qiang Holdings Limited  

●       A British Virgin Islands company

●       Incorporated on December 14, 2015

●       A holding company

  100% owned by CDT Environmental Technology Investment Holdings Limited
CDT Environmental Technology Group Limited  

●       A British Virgin Islands company

●       Incorporated on June 26, 2015

●       A holding company

  100% owned by CDT Environmental Technology Investment Holdings Limited
Ultra Leader Investments Limited  

●       A Hong Kong company

●       Incorporated on February 27, 2015

●       A holding company

  100% owned by Chao
Qiang Holdings Limited
CDT Environmental Technology (Hong Kong) Limited  

●       A Hong Kong company

●       Incorporated on July 30, 2015

●       A holding company

  100% owned by CDT Environmental Technology Group Limited
Shenzhen CDT Environmental Technology Co., Ltd.  

●       A PRC limited liability company

●       Incorporated on August 27, 2012

●       Registered capital of RMB 60,000,000 (approximately $9.0 million)

●       Developing, producing, selling and installing sewage treatment systems and providing sewage treatment services

 

100% collectively owned by Ultra Leader Investments Limited (15%) and CDT

Environmental Technology (Hong Kong) Limited (85%)

 

45

 

 

Beijing CDT Environmental Technology Co., Ltd.  

●       A PRC limited liability company

●       Incorporated on April 25, 2016

●       Registered capital of RMB 20,000,000 (approximately $3.0 million)

●       Providing sewage treatment services

  100% owned by Shenzhen CDT Environmental Technology Co., Ltd.

Fuzhou LSY Environmental Technology Co., Ltd.

 

 

●       A PRC limited liability company

●       Incorporated on March 13, 2015

●       Registered capital of RMB 5,000,000 (approximately $0.8 million)

●       Providing sewage treatment services

 

51% owned by Shenzhen CDT Environmental Technology Co., Ltd.

 

Tianjin CDT Environmental Technology Co., Ltd.

 

 

●       A PRC limited liability company

●       Incorporated on October 22, 2014

●       Registered capital of RMB 10,000,000 (approximately $1.5 million)

●       Providing sewage treatment services

 

100% owned by Shenzhen CDT Environmental Technology Co., Ltd.

 

Chengde CDT Environmental Technology Co., Ltd.

 

 

●       A PRC limited liability company

●       Incorporated on March 26, 2015

●       Registered capital of RMB 5,000,000 (approximately $0.8 million)

●       Providing sewage treatment services

 

51% owned by Shenzhen CDT Environmental Technology Co., Ltd.

 

Beijing Innovation CDT Environmental Technology Co., Ltd.

 

 

●       A PRC limited liability company

●       Incorporated on September 7, 2016

●       Registered capital of RMB 5,000,000 (approximately $0.8 million)

●       Providing sewage treatment services

 

51% owned by Shenzhen CDT Environmental Technology Co., Ltd.

 

Baoding CDT Environmental Technology Co., Ltd.

 

 

●       A PRC limited liability company

●       Incorporated on October 21, 2015

●       Registered capital of RMB 5,000,000 (approximately $0.8 million)

●       Providing sewage treatment services

 

51% owned by Shenzhen CDT Environmental Technology Co., Ltd.

 

Hengshui CDT Environmental Technology Co., Ltd.

 

 

●       A PRC limited liability company

●       Incorporated on May 18, 2015

●       Registered capital of RMB 3,000,000 (approximately $0.5 million)

●       Providing sewage treatment services

 

51% owned by Shenzhen CDT Environmental Technology Co., Ltd.

 

Guangxi CWT Environmental Technology Co., Ltd.

 

 

●       A PRC limited liability company

●       Incorporated on January 29, 2016

●       Registered capital of RMB 5,000,000 (approximately $0.8 million)

●       Providing sewage treatment services

 

51% owned by Shenzhen CDT Environmental Technology Co., Ltd.

 

Huzhou CDT Environmental Technology Co., Ltd.

 

 

●       A PRC limited liability company

●       Incorporated on February 6, 2015

●       Registered capital of RMB 5,000,000 (approximately $0.8 million)

●       Providing sewage treatment services

 

51% owned by Shenzhen CDT Environmental Technology Co., Ltd.

 

Hohhot CDT Environmental Technology Co., Ltd.

 

 

●       A PRC limited liability company

●       Incorporated on February 11, 2015

●       Registered capital of RMB 5,000,000 (approximately $0.8 million)

●       Providing sewage treatment services

 

51% owned by Shenzhen CDT Environmental Technology Co., Ltd.

 

Taiyuan CDT Environmental Technology Co., Ltd.

 

 

●       A PRC limited liability company

●       Incorporated on March 23, 2015

●       Registered capital of RMB 5,000,000 (approximately $0.8 million)

●       Providing sewage treatment services

 

51% owned by Shenzhen CDT Environmental Technology Co., Ltd.

 

  

46

 

 

The structure of cash flows within our organization, and a summary of the applicable regulations, is as follows:

 

1. Our equity structure is a direct holding structure. The overseas entity to be listed in the U.S., CDT Environmental Technology Investment Holdings Limited, or CDT Cayman, which was established in the Cayman Islands, directly controls all of the outstanding share capital of Shenzhen CDT Environmental Technology Co., Ltd., or Shenzhen CDT, which was established in the PRC, and other operating subsidiaries in the PRC.

 

CDT Cayman holds all of the outstanding equity of Chao Qiang Holdings Limited, or CQ BVI, which was established in the British Virgin Islands, and CDT Environmental Technology Group Limited, or CDT BVI, which was established in the British Virgin Islands.

 

CQ BVI holds all of the outstanding equity of Ultra Leader Investments Limited, or Ultra HK, which was established in Hong Kong. CDT BVI holds all of the outstanding equity of CDT Environmental Technology (Hong Kong) Limited, or CDT HK, which was established in Hong Kong.

 

Ultra HK holds 15% of the outstanding equity of Shenzhen CDT. CDT HK holds 85% of the outstanding equity of Shenzhen CDT.

 

CDT Cayman, through Ultra HK and CDT HK, hold 100% of the outstanding equity of Shenzhen CDT. See “Corporate History and Structure” for additional details.

 

2. Within our direct holding structure, the cross-border transfer of funds within our corporate group is legal and compliant with the laws and regulations of the PRC. After foreign investors’ funds enter CDT Cayman at the close of this offering, the funds can be directly transferred to CDT BVI, then transferred to CDT HK, and then to subordinate PRC entities through Shenzhen CDT, subject to applicable PRC regulations, as noted below. The net proceeds from this offering must be remitted to China before we will be able to use the funds to grow our business in China.

 

Any funds we transfer to our PRC subsidiaries, including those received from this offering, must be transferred either as a shareholder loan or as an increase in registered capital, are subject to approval by or registration with relevant governmental authorities in China, which may take several months. The net proceeds from this offering must be remitted to China before we will be able to use the funds to grow the business in China. The procedure to remit funds may take several months after completion of this offering, and we will be unable to use the offering proceeds in China until remittance is completed. An increase in registered capital procedure requires prior approval from each of the respective local counterparts of the MOFCOM, the SAMR, and the SAFE. In addition, (a) any foreign loan procured by our PRC subsidiaries is required to be registered with the SAFE or its local branches, and (b) our PRC subsidiaries may not procure loans which exceed the statutory amount as approved by the MOFCOM or its local branches. Further, any medium-or long- term loan to be provided by us to our PRC subsidiaries must be approved by the NDRC and the SAFE or its local branches.

 

Further, regulations on the control of currency conversions, including SAFE Circular 19 may significantly limit our ability to use Renminbi converted from the net proceeds of this offering to fund the establishment of new entities in China by our subsidiaries, to invest in or acquire any other PRC companies through our PRC subsidiaries, or to establish consolidated variable interest entities in the PRC, which may adversely affect our business, financial condition and results of operations. See “Risk Factors—Risks Related to Doing Business in China—PRC regulation of loans to and direct investment in PRC entities by offshore holding companies and governmental control of currency conversion may delay us from using the proceeds of this offering to make loans or additional capital contributions to our PRC subsidiaries, which could materially and adversely affect our liquidity and our ability to fund and expand our business.”

 

Further, SAFE Circular 37 requires PRC residents (including PRC individuals and PRC corporate entities) to register with SAFE or its local branches in connection with their direct or indirect offshore investment activities. When a registered overseas special purpose company changes basic information such as its Chinese resident individual shareholders, name or operating terms, or changes important matters such as capital increase, capital reduction, equity transfer or replacement, merger or division of Chinese resident individual shareholders, it shall promptly go through the registration formalities for changes in foreign exchange for overseas investment with the SAFE. According to the provisions of SAFE Circular 37, except for Yunwu Li, no other relevant personnel of this listing are required to register foreign exchange or foreign exchange changes. As of the date of this prospectus, to our knowledge, Yunwu Li, our chief executive officer and chairman of our board of directors and chairman of the board of directors and general manager of Shenzhen CDT, had completed the foreign exchange registration, but had not completed the change registration and was in the process of registration. The completion of his change registration will affect the procedure of transferring any dividends he obtains from CDT Cayman to China. Yunwu Li will not be able to process the remittance of profits and dividends before completing the registration of foreign exchange changes in overseas investments. However, the net proceeds from this offering which must be remitted to China will not be affected since Shenzhen CDT previously completed the foreign direct investment foreign exchange registration in 2016. See “Risk Factors—Risks Related to Doing Business in China—PRC regulations relating to the establishment of offshore special purpose companies by PRC residents may subject our PRC resident beneficial owners or our PRC subsidiaries to liability or penalties, limit our ability to inject capital into our PRC subsidiaries, limit our PRC subsidiaries’ ability to increase their registered capital or distribute profits to us, or may otherwise adversely affect us.”

 

If we intend to distribute dividends, we will transfer the dividends to CDT HK in accordance with the laws and regulations of the PRC, then CDT HK will transfer the dividends to CDT BVI, and then to CDT Cayman, and the dividends will be distributed from CDT Cayman to all shareholders respectively in proportion to the shares they hold, regardless of whether the shareholders are U.S. investors or investors in other countries or regions.

 

3. As of the date of this prospectus, no cash and other asset transfers have occurred among us, CDT Cayman, and our subsidiaries; no dividends or distributions by any subsidiary have been made to date to us, CDT Cayman, or to investors; and no transfers, dividends or distributions have been made by us, CDT Cayman, to our subsidiaries or to U.S. investors to date. For the foreseeable future, we intend to retain all available funds and any future earnings to fund the development and expansion of our business. As a result, we do not expect to pay any cash dividends. To date, we, CDT Cayman and our subsidiaries, have been funded through shareholder capital contributions, bank loans, third party loans and related party loans. See the unaudited condensed consolidated statements of change in shareholders’ equity on page F-4 and Notes 10 and 11 on pages F-21 through F-23 of the notes to the unaudited condensed consolidated financial statements included elsewhere in this prospectus. As of June 30, 2023, these consisted of shareholder capital contributions of $7.5 million, which are reflected as par value and additional paid-in capital in the unaudited condensed consolidated financial statements included elsewhere in this prospectus (see the unaudited condensed consolidated statements of change in shareholders’ equity on page F-4 of the unaudited condensed consolidated financial statements included elsewhere in this prospectus), bank loans of $2.3 million (see pages F-22 and F-23 of Note 11 of the notes to the unaudited condensed consolidated financial statements included elsewhere in this prospectus), third party loans of $0.3 million (see page F-23 of Note 11 of the notes to the unaudited condensed consolidated financial statements included elsewhere in this prospectus) and related party loans of $4.3 million (see page F-22 of Note 10 of the notes to the unaudited condensed consolidated financial statements included elsewhere in this prospectus). See the unaudited condensed consolidated statements of change in shareholders’ equity on page F-4 and Notes 10 and 11 on pages F-21 through F-23 of the notes to the unaudited condensed consolidated financial statements included elsewhere in this prospectus. As of the date of this prospectus, none of CDT Cayman or its subsidiaries has written cash management policies or procedures in place that dictate how funds are transferred. Rather, the funds can be transferred in accordance with the applicable PRC laws and regulations.

 

4. Our PRC subsidiaries’ ability to distribute dividends is based upon their distributable earnings. Current PRC regulations permit such PRC subsidiaries to pay dividends to their respective shareholders only out of their accumulated profits, if any, determined in accordance with PRC accounting standards and regulations. In addition, each of our PRC subsidiaries is required to set aside at least 10% of its after-tax profits each year, if any, to fund a statutory reserve until such reserve reaches 50% of each of their respective registered capital. These reserves are not distributable as cash dividends.

 

To address persistent capital outflows and the RMB’s depreciation against the U.S. dollar in the fourth quarter of 2016, the People’s Bank of China and SAFE have implemented a series of capital control measures in the subsequent months, including stricter vetting procedures for China-based companies to remit foreign currency for overseas acquisitions, dividend payments and shareholder loan repayments. The PRC government may continue to strengthen its capital controls and our PRC subsidiaries’ dividends and other distributions may be subject to tightened scrutiny in the future. The PRC government also imposes controls on the conversion of RMB into foreign currencies and the remittance of currencies out of the PRC. Therefore, we may experience difficulties in completing the administrative procedures necessary to obtain and remit foreign currency for the payment of dividends from the profits of any of our PRC subsidiaries, if any. Furthermore, if any of our subsidiaries in the PRC incur debt on their own in the future, the instruments governing the debt may restrict their ability to pay dividends or make other payments.

 

In addition, the Enterprise Income Tax Law and its implementation rules provide that a withholding tax at a rate of 10% would be applicable to dividends paid by mainland China companies to non-PRC-resident enterprises unless reduced under treaties or arrangements between the PRC central government and the governments of other countries or regions where the non-PRC resident enterprises are tax resident. Pursuant to the tax agreement between mainland China and the Hong Kong Special Administrative Region, the withholding tax rate in respect to the payment of dividends by a mainland China enterprise to a Hong Kong enterprise may be reduced to 5% from a standard rate of 10%. However, if the relevant tax authorities determine that our transactions or arrangements are for the primary purpose of enjoying a favorable tax treatment, the relevant tax authorities may decide that a tax rate that is more than the favorable withholding tax rate of 5% will be applicable to dividends received by our Hong Kong subsidiary from our mainland China subsidiaries in the future. Accordingly, there is no assurance that the reduced 5% withholding rate will apply to dividends received by our Hong Kong subsidiary from our mainland China subsidiaries. A higher withholding tax rate will reduce the amount of dividends we may receive from our mainland China subsidiaries.

 

47

 

 

48

 

 

MANAGEMENT’S DISCUSSION AND ANALYSIS OF

FINANCIAL CONDITION AND RESULTS OF OPERATIONS

 

The following discussion and analysis of our financial condition and results of operations should be read in conjunction with our consolidated financial statements and related notes included elsewhere in this prospectus. This discussion and analysis and other parts of this prospectus contain forward-looking statements based upon current beliefs, plans and expectations that involve risks, uncertainties and assumptions. Our actual results and the timing of selected events could differ materially from those anticipated in these forward-looking statements as a result of several factors, including those set forth under “Risk Factors” and elsewhere in this prospectus. You should carefully read the “Risk Factors” section of this prospectus to gain an understanding of the important factors that could cause actual results to differ materially from our forward-looking statements.

 

Overview

 

We, through our subsidiaries, are a waste treatment company that generates revenue through design, development, manufacture, sales, installation, operation, and maintenance of sewage treatment systems and by providing sewage treatment services. We, through our subsidiaries, primarily engage in two business lines: sewage treatment systems and sewage treatment services in both urban and rural areas. Sewage treatment systems are sometimes also referred to herein as rural sewage treatment, and sewage treatment services are sometimes also referred to herein as septic tank treatment. Our goal is to become one of the premier sewage treatment solution companies in China.

 

For sewage treatment systems, we sell and install our proprietary rural sewage treatment systems and provide on-going operation and maintenance services to our customers. For sewage treatment services, we provide on-site treatment services with our mobile and fixed septic tank treatment systems.

  

The core of our business is our proprietary systems and technology, together with our experience and expertise in waste treatment services, particularly in rural sewage treatment and septic tank treatment. As of December 31, 2023, we had 2 invention patents, 38 utility model patents, 3 trademarks and 2 computer software copyrights. We are continually working to upgrade our quick separation technology and septic tank treatment systems through independent research and development and partnerships with third-party institutions to further develop our mobile septic tank treatment system.

 

We have grown rapidly since our inception. We generate revenues primarily from establishment and setup of sewage treatment systems installation with government and non-government contracts and providing sewage treatment services for sewage systems. However, we were negatively impacted by the COVID-19 pandemic throughout 2020 and our business started to gradually recover in 2021 and beyond. Our total revenues gained upward momentum by increasing approximately $2.6 million, or 20.2%, to approximately $15.5 million for the six months ended June 30, 2023 as compared to approximately $12.9 million for the six months ended June 30, 2022. Furthermore, our total revenue increased approximately $5.3 million, or 22.5%, to approximately $28.8 million for the year ended December 31, 2022 as compared to approximately $23.6 million for the year ended December 31, 2021. As of the date of this prospectus, as the COVID-19 related restrictions have been lifted by the PRC government, we expect most of our projects from sewage treatment systems installation to resume upon approval from the local governments and our total revenues to continue to recover due to demand for our services.

As of date of this prospectus, we have two projects in backlog, which are referred to as the Lianjiang Project and the Wuyishan Project - Phase 2. The Lianjiang Project was signed and commenced in January 2023, and Wuyishan Project - Phase 2 was signed and commenced in July 2023. Per the agreements for the projects, the total tentative contracted amount of the two projects is approximately RMB 170 million ($23.2 million), consisting of the tentatively fixed amount of RMB 140 million (approximately $19.1 million) for the Lianjiang Project, and the tentatively fixed amount of RMB 30 million (approximately $4.1 million) for the Wuyishan Project - Phase 2, per the terms of the agreements. Key terms of the agreements for the two projects include:

 

the project name and location;
duration, price and payment terms;
quality, safety and construction requirements; and
breach of contract terms.

 

49

 

 

The summaries of such agreements are qualified by reference to the full text of the translated agreements which are filed as exhibits to the registration statement of which this prospectus forms a part.

 

We are also in the process of acquiring four projects for our sewage treatment systems, which are expected to be signed and commenced in the second quarter of 2024. There can be no guarantee that these remaining projects will be acquired, or that, even if they are acquired, that they will be completed in a timely manner or at all.

 

Key Factors that Affect Operating Results

   

Our management has observed the trends and uncertainties of government efforts to control sewage waste discharge, which we believe may have a direct impact on our operations in the near future.

 

Our operating subsidiaries are incorporated, and our operations and assets are all located, in China. Accordingly, our results of operations, financial condition and prospects are affected by China’s economic and regulatory conditions, which could be influenced by the following factors: (a) an economic downturn in China or any regional market in China; (b) economic policies and initiatives undertaken by the Chinese government; (c) changes in the Chinese or regional business or regulatory environment affecting our customers; and (d) changes in the Chinese government policy on sewage waste discharge. Unfavorable changes could affect demand for services that we provide and could materially and adversely affect the results of operations. Although we have generally benefited from China’s economic growth and the policies to encourage the improvement of reducing of sewage waste discharge, we are also affected by the complexity, uncertainties and changes in the Chinese economic conditions and regulations governing the sewage industry. 

In December 2019, a novel strain of coronavirus, or COVID-19 or the coronavirus, surfaced and it has spread rapidly to many parts of China and other parts of the world, including the United States. The COVID-19 pandemic has resulted in quarantines, travel restrictions, and the temporary closure of stores and business facilities in China and several other parts of the world, including the United States. In March 2020, the World Health Organization declared COVID-19 a pandemic. All of our revenue is concentrated in China through our subsidiaries. Consequently, our revenues were impacted by COVID-19 and were significantly lower in 2020 as compared to the same period of 2019. We had to comply with the temporary closure of stores and business facilities, or the ‘shelter in place’ order, in China in the first quarter of 2020. As a result, we closed our facilities in January 2020 and re-opened them in late March 2020. The COVID-19 outbreak materially adversely affected our business operations, financial condition and operating results for 2020 and 2021, including but not limited to material negative impact on our total revenues, slower collection of accounts receivable and additional allowances for doubtful accounts. Despite the ongoing COVID-19 pandemic, we resumed relatively normal business operations after March 2020. However, the resurgence of COVID-19, particularly the Omnicron variant, has resulted in government restrictions in quarantines, travel and the temporary closures of stores and business facilities in parts of China and the world during the first few months of 2022. As of date of this prospectus, the PRC government has lifted the above mentioned restrictions. In December 2022, the Chinese government unveiled a series of new COVID-related policies to loosen its zero-COVID policy, and uplifted the existing prevention and control measures that were in place for the COVID-19 pandemic. On December 26, 2022, China’s National Health Commission announced that the COVID-19 infections will not be subject to the prevention and control measures of a Class A infectious disease, which means that COVID-19 infections will no longer be included in the administration of quarantinable infectious diseases. Starting from January 8, 2023, among other changes, China no longer conducts nucleic acid tests or centralized quarantine for all inbound travelers, and measures to control the number of international passenger flights have been lifted. We expect our business operations, financial condition and operating results to continue to recover from the negative impact of the COVID-19 pandemic. However, due to the significant uncertainties surrounding the COVID-19 pandemic, the extent of the business disruption and the related financial impact cannot be reasonably estimated at this time. For a discussion of the risks associated with COVID-19, see “COVID-19 Update” and “Risk Factors—Risks Related to Our Business—We face risks related to natural disasters, health epidemics and other outbreaks, particularly the coronavirus, which could significantly disrupt our operations.” 

 

50

 

 

Results of Operations

 

Comparison of Six Months Ended June 30, 2023 and 2022

 

   For the Six Months Ended June 30,
            Percentage
   2023  2022  Change  Change
Revenues  $15,463,803   $12,866,964   $2,596,839    20.2%
Cost of revenues   10,639,643    8,179,909    2,459,734    30.1%
Gross profit   4,824,160    4,687,055    137,105    2.9%
Selling expenses   51,435    89,389    (37,954)   (42.5)%
General and administrative expenses   1,292,367    1,527,768    (235,401)   (15.4)%
Research and development expenses   42,829    78,928    (36,099)   (45.7)%
Provision for
credit loss
   1,090,957    2,206,624    (1,115,667)   (50.6)%
Income from operations   2,346,572    784,346    1,562,226    199.2%
Other expense, net   (109,093)   (14,810)   (94,283)    636.6%
Provision for income taxes   429,197    215,944    213,253    98.8%
Net income  $1,808,282   $553,592   $1,254,690    226.6%

 

Revenues

Our revenues are derived from sewage treatment systems and sewage treatment services in both urban and rural areas. Total revenues increased by approximately $2.6 million, or 20.2%, to approximately $15.5 million for six month ended June 30, 2023, compared to approximately $12.9 million for the six months ended June 30, 2022. The overall increase was mainly due to the increase in our sewage treatment systems revenues by approximately $2.5 million, or 21.0%, to $14.4 million for the six months ended June 30, 2023, compared to approximately $11.9 million for the six months ended June 30, 2022.

 

Our revenues from our revenue categories are summarized as follows:

 

   For the Six Months Ended  For the Six Months Ended      
   June 30,
2023
  June 30,
2022
  Change  Change (%)
Revenues                    
Sewage treatment systems  $14,445,779   $11,935,083   $2,510,696    21.0%
Sewage treatment services   1,018,024    931,881    86,143    9.2%
Total revenues  $15,463,803   $12,866,964   $2,596,839    20.2%

 

Sewage treatment systems revenues

 

Revenues from sewage treatment system installations increased by approximately $2.5 million, or 21.0%, to approximately $14.4 million for the six months ended June 30, 2023 from approximately $11.9 million for the six months ended June 30, 2022. This increase was primarily attributed to the progress or completion of projects initiated in 2021 and 2022, along with our involvement in two new projects in 2023. For the six months ended June 30, 2023, we successfully initiated two new projects, and completed four projects from 2019 to 2022. Meanwhile, we had six projects which were still in progress as of June 30, 2023. For the six months ended June 30, 2022, we had not initiated any new projects due to the resurgence of the COVID-19 pandemic in the first half of 2022 that caused the delay of the project bidding process and eventually effected our ability to acquire new projects during such time.

  

As of the date of this prospectus, one projects outstanding from the year ended December 31, 2022 had been completed, and the rest are expected to be completed within the next twelve months. Meanwhile, we have acquired one project in July 2023 through participating in new projects’ bidding processes related to our sewage treatment systems business. Our revenue from sewage treatment systems will continue to grow for the remaining of 2023 and beyond.

 

51

 

 

Sewage treatment services revenues

 

Revenues from sewage treatment services increased by approximately $86,000, or 9.2%, to approximately $1.0 million for the six months ended June 30, 2023, from approximately $932,000 for the six months ended June 30, 2022.

 

Revenue from sewage treatment services will remain minimal as our business development will mainly focus on sewage treatment systems.

 

Cost of Revenues

 

Total cost of revenues increased by approximately $2.5 million, or 30.1% to approximately $10.6 million for the six months ended June 30, 2023 as compared to approximately $8.2 million for the six months ended June 30, 2022. The increase in cost of revenues is a direct result of our increase of revenues.

 

Our cost of revenues from our revenue categories are summarized as follows:

 

   For the Six Months
Ended
  For the Six Months Ended      
   June 30,
2023
  June 30,
2022
  Change  Change (%)
Cost of Revenues                    
Cost of sewage treatment systems  $9,947,063   $7,567,370   $2,379,693    31.4%
Cost of sewage treatment services   692,580    612,539    80,041    13.1%
Total cost of revenue  $10,639,643   $8,179,909   $2,459,734    30.1%

 

Our cost of revenues from sewage treatment systems increased by approximately $2.4 million, or 31.4%, to approximately $9.9 million for the six months ended June 30, 2023 from approximately $7.6 million for the six months ended June 30, 2022. This increase in the cost of revenues from sewage treatment systems is due to increase in revenues from sewage treatment systems while we also experienced increase in labor and material cost.

Our cost of revenues from sewage treatment services increased by approximately $80,000, or 13.1%, to approximately $0.7 million for the six months ended June 30, 2023, from approximately $0.6 million for the six months ended June 30, 2022. The decrease in the cost of revenues from sewage treatment services is in line with the increase of revenue from sewage treatment services.

 

Gross Profit

 

Our gross profit from our major revenue categories are summarized as follows:

 

   For the Six Months
Ended June 30,
2023
  For the Six Months Ended June 30,
2022
  Change  Change (%)
Sewage treatment systems                    
Gross profit margin  $4,498,716   $4,367,713   $131,003    3.0%
Gross profit percentage   31.1%   36.6%   (5.5)%     
                     
Sewage treatment services                    
Gross profit margin  $325,444   $319,342   $6,102    1.9%
Gross profit percentage   32.0%   34.3%   (2.3)%     
                     
Total                    
Gross profit margin  $4,824,160   $4,687,055   $137,105    2.9%
Gross profit percentage   31.2%   36.4%   (5.2)%     

 

Our gross profit increased by approximately $0.1 million, or 2.9 %, to approximately $4.8 million for six months ended June 30, 2023 from approximately $4.7 million for the six months ended June 30, 2022. The increase in gross profit is primarily due to the increase of sewage treatment systems revenue as discussed above.

 

For the six months ended June 30, 2023 and 2022, our overall gross profit percentage was 31.2% and 36.4%, respectively. The decrease in gross profit percentage of 5.2% was primarily due to the following:

 

Gross profit percentage for sewage treatment systems was 31.1% and 36.6% for the six months ended June 30, 2023 and 2022, respectively. The decrease of gross profit percentage of 5.5% was mainly attributable to increase material and labor cost.

  

52

 

 

Operating Expenses  

 

Total operating expenses decrease by approximately $1.4 million or 36.5% to approximately $2.5 million for the six months ended June 30, 2023 from approximately $3.9 million for the six months ended June 30, 2022. The decrease was mainly attributable to the following:

 

The approximately $38,000 decrease in selling expenses can be mainly attributed to decrease of approximately $25,000 in advertising expenses.

 

The approximately $0.2 million decrease in general and administrative expenses was primarily attributable to $0.3 million decrease in salary expense due to we maintained less staff from our administrative department as we intended to minimize our general and administrative expenses.

 

The approximately $1.1 million decrease in allowance for credit loss was result of our effect to improve our collection cycle of our accounts receivable.

 

Other expense, net 

 

The approximately $94,000 increase in other expense, net was mainly attributable to the increase in loss from disposal of fixed assets as we disposed of a few malfunctioned sewages cleaning equipment from our sewage treatment service.

Provision for income taxes

 

Our provision for income taxes increased by approximately $0.2 million to approximately $0.4 million for the six months ended June 30, 2023 from approximately $0.2 million for the six months ended June 30, 2022. The increase was primarily due to increase in our income before tax. Additionally, it was also attributable to a decreased deferred tax benefit as we recognized less provision for credit loss during the six months ending June 30, 2023, compared to the same period in 2022.

 

Net income

Our net income increased by approximately $1.3 million, or 226.6%, to net income of approximately $1.8 million for the six months ended June 30, 2023, from approximately $0.6 million net income for the six months ended June 30, 2022. Such change was due to the reasons as discussed above.

 

Comparison of Years Ended December 31, 2022 and 2021

 

   For the Years Ended December 31,
            Percentage
   2022  2021  Change  Change
Revenues  $28,849,362   $23,556,820   $5,292,542    22.5%
Cost of revenues   18,596,207    15,062,490    3,533,717    23.5%
Gross profit   10,253,155    8,494,330    1,758,825    20.7%
Selling expenses   164,583    177,147    (12,564)   (7.1)%
General and administrative expenses   3,150,512    2,400,318    750,194    31.3%
Research and development expenses   112,668    136,690    (24,022)   (17.6)%
(Recovery from) provision for doubtful accounts   471,454    (1,865,622)   2,337,076    (125.3)%
Income (loss) from operations   6,353,938    7,645,797    (1,291,859)   (16.9)%
Other income, net   41,814    140,273    (98,459)   (70.2)%
Provision for income taxes   1,152,963    1,207,810    (54,847)   (4.5)%
Net income  $5,242,789   $6,578,260   $(1,335,471)   (20.3)%

 

 Revenues

 

Our revenues are derived from sewage treatment systems and sewage treatment services in both urban and rural areas. Total revenues increased by approximately $5.3 million, or 22.5%, to approximately $28.8 million for the year ended December 31, 2022, compared to approximately $23.6 million for the year ended December 31, 2021. The overall increase was mainly due to the increase in our sewage treatment systems revenues.

 

Our revenues from our revenue categories are summarized as follows:

 

   For the Year Ended  For the Year Ended      
   December 31,
2022
  December 31,
2021
  Change  Change (%)
Revenues                    
Sewage treatment systems  $26,552,481   $20,272,996   $6,279,485    31.0%
Sewage treatment services   2,296,881    3,283,824    (986,943)   (30.1)%
Total revenues  $28,849,362   $23,556,820   $5,292,542    22.5%

 

Sewage treatment systems revenues

 

Revenues from sewage treatment system installations increased by approximately $6.3 million, or 31.0%, to approximately $26.6 million for the year ended December 31, 2022, from approximately $20.3 million for the year ended December 31, 2021. The increase was primarily attributed to the progress or completion of projects initiated in 2021, along with our involvement in new projects in 2022. For the year ended December 31, 2022, we successfully initiated four new projects, and completed two projects from 2020 and 2021. Meanwhile, we had nine projects which were still in progress as of December 31, 2022. For the year ended December 31, 2021, we successfully initiated three new projects, and completed two projects from 2019 and 2021. As of the date of this prospectus, five projects outstanding from the year ended December 31, 2022 had been completed, and the rest are expected to be completed within the next twelve months. Our revenue from sewage treatment systems will continue to grow in the remaining of 2023 and beyond.

 

53

 

 

Sewage treatment services revenues

 

Revenues from sewage treatment services decreased by approximately $1.0 million, or 30.1%, to approximately $2.3 million for the year ended December 31, 2022, from approximately $3.3 million for the year ended December 31, 2021. The decrease was mainly due to our shift in focus to sewage treatment systems operation and dedicated more capital resources for its business development.

 

Cost of Revenues


Total cost of revenues increased by approximately $3.5 million, or 23.5% to approximately $18.6 million for the year ended December 31, 2022 as compared to approximately $15.1 million for the year ended December 31, 2021. The increase in cost of revenues is a direct result of our increase of revenues.

 

Our cost of revenues from our revenue categories are summarized as follows:

 

  For the Year Ended  For the Year Ended      
  December 31, 2022  December 31,
2021
  Change  Change (%)
Cost of Revenues                     
Cost of sewage treatment systems   $17,170,669,   $12,816,882   $4,353,787    34.0%
Cost of sewage treatment services    1,425,538    2,245,608    (820,070)   (36.5)%
Total cost of revenue   $18,596,207   $15,062,490   $3,533,717    23.5%

 

Our cost of revenues from sewage treatment systems increased by approximately $4.4 million, or 34.0%, to approximately $17.2 million for the year ended December 31, 2022, from approximately $12.8 million for the year ended December 31, 2021. The increase in the cost of revenues from sewage treatment systems is in line with the increase in revenues from sewage treatment systems.

Our cost of revenues from sewage treatment services decreased by approximately $0.8 million, or 36.5%, to approximately $1.4 million for the year ended December 31, 2022, down from approximately $2.2 million for the year ended December 31, 2021. The decrease in the cost of revenues from sewage treatment services was primarily due to the decrease in revenue from sewage treatment services.

 

Gross Profit

 

Our gross profit from our major revenue categories are summarized as follows:

 

   For the Year Ended
December 31, 2022
  For the Year Ended
December 31, 2021
  Change  Change (%)
Sewage treatment systems                    
Gross profit margin  $9,381,812   $7,456,114   $1,925,698    25.8%
Gross profit percentage   35.3%   36.8%   (1.5)%     
                     
Sewage treatment services                    
Gross profit margin  $871,343   $1,038,216   $(166,873)   (16.1)%
Gross profit percentage   37.9%   31.6%   6.3%     
                     
Total                    
Gross profit margin  $10,253,155   $8,494,330   $1,758,825    20.7%
Gross profit percentage   35.5%   36.1%   (0.5)%     

 

54

 

 

Our gross profit increased by approximately $1.8 million, or 20.7 %, to approximately $10.3 million for the year ended December 31, 2022 from approximately $8.5 million for the year ended December 31, 2021. The increase in gross profit is primarily due to the increase of sewage treatment systems revenue as discussed above.

 

For the years ended December 31, 2022 and 2021, our overall gross profit percentage was 35.5% and 36.1%, respectively. The decrease in gross profit percentage of 0.5% was primarily due to the following:

 

Gross profit percentage for sewage treatment systems was 35.3% and 36.8% for the years ended December 31, 2022 and 2021, respectively. The slight decrease of gross profit percentage of 1.5% was mainly attributable to increase material and labor cost.

 

The gross profit percentage for sewage treatment services was 37.9% for the year ended December 31, 2022, compared to 31.6% for the same period in 2021. The increase of 6.3% increase in the gross profit percentage was primarily attributed to our efforts to streamline our staff as we retained only well-qualified and experienced technicians to serve our customers. Consequently, we were able to enhance the efficiency of our sewage treatment services and reduce labor costs. 

 

Operating Expenses

 

Total operating expenses increased by approximately $3.1 million or 359.5% to approximately $3.9 million for the year ended December 31, 2022 from approximately $0.8 million for the year ended December 31, 2021. The increase was mainly attributable to the following:

 

The approximately $13,000 decrease in selling expenses can be mainly attributed to a reduction of approximately $32,000 in advertising expenses.

 

The approximately $0.8 million increase in general and administrative expenses was primarily attributable to $0.6 million increase in audit expenses as we incurred additional audit fees due to re-audit work performed by the new auditor on some of our prior-period data as a result of change of auditor.

 

We incurred provision for doubtful accounts of approximately $0.5 million for the year ended December 31, 2022 as we make additional provision for allowance of doubtful account for certain accounts receivable or other receivables with extended aging. For the same period in 2021, we recorded recovery of doubtful accounts of accounts receivable balance amounted to approximately $1.9 million which has been previously allowanced.

 

55

 

 

Other income, net 

 

The approximately $98,000 decrease in other income was mainly attributable to the decrease in interest income of $76,000 from loans to third parties as most of the outstanding balance from 2020 was collected in late 2021, and we did not incur any new loans to third parties for the year ended December 31, 2022.

Provision for (benefit of) income taxes

 

Our provision for income taxes decreased by approximately $50,000 to approximately $1.1 million for the year ended December 31, 2022, from approximately $1.2 million for the year ended December 31, 2021. The decrease was primarily due to a decrease in deferred tax expense as we reserved more allowance for doubtful account for the year ended December 31, 2022 resulting in increase of deferred tax assets. The decrease was offset by an increase of approximately $0.2 million increase in current income tax expenses resulting from an increase of our taxable income.

 

Net income

 

Our net income decreased by approximately $1.4 million, or 20.3%, to net income of approximately $5.2 million for the year ended December 31, 2022, from approximately $6.6 million net income for the year ended December 31, 2021. Such change was due to the reasons as discussed above.

   

56

 

 

Liquidity and Capital Resources

 

In assessing our liquidity, we monitor and analyze our cash on-hand and our operating expenditure commitments. Our liquidity needs are to meet our working capital requirements and operating expense obligations. To date, we have financed our operations primarily through cash flows from operations, and short-term borrowing from banks and third parties.

 

As of June 30, 2023, our working capital was approximately $11.2 million, cash and restricted cash amounted to approximately $0.5 million, our current assets were approximately $40.8 million and our current liabilities were approximately $29.6 million. We had net income of approximately $1.8 million and $5.2 million for the six months ended June 30, 2023 and for the year ended December 31, 2022, respectively. We believe our current working capital and cash position is sufficient to support our operations for the next twelve months from the issuance of the financial statements.

 

We intend to use the net proceeds raised from this offering to grow our business primarily by:

 

  investing working capital for rural sewage treatments, including building our sewage treatment equipment;

 

  implementing new systems and services and potential mergers and acquisitions, although no definitive merger or acquisition targets have been identified; and

 

  investing in our research and development and sales and marketing capabilities.

 

As of June 30, approximately $0.5 million and $19,000 were deposited with financial institutions located in the PRC and Hong Kong, respectively. Current foreign exchange and other regulations in the PRC may restrict our PRC entities in their ability to transfer their net assets to us in the Cayman Islands and to our subsidiaries in the British Virgin Islands and Hong Kong. However, because we have no present plans to declare dividends, these restrictions will likely have no impact on us. Instead, we plan to use our retained earnings to continue to grow our business. These restrictions also have no impact on our ability to meet our cash obligations as all of our current cash obligations are in the PRC.

 

The following summarizes the key components of our cash flows for the six months ended June 30, 2023 and 2022, and for the year ended December 31, 2022 and 2021:

 

   For the Six Months Ended June 30,
   2023  2022
       
Net cash used in operating activities  $(1,325,210)  $(1,976,902)
Net cash used in investing activities   (123,947)   (76,417)
Net cash provided by financing activities   1,753,207    1,422,586 
Effect of exchange rate change on cash and restricted cash   (12,450)   (62,534)
Net change in cash and restricted cash  $291,600  $(693,267)

 

   For the Years Ended December 31,
   2022  2021
       
Net cash used in operating activities  $(4,472,780)  $(129,639)
Net cash (used in) provided by investing activities   (94,452)   1,832,837 
Net cash provided by (used in) financing activities   3,732,742    (927,826)
Effect of exchange rate change on cash and restricted cash   (100,608)   (4,106)
Net change in cash and restricted cash  $(935,098)  $771,266 

   

57

 

 

Operating activities

 

Net cash used in operating activities was approximately $1.3 million for the six months ended June 30, 2023 and was primarily attributable to (i) an approximately $4.8 million net increase in contract assets and contract costs, which was due to the reasons discussed below under the section “contract assets” and “contract costs”, and (ii) approximately $0.8 million increase in accounts receivable which was due to the reason discussed below under the section “accounts receivable”, (iii) approximately $0.1 million increase in other receivables for additional service deposits with our third party service provider and advances to our employee for operational purposes, (iv) approximately $0.2 million decrease in other payables and accrued liabilities as we make more timely payments for accrued expense, (v) approximately $0.1 million from the deferred tax benefit related to the additional allowance for doubtful account from long aging accounts receivable, offset by (i) a net income of approximately $1.8 million, (ii) approximately $1.6 million in non-cash items such as depreciation and amortization, provision for doubtful accounts, and loss on disposal of equipment, (iii) an approximately $ 0.9 million increase in accounts payable, which was due to the reasons discussed below under the section “accounts payable”, (iv) an approximately $0.3 million decrease in prepayments and other current assets as we utilized prepayment made in prior period for contractor labor, material in current sewage treatment systems projects, and (v) approximately $0.1 million increase in taxes payable due to an increase in income taxes payable due to our current taxable income. 

 

Net cash used in operating activities was approximately $2.0 million for the six months ended June 30, 2022 and was primarily attributable to (i) approximately $0.3 million from the deferred tax benefit related to the additional allowance for doubtful account from long aging accounts receivable, (ii) an approximately $0.3 million increase in prepayments as we prepaid third party contractor labor and materials which we expect to utilize in our sewage treatment systems projects and consulting fees related to obtaining future contracts with customers, (iii) approximately $0.4 million increase in other receivables for additional service deposits with our third party service provider and advances to our employee for operational purposes, and (iv) an approximately $6.5 million increase in contract assets and contract costs, which was due to the reasons discussed below under the section “contract assets” and “contract costs”, and (v) approximately $0.6 million increase in accounts receivable which was due to the reasons discussed below under the section “accounts receivable”. This was partially offset by (i) net income of approximately $0.6 million, (ii) approximately $2.4 million in non-cash items such as bad debt expense, depreciation, amortization of intangible assets and amortization of right-of- use assets, (iii) an approximately $ 2.8 million increase in accounts payable, which was due to the reasons discussed below under the section “accounts payable”, and (iv) approximately $0.4 million increase in taxes payable as we experienced increased revenue and income which resulted in increase in VAT and income tax payable, respectively.

 

Net cash used in operating activities was approximately $4.5 million for the year ended December 31, 2022 and was primarily attributable to (i) an approximately $11.4 million net increase in contract assets and contract costs, which was due to the reasons discussed below under the section “contract assets” and “contract costs”, (ii) approximately $7.4 million increase in accounts receivable which was due to the reason discussed below under the section “accounts receivable”, and (iii) approximately $0.1 million increase in other receivables for additional service deposits with our third party service provider and advances to our employee for operational purposes, offset by (i) a net income of approximately $5.2 million, (ii) approximately $1.0 million in non-cash items such as depreciation and amortization, and provision for doubtful accounts, (iii) an approximately $ 5.6 million increase in accounts payable, which was due to the reasons discussed below under the section “accounts payable”, (iv) an approximately $1.3 million decrease in prepayments and other current assets as we utilized prepayment made in prior period for contractor labor, material in current sewage treatment systems projects, and (v) approximately $1.3 million increase in taxes payable due to an increase in income taxes payable due to our current taxable income. 

 

Net cash used in operating activities was approximately $0.1 million for the year ended December 31, 2021 and was primarily attributable to (i) an approximately $11.0 million increase in contract assets and contract costs, which was due to the reasons discussed below under the section “contract assets” and “contract costs”, (ii) an approximately $1.2 million increase in prepayments and other current assets as we prepaid third party contractor labor and materials which we expect to utilize in our sewage treatment systems projects and consulting fees related to obtaining future contracts with customers, (iii) approximately $0.4 million increase in accounts receivable which was due to the reason discussed below under the section “accounts receivable”, and (iv) approximately $1.9 million increase in recovery from doubtful accounts, offset by (i) a net income of approximately $6.6 million, (ii) approximately $0.6 million in non-cash items such as depreciation and amortization, provision for doubtful accounts and deferred tax expense, (iii) an approximately $ 5.8 million increase in accounts payable, which was due to the reasons discussed below under the section “accounts payable”, (iv) an approximately $0.5 million increase in other payables we incurred more accrued expense, and (v) approximately $0.9 million increase in taxes payable due to VAT taxes and an increase in income taxes payable due to our net income. 

  

58

 

 

Accounts receivable

 

Our accounts receivable increased by approximately $0.8 million for the six months ended June 30, 2023. The increase was mainly due to the increase of revenue during the six months ended June 30, 2023.

 

Our accounts receivable increased by approximately $0.6 million for the six months ended June 30, 2022. The increase was mainly due to the increase of revenue during the six months ended June 30, 2022.

 

Our accounts receivable increased by approximately $7.4 million for the year ended December 31, 2022. The increase was mainly due to the increase of revenue during the year ended December 31, 2022.

 

Our accounts receivable decreased by approximately $3.0 million during the six months ended June 30, 2021. The major reason for the decrease during the six months ended June 30, 2021 is mainly due to the payments made by our customers as a result of our timely collection effort made by our accounts receivable teams and project managers. 

 

Our days sales outstanding are as follows:

 

Period  Days Sales
Outstanding
 Year Ended December 31, 2018    180 
 Year Ended December 31, 2019    306 
 Year Ended December 31, 2020    615 
 Year Ended December 31, 2021    204 
 Year Ended December 31, 2022    220 
 Six Months Ended June 30, 2023    231 

 

Our days sales outstanding increased from 180 days to 306 days to 615 days, decreased to 204 days, increased to 220 days, and increased to 231 days from December 31, 2018 to December 31, 2019 to December 31, 2020 to December 31, 2021 to December 31, 2022, and to June 30, 2023, respectively. Our current sewage treatment system projects are primarily funded by local governments while the end users of our system are also primarily local governments. The payment approval process from local governments is complex as it requires us to go through several procedures and typically takes a longer period of time as all of the proper inspection documents must be provided in order for the funds to be released. In addition, there are other contractors also working on the job sites for the non-sewage treatment related sections and the inspectors sometime require the other contractors to complete their sections before the full project can be inspected. As a result, our days sales outstanding rose from 180 days at December 31, 2018 to 306 days at December 31, 2019 as we just commence sewage treatment system revenue in late 2018. We have experienced significant increase of our days sales outstanding during the year ended December 31, 2020 from 306 days at December 31, 2019 to 615 days at December 31, 2020 due to the impact of the COVID-19 pandemic. As the COVID-19 pandemic started to ease in the PRC in the second half of 2021, as well as we actively communicated with local governments regarding the payment approval process, we have improved our days sales outstanding to 204 days at December 31, 2021. However, the days sales outstanding had slightly increase to 220 days and 231 days at December 31, 2022 and June 30, 2023, respectively, as we experienced increase in our revenue and some of the revenue generated from our sewage treatment systems are undergoing payment approval, or inspection process from local government.

  

59

 

 

For our accounts receivable, we are required to make estimates of the expected credit losses. In establishing the allowance for doubtful accounts, we mainly used our historical collection experience, current economic environment, industry trend analysis, and the financial conditions of our customers to develop a combination of specified account and aging methods to provide the allowance for our expected credit losses. After reviewing the historical collection data from 2019 to 2021, our management revised our current allowance for doubtful accounts policy to better estimate the expected credit losses of our accounts receivable. Currently, we provide a provision of 15% for accounts receivable past due more than 270 days but less than one year, 25% for accounts receivable past due more than one year but less than two years, 100% for accounts receivable past due beyond two years, and we add or subtract additional amounts as deemed necessary using the specific account method as discussed below.

 

We provided a 17.0%, 13.7%, and 17.7% allowance for doubtful accounts of our total accounts receivable as of December 31, 2021, December 31, 2022, and June 30, 2023, respectively. We expect our days sales outstanding to be between 300 days to 365 days in future periods, mainly because the payment approval process from local governments is complex as it requires us to go through several procedures and typically takes a longer period of time as all of the proper inspection documents must be provided in order for funds to be released. The payment process normally takes less than one year while the local governments usually approve and settle the outstanding balances during the second half of each calendar year based on the municipal administration on budget and payment practices. Historically, it took us approximately 417 days to collect 99.3% of our 2018 progress billings of our sewage treatment systems revenue, approximately 442 days to collect 99.8% of our 2019 progress billings of our sewage treatment system revenues, approximately 585 days to collect 96.2% of our 2020 progress billing of our sewage treatment systems revenue, approximately 412 days to collect 54.0% of our 2021 progress billing, approximately 94 days to collect 50.5% of our 2022 progress billing, and approximately 123 days to collect 26.2% of our 2023 progress billing from our sewage treatment system revenue which we believe proves that we are able to collect substantially all of our receivables. The liquidity of our operations highly depends on the timing of payments from our major customers, and should there be any delay of payment, our operations and liquidity may be impacted.

 

The aging method of providing our allowance policy is based upon a combination of our historical collection pattern of our sewage treatment service revenues and progress billings of our sewage treatment system revenues from prior periods and the probable uncollectable rate of our aged accounts receivable as of our latest balance sheet date. The default rate is determined by using the aged accounts receivable in the aging bracket between one and two years divided by the prior one year of sewage treatment services revenues and progress billings of our sewage treatment systems. Once we determine our probable default rate, we apply this ratio to the aging bracket to determine our allowance for doubtful accounts. Currently, we apply incremental ratios of 15%, 25%, and 100% of our accounts receivable with outstanding balance aged between 270 days and one year, one year and two years, and beyond two years, respectively. In addition, we also use the specific account method after applying the above aging method if we believe it is necessary in determining our allowance for doubtful accounts. The specific account method includes evaluation of historical collection experience from each individual customer as well as the credit worthiness of our customers. We determined that historical collection experience from each individual customer is a reasonable indicator in calculating our allowance for doubtful accounts. Furthermore, in evaluating the credit worthiness of our customers, we first consider whether they are state-owned companies, local governments or business property management companies. If our customers are state-owned companies or local governments, and they have been constantly communicating with us without ignoring our collection efforts and are able to provide their estimated payment date in writing, we would also exclude the amount in calculating the allowance since the end users of our products are from the local governments of which the payment process normally takes a longer process as it may potentially take approximately 345 days to collect from our past experience. In addition, historically, our collection experience for those customers with updated payment plans are usually paid timely as promised. If our customers are business property management companies, we will only consider their payment history and current credit-worthiness in calculating the allowance for doubtful accounts without consideration of their payment plan as they are not backed by a local government. We believe our current allowance policy is reasonable because we have never experienced any significant losses on collections from our past experience. Since our sewage treatment systems customers are mainly state-owned companies, which are backed by the local governments, we believe our current allowance policy is reasonable as of June 30, 2023.

  

60

 

 

As of June 30, 2023, our accounts receivable aging is as follows:   

  

      1-90  91-180  181-270  271-360  361-720  Over 720
   Balance  days  days  days  days  days  days
Accounts receivable  $23,240,777   $8,458,373   $681,063   $4,154,950   $2,460,421   $3,848,290   $3,637,680 
Allowance for doubtful accounts   (4,968,815)               (369,063)   (962,072)   (3,637,680)
Specific account adjustments   863,091                244    45,148    817,699 
Accounts receivable, net  $19,135,053   $8,458,373   $681,063   $4,154,950   $2,091,602   $2,931,366   $817,699 

 

As of December 31, 2022, our accounts receivable aging is as follows:   

 

      1-90  91-180  181-270  271-360  361-720  Over 720
   Balance  days  days  days  days  days  days
Accounts receivable  $23,280,416   $11,278,444   $2,698,640   $365,873   $127,095   $4,908,249   $3,902,115 
Allowance for doubtful accounts   (5,148,241)               (19,064)   (1,227,062)   (3,902,115)
Specific account adjustments   1,958,600                16,398    37,173    1,905,029 
Accounts receivable, net  $20,090,775   $11,278,444   $2,698,640   $365,873   $124,429   $3,718,360   $1,905,029 

 

As of December 31, 2021, our accounts receivable aging is as follows:

  

      1-90  91-180  181-270  271-360  361-720  Over 720
   Balance  days  days  days  days  days  days
Accounts receivable  $17,675,746   $6,437,736   $434,299   $2,952,062   $66,567   $4,588,133   $3,196,949 
Allowance for doubtful accounts   (4,357,166)               (9,986)   (1,150,231)   (3,196,949)
Specific account adjustments   1,352,730                4,939    416,191    931,600 
Accounts receivable, net  $14,671,310   $6,437,736   $434,299   $2,952,062   $61,520   $3,854,093   $931,600 

 

As of the date of this prospectus, we have collected approximately $1.9 million, which represented 9.8%, of our June 30, 2023 accounts receivable or 8.1% excluding the allowance of doubtful accounts. We believe our current allowance for doubtful accounts is a reasonable estimate of our expected losses of our accounts receivable. Our management will continue to evaluate the reasonableness of our allowance policy and will update it as necessary.

 

As of the date of this prospectus, we collected approximately 5.7% from our four major customers’ outstanding balances as of June 30, 2023. All four of our major customers are projects being funded by local governments and are awaiting inspection reports and payment approvals from the local government and this is the main reason that we were not able to collect the remaining balances from these major customers. The impact of COVID-19 delayed the inspection process of our 2020 and 2021 projects as well as the payment approval process from the local government; therefore, our major customers have established updated payment plans and we expect to collect the remaining accounts receivable from our major customers in 2024. However, based on our historical collection patterns, we believe the collectability of our accounts receivable are probable as we have had a collection rate of 99.3%, 99.8%, 96.2%, 54.0%, 50.5%, and 26.2% in our 2018, 2019, 2020, 2021, 2022, and 2023’s progress billings of our sewage treatment systems revenues, respectively. The liquidity of our operations highly depends on the timing of payments from our major customers, and should any delay of payment from them occur, our operations and liquidity may be impacted.

 

Contract assets

 

Our contract assets increased by approximately $5.7 million, $6.2 million, $12.2 million, and $10.9 million for the six months ended June 30, 2023 and 2022, and for the year ended December 31, 2022 and 2021, respectively. The increase is mainly because we completed some projects and did not send out final billing based upon the contract billing terms.

 

Contract assets balance as of June 30, 2023 were mainly attributable to the Zhongshan, Guankou, Wuyishan, and Lianjiang projects, which amounted to approximately $10.1 million, $11.4 million, $2.4 million and $6.6 million, respectively, while contract assets balance from the aforementioned projects amounted to approximately $10.7 million, $11.3 million, $3.2 million, and zero as of December 31, 2022, respectively.

 

Due to the delay of construction inspection which involved multi-government departments approval, the billing process pertained to aforementioned projects has fallen behind. As a result, the unbilled portion of these projects remained as contract assets.

 

As of June 30, 2023, our contract assets aging is as follows:

 

      1-90  91-180  181-270  271-360  361-720  Over 720
   Balance  days  days  days  days  days  days
Contract assets  $30,629,257   $14,567,010   $   $7,038,434   $9,023,813   $   $ 

 

As of December 31, 2022, our contract assets aging is as follows:

 

      1-90  91-180  181-270  271-360  361-720  Over 720
   Balance  days  days  days  days  days  days
Contract assets  $26,090,390   $7,539,116   $   $7,302,403   $10,711,665   $537,206   $ 

 

As of December 31, 2021, our contract assets aging is as follows:

 

      1-90  91-180  181-270  271-360  361-720  Over 720
   Balance  days  days  days  days  days  days
Contract assets  $15,677,452   $11,437,596   $10,078   $1,931,250   $604,485   $1,694,043   $ 

 

61

 

 

Contract costs

 

Our contract cost balance was decrease to $0 as of June 30, 2023 from approximately $0.9 million as of December 31, 2022. Our contract cost balance was decrease to approximately $0.9 million as of December 31, 2022 from approximately $1.8 million as of December 31, 2021. The decrease of contract costs for both periods was due to the utilization of the contract costs which were recognized in prior period from a project.

 

As of June 30, 2023, our contract costs aging is as follows:

 

      1-
90
  91-
180
  181-
270
  271-360  361-720  Over 720
   Balance  days  days  days  days  days  days
Contract costs  $   $   $   $   $   $   $ 

 

As of December 31, 2022, our contract costs aging is as follows:

 

      1-
90
  91-
180
  181-
270
  271-360  361-720  Over 720
   Balance  days  days  days  days  days  days
Contract costs  $899,662   $   $   $899,662   $   $   $ 

 

As of December 31, 2021, our contract costs aging is as follows:

 

      1-
90
  91-
180
  181-270  271-360  361-720  Over 720
   Balance  days  days  days  days  days  days
Contract costs  $1,764,109   $1,764,109   $   $   $   $   $ 

  

Accounts payable

 

Our accounts payable increased by approximately $0.9 million and $2.8 million for the six months ended June 30, 2023, and 2022, respectively., while our accounts payable increased by approximately $5.6 million and $5.9 million for the year ended December 31, 2022 and 2021, respectively. The major reason for the significant increase in such balance is mainly due to the fact that we had purchased raw materials on account to support our significant growth of sewage treatment system projects.

 

Investing activities

 

Net cash used in investing activities was approximately $0.1 million for the six months ended June 30, 2023 and was mainly attributable to approximately $0.2 million of equipment purchases, and approximately $39,000 loan to a third party, offset by approximately $40,000 cash received from disposal of equipment, and approximately $58,000 repayments received from loan to third party. 

 

Net cash used in investing activities was approximately $76,000 for the six months ended June 30, 2022 and was mainly attributable to approximately $63,000 and $13,000 of equipment and intangible assets purchases, respectively.

 

Net cash used in investing activities was approximately $94,000 for the year ended December 31, 2022 and was mainly attributable to approximately $53,000 and $34,000 of equipment and intangible assets purchases, respectively.

 

Net cash provided by investing activities was approximately $1.8 million for the year ended December 31, 2021 and was mainly attributable to approximately $1.6 million of loan repayments from third parties, and approximately $0.4 million repayment from related parties, which was offset by approximately $0.1 million of equipment purchases. 

 

Financing activities

 

Net cash provided by financing activities was approximately $1.8 million for the six months ended June 30, 2023 and was primarily attributable to approximately $1.9 million proceeds received from short-term and long-term bank loans, and approximately $0.3 million proceeds received from other payables- related parties, and short-term loans- related party, offset by approximately $0.4 million of repayments of short-term and long-term bank loans, and repayments of short-term loan third parties, net.

 

Net cash provided by financing activities was approximately $1.4 million for the six months ended June 30, 2022 and was primarily attributable to approximately $1.7 million proceeds from short-term bank loans and short-term related parties loans, offset by approximately net of 0.3 million of repayments of short-term bank loans and repayments of short-term loan third parties, net.

 

Net cash provided by financing activities was approximately $3.7 million for the year ended December 31, 2022 and was primarily attributable to approximately $4.9 million proceeds from long-term bank loans, short-term third parties loans and short-term related parties loans, offset by approximately $1.1 million of repayments of short-term bank loans and repayments of short-term loan related parties, net. 

 

Net cash used in financing activities was approximately $0.9 million for the year ended December 31, 2021, and was primarily attributable to approximately $1.2 million, $0.4 million and $0.3 million repayment of short-term and long-term bank loans, third party loans, and related party loans, respectively, offset by approximately $0.9 million proceeds from short-term and long-term bank loans. 

 

62

 

 

Commitments and Contingencies

 

In the normal course of business, we are subject to loss contingencies, such as legal proceedings and claims arising out of our business, that cover a wide range of matters, including, among others, government investigations and tax matters. In accordance with FASB ASC No. 450-20, “Loss Contingencies”, we will record accruals for such loss contingencies when it is probable that a liability has been incurred and the amount of loss can be reasonably estimated. For the six months ended June 30, 2023 and 2022, and for the years ended December 31, 2022 and 2021, we did not record any accruals for loss contingencies.

 

The following table summarizes our contractual obligations as of June 30, 2023:

 

   Payments due by period
Contractual obligations  Total  Less than 1 year  1 – 3 years  3 – 5 years  More than 5 years
Short-term loans - banks  $2,265,173   $2,265,173   $   $   $ 
Long-term loans - banks   67,785        67,785         
Short-term loans - third parties   348,058    348,058             
Short-term loans – related parties   4,251,137    4,251,137             
Operating lease obligations   261,891    104,542    111,628    27,983     
Total  $7,194,044   $6,986,648   $179,413   $27,983   $ 

 

Capital Expenditures

 

For the six months ended June 30, 2023 and 2022, we purchased equipment of approximately $0.2 million, $63,000, $53,000, and $0.1 million for the six months ended June 30, 2023 and 2022, and for the year ended December 31, 2022 and 2021, respectively, mainly for the use in our septic tank treatment operations. Subsequent to June 30, 2023 and as of the date of this prospectus, we did not purchase any material equipment for operational use. We do not have any other material commitments for capital expenditures as of June 30, 2023 or as of the date of this prospectus. 

 

Off-Balance Sheet Arrangements

 

We have no off-balance sheet arrangements including arrangements that would affect our liquidity, capital resources, market risk support and credit risk support or other benefits.

 

63

 

 

Critical Accounting Estimates

 

Our financial statements and accompanying notes have been prepared in accordance with U.S. GAAP. The preparation of these financial statements and accompanying notes requires us to make estimates and judgments that affect the reported amounts of assets, liabilities, revenues and expenses, and related disclosure of contingent assets and liabilities. We base our estimates on historical experience and on various other assumptions that are believed to be reasonable under the circumstances, the results of which form the basis of making judgments about the carrying values of assets and liabilities that are not readily apparent from other sources. We have identified certain accounting estimates that are significant to the preparation of our financial statements. These estimates are important for an understanding of our financial condition and results of operation. Certain accounting estimates are particularly sensitive because of their significance to financial statements and because of the possibility that future events affecting the estimate may differ significantly from management’s current judgments. We believe the following critical accounting estimates involve the material estimates and judgments used in the preparation of our financial statements.

 

Significant accounting estimates reflected in our consolidated financial statements include the estimated cost or input measure method used to calculate the revenue recognized in our sewage treatment systems and sewage treatment services, allowance for doubtful accounts, the useful lives of property and equipment, impairment of long-lived assets, realization of deferred tax assets and uncertain tax positions. Actual results could differ from these estimates.

 

Revenue Recognition

 

Sewage treatment systems

   

Sales relating to the installation of sewage treatment systems are generally recognized based on our efforts or inputs to the satisfaction of our performance obligations over time as work progresses because of the continuous transfer of control to the customer and we have the right to bill the customer as costs are incurred. The performance obligation includes the sewage treatment system and equipment that we sell as well as the continuous system installation to be performed. Typically, revenue is recognized over time using an input measure (i.e., costs incurred to date relative to total estimated costs at completion) to measure progress. We generally use the cost-to-cost measure of progress method because it best depicts the transfer of control to the customer which occurs as we incur costs on the contracts. Under the cost-to-cost measure of progress method, the extent of progress towards completion is measured based on the ratio of total costs incurred to date to the total estimated costs at completion of the performance obligation. Revenues, including estimated fees or profits, are recorded proportionally as costs are incurred.

 

Sewage treatment services

 

Revenue from sewage treatment services contracts require us to render treatment services on a one-time basis or based upon a specified treatment period, which is generally one year or less. Our performance obligations are generally satisfied over time because customers receive and consume the benefits of such services and we have the right to bill the customer as services are performed. Revenue generated from sewage treatment service is recognized using an input measure method, (i.e., labor costs incurred to date relative to total estimated labor cost at completion) to measure progress. Under the labor cost measure of progress method, the extent of progress towards completion is measured based on the ratio of total labor cost incurred to date to the total estimated labor cost at completion of the performance obligation. Revenue, including estimated fees or profits, are recorded proportionally as labor costs are incurred. We consider labor time as the best available indicator of the pattern and timing in which contract obligations are fulfilled. We have a long history of sewage treatment services resulting in our ability to reasonably estimate the service hours expected to be incurred and the progress toward completion on each fixed-price contract based on the proportion of service hours incurred to date relative to total estimated service hours at completion. Estimated contract costs are based on the budgeted service hours, which are updated based on the progress toward completion on a monthly basis. Pursuant to the contract terms, we have enforceable rights to payments for the work performed. Provisions for estimated losses, if any, on uncompleted contracts are recorded in the period in which such losses become probable based on the current contract estimates. Costs of sewage treatment services are expensed in the period in which they are incurred.  

 

Allowance for doubtful accounts

  

In establishing the required allowance for doubtful accounts, we consider historical collection experience, aging of the receivables, the economic environment, industry trend analysis, and the credit history and financial condition of the customers. Management reviews its receivables on a regular basis to determine if the allowance for doubtful accounts is adequate and adjusts the allowance when necessary. Delinquent account balances are written-off against allowance for doubtful accounts after management has determined that the likelihood of collection is not probable. Our allowance for doubtful accounts were $4,105,725, $3,189,642 and $3,004,435 as of June 30, 2023, December 31, 2022 and December 31, 2021, respectively, representing 17.7%, 13.7% and 17.0% of our gross accounts receivable, respectively. Our allowance for other receivables, and prepayments and other current assets were $637,468, $646,044 and $1,632,616 as of June 30, 2023, December 31, 2022 and December 31, 2021, respectively, representing 21.7%, 20.1% and 10.8 % of our gross other receivables, and prepayments and other current assets, respectively. The allowance for credit losses is based on a review of specifically identified customer accounts in addition to an overall aging analysis which is applied to accounts pooled on the basis of similar risk characteristics. Judgments are made with respect to the collectability of accounts receivable within each pool based on historical experience, current payment practices and current economic trends based on our expectations over the expected life of the receivable, which is generally ninety days or less. Although actual losses have not differed materially from our previous estimates, future losses could differ from our current estimates.

  

64

 

 

Contract assets and contract liabilities

 

Projects with performance obligations recognized over time that have revenue recognized to date in excess of cumulative billings are reported on our consolidated balance sheets as “Contract assets”. Provisions for estimated losses of contract assets on uncompleted contracts are made in the period in which such losses are determined.

 

Contract assets having billing terms with unconditional rights to be billed beyond one year are classified as non-current assets.

 

Contract liabilities on uncompleted contracts represent the amounts of cash collected from clients, billings to clients on contracts in advance of work performed and revenue recognized and provisions for losses. The majority of these amounts are expected to be earned within twelve months and are classified as current liabilities.

 

Contract costs

 

Contract costs incurred during the initial phases of our sales contracts are capitalized when the costs relate directly to the contract, are expected to be recovered, and generate or enhance resources to be used in satisfying the performance obligation and such deferred costs will be recognized upon the recognition of the related revenue. These costs primarily consist of labor and material costs directly related to the contract.

 

We perform periodic reviews to assess the recoverability of the contract costs. The carrying amount of the asset is compared to the remaining amount of consideration we expect to receive for the services to which the asset relates, less the costs that relate directly to providing those services that have not yet been recognized. If the carrying amount is not recoverable, an impairment loss is recognized.

Deferred Income taxes

 

Deferred taxes are accounted for using the asset and liability method in respect of temporary differences arising from differences between the carrying amount of assets and liabilities in the consolidated financial statements and the corresponding tax basis used in the computation of assessable tax profit. In principle, deferred tax liabilities are recognized for all taxable temporary differences. Deferred tax assets are recognized to the extent that it is probable that taxable profit will be available against which deductible temporary differences can be utilized. Deferred tax is calculated using tax rates that are expected to apply to the period when the asset is realized, or the liability is settled. Deferred tax is charged or credited in the income statement, except when it is related to items credited or charged directly to equity, in which case the deferred tax is also dealt with in equity. Net deferred tax assets are reduced by a valuation allowance when, in the opinion of management, it is more likely than not that some portion or all of the net deferred tax asset will not be realized. Current income taxes are provided for in accordance with the laws of the relevant taxing authorities.

An uncertain tax position is recognized as a benefit only if it is “more likely than not” that the tax position would be sustained in a tax examination, with a tax examination being presumed to occur. The amount recognized is the largest amount of tax benefit that has greater than 50% likelihood of being realized on examination. For tax positions not meeting the “more likely than not” test, no tax benefit is recorded. No penalties and interest incurred related to underpayment of income tax are classified as income tax expense in the period incurred.

  

Recent Accounting Pronouncements

 

See Note 3 of the notes to the consolidated financial statements included elsewhere in this prospectus for a discussion of recently issued accounting standards.

 

65

 

 

BUSINESS

 

Overview

 

We, through our subsidiaries, are a waste treatment company that generates revenue through design, development, manufacture, sales, installation, operation and maintenance of sewage treatment systems and by providing sewage treatment services. We, through our subsidiaries, primarily engage in two business lines: sewage treatment systems and sewage treatment services in both urban and rural areas in the PRC. Sewage treatment systems are sometimes also referred to herein as rural sewage treatment, and sewage treatment services are sometimes also referred to herein as septic tank treatment.

 

For sewage treatment systems, we sell complete sewage treatment systems, construct rural sewage treatment plants, install the systems, and provide on-going operation and maintenance services for such systems and plants in China for municipalities and enterprise clients. We provide decentralized rural sewage treatment services with our integrated and proprietary system using our advanced quick separation technology. Our quick separation technology uses a biochemical process for economically and sufficiently treating rural sewage. In addition, our integrated equipment generally has a lifespan of over 10 years without replacement of the core components. Due to our quick separation technology and our technological expertise and experience, our integrated rural sewage treatment system produces a high quality of outflowing water, with high degrees of automation, efficient construction and start up, and low operational costs. In addition, our equipment is typically able to process abrupt increases of sewage inflows and high contamination. Our integrated equipment consists of a compact structure and is buried underground in order to minimize changes to the surrounding environment.

 

The market for rural sewage treatment is significant and growing. According to the Prospective Industry Research Institute as of October 2020, in China, the total revenue generated from decentralized rural sewage treatment services and equipment in China reached approximately 92.5 billion RMB (approximately $13.8 billion) in 2019 and increased at a compound annual growth rate of approximately 40.3% from 2015 to 2019. According to the Ministry of Environmental Protection of China and the Ministry of Finance of China as of December 2016, in 2016, only approximately 22% of the incorporated villages in China treated rural sewage water. In 2016, the Ministry of Housing and Urban-Rural Development of China set a goal of establishing sewers and sewage treatment facilities and service systems in 90% of the villages and towns in China within 30 years. In April 2019, the Ministry of Housing and Urban-Rural Development of China, the Ministry of Ecology and Environment of China, and the NDRC jointly published the Three-Year Action Plan for Improving the Quality and Efficiency of Urban Sewage Treatment (2019-2021), which states that the government should increase capital investment and raise funds through multiple channels to support sewage treatment. In addition, the Ministry of Ecology and Environment of China held a press conference on April 22, 2022, and the spokesperson stated that the data of the Ministry of Housing and Urban-Rural Development of China showed that as of 2021, only 28% of rural sewage in China was treated before discharge, and the percentage was up by only 6% during the five years between 2016 and 2022, which we believe indicates a large market in rural sewage treatment. As a result of these governmental policies, according to Forward the Economist as of January 2018, it is estimated that the market size of rural sewage treatment will reach approximately RMB 200 billion (approximately $29.9 billion) in 2030. We believe that we will maintain our position as a leader in the rural sewage treatment industry with our proprietary technology and successful track record. We have completed more than 60 rural sewage treatment plants in Fujian, Jiangxi, and Liaoning provinces in China, with a total treatment capacity of more than 3,400 tons of sewage per day, and have established long-term relationships with our customers through our operation and maintenance services.

  

For sewage treatment services, we offer on site, or in-situ, septic tank treatment services with our proprietary systems in the urban and rural areas of China for municipalities and residential and business property management companies. We have developed both mobile and fixed systems to meet the various needs of our customers. Our mobile system uses automated equipment assembled on a vehicle in order to allow for transport between dispersed septic tanks in both urban and rural areas. Our mobile system treats the waste at each site and extracts such waste from the septic tank through a narrow opening, which reduces odor and noise as well as spillage and safety issues that occur during traditional methods of pumping and transporting septic tank sewage. Our mobile system treatment processes include septic tank waste extraction, separation of solid waste from liquid sewage, dehydration of separated waste, residue filtration, and solid waste compacting. Our fixed system is an integrated waste treatment system that uses quick separation technology to service septic tank sewage collection stations for public toilets in urban areas and to service public toilets in the service stations along highways. It is a compact, stand-alone system that is able to decompose solid waste and treat sewage to meet the guidelines established by the Chinese government in Wastewater Quality Standards for Discharge to Municipal Sewers (GB/T 31962-2015).

 

Currently, the sewage from septic tanks in urban areas is discharged into the sewer systems after simple treatment methods. The Chinese government implemented the new Wastewater Quality Standards for Discharge to Municipal Sewers (GB/T 31962-2015) in 2016 to enhance the treatment of septic tank sewage. However, we believe that in most regions, the sewage discharged from septic tanks to municipal sewers does not meet the standards promulgated by the Chinese government. We believe that the market for effectively treating the sewage from septic tanks in compliance with such government standards is significant, and we believe that this is an area for significant increase in revenue for us.

 

We outsource the manufacturing of the integrated rural sewage treatment system and components of our mobile septic tank treatment system to multiple suppliers with whom we have established long-term relationships. The suppliers rely on us to provide design and technological support, as we maintain our proprietary technology and technological know-how. We have implemented strict quality control procedures and perform annual assessments on our suppliers to ensure that they continue to meet our requirements regarding quality, timing of delivery, and post-sale services.

 

We have established sales and marketing networks in many cities across several provinces in China with twelve majority-owned subsidiaries and two branch offices in China. For rural sewage treatment, we procure contracts from city or provincial level state-owned construction companies that are responsible for constructing rural sewage infrastructures for local governments to sell, install and operate decentralized rural sewage treatment systems. For septic tank treatment, we collaborate with the strategic partners at our subsidiaries in China to procure contracts for the treatment and servicing of septic tanks from our customers, particularly local governments and residential and business property management companies.

 

The core of our business is our proprietary systems and technology, together with our experience and expertise in waste treatment services, particularly in rural sewage treatment and septic tank treatment. As of December 31, 2023, we had 2 invention patents, 38 utility model patents, 3 trademarks and 2 computer software copyrights. We are continually working to upgrade our quick separation technology and septic tank treatment systems through independent research and development and partnerships with third-party institutions to further develop our mobile septic tank treatment system.

 

We intend to expand our sales and marketing efforts for our rural sewage treatment systems to further penetrate the market in Fujian and Zhejiang provinces. We are in the process of negotiating partnerships with state-owned companies at the central government level to expand the geographic market for rural sewage treatment. We also intend to promote our newly developed septic tank treatment systems, particularly in the septic tank sewage collection stations in the cities and public toilets in service stations. We have designed and completed internal testing of a fixed septic tank treatment system for septic tank sewage collection stations in cities, and we are actively pursuing projects with the Beijing government to treat the sewage from approximately 1,000 public toilets that currently exist in the Shunyi, Chaoyang and Dongcheng Districts. We also intend to vertically expand into organic fertilizer production using dehydrated solid waste from our mobile septic tank treatment system.

 

In addition, we intend to cooperate with a U.S. based technology company to develop a cloud-based monitoring system using the “Internet of Things”, or IoT. Rural sewage treatment stations are geographically scattered, driving high operational and maintenance costs. Therefore, we intend to install a cloud-based IoT monitoring system to monitor the core electromechanical equipment of several treatment stations at the same time. A cloud-based IoT monitoring system could record the volume of water inflow and outflow, water quality and other operational data. As a result, the operators and maintenance personnel could make timely and effective judgments according to real-time data. The Company anticipates that the cloud-based IoT monitoring system would be accessible from portable devices, such as mobile phones, and would allow us to remotely monitor the treatment stations, potentially greatly reducing costs related to travel time and human capital.

 

66

 

 

Industry Background

 

Rural Sewage Treatment

 

According to the Prospective Industry Research Institute as of October 2020, in China, the total revenue generated from decentralized rural sewage treatment services and equipment in China reached approximately 92.5 billion RMB (approximately $13.8 billion) in 2019 and increased at a compound annual growth rate of approximately 40.3% from 2015 to 2019. In most rural areas, sewage is discharged without treatment, resulting in water pollution. According to the Ministry of Environmental Protection of China and the Ministry of Finance of China as of December 2016, in 2016, only approximately 22% of the incorporated villages in China treated rural sewage water. In addition, the Ministry of Ecology and Environment of China held a press conference on April 22, 2022, and the spokesperson stated that the data of the Ministry of Housing and Urban-Rural Development of China showed that as of 2021, only 28% of rural sewage in China was treated before discharge, and the percentage was up by only 6% during the five years between 2016 and 2022, which we believe indicates a large market in rural sewage treatment. According to Forward the Economist as of January 2018, it is estimated that the market size of rural sewage treatment in China will reach approximately RMB 200 billion (approximately $29.9 billion) in 2030.

 

Due to China’s recent focus on the continuous improvement of living standards through more stringent environmental laws and regulations for clean water, we believe compliance with such laws and regulations will become increasingly difficult for companies to achieve. Therefore, we believe new technology and applications in sewage treatment will be in greater demand, which we expect will drive demand for our services and products.

 

In March 2016, China announced the 13th Five Year Plan, which, among other matters, attempted to improve China’s drinking water safety, with new measures related to water safety protection, water conservation reform and drinking water safety legislation. China’s five-year plans are blueprints containing the country’s social, economic, and political goals. They encompass and intertwine with existing policies, regional plans, and strategic initiatives. A five-year plan signals the Chinese government’s vision for future reforms and communicates this to other parts of the bureaucracy, industry players and Chinese citizens. It is a plan that will go through constant revision during its term. The 13th Five Year Plan contains clean water initiatives regarding the construction of urban sewage treatment and supporting facilities, urban reclaimed water recycling, and continued reduction of waste emissions. Further, the 13th Five Year Plan requires industrial products to be completed with improved product technology, process equipment, and energy efficiencies. In addition, in the Water Ten Plan, which was issued by the PRC in April 2015, there is an increased emphasis on the importance of cooperating with foreign technological partners in the areas of water treatment process equipment. We believe these policies, among others, will cause more industries to utilize new technologies in water treatment to comply with new laws and regulations that will be implemented pursuant to the 13th Five Year Plan. In 2016, the Ministry of Housing and Urban-Rural Development of China also set a goal of establishing sewers and sewage treatment facilities and service systems in 90% of the villages and towns in China within thirty years. In April 2019, the Ministry of Housing and Urban-Rural Development of China, the Ministry of Ecology and Environment of China, and the NDRC jointly published the Three-Year Action Plan for Improving the Quality and Efficiency of Urban Sewage Treatment (2019-2021), which states that the government should increase capital investment and raise funds through multiple channels to support sewage treatment. In addition, the Ministry of Ecology and Environment of China held a press conference on April 22, 2022, and the spokesperson stated that the data of the Ministry of Housing and Urban-Rural Development of China showed that as of 2021, only 28% of rural sewage in China was treated before discharge and the percentage was up by only 6% during the five years between 2016 and 2022, which we believe indicates a large market in rural sewage treatment. As a result of these governmental policies, according to Forward the Economist as of January 2018, it is estimated that the market size of rural sewage treatment will reach approximately RMB 200 billion (approximately $29.9 billion) in 2030.

 

At present, the majority of Chinese wastewater treatment plants exist in urban areas. By contrast, the population in rural China is more dispersed, resulting in the difficulty of collecting sewage for centralized treatment. Therefore, decentralized treatment systems, such as our systems, are suitable for rural areas, which require highly concentrated and miniaturized sewage treatment systems with physical, chemical and/or biological measures that integrate the whole treatment process at a smaller scale.

 

The sewage treatment technologies commonly found in rural areas include the following methodologies: 1) membrane bio-reactor, or MBR, 2) anaerobic-anoxic-oxic, or A2/O, 3) anoxic-oxic and anaerobic- oxic, or A/O, and 4) quick separation. MBR is a methodology that combines the usage of membranes for filtration of large particles and biochemical reactions to increase the efficiency of water treatment. MBR is more recently developed methodology as compared to A2/O and A/O and is particularly useful for treating highly polluted wastewater on a large scale, and therefore is commonly used for industrial wastewater treatment. A2/O is an improved biochemical methodology as compared to A/O. A2/O is effective in removal of both nitrogen oxides and phosphorus. A/O is a biochemical method for wastewater treatment. Both anoxic-oxic and anaerobic-oxic are referred to as A/O. Anoxic-oxic is typically more effective in reducing nitrogen oxides, and anaerobic-oxic is typically more effective in reducing phosphorus. Quick separation technology is an advanced biochemical treatment method that allows the three bio-reactions of the anaerobic, anoxic, and oxic processes to occur in quick separation balls. It is effective in removal of both nitrogen oxides and phosphorus.

 

MBR generally requires replacement of membranes approximately every two to three years, which can be costly, whereas quick separation technology can typically operate for approximately ten years without needing to replace the quick separation balls. In addition, A2/O typically requires construction of three separate tanks each for a different process with excess oxygen or no oxygen, and A/O typically requires construction of two separate tanks. On the contrast, quick separation technology allows the anaerobic, anoxic, and oxic process to happen in the quick separation balls in one tank. Therefore, quick separation technology can eliminate the costs of constructing extra tanks. In addition, quick separation technology typically produces less slug than other technologies and therefore can eliminate the costs of constructing a secondary settling tank. Our sewage treatment systems are also highly automated and only one to two people can monitor approximately twenty systems. We believe that our quick separation technology is cost-effective and meets the strictest water quality standards, Grade I Standard A, published by the Chinese government.

 

Septic Tank Treatment

 

The septic tank treatment industry has been subject to an increased number of regulations and policies of environmental protection in recent years. Traditional septic tank treatments pump a mixture of solid waste and sewage into a tank truck and transport it to a treatment center for processing. However, the cost of the traditional methodology continues to increase due to a lack of capacity of the existing treatment centers and the distance of transportation.

 

The industry is highly segmented with several participants being small and regional companies or contracted individuals. With the increasing awareness of issues in the septic tank treatment industry, including the illegal dumping of waste, municipal environmental protection departments are increasing their oversight and scrutiny of participants within this industry.

 

Currently, the sewage from septic tanks in urban areas is discharged into the sewer systems after simple treatment methods. The Chinese government implemented the new Wastewater Quality Standards for Discharge to Municipal Sewers (GB/T 31962-2015) in 2016 to enhance the treatment of septic tank sewage. However, we believe that in most regions, the sewage discharged from septic tanks to municipal sewers does not meet the standards promulgated by the Chinese government. We believe that the market for our systems to effectively treat the sewage from septic tanks in compliance with such government standards is large and growing.

 

67

 

 

Our Competitive Strengths

 

We believe the following competitive strengths differentiate us from our competitors and continue to contribute to our success in the waste treatment market:

 

Product Advantages. Our integrated rural sewage treatment system adopts quick separation technology, which we believe to be an advanced and cost-effective solution for decentralized sewage treatment at a small scale. Our two septic tank treatment systems, mobile and fixed, both have the capability to treat the septic tanks on site with reduced odor and noise. Our proprietary design and technology is adaptable to the needs of specific customers and produces treated water that we believe meets applicable government standards.

 

Extensive Operation and Marketing Network. With twelve subsidiaries in nine provinces in China, each with strategic local partners, we are positioned near current and potential customers across China, which provides us with increased access to such customers and reduces our transportation and travel costs for equipment and services.

 

Experienced Management Team and Personnel with a Demonstrated Track Record. Our management team, led by Yunwu Li, has demonstrated a track record of managing costs, adapting to changing market conditions, and developing new products. In addition, our workforce is highly skilled with specialized training. We have successfully completed numerous projects in various provinces across China, including the Fujian, Jiangxi, Liaoning, and Zhejiang provinces. In 2017, the Wuxing District, Zhejiang province in China was named the Provincial Outstanding District and Town of the year in an evaluation of rural sewage operation, maintenance and management, according to the Department of Housing and Urban-Rural Development of Wuxing District. In 2017, we, through Huzhou CDT Environmental Technology Co., Ltd., were primarily responsible for the operation and maintenance of the rural sewage treatment pipeline for the Wuxing District, Zhejiang province in China.

 

Numerous Completed and Successful Projects. We believe we have pioneered the emerging rural sewage treatment and septic tank treatment industries in China. We have completed numerous projects in Fujian, Jiangxi, Liaoning, and Zhejiang provinces in China which we believe differentiates us from existing competitors that are small-scale and regional.

 

Recognized Brand. We believe we have established a distinguished reputation and close relationships among the state-owned companies, local governments and residential and business property management companies from which we acquire new projects.

 

Full range of sewage treatment solutions. We are able to install complete sewage treatment solutions for customers, which allows us to target end users. Our ability to provide customers with complete solutions, including maintenance support, installation, and technical advice, for their sewage treatment needs allows us to capture various types of users in the sewage treatment market. In addition, being able to provide total solutions creates a larger market for our products. We are typically able to obtain recurring or long-term contracts for operation and maintenance services due to our turn-key solutions for sewage treatment and our proprietary technology. We are also able to retain our customers as we maintain technological know-how and years of operational knowledge.

 

Our Strategy

 

We provide sewage treatment services and systems specializing in rural sewage treatment and septic tank treatment in both urban and rural areas. Our goal is to become one of the premier sewage treatment solution companies in China. We aim to achieve this goal by implementing the following strategies:

 

Rural Sewage Treatment

 

We intend to increase our market share in the rural sewage treatment industry by leveraging our proprietary technology and successful installation of our sewage treatment systems and plants. We intend to increase our market share in the towns and villages where we have already established a presence, and we also intend to expand our sales and marketing efforts to new geographic markets. We believe we have established a recognized brand and maintain an excellent reputation among state-owned and other companies through our successful rural sewage treatment plants and operation and maintenance services. Through frequent communication with state-owned and other companies, we are better able to understand our customers’ needs and can tailor our designs and proposals to meet those demands. We intend to expand our sales and marketing team targeting state-owned and other companies to further pursue opportunities of rural sewage treatment. We are currently in negotiation for several projects in the Fujian province in China.

 

We are in the process of negotiation to establish long-term partnerships with state-owned companies in the central government level for rural sewage treatment. We previously cooperated with state-owned companies in the city and provincial levels and built a recognized brand among such state-owned companies with our successful track record. To enhance the mutually beneficial relationship, we seek to enter into long-term partnerships with state-owned companies at the central government level. Such companies not only have established good relationships with government agencies, but also have sufficient working capital. Particularly at the central government level, state-owned companies have established networks throughout China. Such partnerships would help us to expand to other provinces in China.

 

Septic Tank Treatment

 

We plan to provide septic tank treatment services to septic tank sewage collection stations. We have designed, researched and developed a system that treats sewage at septic tank sewage collection stations in two steps: (1) separating solid waste and liquid sewage, and (2) treating the remaining liquid sewage before discharge. We plan to provide the system itself, along with installation, operation and maintenance services for the system, to septic tank sewage collection stations. In Beijing, there were more than 20,000 public toilets in 2019. The sewage produced in those public toilets is not permitted to be discharged into the municipal drainage systems before treatment. On average, each public toilet generates 2 to 3 tons of sewage per day. Therefore, for every 50 public toilets in Beijing, the Chinese government would need to build a septic tank sewage collection station capable of holding approximately 100 tons of sewage for temporary storage before it is transported to specialized treatment plants. We intend to promote our system in the Shunyi, Dongcheng, and Chaoyang Districts of Beijing. We believe our target customers for our system will primarily be municipal governments at the district and town levels. We believe our system is a cost-efficient method to treat septic tank sewage and typically will allow customers to avoid additional fees and/or potential hazard that could result from transportation of sewage from the collection stations to specialized treatment plants. We plan to obtain long-term contracts with our target customers and to offer free installation of our system while charging monthly or annual services fees.

 

68

 

 

We plan to promote the fixed septic tank treatment system for public toilets in service stations. We have upgraded our fixed septic tank treatment system and we believe that the treated water meets the strictest water quality standards, Grade I Standard A, specified in the Discharge Standard for Pollutants of Urban Wastewater Treatment Plants (GB18918-2002). This permits treated water to be reused or discharged directly into rivers and lakes. This system targets public toilets in service stations along controlled-access highways, particularly those highways in remote areas where sewer systems or wastewater treatment plants are not available. Currently, the sewage from public toilets at such service stations is traditionally discharged directly onto the ground or into nearby rivers and lakes, which raises environmental concerns. The Chinese government is seeking cost-effective solutions to manage such sewage from public toilets. We agreed to build a fixed septic tank treatment system at a service station in Inner Mongolia as a demonstration site for our fixed septic tank treatment system capabilities. This system began operation in May 2019 and treats approximately 4,238 cubic feet of wastewater per day.

 

We plan to partner with third parties to begin organic fertilizer production. We intend to begin production of organic fertilizer that utilizes the solid waste products that result from our mobile septic tank treatment systems. We currently provide such solid waste products to parks and farms at no cost, while we bear the transportation cost. We intend to cooperate with established organic fertilizer companies such that we will provide dehydrated solid waste and our partners will manufacture and sell organic fertilizer made from such waste. We are in contact with an organic fertilizer manufacturing company in Chengde, Hebei province that currently uses animal waste to produce several tons of fertilizer per day. We plan to potentially further pursue this opportunity with such manufacturing company following the completion of this offering.

 

Our Services and Products

 

We currently offer two primary lines of business in both urban and rural areas: sewage treatment systems and sewage treatment services. For sewage treatment systems, we sell and install our proprietary rural sewage treatment systems and provide on-going operation and maintenance services to our customers. For sewage treatment services, we provide on-site treatment services with our mobile and fixed septic tank treatment systems. Sewage treatment systems are sometimes also referred to herein as rural sewage treatment, and sewage treatment services are sometimes also referred to herein as septic tank treatment.

 

Rural Sewage Treatment

Our rural sewage treatment systems feature decentralized treatment with a capacity of treating 5 to 500 tons of sewage per day, which we believe is suitable for villages and towns in China. We offer turn-key solutions to our customers, including construction of sewage treatment plants, installation of our proprietary equipment, and operation and maintenance of such plants with our technical expertise and proprietary technology. We actively pursue long-term service contracts for operation and maintenance.

 

Our rural sewage treatment systems utilize quick separation technology, a newly emerged biochemical process for sewage treatment in the last 5 to 10 years. The primary filtration and treatment process occurs inside quick separation balls, which are numerous porous ceramic balls hosting microorganisms collected in a spherical plastic frame. Quick separation technology requires no additional pressure. As the blowing apparatus forces sewage though the quick separation balls, the flow rate on the surface of the porous ceramic balls is lowered and the suspended solids in the fluid accumulate inside the balls. An aerobic process that decomposes organic matter occurs near the surface of ceramic balls and an anaerobic process that decreases phosphorus and nitrogen occurs near the core. Our quick separation technology innovatively creates a varied, aerobic and anaerobic environment in one tank while traditional biochemical methodologies, such as A/O methodology, maintain only one environment in one tank.

 

 

 

We believe our quick separation technology is effective in treating sewage at small scales. Other methodologies include MBR, A2/O and A/O. MBR is able to convert sewage into high-quality clean water, but typically requires high capital investment and therefore is usually found in large, centralized treatment plants. A2/O and A/O are economically feasible for decentralized sewage treatment, but produce unstable treated water which sometimes fails to meet the national standards for sewage discharge. Our quick separation technology has the following advantages, which we believe outweigh the disadvantages, such as the need to use additional chemicals to reduce sulfur in wastewater and the low level, at times, of the biochemical oxygen demand level in the quick separation tank, which can make it difficult to sustain the microorganisms in the quick separation balls without additional carbon sources:

 

lhigh quality of outflowing water (Grade IA) – combines aerobic and anaerobic process inside quick separation balls and thus is more efficient in decomposition of organic matter and nitrogen;
lefficient construction and startup - microorganisms are fixed inside the quick separation balls with no additional time for cultivation and domestication of microorganisms;
lcompact structure;
lhigh degree of automation;
llow operating cost;
llifespan of more than 10 year without replacement of key components;
lcustomized design for each plant
lprevent abrupt increase of sewage inflows and contamination;
lreduced odor; and
lreduced waste by-products.

 

Throughout our years of experience in rural sewage treatment, we have improved our quick separation technology and processes to have the following unique advantages:

 

lautomated and precise control of the sewage inflow and timing in the quick separation tank with flowmeter and back-flow devices in the regulating tank;
lreduced energy consumption;
lanti-corrosion coatings;
lgrease separation tank inside regulating tank, which we believe increases efficiency of the quick separation process in subsequent stages; and
lmodified quick separation balls with proprietary substances that benefit the microorganisms necessary for the aerobic and anaerobic processes.

 

69

 

 

The process flow of our integrated rural sewage treatment system is as follows:

 

 

 

We have completed more than 60 plants in the Fujian, Jiangxi, and Liaoning provinces in China and have established long-term relationships with our customers through our operation and maintenance services.

 

Septic Tank Treatment

 

We offer septic tank treatment services with two types of septic tank treatment systems, each of which treats septic waste on site: (1) a mobile system for households in urban and rural areas, and (2) a fixed system for public toilets in urban areas.

 

Our mobile system is composed of an integrated waste treatment system assembled on a vehicle to allow for transport to septic tanks in all areas. The system is modular in design for flexibility and is composed of a pump, a compactor, a multi-dish screw dehydrator which mechanically dewaters sludge in the system, and a small pipeline dredger. Our mobile system is able to manage septic tank waste treatment through the processes of waste extraction, separation of solid waste from liquid sewage, dehydration of solid waste, residue filtration, and bale pressing. This treatment process reduces the odor and noise of traditional treatments, and reduces spillage during transportation. Our mobile system is highly automated and requires only two or three workers per system during operation. One mobile system is typically able to treat one 400-cubic-meter septic tank per day.

 

 

 

Our fixed system is an integrated and stand-alone waste treatment system designed for public toilets in cities. It adopts our quick separation technology and has a compact structure, only requiring twelve square meters for a system capable of treating twenty tons of sewage per day. Due to our advanced quick separation technology, our fixed system is able to decompose solid waste and treat sewage to meet the Sewage Quality Standards for Discharge to Municipal Sewers (GB/T 31962-2015).

 

70

 

 

 

 

We primarily procure outsourcing contracts from local governments and residential and business property management companies. We have established twelve subsidiaries in several provinces in China with local partners to expand our geographic market coverage. We have built a stable customer base that typically renews our septic tank service contracts annually or biennially.

 

Our Customers

 

Our current customers are primarily local governments, state-owned companies and residential and business property management companies in China. We determine a particular customer’s credit limits based on its size, creditworthiness and financial strength to limit the likelihood of nonpayment. Our largest customer in the six months ended June 30, 2023 accounted for 52.7% of our total revenues in such period. Our largest customer in the year ended December 31, 2022 accounted for 48.5% of our total revenues in such period. Our largest customer in the year ended December 31, 2021 accounted for 48.9% of our total revenues in such period.

 

Sales and Marketing

 

We have established sales and marketing networks in many cities across nine provinces in China, with twelve majority-owned subsidiaries and two branch offices, and we are in the process of penetrating the market in Fujian and Zhejiang provinces and expanding our sales and marketing efforts in northern China. Our sales and marketing operations are currently primarily initiated by, and the responsibility of, our general managers at our headquarters and our subsidiaries, together with our business development department, assisted by our engineering department.

 

For rural sewage treatment, our customers are city or provincial level state-owned construction companies that provide turn-key solutions of rural sewage infrastructure construction including drainage, pipeline and sewage treatment for local governments. When obtaining a new customer, we first identify the demand of local governments in rural sewage treatment. Then, we approach such state-owned companies that are capable of and experienced in undertaking sewage treatment related projects. We assist the state-owned companies in their bidding process with local governments, especially on the technology and process of rural sewage treatment. Lastly, the state-owned companies will use our rural sewage equipment and services after winning the bid. We have mutually beneficial partnerships with state-owned companies as we provide the technological support in rural sewage treatment and the state-owned companies have good relationships with local governments, well-known brands, and sufficient working capital. For the projects we assisted with, the state-owned companies have shown a very high success rate in the bidding process. State-owned companies in China often enter Engineering Procurement Construction, or EPC, contracts with the Chinese government, and often also undertake Public-Private-Partnership, or PPP, or Build-Operate-Transfer, or BOT, projects. EPC contracts indicate that a contractor is responsible for the engineering, procurement and construction of a particular facility or work awarded to it. BOT projects are funded solely by the contractor, and the contractor is responsible for construction and operation for a certain period of time. PPP projects are co-funded by the companies and the Chinese government, and the companies share the costs and risks of the project together with the Chinese government. In order to accomplish large EPC, PPP, or BOT projects, state-owned companies will procure rural sewage treatment equipment and services from us. We are responsible for building and operating decentralized rural sewage treatment plants. We charge construction and service fees for construction or renovation of sewage treatment plants and the provision of rural sewage treatment services.

 

For septic tank treatment systems, we have expanded into various geographic markets through our establishment of subsidiaries with strategic partners who have outstanding local networks and resources. We have established twelve subsidiaries in several provinces in China. Through those subsidiaries, we procure septic tank treatment contracts from local governments and residential and business property management companies.

 

Our sales and marketing efforts focus on active and on-going communication with relevant government agencies, state-owned strategic partners and residential and business property management companies. We also actively seek partnerships with state-owned companies at the central government level and therefore become more exposed to a boarder geographic market coverage. We also frequently attend the industry seminars held by the government. We intend to increase our sales and marketing efforts via advertisement in magazines in the waste treatment industry and attending relevant exhibitions.

 

71

 

 

Manufacturing

 

Rural Sewage Treatment

 

We outsource manufacturing of our integrated rural sewage treatment system primarily to three suppliers in the Jiangsu and Fujian provinces. We have established stable and long-term relationships with our suppliers and they generally deliver our orders on a timely basis. The average time required for an integrated equipment system, for treating less than 100 tons of sewage per day, from execution of the contract to delivery is typically between 45 and 60 days. Our suppliers have the ability to manufacture any of our integrated rural sewage treatment systems. All integrated equipment must pass strict quality control procedures at three stages: (1) during our selection of the supplier, (2) during the testing stages before purchase and implementation and (3) during an annual supplier appraisal conducted by us. During the selection process of our suppliers, we conduct due diligence to ensure that the suppliers meet our standards, including that they have obtained necessary permits, that they meet national standards of quality control, that they have the necessary equipment and capacity to meet our needs and that they agree on our criteria for testing. We also typically perform several test runs before we accept products from our suppliers. In addition, we appraise our suppliers annually to ensure that they continue to meet our expectations regarding quality, timing of delivery, and post-sale services.

 

Septic Tank Treatment

 

We assemble the components of our mobile septic tank treatment system and install such equipment on our vehicles at our factory in Nanping, China, which we operate under a lease that expires in July 2025. We contract with third-party suppliers to produce the components, which include a pump, a crusher, a multi-dish screw dehydrator, and a small pipeline dredger. We maintain our proprietary technology and provide the design and technological support for the suppliers. We further divide the key components into five or six parts and contract with different suppliers for each component to protect our proprietary technology.

 

We purchase some of the components and assemblies that we include in our products from a limited number of suppliers. We believe that we could obtain and qualify alternative sources to supply these components. Nevertheless, any prolonged inability to obtain these components could have an adverse effect on our operating results and could unfavorably impact our customer relationships.

 

Research and Development

 

We are committed to researching and developing our sewage treatment technologies and septic tank treatment systems in order to meet the demands of our customers in the waste treatment market. We collect feedback from our completed projects and modify our integrated equipment and technologies based on previous experiences. We believe scientific and technological innovations will aid us to achieve our long-term strategic objective of becoming one of the premier waste treatment solution companies in China. For this reason, we devote significant financial and personnel resources to research and development. Our current research and development efforts are primarily focused on improving the efficiency of the microorganisms in our rural sewage treatment system and exploring the combination of membrane and quick separation technology to maximize the proficiency of water treatment. Our research and development team is comprised of highly skilled engineers and scientists with extensive experience in sewage and septic technologies, chemistry, and design. To supplement our internal expertise, we have also collaborated with third-party institutions to whom we provided funds for research and development purposes. For the new septic tank treatment services for septic tank sewage collection stations, we continually conduct research to create an efficient and compact system. We are also exploring the combination of different sewage treatment methods to maximize the quality of water outflow.

 

Our research and development expense was $42,829 during the six months ended June 30, 2023, $112,668 during the year ended December 31, 2022 and $136,690 during the year ended December 31, 2021. We intend to continue to invest in research and development to support and enhance our existing products and services and to develop future product and service offerings to enhance our position in the market.

 

Intellectual Property

 

Our success and future revenue growth may depend, in part, on our ability to protect our intellectual property as products that are material to our operating results incorporate patented technology.

 

We have pursued protections for our intellectual property rights since our founding in 2012 and we focus our intellectual property efforts in China. Our patent strategy is designed to provide a balance between the need for coverage in our strategic market and the need to maintain reasonable costs.

 

We believe our patents and other intellectual property rights serve to distinguish and protect our products from infringement and contribute to our competitive advantages. As of December 31, 2023, we had 2 invention patents, 35 utility model patents, 3 trademarks and 2 computer software copyrights. 

 

We cannot assure you that any patents will be issued from any of our pending applications. In addition, any rights granted under any of our existing or future patents may not provide meaningful protection or any commercial advantage to us. With respect to our other proprietary rights, it may be possible for third parties to copy or otherwise obtain and use our proprietary technology without authorization or to develop similar technology independently. We may in the future initiate claims or litigation against third parties to determine the validity and scope of proprietary rights of others. In addition, we may in the future initiate litigation to enforce our intellectual property rights or to protect our trade secrets. Additional information about the risks relating to our intellectual property is provided under “Risk Factors—Risks Related to Intellectual Property.”

 

Competition

 

We face competition from several regional competitors in the rural sewage treatment industry and the septic tank treatment industry. We may also face competition from new and emerging companies.

 

Rural sewage treatment and septic tank treatment are emerging industries in China. We believe our primary competitors are regional companies that undertake construction of rural sewage treatment plants and provide operation and maintenance services, along with regional companies in the septic tank treatment industry. Due to the difficulty of centralized treatment of rural sewage in China, large companies do not typically enter the rural sewage treatment market. The regional companies that we compete with are typically small in scale and rely on their relationships with large and state-owned companies which outsource the rural sewage treatment. Such companies typically use A2/O or A/O methodology to treat rural sewage which is not as efficient as our quick separation technology.

 

72

 

 

We believe there are barriers to entry in our markets that limit the number of qualified competitors. These barriers result from stringent performance standards, product qualification protocols and requirements for consistent levels of service and support. We believe that our broad array of products and product designs coupled with our engineering expertise and experienced service providers enable us to provide customers with differentiated product performance, value and customer support.

 

The principal competitive factors in our markets include:

 

ability to provide projects with advanced technology and equipment;
construction quality and standards;
ability to find projects;
reputation in the market;
unified management; and
ability to address unique client needs.

 

We believe we compete favorably with respect to the factors mentioned above.

 

Seasonality

 

Our business is affected by seasonality. Construction of our treatment systems is typically slow during winter seasons due to inclement weather and around Chinese holidays due to government and other and closures.

 

Facilities

 

Our principal executive office is located at C1, 4th Floor, Building 1, Financial Base, No. 8 Kefa Road, Nanshan District, Shenzhen, China, 518057, where we lease approximately 3,440 square feet of office space. We lease this space under a lease that terminates on September 30, 2024. We also lease a facility located at No.2, Shangping Road, Shangchen Industrial Park, Jianyang District, Nanping City, Fujian Province, China, consisting of approximately 5,382 square feet of factory space. We lease this space under a lease that terminates on July 31, 2025. We also lease other spaces that we do not view to be material to our business.

 

We believe that our facilities are adequate to meet our needs for the immediate future, and that, should it be needed, suitable additional space will be available on commercially reasonable terms to accommodate any expansion of our operations.

 

Employees and Human Capital

 

As of December 31, 2023, we had 114 employees, of whom 107 were full-time employees, 7 were part-time employees and all were located in China. Our success depends on our ability to attract, motivate, train and retain qualified personnel. We believe we offer our employees competitive compensation packages and an environment that encourages self-development and, as a result, have generally been able to attract and retain qualified personnel and maintain a stable core management team. None of our employees are represented by a labor union or covered by a collective bargaining agreement. We have never experienced any employment related work stoppages, and we consider our relations with our employees to be good.

 

Legal Proceedings

 

We are not currently a party to any legal proceedings that in the opinion of our management would have a material adverse effect on our business. However, from time to time we may be involved in legal proceedings or may be subject to claims arising in the ordinary course of our business. Although the results of litigation and claims cannot be predicted with certainty, we believe that the final outcome of ordinary course matters will not have a material adverse effect on our business, operating results, financial condition or cash flows.

 

COVID-19 Update

 

In December 2019, a novel strain of coronavirus, or COVID-19 or the coronavirus, surfaced and it has spread rapidly to many parts of China and other parts of the world, including the United States. The COVID-19 pandemic has resulted in quarantines, travel restrictions, and the temporary closure of stores and business facilities in China and several other parts of the world, including the United States. In March 2020, the World Health Organization declared COVID-19 a pandemic. All of our revenue is concentrated in China through our subsidiaries. Consequently, our revenues were impacted by COVID-19 and were significantly lower in 2020 as compared to the same period of 2019. We had to comply with the temporary closure of stores and business facilities, or the ‘shelter in place’ order, in China in the first quarter of 2020. As a result, we closed our facilities in January 2020 and re-opened them in late March 2020. The COVID-19 outbreak materially adversely affected our business operations, financial condition and operating results for 2020 and 2021, including but not limited to material negative impact on our total revenues, slower collection of accounts receivable and additional allowances for doubtful accounts. Despite the ongoing COVID-19 pandemic, we resumed relatively normal business operations after March 2020. However, the resurgence of COVID-19, particularly the Omnicron variant, has resulted in government restrictions in quarantines, travel and the temporary closures of stores and business facilities in parts of China and the world during the first few months of 2022. As of date of this prospectus, the PRC government has lifted the above mentioned restrictions. In December 2022, the Chinese government unveiled a series of new COVID-related policies to loosen its zero-COVID policy, and uplifted the existing prevention and control measures that were in place for the COVID-19 pandemic. On December 26, 2022, China’s National Health Commission announced that the COVID-19 infections will not be subject to the prevention and control measures of a Class A infectious disease, which means that COVID-19 infections will no longer be included in the administration of quarantinable infectious diseases. Starting from January 8, 2023, among other changes, China no longer conducts nucleic acid tests or centralized quarantine for all inbound travelers, and measures to control the number of international passenger flights have been lifted. We expect our business operations, financial condition and operating results to continue to recover from the negative impact of the COVID-19 pandemic. However, due to the significant uncertainties surrounding the COVID-19 pandemic, the extent of the business disruption and the related financial impact cannot be reasonably estimated at this time. For a discussion of the risks associated with COVID-19, see “COVID-19 Update” and “Risk Factors—Risks Related to Doing Business in China—We face risks related to natural disasters, health pandemics and other outbreaks, particularly the coronavirus, which could significantly disrupt our operations.”

 

73

 

  

REGULATION

 

The following sets forth a summary of the most significant rules and regulations that affect our business activities in China.

 

Regulations and National Policies Relating to the Water Treatment Equipment Manufacturing Industry

 

Pursuant to the 13th Five Year Plan for National Economic and Social Development of the PRC (2016-2020), or the 13th Five Year Plan, which became effective on March 16, 2016, Section 4, “Strengthening Environmental Infrastructure Construction”, under Chapter 44, “Strengthening Comprehensive Environmental Governance”, stipulates that China needs to accelerate the construction and transformation of urban sewage treatment facilities and pipe networks, promote the harmless treatment of sludge and the utilization of resources, and achieve full coverage and stable compliance operations of urban sewage and garbage treatment facilities. Further, Section 2, “Speed up the construction of beautiful and livable villages”, under Chapter 36, “Promoting Coordinated Urban-Rural Development”, provides that China needs to comprehensively improve rural production and living conditions and accelerate the transformation of rural environment sanitation facilities.

 

Pursuant to the 14th Five Year Plan for National Economic and Social Development of the PRC (2021-2025), or the 14th Five Year Plan, which became effective on March 12, 2021, Section 3, “Improving the Living Environment in Rural Areas”, under Chapter 24, “Implementation of Rural Construction Action”, which provides that China needs to carry out the improvement of rural living environment, and steadily solve the outstanding environmental problems, including rural black and smelly water issue, the Chinese government promotes rural toilet revolution in line with local conditions and comprehensive improvement of rural water systems. In addition, Section 2, “Comprehensively Improving the Level of Environmental Infrastructure”, under Chapter 38, “Continuous Improvement of Environmental Quality”, stipulates that China aims to build an environmental infrastructure system integrating sewage, garbage, solid waste, hazardous waste, medical waste treatment and disposal facilities, and monitoring and supervision capabilities, and form an environmental infrastructure network extending from cities to towns and villages. The Chinese government aims to promote the full coverage of urban sewage pipe network, carry out differential and accurate upgrading of sewage treatment, and promote the centralized incineration of sludge for harmless treatment.

 

China’s five-year plans are blueprints containing the country’s social, economic, and political goals. They encompass and intertwine with existing policies, regional plans, and strategic initiatives. A five-year plan signals the Chinese government’s vision for future reforms and communicates this to other parts of the bureaucracy, industry players and Chinese citizens.

 

Pursuant to (a) the Law of China on the Prevention and Control of Water Pollution, which was adopted in 1984, last amended in 2017 and became effective in 2018, (b) the Law of China on Circular Economy Promotion, which was adopted in 2018, and (c) the Regulation on Urban Drainage and Sewage Treatment which, was adopted in 2014, the Chinese government supports the application of advanced and applicable technology to the prevention and control of water pollution, and the research, development and promotion of science and technology. Further, the Chinese government encourages social funds to invest, construct and operate urban drainage and sewage treatment equipment.

 

Pursuant to the Water Pollution Prevention and Control Action Plan, or the Water Ten Plan, which was issued by the PRC in April 2015, the Chinese government adopted specific targets related to water quality and environmental protection. To achieve these targets, the government will promote research and advanced technologies on water pollution treatment and recycling.

 

In addition, in the Water Ten Plan, there is an increased emphasis on the importance of cooperating with foreign technological partners in the areas of water treatment process equipment. We believe these policies, among others, will cause more industries to utilize new technologies in water treatment.

 

The principal regulation governing foreign ownership of water treatment equipment manufacturing businesses in China is the Catalogue of Encouraged Industries for Foreign Investment, which was issued by the MOFCOM and the NDRC on October 26, 2022, and became effective on January 1, 2023. Under the Guidance Catalogue, our main business, the water treatment equipment manufacturing business is in an industry that foreign investors are encouraged to invest in.

 

Regulations Relating to Environmental Protection

 

The Environmental Protection Law, which was adopted in 1989, last amended in 2014 and became effective in 2015, effectively established the legal framework for environment protection in China. The Environmental Protection Law requires the Ministry of Environmental Protection of China, to implement uniform supervision and administration of environmental protection work nationwide and establishes national waste discharge standards. Enterprises producing environmental contamination and other public hazards must incorporate environmental protection work into their planning and establish environmental protection systems. As of the date of this prospectus, the business of us and our subsidiaries complied with the relevant provisions of The Environmental Protection Law.

 

Through the adoption of the Environmental Impact Assessment Law of China in 2018 and the Category-based Management Directory on the Environmental Impact Assessment for Construction Projects, which was recently amended in 2020 and became effective on January 1, 2021, the Chinese government established a system to appraise the environmental impact of construction projects and classify the appraisal based on the degree of environmental impact caused by such construction project. As of the date of this prospectus, we and our subsidiaries have compiled environmental impact assessment documents in accordance with relevant rules and regulations and have been approved by the authorities.

 

74

 

 

On October 16, 2018, the Ministry of Industry and Information Technology of China promulgated and implemented the Specification Conditions of Sewage Treatment for Environmental Protection Equipment Manufacturing Industry, which stipulates that sewage treatment enterprises include sewage treatment equipment enterprises and sewage treatment engineering enterprises. It also stipulates that such enterprises must meet the following conditions: (1) The enterprise must have the qualification of an independent legal person, obtain a business license, and engage in the production of sewage treatment equipment or engineering of sewage treatment. (2) The enterprise should have the capabilities of research and development, design, installation and debugging, as well as relevant qualifications. Equipment enterprises should have fixed production sites that adapt to the scale of production. (3) Crafts and equipment used in the production or construction of an enterprise shall comply with the requirements of the national industrial policy, and such enterprise shall not produce products that have been eliminated by the state, nor use equipment, materials and crafts that have been eliminated by the country. (4) The enterprise shall have a good financial status, the financial data shall be authentic and credible, and shall be audited by an accounting firm registered in the PRC who can issue third-party financial audit reports for the past three years. (5) The enterprise should have good credit, public image and ability to perform contracts, pay taxes in accordance with the law, and should have not been subjected to administrative punishment in violation of national laws and regulations in the past three years, and should not have major quality or production safety accidents, and other accidents, and should not have malicious low-price bidding behaviors, or unfair competitive behaviors. (6) The average profit rate of the enterprise in the past three years should not be less than 6%. (7) The enterprise should have a stable cooperation mechanism with research and development institutions, universities, and research institutes on technological research and development. Within the enterprise, there should be scientific and technical personnel with a college degree or above that account for more than 30% of the total number of employees engaged in the work of sewage treatment, of which scientific and technical personnel engaged in research and development in the field of sewage treatment should account for more than 6% of the total number of employees or no less than 100 employees. (8) The annual investment of an equipment enterprise in research and development of sewage treatment in the past three years accounts for no less than 3% of the sales of sewage treatment equipment, and the annual investment of the engineering enterprise should not be less than RMB 20 million (approximately $3.0 million). (9) In the past three years, the enterprise has obtained more than one authorized invention patent or more than 10 utility model patents (including software copyrights) in the field of sewage treatment, or has mainly undertaken to complete more than one national scientific and technological project in the field of sewage treatment. At the same time, the regulation requires enterprises to voluntarily apply for regulation announcements in accordance with the conditions of this regulation. The Ministry of Industry and Information Technology of China is responsible for the dynamic management of the list of announced enterprises. The local competent industry and information technology authorities at various levels are responsible for the supervision of the enterprises in the region that have been announced, and all sectors of the society supervise the enterprises that have been announced. We meet the requirements of the Specification Conditions of Sewage Treatment for Environmental Protection Equipment Manufacturing Industry.

 

Legal Regulations on Intellectual Property in the PRC

 

Copyright

 

Pursuant to the Copyright Law of the PRC, which was first promulgated by the Standing Committee of the National People’s Congress on September 7, 1990 and became effective from June 1, 1991, and was last amended on November 11, 2020 and became effective on June 1, 2021, copyrights include personal rights such as the right of publication and that of authorship as well as property rights such as the right of reproduction and that of distribution. Reproducing, distributing, performing, screening, broadcasting or compiling or disseminating the work to the public through information network without the consent of the copyright holder, unless otherwise stipulated in the Copyright Law of the PRC, constitute infringements of copyrights.

 

Trademark

 

Pursuant to the Trademark Law of the PRC, which was first promulgated by the Standing Committee of the National People’s Congress on August 23, 1982 and became effective from March 1, 1983, and was most recently amended on April 23, 2019 and became effective on November 1, 2019, the right to exclusive use of a registered trademark shall be limited to trademarks which have been approved for registration and to goods for which the use of such trademark has been approved. The period of validity of a registered trademark shall be ten years, counted from the day the registration is approved. According to this law, using a trademark that is identical to or similar to a registered trademark in connection with the same or similar goods without the authorization of the owner of the registered trademark constitutes an infringement of the exclusive right to use a registered trademark.

 

Patent

 

Pursuant to the Patent Law of the PRC, which was promulgated by the Standing Committee of the National People’s Congress on March 12, 1984 and became effective from April 1, 1985, and was most recently amended on October 17, 2020 and became effective on June 1, 2021, following the grant of the patent right for an invention or utility model, unless otherwise stipulated in the Patent Law, no organization or individual shall implement the patent without licensing from the patentee, i.e. shall not manufacture, use, offer to sell, sell or import such patented products for manufacturing and business purposes, or use the patented method and use, offer to sell, sell or import products obtained directly according to the patent method. Following the grant of design patent rights, no organization or individual shall implement the patent without licensing from the patentee, i.e. shall not manufacture, offer to sell, sell or import the design patented products for manufacturing and business purposes.

 

75

 

 

Domain Name

 

Pursuant to the Administrative Measures on Internet Domain Names, which was recently amended by the Ministry of Industry and Information Technology of China on August 24, 2017 and became effective on November 1, 2017, "domain name" shall refer to the character mark of hierarchical structure, which identifies and locates a computer on the internet and corresponds to the internet protocol (IP) address of that computer. And the principle of "first come, first serve" is followed for the domain name registration service. After completing the domain name registration, the applicant becomes the holder of the domain name registered by him/it. Furthermore, the holder shall pay operation fees for registered domain names on schedule. If the domain name holder fails to pay the corresponding fees as required, the original domain name registrar shall write it off and notify the holder of the domain name in written form. We have paid the corresponding fees for our domain name as required, and the service period is until April 28, 2026.

 

Legal Regulations on Labor Protection in the PRC

 

According to the Labor Law of the PRC, or the Labor Law, which was promulgated by the Standing Committee of the NPC on July 5, 1994, came into effect on January 1, 1995, and was most recently amended on December 29, 2018, an employer shall develop and improve its rules and regulations to safeguard the rights of its workers. An employer shall develop and improve its labor safety and health system, stringently implement national protocols and standards on labor safety and health, conduct labor safety and health education for workers, guard against labor accidents and reduce occupational hazards. Labor safety and health facilities must comply with relevant national standards. An employer must provide workers with the necessary labor protection gear that complies with labor safety and health conditions stipulated under national regulations, as well as provide regular health checks for workers that are engaged in operations with occupational hazards. Laborers engaged in special operations shall have received specialized training and have obtained the pertinent qualifications. An employer shall develop a vocational training system. Vocational training funds shall be set aside and used in accordance with national regulations and vocational training for workers shall be carried out systematically based on the actual conditions of the company. 

 

The Labor Contract Law of the PRC, which was promulgated by the SCNPC on June 29, 2007, came into effect on January 1, 2008, and was amended on December 28, 2012 and became effective as of July 1, 2013, and the Implementation Regulations on the Labor Contract Law, which was promulgated and became effective on September 18, 2008, regulate both parties through a labor contract, namely the employer and the employee, and contain specific provisions involving the terms of the labor contract. It is stipulated under the Labor Contract Law and the Implementation Regulations on the Labor Contract Law that a labor contract must be made in writing. An employer and an employee may enter into a fixed-term labor contract, a non-fixed term labor contract, or a labor contract that concludes upon the completion of certain work assignments, after reaching agreement upon due negotiations. An employer may legally terminate a labor contract and dismiss its employees after reaching agreement upon due negotiations with the employee or by fulfilling the statutory conditions. Labor contracts concluded prior to the enactment of the Labor Law and subsisting within the validity period thereof shall continue to be honored. With respect to a circumstance where a labor relationship has already been established but no formal written contract has been made, a written labor contract shall be entered into within one month from the commencement date of the employment.

 

According to the Provisional Regulations on the Collection and Payment of Social Insurance Premiums, the Regulations on Work Injury Insurance, the Regulations on Unemployment Insurance and the Trial Measures on Employee Maternity Insurance of Enterprises, enterprises in the PRC shall provide benefit plans for their employees, which include basic pension insurance, unemployment insurance, maternity insurance, work injury insurance and basic medical insurance. An enterprise must provide social insurance by processing social insurance registration with local social insurance agencies, and shall pay or withhold relevant social insurance premiums for or on behalf of employees. The Law on Social Insurance of the PRC, which was promulgated by the Standing Committee of the National People’s Congress on October 28, 2010, and became effective on July 1, 2011, and was most recently updated on December 29, 2018, has consolidated pertinent provisions for basic pension insurance, unemployment insurance, maternity insurance, work injury insurance and basic medical insurance, and has elaborated in detail the legal obligations and liabilities of employers who do not comply with relevant laws and regulations on social insurance.

 

According to the Interim Measures for Participation in the Social Insurance System by Foreigners Working within the Territory of China, which was promulgated by the Ministry of Human Resources and Social Security of China on September 6, 2011, and became effective on October 15, 2011, employers who employ foreigners shall participate in the basic pension insurance, unemployment insurance, basic medical insurance, occupational injury insurance, and maternity leave insurance in accordance with the relevant law, with the social insurance premiums to be contributed respectively by the employers and foreigner employees as required. In accordance with such Interim Measures, the social insurance administrative agencies shall exercise their right to supervise and examine the legal compliance of foreign employees and employers and the employers who do not pay social insurance premiums in conformity with the laws shall be subject to the administrative provisions provided in the Social Insurance Law and the relevant regulations and rules mentioned above.

 

According to the Regulations on the Administration of Housing Provident Fund, which was promulgated by the State Counsel and became effective on April 3, 1999, and was amended on March 24, 2002 and was partially revised on March 24, 2019 by Decision of the State Council on Revising Some Administrative Regulations (Decree No. 710 of the State Council), housing provident fund contributions by an individual employee and housing provident fund contributions by his or her employer shall belong to the individual employee. Registration by PRC companies at the applicable housing provident fund management center is compulsory and a special housing provident fund account for each of the employees shall be opened at an entrusted bank.

 

The employer shall timely pay up and deposit housing provident fund contributions in full amount and late or insufficient payments shall be prohibited. The employer shall process housing provident fund payment and deposit registrations with the housing provident fund administration center. With respect to companies who violate the above regulations and fail to process housing provident fund payment and deposit registrations or open housing provident fund accounts for their employees, such companies shall be ordered by the housing provident fund administration center to complete such procedures within a designated period. Those who fail to process their registrations within the designated period shall be subject to a fine ranging from RMB 10,000 (approximately $1,500) to RMB 50,000 (approximately $7,500). When companies breach these regulations and fail to pay up housing provident fund contributions in full amount as due, the housing provident fund administration center shall order such companies to pay up within a designated period, and may further apply to the People's Court for mandatory enforcement against those who still fail to comply after the expiry of such period. 

 

As of December 31, 2023, Shenzhen CDT and its subsidiaries failed to pay social insurance premiums in full and on time for 39 employees. According to the Provisional Regulations on the Collection and Payment of Social Insurance Premiums, because Shenzhen CDT and its subsidiaries did not pay the social insurance premiums in full for all employees, premium collection agencies may order them to pay or make up the arrears and may impose an overdue fine. If Shenzhen CDT fails to pay such overdue fine, they may be further fined.

 

As of December 31, 2023, Shenzhen CDT and its subsidiaries failed to pay the housing provident fund for 87 employees. According to the Regulations on the Administration of Housing Provident Fund, due to the failure to pay the housing provident fund for all employees, Shenzhen CDT may be ordered with a deadline for payment from the Housing Provident Fund Management Center. In addition, if Shenzhen CDT does not make the housing accumulation fund deposit registration or does not establish the housing provident fund account for the employees, the housing provident fund management center will order a deadline for payment, and if Shenzhen CDT fails to pay the housing provident fund within the deadline, it will be imposed a fine of not less than RMB 10,000 (approximately $1,500) and not more than RMB 50,000 (approximately $7,500).

 

76

 

 

Legal Regulations on Tax in the PRC

 

Income Tax

 

In January 2008, the PRC Enterprise Income Tax Law took effect, which was last amended by the Standing Committee of the National People’s Congress on December 29, 2018. The PRC Enterprise Income Tax Law applies a uniform 25% enterprise income tax rate to both FIEs and domestic enterprises, except where tax incentives are granted to special industries and projects. The PRC Enterprise Income Tax Law defines “resident enterprise” as an enterprise established outside of the territory of China but with its “de facto management body” within China, which will also be subject to the 25% enterprise income tax rate. The implementation rules define the term “de facto management body” as the body that exercises full and substantial control and overall management over the business, productions, personnel, accounts, and properties of an enterprise. Under the PRC Enterprise Income Tax Law and its implementation regulations, dividends generated from the business of a PRC subsidiary after January 1, 2008, and payable to its foreign investor may be subject to a withholding tax rate of 10% if the PRC tax authorities determine that the foreign investor is a Non-resident Enterprise, unless there is a tax treaty with China that provides for a preferential withholding tax rate. Distributions of earnings generated before January 1, 2008, are exempt from PRC withholding tax.

 

In January 2009, the SAT promulgated the Provisional Measures for the Administration of Withholding of Enterprise Income Tax for Non-resident Enterprises, or the Non-resident Enterprises Measures, which was repealed by Announcement of the State Administration of Taxation on Issues Relating to Withholding at Source of Income Tax of Non-resident Enterprises, or SAT Bulletin 37, which came into effect on December 1, 2017 and was revised on June 15, 2018. The SAT Bulletin 37 further clarifies the practice and procedure of withholding of non-resident enterprise income tax. It shall apply to the handling of matters relating to withholding at source of income tax of non-resident enterprises pursuant to the provisions of Article 37, Article 39 and Article 40 of the Enterprise Income Tax Law. According to Article 37, Article 39 of the Enterprise Income Tax Law, income tax over non-resident enterprise income pursuant to the provisions of the third paragraph of Article 3 shall be subject to withholding at the source, where the payer shall act as the withholding agent. The tax amount for each payment made or due shall be withheld by the withholding agent from the amount paid or payable. Where a withholding agent fails to withhold tax or perform tax withholding obligations pursuant to the provisions of Article 37, the taxpayer shall pay tax at the place where the income is derived. Where the taxpayer fails to pay tax pursuant to law, the tax authorities may demand payment of the tax amount payable, from a payer of the taxpayer with payable tax amounts from other taxable income items in China.

 

On April 30, 2009, the MOF and the SAT jointly issued the Circular on Issues Concerning Treatment of Enterprise Income Tax in Enterprise Restructuring Business, or Circular 59, which became effective retroactively as of January 1, 2008 and was partially revised on January 1, 2014. By promulgating and implementing this circular, the PRC tax authorities have enhanced their scrutiny over the direct or indirect transfer of equity interests in a PRC resident enterprise by a Non-resident Enterprise.

 

On February 3, 2015, the SAT issued the Announcement of the State Administration of Taxation on Several Issues Relating to Enterprise Income Tax of Transfers of Assets between Non-resident Enterprises, or SAT Bulletin 7, which was partially abolished on December 29, 2017. SAT Bulletin 7 extends its tax jurisdiction to transactions involving transfer of immovable property in China and assets held under the establishment, and placement in China, of a foreign company through the offshore transfer of a foreign intermediate holding company. SAT Bulletin 7 also addresses transfer of the equity interest in a foreign intermediate holding company broadly. In addition, SAT Bulletin 7 introduces safe harbor scenarios applicable to internal group restructurings. However, it also brings challenges to both the foreign transferor and transferee of the Indirect Transfer as they have to assess whether the transaction should be subject to PRC tax and to file or withhold the PRC tax accordingly.

  

If non-resident investors were involved in our private equity financing, if such transactions were determined by the tax authorities to lack reasonable commercial purpose, we and our non-resident investors may be at risk of being required to file a return and be taxed under SAT Bulletin 7 and we may be required to expend valuable resources to comply with SAT Bulletin 7 or to establish that we should not be held liable for any obligations under SAT Bulletin 7.

 

Value-Added Tax

 

According to the Provisional Regulations on Value-added Tax, which was most recently amended on November 19, 2017, and the Detailed Implementing Rules of the Provisional Regulations on Value-added Tax, which was amended on October 28, 2011, and became effective on November 1, 2011, all taxpayers selling goods, providing processing, repair or replacement services or importing goods within the PRC shall pay value-added tax. The tax rate of 17% was levied on general taxpayers selling or importing various goods; the tax rate of 17% was levied on taxpayers providing processing, repairing or replacement service; the applicable rate for the export of goods by taxpayers shall be nil, unless otherwise stipulated. The Notice of the Ministry of Finance and the State Administration of Taxation on the Adjustment to VAT Rates was released on April 4, 2018 and became effective on May 1, 2018. It declared that the VAT tax rate in regard to the sale of goods, provision of processing, repairs and replacement services and importation of goods into China shall be reduced from the previous 17% to 16% from May 1, 2018. 

 

77

 

 

Furthermore, according to the Pilot Scheme on Switching from Business Tax to Value-added Tax, which was promulgated by the MOF and the SAT, China began to launch taxation reforms in a gradual manner from January 1, 2012, whereby the collection of value-added tax in lieu of business tax items was implemented on a trial basis in regions showing significant radiating effects in economic development and providing outstanding reform examples, beginning with production service industries such as transportation and certain modern service industries.

 

In accordance with Notice of the Ministry of Finance and the State Administration of Taxation on Full Launch of the Pilot Scheme on Levying Value-added Tax in Place of Business Tax that took effect on May 1, 2016 and revised thereafter, upon approval of the State Council, the pilot program of the collection of value-added tax in lieu of business tax shall be promoted nationwide in a comprehensive manner starting May 1, 2016, and all taxpayers of business tax engaged in the building industry, the real estate industry, the financial industry and the life service industry shall be included in the scope of the pilot program with regard to payment of value-added tax instead of business tax. Our main business, the water treatment equipment manufacturing business, is included in the scope of the pilot program with regard to payment of value-added tax instead of business tax.

 

Regulations on Foreign Exchange

 

Foreign Currency Exchange

 

Pursuant to the Regulations on Foreign Exchange System of the People’s Republic of China, as amended in 2008, and various regulations issued by SAFE and other relevant PRC government authorities, Renminbi is freely convertible to the extent of current account items, such as trade related receipts and payments, interest and dividends. Capital account items, such as direct equity investments, loans and repatriation of investment, unless expressly exempted by laws and regulations, still require prior approval from SAFE or its provincial branch for conversion of Renminbi into a foreign currency, such as U.S. dollars, and remittance of the foreign currency outside of the PRC. Payments for transactions that take place within the PRC must be made in Renminbi. Foreign currency revenues received by PRC companies may be repatriated into or retained outside of the PRC in accordance with requirements and terms specified by SAFE.

 

Dividend Distributions

 

Wholly foreign-owned enterprises and Sino-foreign equity joint ventures in the PRC may pay dividends only out of their accumulated profits, if any, as determined in accordance with PRC accounting standards and regulations. Additionally, these FIEs may not pay dividends unless they set aside at least 10% of their respective accumulated profits after tax each year, if any, to fund certain reserve funds, until such time as the accumulated amount of such fund reaches 50% of the enterprise's registered capital. In addition, these companies also may allocate a portion of their after-tax profits based on PRC accounting standards to employee welfare and bonus funds at their discretion. These reserves are not distributable as cash dividends.

 

Regulations Relating to Foreign Exchange Registration of Overseas Investment by PRC Residents

 

SAFE Circular 37, issued by SAFE and effective on July 4, 2014, regulates foreign exchange matters in relation to the use of SPVs by PRC residents or entities to seek offshore investment and financing and conduct round trip investment in China. Under Circular 37, a SPV refers to an offshore entity established or controlled, directly or indirectly, by PRC residents or entities for the purpose of seeking offshore financing or making offshore investment, using legitimate domestic or offshore assets or interests, while "round trip investment" refers to the direct investment in China by PRC residents or entities through SPVs, namely, establishing FIEs to obtain the ownership, control rights and management rights. SAFE Circular 37 requires that, before making contribution into a SPV, PRC residents or entities are required to complete foreign exchange registration with the SAFE or its local branch. SAFE Circular 37 further provides that option or share-based incentive tool holders of a non-listed SPV can exercise the options or share incentive tools to become a shareholder of such non-listed SPV, subject to registration with SAFE or its local branch.  

 

PRC residents or entities who have contributed legitimate domestic or offshore interests or assets to SPVs but have yet to obtain SAFE registration before the implementation of SAFE Circular 37 shall register their ownership interests or control in such SPVs with SAFE or its local branch. An amendment to the registration is required if there is a material change in the registered SPV, such as any change of basic information (including change of such PRC "resident's name" and operation term), increases or decreases in investment amounts, transfers or exchanges of shares, or mergers or divisions. Failure to comply with the registration procedures set forth in SAFE Circular 37, or making misrepresentation on or failure to disclose controllers of a FIE that is established through round-trip investment, may result in restrictions on the foreign exchange activities of the relevant FIEs, including payment of dividends and other distributions, such as proceeds from any reduction in capital, share transfer or liquidation, to its offshore parent or affiliate, and the capital inflow from the offshore parent, and may also subject relevant PRC residents or entities to penalties under PRC foreign exchange administration regulations. On February 13, 2015, SAFE further promulgated the Circular on Further Simplifying and Improving the Administration of the Foreign Exchange Concerning Direct Investment, or SAFE Circular 13, which took effect on June 1, 2015. This SAFE Circular 13 has amended SAFE Circular 37 by requiring PRC residents or entities to register with qualified banks rather than SAFE or its local branch in connection with their establishment or control of an offshore entity established for the purpose of overseas investment or financing. On April 10, 2020, SAFE issued the Notice of the SAFE on Optimizing Foreign Exchange Administration to Support the Development of Foreign-related Business, or the SAFE Circular 8. SAFE Circular 8 provides that under the condition that the use of the funds is genuine and compliant with current administrative provisions on use of income relating to capital account, enterprises are allowed to use income under capital account such as capital funds, foreign debts and overseas listings for domestic payment, without submission to the bank prior to each transaction of materials evidencing the veracity of such payment.

 

As of December 31, 2023, to our knowledge, Yunwu Li, our chief executive officer and chairman of our board of directors and chairman of the board of directors and general manager of Shenzhen CDT, had not completed the change registration and was in the process of registration.

 

On March 30, 2015, the SAFE promulgated the Notice of the SAFE on Reforming the Administration of Foreign Exchange Settlement of Capital of Foreign-invested Enterprises, or Circular 19, which came into effect on June 1, 2015 and has been partially repealed. According to Circular 19, the foreign exchange capital of FIEs shall be subject to the Discretional Foreign Exchange Settlement. The Discretional Foreign Exchange Settlement refers to the foreign exchange capital in the capital account of a FIE for which the rights and interests of monetary contribution has been confirmed by the local foreign exchange bureau (or the book-entry registration of monetary contribution by the banks) can be settled at the banks based on the actual operational needs of the FIE. The proportion of Discretional Foreign Exchange Settlement of the foreign exchange capital of a FIE is temporarily determined to be 100%. The Renminbi converted from the foreign exchange capital will be kept in a designated account and if a FIE needs to make further payment from such account, it still needs to provide supporting documents and go through the review process with the banks.

 

SAFE issued the Circular on Reforming and Regulating Policies on the Control over Foreign Exchange Settlement of Capital Accounts, or Circular 16, on June 9, 2016, which became effective simultaneously. Pursuant to Circular 16, enterprises registered in the PRC may also convert their foreign debts from foreign currency to Renminbi on a discretionary basis. The Notice of the State Administration of Foreign Exchange on Further Deepening Reform to Promote Cross-border Trade and Investment Facilitation, or the Circular 28, was promulgated and became effective on December 4, 2023. The Circular 16 and the Circular 28 provide an integrated standard for conversion of foreign exchange under capital account items (including foreign currency capital and foreign debts) on a discretionary basis which applies to all enterprises registered in the PRC. Circular 16 reiterates the principle that Renminbi converted from foreign currency-denominated capital of a company may not be directly or indirectly used for purposes beyond its business scope or prohibited by PRC laws or regulations, while such converted Renminbi shall not be provided as loans to its non-affiliated entities.

 

78

 

 

Regulations on loans to and direct investment in the PRC entities by offshore holding companies

 

According to the Provisional Regulations on the Statistical Monitoring of Foreign Debt (Revised in 2020) promulgated by the State Council on November 29, 2020, which came into effect on the same date, and the Interim Provisions on the Management of Foreign Debts promulgated by SAFE, the NDRC and the MOF which became effective from March 1, 2003, and was amended on July 26, 2022 and took effect on September 1, 2022, loans by foreign companies to their subsidiaries in China, which accordingly are FIEs, are considered foreign debt, and such loans must be registered with the local branches of the SAFE. Under the provisions, the total amount of accumulated medium-term and long-term foreign debt and the balance of short-term debt borrowed by a FIE is limited to the difference between the total investment and the registered capital of the foreign-invested enterprise.

 

On January 12, 2017, the People's Bank of China promulgated the Circular of the People's Bank of China on Matters relating to the Macro-prudential Management of Comprehensive Cross-border Financing, or PBOC Circular 9, which took effect on the same date. The PBOC Circular 9 established a capital or net assets-based constraint mechanism for cross-border financing. Under such mechanism, a company may carry out cross-border financing in Renminbi or foreign currencies at their own discretion. The total cross-border financing of a company shall be calculated using a risk-weighted approach and shall not exceed an upper limit. The upper limit is calculated as capital or assets multiplied by a cross-border financing leverage ratio and multiplied by a macro-prudential regulation parameter. 

  

In addition, according to PBOC Circular 9, as of the date of the promulgation of PBOC Circular 9, a transition period of one year is set for foreign-invested enterprises and during such transition period, FIEs may apply either the current cross-border financing management mode, or the mode in this PBOC Circular 9 at its sole discretion. After the end of the transition period, the cross-border financing management mode for FIEs will be determined by the People's Bank of China and SAFE after assessment based on the overall implementation of this PBOC Circular 9.

 

According to applicable PRC regulations on FIEs, capital contributions from a foreign holding company to its PRC subsidiaries, which are considered FIEs, may only be made when approval by or registration with the MOFCOM or its local counterpart is obtained.

 

Regulations Relating to Foreign Investment

 

The Guidance Catalogue of Industries for Foreign Investment 

 

The Catalogue of Encouraged Industries for Foreign Investment (2022 Edition), or the ‘Encouraging Catalogue (2022 Edition), was jointly promulgated by the NDRC and the MOFCOM on October 26, 2022, which became effective on January 1, 2023. The Special Administrative Measures (Negative List) for the Access of Foreign Investment (2021 Edition), or the Negative List (2021 Edition), was jointly promulgated by the NDRC and the MOFCOM on December 27, 2021, which came into effect on January1, 2022. The Negative List (2021 Edition) and the Encouraging Catalogue (2022 Edition) contain specific provisions guiding market access of foreign capital, stipulating in detail the rules of entry according to the categories of encouraged industries, restricted industries and prohibited industries. Industries not listed in the Negative List (2021 Edition) are generally open to foreign investment unless specifically prohibited or restricted by other PRC laws and regulations. Foreign investment in the encouraged category is entitled to certain preferential treatment and incentives extended by the government, while foreign investment in the restricted category is permitted but subject to certain restrictions under the PRC laws. Foreign investment in the prohibited category is not allowed. According to the Negative List and the Encouragement Catalogue, we, through our subsidiaries, are a waste treatment company, and we are not operating in any restricted industries or prohibited industries. We are operating in an encouraged industry, and the industry is open to foreign investment.

  

The Foreign Investment Law

 

On March 15, 2019, the National People’s Congress approved the Foreign Investment Law, which took effect on January 1, 2020 and replaced three existing laws on foreign investments in China, namely, the PRC Equity Joint Venture Law, the PRC Cooperative Joint Venture Law and the Wholly Foreign-owned Enterprise Law, together with their implementation rules and ancillary regulations. The Foreign Investment Law embodies an expected PRC regulatory trend to rationalize its foreign investment regulatory regime in line with prevailing international practice and the legislative efforts to unify the corporate legal requirements for both foreign and domestic invested enterprises in China. The Foreign Investment Law establishes the basic framework for the access to, and the promotion, protection and administration of foreign investments in view of investment protection and fair competition.

 

According to the Foreign Investment Law, “foreign investment” refers to investment activities directly or indirectly conducted by one or more natural persons, business entities, or otherwise organizations of a foreign country (collectively referred to as “foreign investor”) within China, and the investment activities include the following situations: (i) a foreign investor, individually or collectively with other investors, establishes a foreign-invested enterprise within China; (ii) a foreign investor acquires stock shares, equity shares, shares in assets, or other like rights and interests of an enterprise within China; (iii) a foreign investor, individually or collectively with other investors, invests in a new project within China; and (iv) investments in other means as provided by laws, administrative regulations, or the State Council. 

 

According to the Foreign Investment Law, the State Council will publish or approve to publish the “negative list” for special administrative measures concerning foreign investment. The Foreign Investment Law grants national treatment to foreign-invested entities, or FIEs, except for those FIEs that operate in industries deemed to be either “restricted” or “prohibited” in the “negative list”. The Foreign Investment Law provides that FIEs operating in foreign restricted or prohibited industries will require market entry clearance and other approvals from relevant PRC governmental authorities. If a foreign investor is found to invest in any prohibited industry in the “negative list”, such foreign investor may be required to, among other aspects, cease its investment activities, dispose of its equity interests or assets within a prescribed time limit and have its income confiscated. If the investment activity of a foreign investor is in breach of any special administrative measure for restrictive access provided for in the “negative list”, the relevant competent department shall order the foreign investor to make corrections and take necessary measures to meet the requirements of the special administrative measure for restrictive access.

 

79

 

   

Besides, the PRC government established a foreign investment information reporting system, according to which foreign investors or foreign-invested enterprises shall submit investment information to the competent department for commerce concerned through the enterprise registration system and the enterprise credit information publicity system, and a security review system under which the security review shall be conducted for foreign investment affecting or likely affecting the state security.

 

Furthermore, the Foreign Investment Law provides that foreign invested enterprises established according to the existing laws regulating foreign investment may maintain their structure and corporate governance within five years after the implementing of the Foreign Investment Law.

 

In addition, the Foreign Investment Law also provides several protective rules and principles for foreign investors and their investments in the PRC, including, among others, that a foreign investor may freely transfer into or out of China, in Renminbi or a foreign currency, its contributions, profits, capital gains, income from disposition of assets, royalties of intellectual property rights, indemnity or compensation lawfully acquired, and income from liquidation, among others, within China; local governments shall abide by their commitments to the foreign investors; governments at all levels and their departments shall enact local normative documents concerning foreign investment in compliance with laws and regulations and shall not impair legitimate rights and interests, impose additional obligations onto FIEs, set market access restrictions and exit conditions, or intervene with the normal production and operation activities of FIEs; except for special circumstances, in which case statutory procedures shall be followed and fair and reasonable compensation shall be made in a timely manner, expropriation or requisition of the investment of foreign investors is prohibited; and mandatory technology transfer is prohibited. 

 

Measures for the Security Review of Foreign Investments

 

The Measures for the Security Review of Foreign Investment was promulgated in accordance with the Foreign Investment Law of the People's Republic of China, the National Security Law of the People's Republic of China and the relevant laws for the purposes of adapting to the needs of forming a new pattern of all-round opening up, effectively preventing and defusing national security risks while actively promoting foreign investment. The Measures for the Security Review of Foreign Investment, as deliberated and adopted at the 13th executive meeting of the NDRC on November 27, 2020, with the approval of the State Council, are hereby issued, and entered into force on January 18, 2021. Security review shall be conducted only for foreign investments that affect or may affect national security. In accordance with Article 4, foreign investors or the relevant parties in China shall proactively report any foreign investment within the following scope to the Office of the Working Mechanism before making the investment: (1) investment in the arms industry, an ancillary to the arms industry, or any other field related to national defense security and investment in an area surrounding a military installation or an arms industry facility; and (2) investment in important agricultural products, important energy and resources, critical equipment manufacturing, important infrastructure, important transportation services, important cultural products and services, important information technology and Internet products and services, important financial services, key technology, or any other important field related to national security, resulting in the foreign investor's acquisition of actual control of the enterprise invested in. Although we, as a foreign investment enterprise, are subject to the Measures for the Security Review of Foreign Investment, the business scope is not within the scopes of review in Article 4. Therefore, there is no need to proactively report to the Working Mechanism Office.

 

Company Law

 

Pursuant to the PRC Company Law, promulgated by the Standing Committee of the National People’s Congress on December, 29 1993, effective as of July 1, 1994, and as revised on December 25, 1999, August 28, 2004, October 27, 2005, December 28, 2013, October 26, 2018 and December 29, 2023, the establishment, operation and management of corporate entities in the PRC are governed by the PRC Company Law. The PRC Company Law defines two types of companies: limited liability companies and limited stock companies.

 

Our PRC operating subsidiary is a limited liability company. Unless otherwise stipulated in the related laws on foreign investment, foreign invested companies are also required to comply with the provisions of the PRC Company Law.

 

Laws and Regulations on the Protection of Consumer Rights and Interests

 

Business operators in the business of supplying and selling manufactured goods or services to consumers, shall comply with the Law of the PRC on the Protection of Consumer Rights and Interests, or the Consumer Rights Protection Law, promulgated by the SCNPC on October 31, 1993, and effective as of January 1, 1994, and last amended on October 25, 2013 and took effect on March 15, 2014.

 

According to the Consumer Rights Protection Law, business operators must ensure that the goods or services provided by them meet the requirements for safeguarding personal and property safety. For goods and services that may endanger personal and property safety, consumers should be provided with a true description and an explicit warning, as well as a description and indication of the proper way to use the goods or accept the services and the methods of preventing the occurrence of a hazard. If the goods or services provided by the business operators cause personal injuries to consumers or third parties, the business operators shall compensate the injured parties for their losses.

 

80

 

  

PRC Civil Code

 

All of our contracts are subject to the PRC Civil Code which was promulgated on May 28, 2020 and became effective on January 1, 2021. Under PRC Civil Code, a natural person, legal person or other legally established organization shall have full capacity of civil conduct while entering into a contract. Except as otherwise stipulated by law or agreed by the parties, the formation, validity, performance, modification, assignment, termination, and liability for breach of a contract are stipulated by PRC Civil Code. A contracting party who failed to perform or failed to fulfill its contractual obligation shall bear the responsibility of a continued duty to perform or to provide remedies and compensation as provided by PRC Civil Code.

 

Product Quality Law

 

Pursuant to Product Quality Law of the PRC, promulgated on September 1, 1993 and amended in 2000, 2009 and 2018 respectively, producing or selling products that do not meet the standards or requirements for safeguarding human health or that constitute unreasonable threats to the safety of human life or property is prohibited. Where a defective product causes physical injury to a person or damage to his/her property, the injured party may claim compensation against the manufacturer or the distributor of such product.

 

Where any person produces or sells products that do not comply with the relevant national or industrial standards for safeguarding human health or constitute unreasonable threats to the safety of human life or property, the relevant authority will order the specific manufacturer or distributor to suspend the production or sale of defective products, confiscate the products produced or for sale, and impose a fine in an amount of up to three times the value of the defective products. Where illegal earnings were made or were involved, the relevant earnings will be confiscated accordingly. If the breach of regulation is serious, the business license of the relevant manufacturer and distributor may be revoked. If the relevant activities constitute a crime, the offender may be prosecuted.

 

Standardization Law of the People’s Republic of China

 

Standardization Law of the People’s Republic of China was passed by the Fifth session of the Standing Committee of the Seventh National People's Congress on December 29, 1988, and revised on November 4, 2017 and took effect on January 1, 2018. This law is formulated for the purposes of developing socialist commodity economy, promoting scientific and technological advancement, improving the quality of products, adapting standardization work to the need for socialist modernization and external economic relationship development. This law applies to industrial products.

 

Regulations of the People’s Republic of China on Certification and Accreditation

 

Regulations of the People’s Republic of China on Certification and Accreditation became effective as of September 3, 2003, and was later revised on February 6, 2016 and November 29, 2020. This regulation is formulated for the purposes of standardizing certification and accreditation, improving the quality of products and services and management standard. This regulation applies to all certification agencies, certification services and accreditation services in the PRC.

 

81

 

  

MANAGEMENT

 

Directors and Executive Officers

 

The following table sets forth information regarding our directors and executive officers as of the date of this prospectus. Unless otherwise stated, the business address for our directors and executive officers is that of our principal executive offices located at C1, 4th Floor, Building 1, Financial Base, No. 8 Kefa Road, Nanshan District, Shenzhen, China 518057.

  

Name   Age   Position
Yunwu Li   64   Chief Executive Officer and Chairman of the Board of Directors
Tiefeng Wang   44   Chief Financial Officer
Zijiang Liu   47   Chief Technology Officer and Vice President
Jianfei Yu   41   Vice President
Yuntao Guan   52   Chief Scientist
Lijun Cui   51   Director
Yaohui Wang(1)(2)(3)   54   Independent Director
Dongming Zhang(1)(2)   57   Independent Director
Harry D. Schulman(1)(3)   72   Independent Director

 

(1) Member of audit committee.

(2) Member of compensation committee.

(3) Member of nomination and governance committee.

 

Yunwu Li has served as a member of our board of directors since November 2016, as chairman of our board of directors since January 2020, as our chief executive officer since September 2019, and as chairman of the board of directors and general manager of Shenzhen CDT Environmental Technology Co., Ltd., our subsidiary, since June 2015. From 1987 to 1996, Mr. Li served as general manager of Fujian Optical Instrument Co., Ltd., a company that specializes in manufacture of optical instruments, and has extensive management experience in the research and development, manufacture, and processing of optical instruments, communicational devices, and environmental protection equipment. From July 1999 to November 2003, Mr. Li served as chairman of the board of directors of Fujian Furi Electronics Co., Ltd. (Ticker: 600203), a company listed on the Shanghai Stock Exchange that specializes in manufacture and sales of electronic components. During his term of service, Mr. Li obtained extensive experience in general management, investments and operations. From March 2007 to May 2015, Mr. Li served as chairman of the board of directors and general manager of Beijing Xinyuan Shidai Real Estate Development Co., Ltd., a company that develops and manages large scale real estate projects in China. During such time, Mr. Li was also involved in the investment in, and served as a consultant to, environmental protection companies. From March 2013 to May 2015, Mr. Li served as a consultant to Shenzhen CDT Environmental Technology Co., Ltd. Mr. Li is also the director of CDT Environmental Technology Holdings Limited, one of our principal shareholders. Mr. Li received a MBA degree from The Open University of Hong Kong. We believe Mr. Li’s extensive experience qualifies him to serve on our board of directors.

 

Tiefeng Wang has served as our chief financial officer since November 2019. From January 2010 to July 2012, Mr. Wang served as an investment manager of Zhejiang Feida Environmental Science & Technology Co., Ltd. (Ticker: 600526), a company listed on the Shanghai Stock Exchange that specializes in emission control. From August 2012 to May 2015, Mr. Wang served as an audit manager of Zhejiang Weining Asset Appraisal Office. From May 2015 to November 2019, Mr. Wang served as a financial controller of Xingyuan Environment Technology Co., Ltd. (Ticker: 300266), a company listed on the Growth Enterprise Market of the Shenzhen Stock Exchange that specializes in comprehensive environmental services. Mr. Wang is a certified public accountant in China. Mr. Wang received a Bachelor’s Degree in Industry and Business Administration from Hebei University of Geosciences. 

 

Zijiang Liu has served as our chief technology officer and vice president since September 2019 and as chief technology officer and vice president of septic tank treatment of Shenzhen CDT Environmental Technology Co., Ltd. since November 2015. From April 2006 to November 2015, Mr. Liu served as Engineer of Volvo (China) Investment Co., Ltd., a company that specializes in manufacture of automobiles and engines, where Mr. Liu was responsible for the design and modification of equipment to meet market demand. Mr. Liu has profound theoretical knowledge and practical experience in mechanical structure design, quality analysis and solutions. Mr. Liu received a Bachelor’s Degree in Automotive Design from Xi'an Highway Communication University.

 

Jianfei Yu has served as our vice president since September 2019 and as the vice president of rural sewage treatment of Shenzhen CDT Environmental Technology Co., Ltd. since November 2017. Mr. Yu has over 10 years of experience serving in various roles at environmental protection companies. From January 2016 to June 2017, Mr. Yu served as general manager and chief engineer of Jinhua Shunhong Environmental Protection Technology Co., Ltd., an environmental protection company. From June 2007 to April 2015, Mr. Yu served multiple roles in four environmental protection companies, including as general manager and chief engineer of Jinhua Juchuan Environmental Protection Technology Co., Ltd., engineering manager of Zhejiang Liuyuan Environmental Technology Co., Ltd., project manager of Lvdi Environmental Technology Co, Ltd., and technological director of Tongkun Group Co., Ltd. Mr. Yu has extensive experience in project management and implementation, including early-stage negotiation, composition of project proposals, design of construction drawing, design of non-standard equipment, instruction of manufacture and installation of equipment, and testing and commissioning of equipment. Mr. Yu received a Bachelor’s Degree in Environmental Engineering from Sanxia University.

 

Yuntao Guan has served as our chief scientist since September 2019 and as a consultant to Shenzhen CDT Environmental Technology Co., Ltd. since January 2019. Mr. Guan has also served as professor, doctoral supervisor and director of the Institute of Environment of Shenzhen Graduate School of Tsinghua University since December 2010. Mr. Guan has not only accomplished breakthroughs in quick separation technology, but has also conducted research of other water treatment technologies, such as MBR. Mr. Guan is also the vice director of the National Environmental Protection Environmental Microorganisms Usage and Safety Control Key Lab and the director of Municipal Water Circulation and Water Environment Safety Assurance Engineering and Technology Research Center of Guangdong Province. Additionally, Mr. Guan is a part-time professor at The Queensland University of Technology in Australia and was a guest professor at Kyoto University in Japan. Mr. Guan focuses on the research of theory and technology of integrated governance and treatment of water environment, distributed wastewater treatment in rural and urban areas, non-point source pollution control, and soil recovery, and he has published over 200 academic papers on industry magazines and journals both in China and abroad. Mr. Guan was in charge of and/or participated in several water-related projects and research projects that were national, provincial and municipal level material water projects. Mr. Guan received a Ph.D. in Environmental Science and Engineering from the Department of Environment, Tsinghua University.

 

82

 

 

Lijun Cui has served as a member of our board of directors since January 2020 and as general manager of Shenzhen CDT Environmental Technology Co., Ltd. since November 2017. From August 2013 to October 2016, Mr. Cui served as general manager of Zhejiang Yong Er Jia Environmental and Technology Co., Ltd., a company that specializes in food waste treatment equipment. Mr. Cui received a Bachelor’s Degree in Business Administration from Jiangxi Normal University. We believe Mr. Cui’s extensive experience qualifies him to serve on our board of directors.

 

Yaohui Wang has served as a member of our board of directors since February 2020. Mr. Wang has served as the managing director and the regional director of North China of BOC International (China) Co., Ltd., a company that provides financial services, since May 2015, where he played an important role in the initial public offering of multiple well-known Chinese companies at the Stock Exchange of Hong Kong. From January 2014 to May 2015, he served as the chief risk officer of Galaxy Futures Co., Ltd., a company that provides commodity futures brokerage, financial futures brokerage, futures investment consulting, and other services. Mr. Wang has over 20 years of professional experience in finance and economics. He is also a professor at Jilin University of Finance and Economics. He has written five monographs, including “Guidance of Securities Brokerage Business” and “Analysis of Financial Statements of Listed Companies under the New Accounting Standards”, and over 100 academic papers and economic comments published in the People’s Daily, China Economic Weekly, China Securities Journal and other publications. He is a certified senior accountant in China, a certified tax agent in China and an International Certified Internal Auditor (CIA). Mr. Wang received a Bachelor’s Degree in Commercial Economy from Jilin University of Finance and Economics and a Master of Business Administration from Asia International Open University (Macau).We believe Mr. Wang’s extensive experience qualifies him to serve on our board of directors.

 

Dongming Zhang has served as a member of our board of directors of since March 2020. Mr. Zhang founded Beijing Jiu Zhang Bo Yi Information Technology Co., Ltd. in China in December 2013, a company dedicated to the research and application of financial technology, and application of such technologies to financial investments. Mr. Zhang founded IFDC, Inc. in the United States in August 2017, a global financial product design center that explores various investment opportunities and designs various financial investment products. Mr. Zhang led the team of IFDC, Inc. to complete the construction of an innovative asset dynamic management theory. This theory provides a comprehensive solution for asset management from the perspectives of theory, process, risk control and implementation. Mr. Zhang received a Bachelor’s Degree in Thermal Engineering from Tsinghua University and a Doctoral Degree in Management Science and Engineering from the University of Chinese Academy of Sciences. We believe Mr. Zhang’s extensive experience qualifies him to serve on our board of directors.

 

Harry D. Schulman, a U.S. citizen, has served as a member of our board of directors since March 2020. Mr. Schulman has served as the chief executive officer of HairClinical LLC, a consumer product company, since November 2016, a director nominee of Hezhong International (Holding) Limited, an online peer-to-peer lending company, from August 2018 to June 2020, and a director of Infobird Co., Ltd, a software-as-a-service provider of innovative AI-powered customer engagement solutions, since June 2020. From April 2018 to November 2018, he also served as a director of Q.E.P. Co., Inc., a worldwide manufacturer, marketer and distributor of a broad line of flooring tools and accessories for the home improvement market. Since January 2008, he has also served as President of HDS Consulting, LLC. From August 2008 to June 2010, he served as a director and chairman of the audit committee of Hancock Fabrics, Inc., a specialty retailer of crafts and fabrics. From February 2008 to July 2014, he served as the operating partner of Baird Capital Partners, a private equity and venture capital firm, during which he served on the board and advisory board of various companies Baird Capital Partners have invested in, including Backyard Leisure, a BCP Fund IV portfolio company, Amoena GmbH, New Vitality LLC and Eckler’s LLC. Prior to that, Mr. Schulman held various senior management roles in Applica Incorporated (NYSE: APN), a manufacturer and distributor of a broad range of household appliances, from January 1989 to January 2007, including vice president (1989-1993), chief financial officer (1989-1998), executive vice president (1994-1998), chief operating officer (1998-2004) and president and chief executive officer (2004-2007). Mr. Schulman received a Bachelor’s Degree in Business Administration-Accounting from the University of Dayton and a Master’s Degree in International Business from the University of Miami, Florida. We believe that Mr. Schulman’s extensive experience qualifies him to serve on our board of directors.

 

None of the events listed in Item 401(f) of Regulation S-K has occurred during the past ten years that is material to the evaluation of the ability or integrity of any of our directors or executive officers.

 

Employment Agreements, Director Agreements and Indemnification Agreements

 

We have entered into employment agreements with each of our executive officers, pursuant to which such individuals initially agreed to serve as our executive officers until August 31, 2020. Per the agreements, such terms have been automatically extended for successive twelve-month periods, most recently through August 31, 2024, and will continue to be automatically extended for successive twelve-month periods, unless the agreements are terminated in accordance with their terms. We may terminate the employment for cause at any time for certain acts, such as conviction or plea of guilty to a felony or any crime involving moral turpitude, negligent or dishonest acts to our detriment, or misconduct or a failure to perform agreed duties. We may also terminate the employment without cause at any time upon 60 days’ advance written notice. Each executive officer may resign at any time upon 60 days’ advance written notice.

 

Each executive officer has agreed to hold, both during and after the termination or expiration of his employment agreement, in strict confidence and not to use, except as required in the performance of his duties in connection with the employment or pursuant to applicable law, any of our confidential or proprietary information or the confidential or proprietary information of any third party received by us and for which we have confidential obligations. Each executive officer has also agreed to disclose in confidence to us all inventions, designs and trade secrets which he conceives, develops or reduces to practice during his employment with us and to assign all right, title and interest in them to us, and assist us in obtaining and enforcing patents, copyrights and other legal rights for these inventions, designs and trade secrets.

 

In addition, each executive officer has agreed to be bound by non-competition and non-solicitation restrictions during the term of the employment and for one year following the last date of employment. Specifically, each executive officer has agreed not to: (i) engage or assist others in engaging in any business or enterprise that is competitive with our business, (ii) solicit, divert or take away the business of our clients, customers or business partners, or (iii) solicit, induce or attempt to induce any employee or independent contractor to terminate his or her employment or engagement with us. The employment agreements also contain other customary terms and provisions.

 

We have also entered into indemnification agreements with each of our executive officers and directors. Under these agreements, we have agreed to indemnify our directors and executive officers against certain liabilities and expenses incurred by such persons in connection with claims made by reason of their being a director or officer of our company.

 

We have also entered into director agreements with each of our directors which agreements set forth the terms and provisions of their engagement. We have agreed to issue ordinary shares for a total value of $10,000 to Harry D. Schulman, an independent director, after the consummation of this offering in accordance with the terms of his director agreement, the form of which is filed as an exhibit to the registration statement of which this prospectus forms a part.

 

83

 

 

Board of Directors

 

Duties of Directors

 

Under Cayman Islands law, our board of directors has the powers necessary for managing, and for directing and supervising, our business affairs. The functions and powers of our board of directors include, among others:

 

  convening shareholders' annual and extraordinary general meetings and reporting its work to shareholders at such meetings;

 

  declaring dividends and distributions;

 

  appointing officers and determining the term of office of the officers;

 

  exercising the borrowing powers of our company and mortgaging the property of our company; and

 

  approving the transfer of shares in our company, including the registration of such shares in our share register.

  

Under Cayman Islands law, all of our directors owe fiduciary duties to our company, including a duty of loyalty, a duty to act honestly and a duty to act in what they consider in good faith to be in our best interests. Our directors must also exercise their powers only for a proper purpose. Our directors also have a duty to exercise the skill they actually possess and such care and diligence that a reasonably prudent person would exercise in comparable circumstances. In fulfilling their duty of care to us, our directors must ensure compliance with our memorandum and articles of association, as amended from time to time. Our company has the right to seek damages if a duty owed by any of our directors is breached. You should refer to “Description of Share Capital and Governing Documents — Comparison of Cayman Islands Corporate Law and U.S. Corporate Law” for additional information on the standard of corporate governance under Cayman Islands law.

 

Composition of our Board of Directors

 

Our board of directors currently consists of five directors. Our board of directors is composed of a majority of independent directors. Our board of directors has determined that each of Yaohui Wang, Dongming Zhang and Harry D. Schulman is an “independent director” as defined under the Nasdaq rules.

 

Family Relationships

 

There are no family relationships between our directors or executive officers.

 

Committees of our Board of Directors

 

Our board of directors has established an audit committee, a compensation committee and a nomination and governance committee, which have the responsibilities and authority necessary to comply with applicable Nasdaq and SEC rules. The audit committee is comprised of Yaohui Wang, Dongming Zhang and Harry D. Schulman. The compensation committee is comprised of Dongming Zhang and Yaohui Wang. The nomination and governance committee is comprised of Yaohui Wang and Harry D. Schulman.

 

Audit Committee

 

Yaohui Wang, Dongming Zhang and Harry D. Schulman serve as members of the audit committee. Yaohui Wang serves as the chair of the audit committee. The audit committee members satisfy the independence requirements of the Nasdaq rules and the independence standards of Rule 10A-3 under the Exchange Act. Our board of directors has determined that Yaohui Wang possesses accounting or related financial management experience that qualifies him as an “audit committee financial expert” as defined by the rules and regulations of the SEC and Nasdaq. The audit committee will oversee our accounting and financial reporting processes and the audits of our financial statements. The audit committee will be responsible for, among other things:

 

  appointing the independent auditors and pre-approving all auditing and non-auditing services permitted to be performed by the independent auditors;

  reviewing with the independent auditors any audit problems or difficulties and management's response;

  discussing the annual audited financial statements with management and the independent auditors;

  reviewing the adequacy and effectiveness of our accounting and internal control policies and procedures and any steps taken to monitor and control major financial risk exposures;

reviewing and approving all proposed related party transactions;

  meeting separately and periodically with management and the independent auditors; and

  monitoring compliance with our code of business conduct and ethics, including reviewing the adequacy and effectiveness of our procedures to ensure proper compliance.

 

84

 

 

Compensation Committee

 

Dongming Zhang and Yaohui Wang serve as members of the compensation committee. Dongming Zhang serves as the chair of the compensation committee. The compensation committee members satisfy the independence requirements of the Nasdaq rules and the independence standards of Rule 10A-3 under the Exchange Act. The compensation committee will be responsible for overseeing and making recommendations to our board of our directors regarding the salaries and other compensation of our executive officers and general employees and providing assistance and recommendations with respect to our compensation policies and practices. 

 

Nomination and Governance Committee

 

Yaohui Wang and Harry D. Schulman serve as members of the nomination and governance committee. Yaohui Wang serves as the chair of the nomination and governance committee. The nomination and governance committee members satisfy the independence requirements of the Nasdaq rules and the independence standards of Rule 10A-3 under the Exchange Act. The nomination and governance committee will be responsible for identifying and proposing new potential director nominees to the board of directors for consideration and for reviewing our corporate governance policies.

 

The composition of these committees meets the criteria for independence under, and the functioning of these committees will comply with the applicable requirements of, the Nasdaq and SEC rules and regulations. We intend to comply with future requirements as they become applicable to us.

 

Code of Business Conduct and Ethics

 

In connection with this offering, we have adopted a code of business conduct and ethics, which is applicable to all of our directors, executive officers and employees and is publicly available.

 

Foreign Private Issuer Exemption

 

We are a “foreign private issuer,” as defined by the SEC. As a result, in accordance with the rules and regulations of Nasdaq, we may choose to comply with home country governance requirements and certain exemptions thereunder rather than complying with Nasdaq corporate governance standards. We may choose to take advantage of the following exemptions afforded to foreign private issuers:

 

Exemption from filing quarterly reports on Form 10-Q, from filing proxy solicitation materials on Schedule 14A or 14C in connection with annual or special meetings of shareholders, from providing current reports on Form 8-K disclosing significant events within four days of their occurrence, and from the disclosure requirements of Regulation FD.

 

Exemption from Section 16 rules regarding sales of ordinary shares by insiders, which will provide less data in this regard than shareholders of U.S. companies that are subject to the Exchange Act.

 

Exemption from the Nasdaq rules applicable to U.S. domestic issuers requiring disclosure within four business days of any determination to grant a waiver of the code of business conduct and ethics to directors and officers. Although we will require board approval of any such waiver, we may choose not to disclose the waiver in the manner set forth in the Nasdaq rules, as permitted by the foreign private issuer exemption.

 

Exemption from the requirement that our board of directors have a compensation committee that is composed entirely of independent directors with a written charter addressing the committee's purpose and responsibilities.

 

Exemption from the requirements that director nominees are selected, or recommended for selection by our board of directors, either by (1) independent directors constituting a majority of our board of directors’ independent directors in a vote in which only independent directors participate, or (2) a committee comprised solely of independent directors, and that a formal written charter or board resolution, as applicable, addressing the nominations process is adopted.

 

Furthermore, Nasdaq Rule 5615(a)(3) provides that a foreign private issuer, such as us, may rely on our home country corporate governance practices in lieu of certain of the rules in the Nasdaq Rule 5600 Series and Rule 5250(d), provided that we nevertheless comply with Nasdaq's Notification of Noncompliance requirement (Rule 5625), the Voting Rights requirement (Rule 5640) and that we have an audit committee that satisfies Rule 5605(c)(3), consisting of committee members that meet the independence requirements of Rule 5605(c)(2)(A)(ii). If we rely on our home country corporate governance practices in lieu of certain of the rules of Nasdaq, our shareholders may not have the same protections afforded to shareholders of companies that are subject to all of the corporate governance requirements of Nasdaq. If we choose to do so, we may utilize these exemptions for as long as we continue to qualify as a foreign private issuer.

 

Although we are permitted to follow certain corporate governance rules that conform to Cayman Island requirements in lieu of many of the Nasdaq corporate governance rules, we intend to comply with the Nasdaq corporate governance rules applicable to foreign private issuers.

 

85

 

 

Other Corporate Governance Matters

 

The Sarbanes-Oxley Act of 2002, as well as related rules subsequently implemented by the SEC, requires foreign private issuers, including us, to comply with various corporate governance practices. In addition, Nasdaq rules provide that foreign private issuers may follow home country practices in lieu of the Nasdaq corporate governance standards, subject to certain exceptions and except to the extent that such exemptions would be contrary to U.S. federal securities laws.

 

Because we are a foreign private issuer, our members of our board of directors, executive board members and senior management are not subject to short-swing profit and insider trading reporting obligations under section 16 of the Exchange Act. They will, however, be subject to the obligations to report changes in share ownership under section 13 of the Exchange Act and related SEC rules.

 

Compensation of Directors and Executive Officers

 

For the year ended December 31, 2023, we paid an aggregate of RMB 725,645 ($100,072) in cash to our directors and executive officers.

 

We have not set aside or accrued any amount to provide pension, retirement or other similar benefits to our directors and executive officers. Our subsidiaries are required by law to make contributions equal to certain percentages of each employee’s salary for his or her pension insurance, medical insurance, unemployment insurance and other statutory benefits and a housing provident fund.

 

Equity Awards

 

We have not granted any equity awards to our directors or executive officers during the fiscal year ended December 31, 2023.

 

Incentive Compensation

 

We do not maintain any cash incentive or bonus programs and did not maintain any such programs during the fiscal year ended December 31, 2023.

 

Director and Executive Officer Compensation Table

 

The following table sets forth information regarding the compensation paid to our directors and our executive officers during the year ended December 31, 2023.

  

Name   Fees Earned in Cash    All Other
Compensation
   Total
Yunwu Li    RMB 324,495
($44,750)
  -   RMB 324,495
($44,750)
Tiefeng Wang   RMB 98,100
($13,529)
  -   RMB 98,100
($13,529)
Zijiang Liu   RMB 36,000
($4,965)
  -   RMB 36,000
($4,965)
Jianfei Yu   RMB 36,000
($4,965)
  -   RMB 36,000
($4,965)
Lijun Cui   RMB 231,050
($31,863)
  -   RMB 231,050
($31,863)
Dongming Zhang   -   -   -
Harry D. Schulman   -   -   -
Yuntao Guan   -   -   -
Yaohui Wang   -   -   -

 

Employees and Human Capital

 

As of December 31, 2023, we had 114 employees, of whom 107 were full-time employees, 7 were part-time employees and all were located in China.

 

Our success depends on our ability to attract, motivate, train and retain qualified personnel. We believe we offer our employees competitive compensation packages and an environment that encourages self-development and, as a result, have generally been able to attract and retain qualified personnel and maintain a stable core management team. None of our employees are represented by a labor union or covered by a collective bargaining agreement. We have never experienced any employment related work stoppages, and we consider our relations with our employees to be good.

 

Indemnification

 

In connection with this offering, we have entered into indemnification agreements with each of our directors and executive officers. Under these agreements, we have agreed to indemnify our directors and executive officers against certain liabilities and expenses incurred by such persons in connection with claims made by reason of their being a director or officer of our company.

  

86

 

 

RELATED PARTY TRANSACTIONS

 

During the last three years and up to the date of this prospectus, we have engaged in the following transactions with our directors, officers, holders of more than 5% of our outstanding shares and other affiliates, which we refer to as our related parties:

 

As of December 31, 2023, June 30, 2023, December 31, 2022, and 2021, certain related parties owed us the following amounts as a result of loans receivable. As of the date of this prospectus, these amounts have been repaid in full. These amounts are included in the consolidated financial statements as other receivables - related parties. See Note 10 of the notes to the consolidated financial statements included elsewhere in this prospectus.

 

Name of Related Party   Relationship   Nature   December 31,
2023 (Unaudited)
  June 30, 2023 (Unaudited)   December 31,
2022
  December 31,
2021
                         
*Fujian Province Qicheng Investment Management Co., Ltd   Fujian Hongfa Industrial Group Co., Ltd holds 51% of the total shares and Mr. Weihao Chen who is the general manager and director of FJLSY is also the legal representative and is also the legal representative, executive director and manager of Fujian Hongfa Industrial Group Co., Ltd.   Advances, due on demand   $     $     $     $ 274,480  
*Fujian Tantan Technology Co, Ltd (“FJ Tantan”)*   FJ Tantan’s legal representative is the secretary of Fujian Hongfa Group Ltd (“Fujian Hongfa”). Fujian Hongfa is the shareholder of FJ LSY.   Interest free, due December 14, 2023           109,053       251,271        
*Fuzhou Jinhui Environmental service Co, Ltd   Fujian Jinshun environmental Co, Ltd (“Jinshun”) is the major shareholder of FZ Jinhui. Weihao Chen is the Major shareholder of Jinshun, and the legal representative of FZ LSY.   Interest free, due on August 31, 2023           5,569       38,405        
*Zhaozhao Xu   General Manager of Chengde CDT Environmental Technology Co., Ltd.   Employee advance           1,399              
Total           $     $ 116,021     $ 289,676     $ 274,480  

 


*As of the date of this prospectus, these receivables have been repaid by the related parties.

 

87

 

 

As of December 31, 2023, June 30, 2023, December 31, 2022, and 2021, we owed certain related parties the following amounts as a result of advance payments.

 

Name of Related Party   Relationship   Nature   December 31, 2023 (Unaudited)   June 30, 2023 (Unaudited)   December 31, 2022   December 31,
2021
                         
Changfu Ma   Legal representative and general manager of Beijing CDT Environmental Technology Co., Ltd.   Advance payment for operational expenses of the Company pending for reimbursement   $     $     $     $ 7,924  
Wanqiang Lin   Director of
Ultra HK
  Advance payment for operational expenses of the Company pending for reimbursement     269,928       269,928       271,132       271,198  
Zhenhong Zhang   Director and manager of Xiamen YDT Environmental Technology Co., Ltd.(1)   Advance payment for operational expenses of the Company pending for reimbursement                       10,707  
Total           $ 269,928     $ 269,928     $ 271,132     $ 289,829  

 

(1) In January 2022, the Company disposed of its entire 51% ownership in Xiamen YDT Environmental Technology Co., Ltd. and transferred its ownership to a third party for consideration of approximately $5,000. The disposal of Xiamen YDT Environmental Technology Co., Ltd. did not have a material impact on the Company’s consolidated financial statements.

   

These amounts are included in the consolidated financial statements as other payables – related parties. See Note 10 of the notes to the consolidated financial statements included elsewhere in this prospectus.

 

As of December 31, 2023, June 30, 2023, December 31, 2022, and 2021, we owed certain related parties the following amounts as a result of loans payable.

 

Name of Related Party   Relationship   Nature   December 31, 2023 (Unaudited)   June 30, 2023 (Unaudited)   December 31, 2022   December 31, 2021
                         
Shenzhen Li Yaxin Industrial Co., Ltd   Yunwu Li, our chief executive officer and chairman of our board of directors and chairman of the board of directors and general manager of Shenzhen CDT Environmental Technology Co., Ltd., is the sole shareholder of this entity   Interest-free loans due on demand   $ 41,518     $ 48,438     $ 50,254     $ 62,738  
Guangxi Qianwang IOT Technology Co., Ltd.   49% shareholder of Guangxi CWT Environmental Technology Co., Ltd.   14.4% annual interest,
due on
July 19, 2021 (extended to July 19, 2022, and repaid in June 2022)
                      45,335  
Beijing Minhongyun Energy Supply Co. Ltd.   Yunwu Li, our chief executive officer and chairman of our board of directors and chairman of the board of directors and general manager of Shenzhen CDT Environmental Technology Co., Ltd., is the director of this entity   Interest-free loans due on demand     1,043,483       1,043,483       1,082,617       6,273  
Jianzhong Zhao   Legal representative, general manager and director of Hohhot CDT Environmental Technology Co., Ltd.   Interest-free loans, due on
December 31, 2020 (extended to December 31, 2024)
    293,835       308,920       286,749       201,828  
Jianshan Ma   Director and general manager of Chengde CDT Environmental Technology Co., Ltd.   Interest-free loans, due on
December 31, 2020 (extended to December 31, 2024)
    101,409       121,730       86,516       87,901  
Yunwu Li   Our chief executive officer and chairman of our board of directors and chairman of the board of directors and general manager of Shenzhen CDT Environmental Technology Co., Ltd.   Interest-free loans, due on
demand
    3,350,665       2,622,197       2,260,144       128,206  
Yan Wang   Relative of Ying Wang, supervisor of Huzhou CDT Environmental Technology Co., Ltd.   Interest-free loans, due on
December 31, 2020 (extended to December 31, 2024)
    156,883       106,369       57,161       10,211  
Zhaozhao Xu   General manager of Shenzhen CDT Environmental Technology Co., Ltd.   Interest-free loan
due on demand
                12,923        
Xingsheng Pan   General manager of Shenzhen CDT Environmental Technology Co., Ltd   Interest-free loans, due on demand                 374,369        
Yunfang Li   Sibling of Yunwu Li, the Company’s Chief Executive Officer and Chairman of the Board of Directors and Chairman of the Board of Directors and General Manager of Shenzhen CDT Environmental Technology Co., Ltd is the director of this entity   Interest-free loans, due on demand                 14,358        
Guangqing Shi   General manager of Tianjin CDT Environmental Technology Co., Ltd   Interest-free loans, due on demand                 6,277        
Zhaozhao Xu   General Manager of Chengde CDT Environmental Technology Co., Ltd.   Interest-free loans, due on demand     31,830                    
Total           $ 5,019,623     $ 4,251,137     $ 4,231,368     $ 542,492  

 

88

 

 

Interest expense pertaining to the above loans for the six months ended June 30, 2023 and for the years ended December 31, 2023, 2022, and 2021 amounted to $0, $0, $0, and $3,348, respectively.

  

These amounts are included in the consolidated financial statements as short-term loans - related parties. See Note 10 of the notes to the consolidated financial statements included elsewhere in this prospectus.

 

Yunwu Li, our chief executive officer and chairman of our board of directors and chairman of the board of directors and general manager of Shenzhen CDT Environmental Technology Co., Ltd., Chun'E Zhao, legal representative, general manager and director of Guangxi CWT Environmental Technology Co., Ltd., our subsidiary, Weihao Chen, legal representative, general manager and director of Fuzhou LSY Environmental Technology Co., Ltd., our subsidiary, and Yunhui Xu, legal representative of Taiyuan CDT Environmental Technology Co., Ltd., our subsidiary, were, and/or are, guarantors of certain of our short-term and long-term loans. See “Management’s Discussion and Analysis of Financial Condition and Results of Operations” and Note 11 of the notes to the consolidated financial statements included elsewhere in this prospectus.

  

Policies and Procedures for Related Party Transactions

 

Our board of directors has created an audit committee in connection with this offering which will be tasked with review and approval of all related party transactions.

 

Employment Agreements, Director Agreements and Indemnification Agreements

 

We have entered into employment agreements with each of our executive officers pursuant to which such individuals have agreed to serve as our executive officers.

 

We have also entered into indemnification agreements with each of our executive officers and directors. Under these agreements, we have agreed to indemnify our directors and executive officers against certain liabilities and expenses incurred by such persons in connection with claims made by reason of their being a director or officer of our company.

 

We have also entered into director agreements with each of our directors which agreements set forth the terms and provisions of their engagement. We have agreed to issue ordinary shares for a total value of $10,000 to Harry D. Schulman, an independent director, after the consummation of this offering in accordance with the terms of his director agreement, the form of which is filed as an exhibit to the registration statement of which this prospectus forms a part.

 

See “Management—Employment Agreements, Director Agreements and Indemnification Agreements” for additional information. 

 

89

 

 

PRINCIPAL SHAREHOLDERS

 

The following table sets forth information with respect to the beneficial ownership of our ordinary shares as of the date of this prospectus for:

 

  each beneficial owner of 5% or more of our outstanding ordinary shares;
  each of our directors and executive officers; and
  all of our directors and executive officers as a group.

 

Beneficial ownership is determined in accordance with the rules of the SEC. These rules generally attribute beneficial ownership of securities to persons who possess sole or shared voting power or investment power with respect to those securities and include ordinary shares issuable upon the exercise of options that are immediately exercisable or exercisable within 60 days of the date of this prospectus. Percentage ownership calculations prior to this offering are based on 9,200,000 ordinary shares, par value $0.0025 per share, outstanding as of the date of this prospectus. Percentage ownership calculations after this offering are based on 10,700,000 ordinary shares, par value $0.0025 per share, outstanding after this offering.

 

Except as otherwise indicated, all of the shares reflected in the table are ordinary shares and all persons listed below have sole voting and investment power with respect to the shares beneficially owned by them, subject to applicable community property laws. Fractional shares are rounded to the nearest whole share herein. The information is not necessarily indicative of beneficial ownership for any other purpose.

 

Except as otherwise indicated in the table below, addresses of our directors, executive officers and named beneficial owners are in care of CDT Environmental Technology Investment Holdings Limited, C1, 4th Floor, Building 1, Financial Base, No. 8 Kefa Road, Nanshan District, Shenzhen, China 518057.

 

   Shares Beneficially
Owned
Prior to this Offering
  Shares Beneficially
Owned
After this Offering
Name of Beneficial Owners  Number of Shares  %  Number of Shares  %
5% or Greater Shareholders:            
CDT Environmental Technology Holdings Limited (1)   4,574,562    49.72%   4,574,562    42.75%
Venture Million Limited (2)   1,030,832    11.20%   1,030,832    9.63%
Luo Jia Holdings Limited (3)   745,200    8.10%   745,200    6.96%
Wisdom Latch Limited (4)   534,511    5.81%   534,511    5.00%
Juncheng International Corporation (5)   521,640    5.67%   521,640    4.88%
Directors and Executive Officers:                    
Yunwu Li (6)   4,574,562    49.72%   4,574,562    42.75%
Tiefeng Wang                
Zijiang Liu                
Jianfei Yu                
Yuntao Guan                
Lijun Cui                
Yaohui Wang                
Dongming Zhang                
Harry D. Schulman                
All current directors and executive officers as a group (9 persons)   4,574,562    49.72%   4,574,562    42.75%

 

  

*Less than 1%  

 

(1)The registered address of CDT Environmental Technology Holdings Limited, a Cayman Islands company, is Cricket Square, Hutchins Drive, P.O. Box 2681, Grand Cayman KY1-1111, Cayman Islands. Mr. Li, our chief executive officer and chairman of our board of directors and chairman of the board of directors and general manager of Shenzhen CDT Environmental Technology Co., Ltd., is the sole director of CDT Environmental Technology Holdings Limited and may be deemed to hold voting and dispositive power over the ordinary shares held by CDT Environmental Technology Holdings Limited.

 

(2)The registered address of Venture Million Limited, a British Virgin Islands company, is OMC Chambers, Wickhams Cay 1, Road Town, Tortola, British Virgin Islands. Wan Qaing Lin is the sole director and shareholder of Venture Million Limited and may be deemed to hold voting and dispositive power over the ordinary shares held by Venture Million Limited.

 

(3)The registered address of Luojia Holdings Limited, a British Virgin Islands company, is Craigmuir Chambers, Road Town, Tortola VG 1110, British Virgin Islands. Zuoning Chen is the sole director of Luojia Holdings Limited and may be deemed to hold voting and dispositive power over the ordinary shares held by Luojia Holdings Limited.

 

(4)The registered address of Wisdom Latch Limited, a British Virgin Islands company, is Vistra Corporate Services Center, Wickhams Cay II, Road Town, Tortola VG 1110, British Virgin Islands. Tung Fai is the sole director and shareholder of Wisdom Latch Limited and may be deemed to hold voting and dispositive power over the ordinary shares held by Wisdom Latch Limited.

 

(5)

The registered address of Juncheng International Corporation, a British Virgin Islands company, is OMC Chambers, Wickhams Cay 1, Road Town, Tortola, British Virgin Islands. Ruiping Lin is the sole director and shareholder of Juncheng International Corporation and may be deemed to hold voting and dispositive power over the ordinary shares held by Juncheng International Corporation.

 

(6)Represents 4,574,562 ordinary shares held directly by CDT Environmental Technology Holdings Limited. Mr. Li, our chief executive officer and chairman of our board of directors and chairman of the board of directors and general manager of Shenzhen CDT Environmental Technology Co., Ltd., is the sole director of CDT Environmental Technology Holdings Limited. See footnote (1) above.

  

90

 

 

DESCRIPTION OF SHARE CAPITAL AND GOVERNING DOCUMENTS

 

General

 

We are an exempted company incorporated with limited liability under the laws of the Cayman Islands and our affairs are governed by:

 

  Memorandum and Articles of Association;

 

  The Companies Act (2023 Revision) (as amended) of the Caymans Islands, which is referred to as the Companies Act below; and

 

  Common law of the Cayman Islands.

 

As of the date of this prospectus, our authorized share capital is 20,000,000 ordinary shares with a par value of $0.0025 per ordinary share. As of the date of this prospectus, there are 9,200,000 ordinary shares issued and outstanding.

 

Our post-offering memorandum and articles of association will become effective and replace our current memorandum and articles of association in its entirety immediately prior to the completion of this offering. We have included summaries of certain material provisions of our post-offering memorandum and articles of association and the Companies Act insofar as they relate to the material terms of our share capital. The summaries do not purport to be complete and are qualified in their entirety by reference to our post-offering memorandum and articles of association, which is filed as an exhibit to the registration statement of which this prospectus forms a part.

 

Issuance of Shares and Changes to Capital

 

Our board of directors has general and unconditional authority to allot, grant options over, offer or otherwise deal with or dispose of any unissued shares in our capital without the approval of our shareholders (whether forming part of the original or any increased share capital), either at a premium or at par, with or without preferred, deferred or other special rights or restrictions, whether in regard to dividend, voting, return of capital or otherwise and to such persons, on such terms and conditions, and at such times as the directors may decide, but so that no share shall be issued at a discount, except in accordance with the provisions of the Companies Act. We will not issue bearer shares.

 

We may, subject to the provisions of the Companies Act, our post-offering memorandum and articles of association, the SEC and Nasdaq, from time to time by shareholders resolution passed by a simple majority of the voting rights entitled to vote at a general meeting: increase our capital by such sum, to be divided into shares of such amounts, as the relevant resolution shall prescribe; consolidate and divide all or any of our share capital into shares of larger amount than our existing shares; convert all or any of our paid up shares into stock and reconvert that stock into paid up shares of any denomination; sub-divide our existing shares, or any of them, into shares of smaller amounts than is fixed pursuant to our post-offering memorandum and articles of association; and cancel any shares which at the date of the passing of the resolution have not been taken or agreed to be taken by any person, and diminish the amount of our share capital by the amount of the shares so cancelled.

 

We may also, subject to the provisions of the Companies Act, our post-offering memorandum and articles of association, the SEC and Nasdaq: issue shares on terms that they are to be redeemed or are liable to be redeemed; purchase our own shares (including any redeemable shares); and make a payment in respect of the redemption or purchase of our own shares in any manner authorized by the Companies Act, including out of our capital.

 

Dividends

 

Subject to the Companies Act, our shareholders may, by resolution passed by a simple majority of the voting rights entitled to vote at the general meeting, declare dividends (including interim dividends) to be paid to our shareholders but no dividend shall be declared in excess of the amount recommended by our board of directors. Dividends may be declared and paid out of funds lawfully available to us. Except as otherwise provided by the rights attached to shares, all dividends shall be declared and paid according to the amounts paid up on the shares on which the dividend is paid. All dividends shall be paid in proportion to the number of ordinary shares a shareholder holds during any portion or portions of the period in respect of which the dividend is paid; but, if any share is issued on terms providing that it shall rank for dividend as from a particular date, that share shall rank for dividend accordingly. Our board of directors may also declare and pay dividends out of the share premium account or any other fund or account which can be authorized for this purpose in accordance with the Companies Act.

 

91

 

 

In addition, our board of directors may resolve to capitalize any undivided profits not required for paying any preferential dividend (whether or not they are available for distribution) or any sum standing to the credit of our share premium account or capital redemption reserve; appropriate the sum resolved to be capitalized to the shareholders who would have been entitled to it if it were distributed by way of dividend and in the same proportions and apply such sum on their behalf either in or towards paying up the amounts, if any, for the time being unpaid on any shares held by them respectively, or in paying up in full unissued shares or debentures of a nominal amount equal to such sum, and allot the shares or debentures credited as fully paid to those shareholders, or as they may direct, in those proportions, or partly in one way and partly in the other; resolve that any shares so allotted to any shareholder in respect of a holding by him/her of any partly-paid shares rank for dividend, so long as such shares remain partly paid, only to the extent that such partly paid shares rank for dividend; make such provision by the issue of fractional certificates or by payment in cash or otherwise as they determine in the case of shares or debentures becoming distributable in fractions; and authorize any person to enter on behalf of all our shareholders concerned in an agreement with us providing for the allotment of them respectively, credited as fully paid, of any shares or debentures to which they may be entitled upon such capitalization, any agreement made under such authority being binding on all such shareholders.

 

Voting and Meetings

 

As a condition of admission to a shareholders’ meeting, a shareholder must be duly registered as our shareholder at the applicable record date for that meeting and all calls or installments then payable by such shareholder to us in respect of our ordinary shares must have been paid. Subject to any special rights or restrictions as to voting then attached to any shares, at any general meeting every shareholder who is present in person or by proxy (or, in the case of a shareholder being a corporation, by its duly authorized representative not being himself or herself a shareholder entitled to vote) shall have one vote per share.

 

As a Cayman Islands exempted company, we are not obliged by the Companies Act to call annual general meetings; however, our post-offering memorandum and articles of association provide that in each year, other than the year in which our post-offering memorandum and articles of association was adopted, we will hold an annual general meeting of shareholders at a time determined by our board of directors, provided that if we are not required to hold an annual general meeting by Cayman Islands law or Nasdaq rules, we may choose not to do so. Also, we may, but are not required to (unless required by Cayman Islands law), in each year hold any other extraordinary general meeting.

 

The Companies Act provides shareholders with only limited rights to requisition a general meeting, and does not provide shareholders with any right to put any proposal before a general meeting. However, these rights may be provided in a company’s articles of association. Our post-offering memorandum and articles of association provide that upon the requisition of shareholders representing not less than two-thirds of the voting rights entitled to vote at general meetings, our board will convene an extraordinary general meeting and put the resolutions so requisitioned to a vote at such meeting. However, shareholders may propose only ordinary resolutions to be put to a vote at such meeting and shall have no right to propose resolutions with respect to the election, appointment or removal of directors or with respect to the size of the board. Our post-offering memorandum and articles of association provide no other right to put any proposals before annual general meetings or extraordinary general meetings. Subject to regulatory requirements, our annual general meeting and any extraordinary general meetings must be called by not less than ten (10) clear days’ notice prior to the relevant shareholders meeting and convened by a notice discussed below. Alternatively, upon the prior consent of all holders entitled to attend and vote (with regards to an annual general meeting), and the holders of 95% in par value of the shares entitled to attend and vote (with regard to an extraordinary general meeting), that meeting may be convened by a shorter notice and in a manner deemed appropriate by those holders.

 

We will give notice of each general meeting of shareholders by publication on our website and in any other manner that we may be required to follow in order to comply with Cayman Islands law, Nasdaq and SEC requirements. The holders of registered shares may be convened for a shareholders’ meeting by means of letters sent to the addresses of those shareholders as registered in our shareholders’ register, or, subject to certain statutory requirements, by electronic means. We will observe the statutory minimum convening notice period for a general meeting of shareholders.

 

92

 

 

A quorum for a general meeting consists of any one or more persons holding or representing by proxy not less than one-third (or 33 1/3%) of our total issued voting shares entitled to vote upon the business to be transacted.

 

A resolution put to the vote of the meeting shall be decided on a poll. An ordinary resolution to be passed by the shareholders requires the affirmative vote of a simple majority of the votes cast by, or on behalf of, the shareholders entitled to vote present in person or by proxy and voting at the meeting. A special resolution requires the affirmative vote of no less than two-thirds of the votes cast by the shareholders entitled to vote who are present in person or by proxy at a general meeting (except for certain matters described below which require an affirmative vote of two-thirds). Both ordinary resolutions and special resolutions may also be passed by a unanimous written resolution signed by all the shareholders of our company, as permitted by the Companies Act and our post-offering memorandum and articles of association.

 

Our post-offering memorandum and articles of association provide that the affirmative vote of no less than two-thirds of votes cast by the shareholders entitled to vote who are present in person or by proxy at a general meeting shall be required to approve any amendments to any provisions of our post-offering memorandum and articles of association that relate to or have an impact upon the procedures regarding the election, appointment, or removal of directors and the size of the board.

 

Transfers of Shares

 

Subject to any applicable restrictions set forth in our post-offering memorandum and articles of association, any of our shareholders may transfer all or a portion of their ordinary shares by an instrument of transfer in the usual or common form or in the form prescribed by Nasdaq or in any other form which our board of directors may approve. Our board of directors may, in its absolute discretion, refuse to register a transfer of any share that is not a fully paid up share to a person of whom it does not approve, or any share issued under any share incentive scheme for employees upon which a restriction on transfer imposed thereby still subsists, and it may also, without prejudice to the foregoing generality, refuse to register a transfer of any share to more than four joint holders or a transfer of any share that is not a fully paid up share on which we have a lien. Our board of directors may also decline to register any transfer of any registered share unless: a fee of such maximum sum as Nasdaq may determine to be payable or such lesser sum as the board of directors may from time to time require is paid to us in respect thereof; the instrument of transfer is in respect of only one class of shares; the ordinary shares transferred are fully paid and free of any lien; the instrument of transfer is lodged at the registered office or such other place (i.e., our transfer agent) at which the register of shareholders is kept, accompanied by any relevant share certificate(s) and/or such other evidence as the board of directors may reasonably require to show the right of the transferor to make the transfer; and if applicable, the instrument of transfer is duly and properly stamped.

 

If our board of directors refuse to register a transfer, they are required, within one month after the date on which the instrument of transfer was lodged, to send to each of the transferor and the transferee notice of such refusal.

 

Liquidation

 

Subject to any special rights, privileges or restrictions as to the distribution of available surplus assets on liquidation applicable to any class or classes of shares (1) if we are wound up and the assets available for distribution among our shareholders are more than sufficient to repay the whole of the capital paid up at the commencement of the winding up, the excess shall be distributed pari passu among our shareholders in proportion to the amount paid up at the commencement of the winding up on the shares held by them, respectively, and (2) if we are wound up and the assets available for distribution among our shareholders as such are insufficient to repay the whole of the paid-up capital, those assets shall be distributed so that, as nearly as may be, the losses shall be borne by our shareholders in proportion to the capital paid up, or which ought to have been paid up, at the commencement of the winding up on the shares held by them, respectively.

 

93

 

 

If we are wound up, the liquidator may with the sanction of a special resolution and any other sanction required by the Companies Act, divide among our shareholders in specie the whole or any part of our assets and may, for such purpose, value any assets and determine how such division shall be carried out as between the shareholders or different classes of shareholders. The liquidator may also, with the sanction of a special resolution, vest any part of these assets in trustees upon such trusts for the benefit of our shareholders as the liquidator shall think fit, but so that no shareholder will be compelled to accept any assets, shares or other securities upon which there is a liability.

 

Anti-Takeover Provisions

 

Some provisions of our post-offering memorandum and articles of association may discourage, delay or prevent a change of control of our company or management that shareholders may consider favorable, including provisions that authorize our board of directors to issue preferred shares in one or more series and to designate the price, rights, preferences, privileges and restrictions of such preferred shares without any further vote or action by our shareholders.

 

Inspection of Books and Records

 

Holders of ordinary shares have no general right under Cayman Islands law to inspect or obtain copies of our list of shareholders or our corporate records (other than the memorandum and articles of association). Our directors have discretion under our post-offering memorandum and articles of association to determine whether or not, and under what conditions, our corporate records may be inspected by our shareholders, but are not obliged to make them available to our shareholders unless required by the Companies Act or other applicable law or authorized by the directors or by ordinary resolution.

 

Register of Shareholders

 

Under Cayman Islands law, we must keep a register of shareholders that includes: the names and addresses of the shareholders, a statement of the shares held by each member, and of the amount paid or agreed to be considered as paid, on the shares of each member; the date on which the name of any person was entered on the register as a member; and the date on which any person ceased to be a member.

 

Exempted Company

 

We are an exempted company with limited liability under the Companies Act. The Companies Act distinguishes between ordinary resident companies and exempted companies. Any company that is registered in the Cayman Islands but conducts business mainly outside of the Cayman Islands may apply to be registered as an exempted company. An exempted company:

 

  does not have to file an annual return of its shareholders with the Registrar of Companies;
  is not required to open its register of members for inspection;
  does not have to hold an annual general meeting;
  may issue shares with no par value;
  may obtain an undertaking against the imposition of any future taxation;
  may register by way of continuation in another jurisdiction and be deregistered in the Cayman Islands;
  may register as a limited duration company; and
  may register as a segregated portfolio company.

 

“Limited liability” means that the liability of each shareholder is limited to the amount unpaid by the shareholder on the shares of the company (except in exceptional circumstances, such as involving fraud, the establishment of an agency relationship or an illegal or improper purpose or other circumstances in which a court may be prepared to pierce or lift the corporate veil).

  

Comparison of Cayman Islands Corporate Law and U.S. Corporate Law

 

The Cayman Islands Companies Act is modeled after the corporate legislation of the United Kingdom but does not follow recent United Kingdom statutory enactments, and differs from laws applicable to United States corporations and their shareholders. Set forth below is a summary of the significant differences between the provisions of the Companies Act applicable to us and the laws applicable to companies incorporated in the United States (particularly Delaware) and their shareholders.

 

    Delaware  

Cayman Islands

 

Title of Organizational Documents   Certificate of Incorporation and Bylaws  

Certificate of Incorporation and Memorandum and Articles of Association

 

Duties of Directors   Under Delaware law, the business and affairs of a corporation are managed by or under the direction of its board of directors. In exercising their powers, directors owe fiduciary duties of care and loyalty to the corporation and its shareholders. The duty of care requires that directors act in an informed and deliberative manner and inform themselves, prior to making a business decision, of all material information reasonably available to them. The duty of care also requires that directors exercise care in all of their responsibilities, including overseeing and investigating the conduct of the corporation’s employees. The duty of loyalty requires that a director act in good faith, not out of self-interest, and in a manner that the director reasonably believes to be in the best interests of the shareholders and the corporation.  

As a matter of Cayman Islands law, directors of Cayman Islands companies owe fiduciary duties to the their respective companies to, amongst other things, act in good faith in their dealings with or on behalf of the company and exercise their powers and fulfill the duties of their office honestly. Core duties are:

 

●    a duty to act in good faith in what the directors bona fide consider to be the best interests of the company (and in this regard, it should be noted that the duty is owed to the company and not to associate companies, subsidiaries or holding companies);

 

●   a duty not to personally profit from opportunities that arise from the office of director;

 

●   a duty of trusteeship of the company’s assets;

 

●   a duty not to put himself in a position where the structures of a company conflict of his or her personal interest on his or her duty to a third party to avoid conflicts of interest; and

 

●   a duty to exercise powers for the purpose for which such powers were conferred.

 

A director of a Cayman Islands company also owes the company a duty to act with skill, care and diligence. A director need not exhibit in the performance of his or her duties a greater degree of skill than may be reasonably expected from a person of his or her knowledge and experience.

 

94

 

  

         
Limitations on Personal Liability of Directors  

Subject to the limitations described below, a certificate of incorporation may provide for the elimination or limitation of the personal liability of a director to the corporation or its shareholders for monetary damages for a breach of fiduciary duty as a director. Such a provision cannot eliminate or limit liability for breach of the fiduciary duty of loyalty, bad faith, intentional misconduct, a knowing violation of law, a transaction from which the director derived an improper personal benefit, an unlawful payment of dividends or an unlawful share purchase or redemption. In addition, the certificate of incorporation cannot limit liability for any act or omission occurring prior to the date when such provision becomes effective.

 

  The Companies Act does not limit the extent to which a company's memorandum and articles of association may provide for indemnification of directors and officers. However, as a matter of public policy, Cayman Islands law will not allow the limitation of a director's liability to the extent that the liability is a consequence of the director committing a crime or of the director's own fraud, dishonesty or willful default.
Indemnification of Directors, Officers, Agents, and Others  

A corporation has the power to indemnify any director, officer, employee, or agent of corporation who was, is, or is threatened to be made a party to a proceeding (other than a derivative proceeding), by reason of the fact that such person is or was a director, officer, employee or agent of the corporation against all reasonably incurred expenses, judgments and amounts paid in settlement so long as the person acted in good faith and in a manner the person believed to be in, or not opposed to, the best interests of the corporation, and if with respect to a criminal proceeding, the person had no reasonable cause to believe that his or her conduct would be unlawful.

 

A corporation has the power to indemnify a director, officer, employee or agent in connection with the defense or settlement of a derivative action against expenses reasonable and actually incurred provided such person acted in good faith and in a manner he or she reasonably believe to be in, or not opposed to, the corporation’s best interest and if such person has been adjudged liable only if a court determines that the person is fairly and reasonably entitled to indemnification. To the extent a present or former director or officer of a corporation has been successful on the merits or otherwise in defense of any proceeding, such person shall be indemnified against expenses actually and reasonably incurred.

 

 

Cayman Islands law does not limit the extent to which a company’s memorandum and articles of association may provide for indemnification of directors and officers, except to the extent any such provision may be held by the Cayman Islands courts to be contrary to public policy, such as to provide indemnification against the consequences of committing a crime, or against the indemnified person’s own fraud or dishonesty.

 

Interested Directors  

Under Delaware law, a transaction between a corporation and a director or with another organization in which a director has a financial interest shall not be void or voidable solely for that reason, solely because the director participates in the meeting at which the board authorizes the transaction, or solely because any such director’s votes are counted for such purpose, if (i) the material facts as to such interested director’s relationship or interests are disclosed or are known to the board of directors and the board in good faith authorizes the transaction by the affirmative vote of a majority of the disinterested directors, even though the disinterested directors are less than a quorum, (ii) such material facts are disclosed or are known to the shareholders entitled to vote on such transaction and the transaction is specifically approved in good faith by vote of the shareholders, or (iii) the transaction is fair as to the corporation as of the time it is authorized, approved or ratified. Under Delaware law, a director could be held liable for any transaction in which such director derived an improper personal benefit.

 

  Interested director transactions are governed by the terms of a company’s memorandum and articles of association.

 

95

 

  

 Voting Requirements  

Delaware’s default rule is that the affirmative vote of the majority of shares present in person or represented by proxy at the meeting and entitled to vote on the subject matter is needed for corporate action (other than the election of directors). Certain actions, such as charter amendments, most mergers, dissolution and sales of all or substantially all of the corporation’s assets, require the affirmative vote of the majority of the outstanding voting power of the shares of the corporation entitled to vote. The certificate of incorporation may include a provision requiring supermajority approval by the directors or shareholders for any corporate action.

 

In addition, under Delaware law, certain business combinations involving interested shareholders require approval by a supermajority of the non-interested shareholders unless the corporation’s board of directors approves the business combination or the transaction that resulted in the shareholder becoming an interested shareholder prior to the time the shareholder became an interested shareholder or another exemption applies.

 

 

For the protection of shareholders, certain matters must be approved by special resolution of the shareholders as a matter of Cayman Islands law, including alteration of the memorandum or articles of association, appointment of inspectors to examine company affairs, reduction of share capital (subject, in relevant circumstances, to court approval), change of name, authorization of a plan of merger or transfer by way of continuation to another jurisdiction or consolidation or voluntary winding up of the company.

 

The Companies Act requires that a special resolution be passed by a super majority of at least two-thirds or such higher percentage as set forth in the memorandum and articles of association, of shareholders being entitled to vote and do vote in person or by proxy at a general meeting, or by unanimous written consent of shareholders entitled to vote at a general meeting.

 

Voting for Directors  

Under Delaware law, unless otherwise specified in the certificate of incorporation or bylaws of the corporation, directors are elected by a plurality of the votes of the shares present in person or represented by proxy at the meeting and entitled to vote on the election of directors.

 

 

The Companies Act defines "special resolutions" only. A company's memorandum and articles of association can therefore tailor the definition of "ordinary resolutions" as a whole, or with respect to specific provisions.

 

Cumulative Voting  

There is no cumulative voting for the election of directors unless the corporation’s certificate of incorporation provides for cumulative voting.

 

 

No cumulative voting for the election of directors unless so provided in the memorandum and articles of association.

 

Directors' Powers Regarding Bylaws  

The certificate of incorporation may grant the directors the power to adopt, amend or repeal the corporation’s bylaws. The shareholders of the corporation possess the inherent right to adopt, amend or repeal the bylaws.

 

 

The memorandum and articles of association may only be amended by a special resolution of the shareholders.

 

Nomination and Removal of Directors and Filling Vacancies on Board  

Shareholders may generally nominate directors if they comply with advance notice provisions and other procedural requirements in company bylaws (if any). Holders of a majority of the shares then entitled to vote at an election of directors may remove a director with or without cause, except in certain cases involving a classified board or if the company uses cumulative voting. Unless otherwise provided for in the certificate of incorporation or bylaws, the directors or the shareholders may fill board vacancies or newly created directorships. 

 

Nomination and removal of directors and filling of board vacancies are governed by the terms of the memorandum and articles of association.

 

 

96

 

  

Mergers and Similar Arrangements  

Under Delaware law, with certain exceptions, a merger, consolidation, or sale of all or substantially all of the assets of a corporation must be approved by the board of directors and by a majority of the outstanding voting power of the shares entitled to vote thereon. Under Delaware law, a shareholder of a corporation participating in certain mergers are entitled to appraisal rights pursuant to which such shareholder may receive cash in the amount of the fair value (as determined by the Delaware Court of Chancery) of the shares held by such shareholder in lieu of the consideration such shareholder would otherwise receive in the transaction.

 

  The Companies Act provides for the merger or consolidation of two or more companies into a single entity. The legislation makes a distinction between a "consolidation" and a "merger." In a consolidation, a new entity is formed from the combination of each participating company, and the separate consolidating parties, as a consequence, cease to exist and are each stricken by the Registrar of Companies. In a merger, one company remains as the surviving entity, having in effect absorbed the other merging parties that are then stricken and cease to exist. 
    Delaware law also provides that a parent entity, by resolution of its board of directors, may merge with any subsidiary corporation, of which it owns at least 90% of each class of capital stock without a vote by shareholders of such subsidiary. Upon any such merger, dissenting shareholders of the subsidiary would have appraisal rights unless the subsidiary is wholly owned.  

Two or more Cayman-registered companies may merge or consolidate. Cayman-registered companies may also merge or consolidate with foreign companies provided that the laws of the foreign jurisdiction permit such merger or consolidation.

 

Under the new rules, a plan of merger or consolidation shall be authorized by each constituent company by way of (i) a special resolution of the members of each such constituent company; and (ii) such other authorization, if any, as may be specified in such constituent company’s memorandum and articles of association.

 

A merger between a Cayman parent company and its Cayman subsidiary or subsidiaries does not require authorization by a resolution of shareholders of that Cayman subsidiary if a copy of the plan of merger is given to every member of that Cayman subsidiary to be merged unless that member agrees otherwise. For this purpose a subsidiary is a company of which at least ninety percent (90%) of the issued shares entitled to vote are owned by the parent company.

 

       

The consent of each holder of a fixed or floating security interest over a constituent company is required unless this requirement is waived by a court in the Cayman Islands.

Save in certain circumstances, a dissentient shareholder of a Cayman constituent company is entitled to payment of the fair value of his shares upon dissenting to a merger or consolidation. The exercise of appraisal rights will preclude the exercise of any other rights save for the right to seek relief on the grounds that the merger or consolidation is void or unlawful.

In addition, there are statutory provisions that facilitate the reconstruction and amalgamation of companies, provided that the arrangement is approved by a majority in number of each class of shareholders and creditors with whom the arrangement is to be made, and who must in addition represent three-fourths in value of each such class of shareholders or creditors, as the case may be, that are present and voting either in person or by proxy at a meeting, or meetings, convened for that purpose. The convening of the meetings and subsequently the arrangement must be sanctioned by the Grand Court of the Cayman Islands. While a dissenting shareholder has the right to express to the court the view that the transaction ought not to be approved, the court can be expected to approve the arrangement if it determines that: 

 

97

 

  

       

● the statutory provisions as to the required majority vote have been met;

● the shareholders have been fairly represented at the meeting in question and the statutory majority are acting bona fide without coercion of the minority to promote interests adverse to those of the class;

● the arrangement is such that may be reasonably approved by an intelligent and honest man of that class acting in respect of his interest; and

 

● the arrangement is not one that would more properly be sanctioned under some other provision of the Companies Act.

 

When a takeover offer is made and accepted by holders of 90.0% of the shares within four months, the offeror may, within a two-month period commencing on the expiration of such four-month period, require the holders of the remaining shares to transfer such shares on the terms of the offer. An objection can be made to the Grand Court of the Cayman Islands, but this is unlikely to succeed in the case of an offer which has been so approved unless there is evidence of fraud, bad faith or collusion.

 

If an arrangement and reconstruction is thus approved, the dissenting shareholder would have no rights comparable to appraisal rights, which would otherwise ordinarily be available to dissenting shareholders of Delaware corporations, providing rights to receive payment in cash for the judicially determined value of the shares.

         
Shareholder Suits   Class actions and derivative actions generally are available to shareholders under Delaware law for, among other things, breach of fiduciary duty, corporate waste and actions not taken in accordance with applicable law. In such actions, the court generally has discretion to permit the winning party to recover attorneys' fees incurred in connection with such action but such discretion is rarely used. Generally, Delaware follows the American rule under which each party bears its own costs.   

In principle, we will normally be the proper plaintiff and as a general rule a derivative action may not be brought by a minority shareholder. However, based on English authorities, which would in all likelihood be of persuasive authority in the Cayman Islands, there are exceptions to the foregoing principle, including when:

 

● a company acts or proposes to act illegally or ultra vires;

 

● the act complained of, although not ultra vires, could only be effected duly if authorized by more than a simple majority vote that has not been obtained; and

 

● those who control the company are perpetrating a "fraud on the minority.

 

Inspection of Corporate Records  

Under Delaware law, shareholders of a corporation, upon written demand under oath stating the purpose thereof, have the right during normal business hours to inspect for any proper purpose, and to make copies and extracts of list(s) of shareholders and other books and records of the corporation and its subsidiaries, if any, to the extent the books and records of such subsidiaries are available to the corporation.

 

 

Shareholders of a Cayman Islands exempted company have no general right under Cayman Islands law to inspect or obtain copies of a list of shareholders or other corporate records (other than the register of mortgages or charges) of the company. However, these rights may be provided in the company’s memorandum and articles of association.

 

 

98

 

  

Shareholder Proposals  

Under Delaware law, a shareholder has the right to put any proposal before the annual meeting of shareholders, provided it complies with the notice provisions in the corporation’s governing documents. A special meeting may be called by the board of directors or any other person authorized to do so in the corporation’s governing documents, but shareholders may be precluded from calling special meetings.

 

  The Companies Act does not provide shareholders any right to bring business before a meeting or requisition a general meeting. However, these rights may be provided in the company’s memorandum and articles of association.
 Approval of Corporate Matters by Written Consent  

Delaware law permits shareholders to take action by written consent signed by the holders of outstanding shares having not less than the minimum number of votes that would be necessary to authorize or take such action at a meeting of shareholders unless otherwise provided in the corporation’s certificate of incorporation. A corporation must send prompt notice of the taking of the corporate action approved by shareholders without a meeting by less than unanimous written consent to those shareholders who have not consented in writing and who would have otherwise been entitled to notice of the meeting at which such action would have been taken.

 

  The Companies Act allows a special resolution to be passed in writing if signed by all the voting shareholders (if authorized by the memorandum and articles of association). 
Calling of Special Shareholders Meetings   Delaware law permits the board of directors or any person who is authorized under a corporation’s certificate of incorporation or bylaws to call a special meeting of shareholders.   The Companies Act does not have provisions governing the proceedings of shareholders meetings which are usually provided in the memorandum and articles of association.

 

Listing

 

Our ordinary shares have been approved for listing on the Nasdaq Capital Market under the symbol “CDTG”.

 

Transfer Agent and Registrar of Shares

 

The transfer agent and registrar for our ordinary shares is VStock Transfer, LLC. The transfer agent and registrar’s address is 18 Lafayette Place, Woodmere, NY 11598.

 

99

 

 

SHARES ELIGIBLE FOR FUTURE SALE

 

Before this offering, there has not been a public market for our ordinary shares, and while our ordinary shares have been approved for listing on the Nasdaq Capital Market, we cannot assure you that a significant public market for the ordinary shares will develop or be sustained after this offering. Future sales of substantial amounts of our ordinary shares in the public markets after this offering, or the perception that such sales may occur, could adversely affect market prices prevailing from time to time. As described below, only a limited number of our ordinary shares currently outstanding will be available for sale immediately after this offering due to contractual and legal restrictions on resale. Nevertheless, after these restrictions lapse, future sales of substantial amounts of our ordinary shares, including ordinary shares issued upon exercise of outstanding options, in the public market in the United States, or the possibility of such sales, could negatively affect the market price in the United States of our ordinary shares and our ability to raise equity capital in the future.

 

Upon the closing of this offering, we will have 10,700,000 outstanding ordinary shares, assuming no exercise of the underwriters' over-allotment option. Of that amount, 1,500,000 ordinary shares will be publicly held by investors participating in this offering, and 9,200,000 ordinary shares will be held by our existing shareholders, some of whom may be our "affiliates" as that term is defined in Rule 144 under the Securities Act. As defined in Rule 144, an "affiliate" of an issuer is a person that directly, or indirectly through one or more intermediaries, controls, or is controlled by, or is under common control with, the issuer.

 

All of the ordinary shares sold in this offering will be freely transferable by persons other than our "affiliates" in the United States without restriction or further registration under the Securities Act. Ordinary shares purchased by one of our "affiliates" may not be resold, except pursuant to an effective registration statement or an exemption from registration, including an exemption under Rule 144 under the Securities Act described below.

 

The ordinary shares held by existing shareholders are, and any ordinary shares issuable upon exercise of options outstanding following the completion of this offering will be, "restricted securities," as that term is defined in Rule 144 under the Securities Act. These restricted securities may be sold in the United States only if they are registered or if they qualify for an exemption from registration under Rule 144 or Rule 701 under the Securities Act. These rules are described below.

 

Rule 144

 

In general, persons who have beneficially owned restricted ordinary shares for at least six months, and any affiliate of the company who owns either restricted or unrestricted securities, are entitled to sell their securities without registration with the SEC under an exemption from registration provided by Rule 144 under the Securities Act.

 

Non-Affiliates

 

Any person who is not deemed to have been one of our affiliates at the time of, or at any time during the three months preceding, a sale may sell an unlimited number of restricted securities under Rule 144 if:

 

the restricted securities have been held for at least six months, including the holding period of any prior owner other than one of our affiliates;
we have been subject to the Exchange Act periodic reporting requirements for at least 90 days before the sale; and
we are current in our Exchange Act reporting at the time of sale.

 

Any person who is not deemed to have been an affiliate of ours at the time of, or at any time during the three months preceding, a sale and has held the restricted securities for at least one year, including the holding period of any prior owner other than one of our affiliates, will be entitled to sell an unlimited number of restricted securities without regard to the length of time we have been subject to Exchange Act periodic reporting or whether we are current in our Exchange Act reporting.

 

Affiliates  

 

Persons seeking to sell restricted securities who are our affiliates at the time of, or any time during the three months preceding, a sale, would be subject to the restrictions described above. They are also subject to additional restrictions, by which such person would be required to comply with the manner of sale and notice provisions of Rule 144 and would be entitled to sell within any three-month period only that number of securities that does not exceed the greater of either of the following:  

 

 

1% of the number of ordinary shares then outstanding, which will equal approximately 107,000 shares immediately after the closing of this offering based on the number of ordinary shares outstanding as of June 30, 2023; or

 

the average weekly trading volume of our ordinary shares in the form of ordinary shares on the Nasdaq Capital Market during the four calendar weeks preceding the filing of a notice on Form 144 with respect to the sale.

 

Additionally, persons who are our affiliates at the time of, or any time during the three months preceding, a sale may sell unrestricted securities under the requirements of Rule 144 described above, without regard to the six-month holding period of Rule 144, which does not apply to sales of unrestricted securities.

 

Rule 701 

 

Rule 701 under the Securities Act, as in effect on the date of this prospectus, permits resales of shares in reliance upon Rule 144 but without compliance with certain restrictions of Rule 144, including the holding period requirement. If any of our employees, executive officers or directors purchase shares under a written compensatory plan or contract, they may be entitled to rely on the resale provisions of Rule 701, but all holders of Rule 701 shares would be required to wait until 90 days after the date of this prospectus before selling any such shares.

 

Regulation S

 

Regulation S provides generally that sales made in offshore transactions are not subject to the registration or prospectus-delivery requirements of the Securities Act.

 

Lock-up Agreements

 

Our directors, executive officers and principal shareholders (defined as owners of 5% or more of our ordinary shares) have agreed, subject to limited exceptions, not to offer, pledge, announce the intention to sell, sell, contract to sell, sell any option or contract to purchase, purchase any option or contract to sell, grant any option, right or warrant to purchase or otherwise dispose of, directly or indirectly, or enter into any swap or other agreement that transfers, in whole or in part, any of the economic consequences of ownership of our ordinary shares or such other securities for a period of twelve months after the date of this prospectus, without the prior written consent of WestPark Capital, Inc. Our other shareholders have agreed, subject to limited exceptions, not to offer, pledge, announce the intention to sell, sell, contract to sell, sell any option or contract to purchase, purchase any option or contract to sell, grant any option, right or warrant to purchase or otherwise dispose of, directly or indirectly, or enter into any swap or other agreement that transfers, in whole or in part, any of the economic consequences of ownership of our ordinary shares or such other securities for a period of six months after the date of this prospectus, without the prior written consent of WestPark Capital, Inc. See “Underwriting.”

 

100

 

   

MATERIAL INCOME TAX CONSIDERATIONS

 

Material U.S. Federal Income Tax Considerations for U.S. Holders

 

The following discussion describes the material U.S. federal income tax consequences relating to the ownership and disposition of our ordinary shares by U.S. Holders (as defined below). This discussion applies to U.S. Holders that purchase our ordinary shares pursuant to this offering and hold such ordinary shares as capital assets. This discussion is based on the U.S. Internal Revenue Code of 1986, as amended, U.S. Treasury regulations promulgated thereunder and administrative and judicial interpretations thereof, all as in effect on the date hereof and all of which are subject to change, possibly with retroactive effect. This discussion does not address all of the U.S. federal income tax consequences that may be relevant to specific U.S. Holders in light of their particular circumstances or to U.S. Holders subject to special treatment under U.S. federal income tax law (such as certain financial institutions, insurance companies, dealers or traders in securities or other persons that generally mark their securities to market for U.S. federal income tax purposes, tax-exempt entities or governmental organizations, retirement plans, regulated investment companies, real estate investment trusts, grantor trusts, brokers, dealers or traders in securities, commodities, currencies or notional principal contracts, certain former citizens or long-term residents of the United States, persons who hold our ordinary shares as part of a “straddle,” “hedge,” “conversion transaction,” “synthetic security” or integrated investment, persons that have a “functional currency” other than the U.S. dollar, persons that own directly, indirectly or through attribution 10% or more of the voting power of our ordinary shares, corporations that accumulate earnings to avoid U.S. federal income tax, partnerships and other pass-through entities, and investors in such pass-through entities). This discussion does not address any U.S. state or local or non-U.S. tax consequences or any U.S. federal estate, gift or alternative minimum tax consequences.

 

As used in this discussion, the term “U.S. Holder” means a beneficial owner of our ordinary shares who is, for U.S. federal income tax purposes, (1) an individual who is a citizen or resident of the United States, (2) a corporation (or entity treated as a corporation for U.S. federal income tax purposes) created or organized in or under the laws of the United States, any state thereof, or the District of Columbia, (3) an estate the income of which is subject to U.S. federal income tax regardless of its source or (4) a trust (x) with respect to which a court within the United States is able to exercise primary supervision over its administration and one or more United States persons have the authority to control all of its substantial decisions or (y) that has elected under applicable U.S. Treasury regulations to be treated as a domestic trust for U.S. federal income tax purposes.

 

If an entity treated as a partnership for U.S. federal income tax purposes holds our ordinary shares, the U.S. federal income tax consequences relating to an investment in such ordinary shares will depend in part upon the status and activities of such entity and the particular partner. Any such entity should consult its own tax advisor regarding the U.S. federal income tax consequences applicable to it and its partners of the purchase, ownership and disposition of our ordinary shares.

 

Persons considering an investment in our ordinary shares should consult their own tax advisors as to the particular tax consequences applicable to them relating to the purchase, ownership and disposition of our ordinary shares including the applicability of U.S. federal, state and local tax laws and non-U.S. tax laws.

 

Passive Foreign Investment Company Consequences

 

In general, a corporation organized outside the United States will be treated as a PFIC for any taxable year in which either (1) at least 75% of its gross income is “passive income”, or the PFIC income test, or (2) on average at least 50% of its assets, determined on a quarterly basis, are assets that produce passive income or are held for the production of passive income, or the PFIC asset test. Passive income for this purpose generally includes, among other things, dividends, interest, royalties, rents, and gains from the sale or exchange of property that gives rise to passive income. Assets that produce or are held for the production of passive income generally include cash, even if held as working capital or raised in a public offering, marketable securities, and other assets that may produce passive income. Generally, in determining whether a non-U.S. corporation is a PFIC, a proportionate share of the income and assets of each corporation in which it owns, directly or indirectly, at least a 25% interest (by value) is taken into account. 

 

Although PFIC status is determined on an annual basis and generally cannot be determined until the end of a taxable year, based on the nature of our current and expected income and the current and expected value and composition of our assets, we do not presently expect to be a PFIC for our current taxable year or the foreseeable future. However, there can be no assurance given in this regard because the determination of whether we are or will become a PFIC is a fact-intensive inquiry made on an annual basis that depends, in part, upon the composition of our income and assets. In addition, there can be no assurance that the IRS will agree with our conclusion or that the IRS would not successfully challenge our position. 

 

If we are a PFIC in any taxable year during which a U.S. Holder owns our ordinary shares, the U.S. Holder could be liable for additional taxes and interest charges under the “PFIC excess distribution regime” upon (1) a distribution paid during a taxable year that is greater than 125% of the average annual distributions paid in the three preceding taxable years, or, if shorter, the U.S. Holder’s holding period for our ordinary shares, and (2) any gain recognized on a sale, exchange or other disposition, including a pledge, of our ordinary shares, whether or not we continue to be a PFIC. Under the PFIC excess distribution regime, the tax on such distribution or gain would be determined by allocating the distribution or gain ratably over the U.S. Holder’s holding period for our ordinary shares. The amount allocated to the current taxable year (i.e., the year in which the distribution occurs or the gain is recognized) and any year prior to the first taxable year in which we are a PFIC will be taxed as ordinary income earned in the current taxable year. The amount allocated to other taxable years will be taxed at the highest marginal rates in effect for individuals or corporations, as applicable, to ordinary income for each such taxable year, and an interest charge, generally applicable to underpayments of tax, will be added to the tax.

 

If we are a PFIC for any year during which a U.S. Holder holds our ordinary shares, we must generally continue to be treated as a PFIC by that holder for all succeeding years during which the U.S. Holder holds such ordinary shares, unless we cease to meet the requirements for PFIC status and the U.S. Holder makes a “deemed sale” election with respect to our ordinary shares. If the election is made, the U.S. Holder will be deemed to sell our ordinary shares it holds at their fair market value on the last day of the last taxable year in which we qualified as a PFIC, and any gain recognized from such deemed sale would be taxed under the PFIC excess distribution regime. After the deemed sale election, the U.S. Holder’s ordinary shares would not be treated as shares of a PFIC unless we subsequently become a PFIC.

 

101

 

 

If we are a PFIC for any taxable year during which a U.S. Holder holds our ordinary shares and one of our non-United States subsidiaries is also a PFIC (i.e., a lower-tier PFIC), such U.S. Holder would be treated as owning a proportionate amount (by value) of the shares of the lower-tier PFIC and would be taxed under the PFIC excess distribution regime on distributions by the lower-tier PFIC and on gain from the disposition of shares of the lower-tier PFIC even though such U.S. Holder would not receive the proceeds of those distributions or dispositions. Any of our non-United States subsidiaries that have elected to be disregarded as entities separate from us or as partnerships for U.S. federal income tax purposes would not be corporations under U.S. federal income tax law and accordingly, cannot be classified as lower-tier PFICs. However, non-United States subsidiaries that have not made the election may be classified as a lower-tier PFIC if we are a PFIC during your holding period and the subsidiary meets the PFIC income test or PFIC asset test. Each U.S. Holder is advised to consult its tax advisors regarding the application of the PFIC rules to any of our non-United States subsidiaries.

 

If we are a PFIC, a U.S. Holder will not be subject to tax under the PFIC excess distribution regime on distributions or gain recognized on our ordinary shares if a valid “mark-to-market” election is made by the U.S. Holder for our ordinary shares. An electing U.S. Holder generally would take into account as ordinary income each year, the excess of the fair market value of our ordinary shares held at the end of such taxable year over the adjusted tax basis of such ordinary shares. The U.S. Holder would also take into account, as an ordinary loss each year, the excess of the adjusted tax basis of such ordinary shares over their fair market value at the end of the taxable year, but only to the extent of the excess of amounts previously included in income over ordinary losses deducted as a result of the mark-to-market election. The U.S. Holder’s tax basis in our ordinary shares would be adjusted to reflect any income or loss recognized as a result of the mark-to-market election. Any gain from a sale, exchange or other disposition of our ordinary shares in any taxable year in which we are a PFIC would be treated as ordinary income and any loss from such sale, exchange or other disposition would be treated first as ordinary loss (to the extent of any net mark-to-market gains previously included in income) and thereafter as capital loss. If, after having been a PFIC for a taxable year, we cease to be classified as a PFIC because we no longer meet the PFIC income or PFIC asset test, the U.S. Holder would not be required to take into account any latent gain or loss in the manner described above and any gain or loss recognized on the sale or exchange of the ordinary shares would be classified as a capital gain or loss.

 

A mark-to-market election is available to a U.S. Holder only for “marketable stock.” Generally, stock will be considered marketable stock if it is “regularly traded” on a “qualified exchange” within the meaning of applicable U.S. Treasury regulations. A class of stock is regularly traded during any calendar year during which such class of stock is traded, other than in de minimis quantities, on at least 15 days during each calendar quarter. 

 

Our ordinary shares will be marketable stock as long as they remain listed on the Nasdaq Capital Market and are regularly traded. A mark-to-market election will not apply to the ordinary shares for any taxable year during which we are not a PFIC, but will remain in effect with respect to any subsequent taxable year in which we become a PFIC. Such election will not apply to any of our non-U.S. subsidiaries. Accordingly, a U.S. Holder may continue to be subject to tax under the PFIC excess distribution regime with respect to any lower-tier PFICs notwithstanding the U.S. Holder’s mark-to-market election for the ordinary shares.

 

The Cayman Islands currently have no form of income, corporate or capital gains tax and no estate duty, inheritance tax or gift tax. There are currently no Cayman Islands' taxes or duties of any nature on gains realized on a sale, exchange, conversion, transfer or redemption of the ordinary shares. Payments of dividends and capital in respect of the ordinary shares will not be subject to taxation in the Cayman Islands and no withholding will be required on the payment of interest and principal or a dividend or capital to any holder of the ordinary shares, nor will gains derived from the disposal of the ordinary shares be subject to Cayman Islands income or corporation tax as the Cayman Islands currently have no form of income or corporation taxes.

 

The tax consequences that would apply if we are a PFIC would also be different from those described above if a U.S. Holder were able to make a valid qualified electing fund, or QEF, election. As we do not expect to provide U.S. Holders with the information necessary for a U.S. Holder to make a QEF election, prospective investors should assume that a QEF election will not be available.

 

The U.S. federal income tax rules relating to PFICs are very complex. Prospective U.S. investors are strongly urged to consult their own tax advisors with respect to the impact of PFIC status on the purchase, ownership and disposition of our ordinary shares, the consequences to them of an investment in a PFIC, any elections available with respect to the ordinary shares and the IRS information reporting obligations with respect to the purchase, ownership and disposition of ordinary shares of a PFIC.

 

Distributions

 

Subject to the discussion above under “— Passive Foreign Investment Company Consequences,” a U.S. Holder that receives a distribution with respect to our ordinary shares generally will be required to include the gross amount of such distribution in gross income as a dividend when actually or constructively received to the extent of the U.S. Holder’s pro rata share of our current and/or accumulated earnings and profits (as determined under U.S. federal income tax principles). To the extent a distribution received by a U.S. Holder is not a dividend because it exceeds the U.S. Holder’s pro rata share of our current and accumulated earnings and profits, it will be treated first as a tax-free return of capital and reduce (but not below zero) the adjusted tax basis of the U.S. Holder’s ordinary shares. To the extent the distribution exceeds the adjusted tax basis of the U.S. Holder’s ordinary shares, the remainder will be taxed as capital gain. Because we may not account for our earnings and profits in accordance with U.S. federal income tax principles, U.S. Holders should expect all distributions to be reported to them as dividends.

 

Distributions on our ordinary shares that are treated as dividends generally will constitute income from sources outside the United States for foreign tax credit purposes and generally will constitute passive category income. Such dividends will not be eligible for the “dividends received’’ deduction generally allowed to corporate shareholders with respect to dividends received from U.S. corporations. Dividends paid by a “qualified foreign corporation’’ to certain non-corporate U.S. Holders may be are eligible for taxation at a reduced capital gains rate rather than the marginal tax rates generally applicable to ordinary income provided that a holding period requirement (more than 60 days of ownership, without protection from the risk of loss, during the 121-day period beginning 60 days before the ex-dividend date) and certain other requirements are met. Each U.S. Holder is advised to consult its tax advisors regarding the availability of the reduced tax rate on dividends to its particular circumstances. However, if we are a PFIC for the taxable year in which the dividend is paid or the preceding taxable year (see discussion above under “— Passive Foreign Investment Company Consequences’’), we will not be treated as a qualified foreign corporation, and therefore the reduced capital gains tax rate described above will not apply.

 

102

 

 

Dividends will be included in a U.S. Holder's income on the date of the depositary's receipt of the dividend. The amount of any dividend income paid in Cayman Islands dollars will be the U.S. dollar amount calculated by reference to the exchange rate in effect on the date of receipt, regardless of whether the payment is in fact converted into U.S. dollars. If the dividend is converted into U.S. dollars on the date of receipt, a U.S. Holder should not be required to recognize foreign currency gain or loss in respect to the dividend income. A U.S. Holder may have foreign currency gain or loss if the dividend is converted into U.S. dollars after the date of receipt.

 

A non-United States corporation (other than a corporation that is classified as a PFIC for the taxable year in which the dividend is paid or the preceding taxable year) generally will be considered to be a qualified foreign corporation with respect to any dividend it pays on ordinary shares that are readily tradable on an established securities market in the United States.  

 

Sale, Exchange or Other Disposition of Our Ordinary Shares

 

Subject to the discussion above under “— Passive Foreign Investment Company Consequences,’’ a U.S. Holder generally will recognize capital gain or loss for U.S. federal income tax purposes upon the sale, exchange or other disposition of our ordinary shares in an amount equal to the difference, if any, between the amount realized (i.e., the amount of cash plus the fair market value of any property received) on the sale, exchange or other disposition and such U.S. Holder’s adjusted tax basis in the ordinary shares. Such capital gain or loss generally will be long-term capital gain taxable at a reduced rate for non-corporate U.S. Holders or long-term capital loss if, on the date of sale, exchange or other disposition, the ordinary shares were held by the U.S. Holder for more than one year. Any capital gain of a non-corporate U.S. Holder that is not long-term capital gain is taxed at ordinary income rates. The deductibility of capital losses is subject to limitations. Any gain or loss recognized from the sale or other disposition of our ordinary shares will generally be gain or loss from sources within the United States for U.S. foreign tax credit purposes.

 

Medicare Tax

 

Certain U.S. Holders that are individuals, estates or trusts and whose income exceeds certain thresholds generally are subject to a 3.8% tax on all or a portion of their net investment income, which may include their gross dividend income and net gains from the disposition of our ordinary shares. If you are a United States person that is an individual, estate or trust, you are encouraged to consult your tax advisors regarding the applicability of this Medicare tax to your income and gains in respect of your investment in our ordinary shares.

 

Information Reporting and Backup Withholding

 

U.S. Holders may be required to file certain U.S. information reporting returns with the IRS with respect to an investment in our ordinary shares, including, among others, IRS Form 8938 (Statement of Specified Foreign Financial Assets). As described above under “Passive Foreign Investment Company Consequences”, each U.S. Holder who is a shareholder of a PFIC must file an annual report containing certain information. U.S. Holders paying more than $100,000 for our ordinary shares may be required to file IRS Form 926 (Return by a U.S. Transferor of Property to a Foreign Corporation) reporting this payment. Substantial penalties may be imposed upon a U.S. Holder that fails to comply with the required information reporting.

 

Dividends on and proceeds from the sale or other disposition of our ordinary shares may be reported to the IRS unless the U.S. Holder establishes a basis for exemption. Backup withholding may apply to amounts subject to reporting if the holder (1) fails to provide an accurate U.S. taxpayer identification number or otherwise establish a basis for exemption, or (2) is described in certain other categories of persons. However, U.S. Holders that are corporations generally are excluded from these information reporting and backup withholding tax rules.

 

Backup withholding is not an additional tax. Any amounts withheld under the backup withholding rules generally will be allowed as a refund or a credit against a U.S. Holder’s U.S. federal income tax liability if the required information is furnished by the U.S. Holder on a timely basis to the IRS.

 

U.S. Holders should consult their own tax advisors regarding the backup withholding tax and information reporting rules.

 

EACH PROSPECTIVE INVESTOR IS URGED TO CONSULT ITS OWN TAX ADVISOR ABOUT THE TAX CONSEQUENCES TO IT OF AN INVESTMENT IN OUR ORDINARY SHARES IN LIGHT OF THE INVESTOR’S OWN CIRCUMSTANCES.

 

Prospective investors should consult their professional advisers on the possible tax consequences of buying, holding or selling any ordinary shares under the laws of their country of citizenship, residence or domicile.

 

The following is a discussion on certain Cayman Islands income tax consequences of an investment in the ordinary shares. The discussion is a general summary of present law, which is subject to prospective and retroactive change. It is not intended as tax advice, does not consider any investor’s particular circumstances, and does not consider tax consequences other than those arising under Cayman Islands law. 

 

Cayman Islands Taxation

 

The Cayman Islands currently levies no taxes on individuals or corporations based upon profits, income, gains or appreciation and there is no taxation in the nature of inheritance tax or estate duty. There are no other taxes likely to be material to us levied by the government of the Cayman Islands except for stamp duties which may be applicable on instruments executed in, or brought within the jurisdiction of the Cayman Islands. The Cayman Islands is not party to any double tax treaties that are applicable to any payments made to or by our company. There are no exchange control regulations or currency restrictions in the Cayman Islands.

 

PRC Taxation

 

Under the Enterprise Income Tax Law, an enterprise established outside the PRC with a “de facto management body” within the PRC is considered a PRC resident enterprise for PRC enterprise income tax purposes and is generally subject to a uniform 25% enterprise income tax rate on its worldwide income as well as tax reporting obligations. Under the Implementation Rules, a “de facto management body” is defined as a body that has material and overall management and control over the manufacturing and business operations, personnel and human resources, finances and properties of an enterprise.

 

103

 

 

Under the PRC Enterprise Income Tax Law and its implementation rules, an enterprise established outside China with “de facto management body” within China is considered a resident enterprise. The implementation rules define the term "de facto management body" as the body that exercises full and substantial control and overall management over the business, productions, personnel, accounts and properties of an enterprise. In April 2009, the State Administration of Taxation issued a circular, known as Circular 82, which provides certain specific criteria for determining whether the “de facto management body” of a PRC-controlled enterprise that is incorporated offshore is located in China. Although this circular only applies to offshore enterprises controlled by PRC enterprises or PRC enterprise groups, not those controlled by PRC individuals or foreigners, the criteria set forth in the circular may reflect the State Administration of Taxation's general position on how the “de facto management body” text should be applied in determining the tax resident status of all offshore enterprises. According to Circular 82, an offshore incorporated enterprise controlled by a PRC enterprise or a PRC enterprise group will be regarded as a PRC tax resident by virtue of having its "de facto management body" in China only if all of the following conditions are met: (i) the primary location of the day-to-day operational management is in China; (ii) decisions relating to the enterprise's financial and human resource matters are made or are subject to approval by organizations or personnel in China; (iii) the enterprise's primary assets, accounting books and records, company seals, and board and shareholder resolutions, are located or maintained in China; and (iv) at least 50% of voting board members or senior executives habitually reside in China.

 

See Note 12 of the notes to the consolidated financial statements included elsewhere in this prospectus for a discussion of taxation.

 

104

 

 

UNDERWRITING

 

Under the terms and subject to the conditions of an underwriting agreement dated the date of this prospectus, the underwriters named below, for whom WestPark Capital, Inc. is acting as the representative and sole book-running manager, have severally agreed to purchase, and we have agreed to sell to them, the number of our ordinary shares at the initial public offering price, less the underwriting discounts, as set forth on the cover page of this prospectus and as indicated below:

 

Underwriters  Number
of
Shares
WestPark Capital, Inc.   800,000 
Orientiert XYZ Securities Limited   695,000 
R.F. Lafferty & Co. Inc.   5,000 
Total   1,500,000 

     

The underwriters are offering the shares subject to their acceptance of the shares from us and subject to prior sale. The underwriting agreement provides that the obligations of the underwriters to pay for and accept delivery of the ordinary shares offered by this prospectus are subject to the approval of certain legal matters by their counsel and to other conditions. The underwriters are obligated to take and pay for all of the ordinary shares offered by this prospectus if any such shares are taken. However, the underwriters are not required to take or pay for the shares covered by the underwriters’ option to purchase additional shares described below.

 

We have granted to the underwriters an option, exercisable for 45 days from the date of this prospectus, to purchase up to 225,000 additional ordinary shares at the initial public offering price listed on the cover page of this prospectus, less underwriting discounts. The underwriters may exercise this option solely for the purpose of covering over-allotments, if any, made in connection with this offering. To the extent the option is exercised, each underwriter will become obligated, subject to certain conditions, to purchase about the same percentage of the additional ordinary shares as the number listed next to the underwriter’s name in the preceding table bears to the total number of ordinary shares listed next to the names of all underwriters in the preceding table.

 

The underwriters will offer the shares to the public at the initial public offering price set forth on the cover of this prospectus and to selected dealers at the initial public offering price less a selling concession not in excess of $0.16 per share. After this offering, the initial public offering price, concession and reallowance to dealers may be reduced by the representative. No change in those terms will change the amount of proceeds to be received by us as set forth on the cover of this prospectus. The securities are offered by the underwriters as stated herein, subject to receipt and acceptance by them and subject to their right to reject any order in whole or in part.

 

Discounts and Expenses

 

The underwriting discounts are equal to 8% of the initial public offering price set forth on the cover of this prospectus.

 

The following table shows the per share and total initial public offering price, underwriting discounts, and proceeds before expenses to us. These amounts are shown assuming both no exercise and full exercise of the underwriters’ option to purchase up to an additional 225,000 ordinary shares.

 

   Per Share  Total Without
Exercise of
Over-
allotment
Option
  Total With
Full Exercise
of Over-
allotment
Option
Initial public offering price  $4.00   $6,000,000   $6,900,000 
Underwriting discounts to be paid by us  $0.32   $480,000   $552,000 
Proceeds, before expenses, to us  $3.68   $5,520,000   $6,348,000 

   

We have agreed to reimburse the representative up to a maximum of $175,000 for out-of-pocket accountable expenses (including the legal fees and other disbursements as disclosed below).

 

Any expense deposits paid by us will be returned to us to the extent the representative’s out-of-pocket accountable expenses are not actually incurred in accordance with FINRA Rule 5110(g)(4)(A).

 

105

 

 

We have agreed to pay expenses relating to the offering, including: (i) all filing fees and communication expenses relating to the registration of the shares to be sold in this offering with the SEC and the filing of the offering materials with FINRA; (ii) all reasonable travel and lodging expenses incurred by the representative or its counsel in connection with visits to, and examinations of, our company; (iii) translation costs for due diligence purpose; (iv) all fees, expenses and disbursements relating to the registration or qualification of such shares under the “blue sky” securities laws of such states and other jurisdictions as the representative may reasonably designate (including, without limitation, all filing and registration fees, and the reasonable fees and disbursements of representative’s counsel); (v) the costs of all mailing and printing of the placement documents, registration statements, prospectuses and all amendments, supplements and exhibits thereto and as many preliminary and final prospectuses as the representative may reasonably deem necessary; (vi) the costs of preparing, printing and delivering certificates representing the shares and the fees and expenses of the transfer agent for such shares; and (vii) the reasonable cost for road show meetings and preparation of a power point presentation. Our obligation to pay accountable and legal expenses of the representative, including those set forth above, shall not exceed $175,000 in the aggregate. The cost of “tombstone or Lucite” advertisements, which shall announce the completion of the offering to the financial community, of at least 5x5 inches in publications to be designated by the representative at a total cost of $8,000 as a separate expense.

 

We estimate that the total expenses of the offering payable by us, excluding the underwriting discounts, will be approximately $0.64 million, including a maximum aggregate reimbursement of $175,000 of representative’s accountable and legal expenses.

 

In addition, so long as the representative remains in good standing with FINRA and our letter of intent with the representative has not been terminated, we have agreed not to negotiate with another proposed underwriter for the sale of our securities without the representative’s permission. 

 

Our ordinary shares have been approved for listing on the Nasdaq Capital Market under the symbol “CDTG”.

   

Representative’s Warrants

 

In addition, we have agreed to issue the representative’s warrants to the representative of the underwriters to purchase a number of ordinary shares equal to 10% of the total number of ordinary shares sold in this offering. The representative’s warrants shall have an exercise price equal to 120% of the initial public offering price of the ordinary shares sold in this offering. The representative’s warrants may be purchased in cash or via cashless exercise, will be exercisable for five years from the effective date of the registration statement of which this prospectus forms a part and will terminate on the fifth anniversary of the effective date of the registration statement of which this prospectus forms a part. The representative’s warrants and the underlying shares will be deemed compensation by FINRA, and therefore will be subject to FINRA Rule 5110(e)(1). In accordance with FINRA Rule 5110(e)(1), and except as otherwise permitted by FINRA rules, neither the representative’s warrants nor any of our shares issued upon exercise of the representative’s warrants may be sold, transferred, assigned, pledged or hypothecated, or be the subject of any hedging, short sale, derivative, put or call transaction that would result in the effective economic disposition of such securities by any person, for a period of 180 days beginning on the date of commencement of sales of the offering. In addition, although the representative’s warrants and the underlying ordinary shares will be registered in the registration statement of which this prospectus forms a part, we have also agreed that the representative’s warrants will provide for registration rights in certain cases. These registration rights apply to all of the securities directly and indirectly issuable upon exercise of the representative’s warrants. The piggyback registration right provided will not be greater than seven years from the date of commencement of sales of the offering in compliance with FINRA Rule 5110(g)(8)(D).

 

We will bear all fees and expenses attendant to registering the ordinary shares issuable upon exercise of the representative’s warrants, other than underwriting discounts incurred and payable by the holders. The exercise price and number of ordinary shares issuable upon exercise of the representative’s warrants may be adjusted in certain circumstances, including in the event of a share dividend, extraordinary cash dividend or our recapitalization, reorganization, merger or consolidation. The warrant exercise price and/or underlying shares may also be adjusted for issuances of ordinary shares at a price below the warrant exercise price.

 

Indemnification; Indemnification Escrow

 

We have agreed to indemnify the underwriters against certain liabilities, including liabilities under the Securities Act and liabilities arising from breaches of representations and warranties contained in the underwriting agreement, or to contribute to payments that the underwriters may be required to make in respect of those liabilities.

 

Concurrently with the execution and delivery of the underwriting agreement, we will set up an escrow account with a third-party escrow agent in the United States and will fund such account with $600,000 from this offering that may be utilized by the underwriters to fund any bona fide indemnification claims of the underwriters arising during a 24 month period following the offering. The escrow account will be interest bearing, and we will be free to invest the assets in securities. All funds that are not subject to an indemnification claim will be returned to us after the applicable period expires. We will pay the reasonable fees and expenses of the escrow agent.

 

Lock-Up Agreements

 

Our officers, directors and principal shareholders (defined as owners of 5% or more of our ordinary shares) have agreed, subject to certain exceptions, to a twelve month “lock-up” period from the date of this prospectus with respect to the ordinary shares that they beneficially own, including the issuance of shares upon the exercise of convertible securities and options that are currently outstanding or which may be issued. This means that, for a period of twelve months following the date of this prospectus, such persons may not offer, sell, pledge or otherwise dispose of these securities without the prior written consent of the representative. Our other shareholders have agreed, subject to certain exceptions, to a six month “lock-up” period from the date of this prospectus with respect to the ordinary shares that they beneficially own, including the issuance of shares upon the exercise of convertible securities and options that are currently outstanding or which may be issued. This means that, for a period of six months following the date of this prospectus, such persons may not offer, sell, pledge or otherwise dispose of these securities without the prior written consent of the representative.

 

106

 

 

The representative has no present intention to waive or shorten the lock-up period; however, the terms of the lock-up agreements may be waived at its discretion. In determining whether to waive the terms of the lock-up agreements, the representative may base its decision on its assessment of the relative strengths of the securities markets and companies similar to ours in general, and the trading pattern of, and demand for, our securities in general.

 

Pricing of the Offering

 

Prior to this offering, there has been no public market for our ordinary shares. The initial public offering price of the shares has been negotiated between us and the underwriters. Among the factors considered in determining the initial public offering price of the shares, in addition to the prevailing market conditions, are our historical performance, estimates of our business potential and earnings prospects, an assessment of our management and the consideration of the above factors in relation to market valuation of companies in related businesses. 

 

No Sales of Similar Securities

 

We have agreed not to offer, pledge, announce the intention to sell, sell, contract to sell, sell any option or contract to purchase, purchase any option or contract to sell, grant any option, right or warrant to purchase or otherwise transfer or dispose of, directly or indirectly, any ordinary shares or any securities convertible into or exercisable or exchangeable for ordinary shares or enter into any swap or other agreement that transfers, in whole or in part, any of the economic consequences of ownership of our ordinary shares, whether any such transaction is to be settled by delivery of ordinary shares or such other securities, in cash or otherwise, without the prior written consent of the representative, for a period of 250 days from the date of this prospectus, except for securities issued pursuant to acquisitions or strategic transactions approved by a majority of our disinterested directors, provided that such securities are issued as “restricted securities” (as defined in Rule 144) and carry no registration rights that require or permit the filing of any registration statement in connection therewith during the restricted period, and provided that any such issuance shall only be to a person (or to the equityholders of a person) which is, itself or through its subsidiaries, an operating company or an owner of an asset in a business synergistic with our business and shall provide us with additional benefits in addition to the investment of funds, but shall not include a transaction in which we are issuing securities primarily for the purpose of raising capital or to an entity whose primary business is investing in securities.

 

Electronic Offer, Sale and Distribution of Securities

 

A prospectus in electronic format may be made available on the websites maintained by the underwriters or selling group members, if any, participating in this offering and the underwriters may distribute prospectuses electronically. The underwriters may agree to allocate a number of ordinary shares to selling group members for sale to their online brokerage account holders. The ordinary shares to be sold pursuant to internet distributions will be allocated on the same basis as other allocations. Other than the prospectus in electronic format, the information on these websites is not part of, nor incorporated by reference into, this prospectus or the registration statement of which this prospectus forms a part, has not been approved or endorsed by us or the underwriters, and should not be relied upon by investors.

 

Price Stabilization, Short Positions and Penalty Bids

 

In connection with this offering, the underwriters may engage in transactions that stabilize, maintain or otherwise affect the price of our ordinary shares. Specifically, the underwriters may sell more shares than they are obligated to purchase under the underwriting agreement, creating a short position. A short sale is covered if the short position is no greater than the number of shares available for purchase by the underwriters under option to purchase additional shares. The underwriters can close out a covered short sale by exercising the option to purchase additional shares or purchasing shares in the open market. In determining the source of shares to close out a covered short sale, the underwriters will consider, among other things, the open market price of shares compared to the price available under the option to purchase additional shares. The underwriters may also sell shares in excess of the option to purchase additional shares, creating a naked short position. The underwriters must close out any naked short position by purchasing shares in the open market. A naked short position is more likely to be created if the underwriters are concerned that there may be downward pressure on the price of the shares in the open market after pricing that could adversely affect investors who purchase in the offering.

 

107

 

 

The underwriters may also impose a penalty bid. This occurs when a particular underwriter or dealer repays selling concessions allowed to it for distributing our ordinary shares in this offering because such underwriter repurchases those shares in stabilizing or short covering transactions.

 

Finally, the underwriters may bid for, and purchase, our ordinary shares in market making transactions, including “passive” market making transactions as described below.

 

These activities may stabilize or maintain the market price of our ordinary shares at a price that is higher than the price that might otherwise exist in the absence of these activities. The underwriters are not required to engage in these activities, and may discontinue any of these activities at any time without notice. These transactions may be effected on the Nasdaq Capital Market, in the over-the-counter market, or otherwise.

 

Passive Market Making

 

In connection with this offering, the underwriters may engage in passive market making transactions in our ordinary shares on the Nasdaq Capital Market in accordance with Rule 103 of Regulation M under the Exchange Act, during a period before the commencement of offers or sales of the shares and extending through the completion of the distribution. A passive market maker must display its bid at a price not in excess of the highest independent bid of that security. However, if all independent bids are lowered below the passive market maker’s bid, then that bid must then be lowered when specified purchase limits are exceeded.

 

Potential Conflicts of Interest

 

The underwriters and their affiliates may, from time to time, engage in transactions with and perform services for us in the ordinary course of their business for which they may receive customary fees and reimbursement of expenses. In the ordinary course of their various business activities, the underwriters and their affiliates may make or hold a broad array of investments and actively trade debt and equity securities (or related derivative securities) and financial instruments (including bank loans) for their own accounts and for the accounts of their customers and such investment and securities activities may involve securities and/or instruments of our company. The underwriters and their affiliates may also make investment recommendations and/or publish or express independent research views in respect of such securities or instruments and may at any time hold, or recommend to clients that they acquire, long and/or short positions in such securities and instruments.

 

108

 

 

Other Relationships

 

The underwriters and certain of their affiliates are full service financial institutions engaged in various activities, which may include securities trading, commercial and investment banking, financial advisory, investment management, investment research, principal investment, hedging, financing and brokerage activities. Some of the underwriters and certain of their affiliates may in the future engage in investment banking and other commercial dealings in the ordinary course of business with us and our affiliates, for which they may in the future receive customary fees, commissions and expenses.

 

In addition, in the ordinary course of their business activities, the underwriters and their affiliates may make or hold a broad array of investments and actively trade debt and equity securities (or related derivative securities) and financial instruments (including bank loans) for their own account and for the accounts of their customers. Such investments and securities activities may involve securities and/or instruments of ours or our affiliates. The underwriters and their affiliates may also make investment recommendations and/or publish or express independent research views in respect of such securities or financial instruments and may hold, or recommend to clients that they acquire, long and/or short positions in such securities and instruments.

 

Selling Restrictions

 

No action may be taken in any jurisdiction other than the United States that would permit a public offering of the shares or the possession, circulation or distribution of this prospectus in any jurisdiction where action for that purpose is required. Accordingly, the ordinary shares offered by this prospectus may not be offered or sold, directly or indirectly, nor may this prospectus or any other offering material or advertisements in connection with the offer and sale of any such securities be distributed or published in any jurisdiction, except under circumstances that will result in compliance with the applicable rules and regulations of that jurisdiction. Persons into whose possession this prospectus comes are advised to inform themselves about and to observe any restrictions relating to the offering and the distribution of this prospectus. This prospectus does not constitute an offer to sell or a solicitation of an offer to buy any securities offered by this prospectus in any jurisdiction in which such an offer or a solicitation is unlawful.

 

In addition to the public offering of the ordinary shares in the United States, the underwriters may, subject to applicable foreign laws, also offer the ordinary shares in certain countries. 

 

Notice to Prospective Investors in Hong Kong

 

The ordinary shares have not been offered or sold and will not be offered or sold in Hong Kong, by means of any document, other than (a) to “professional investors” as defined in the Securities and Futures Ordinance (Cap. 571) of Hong Kong and any rules made under that Ordinance; or (b) in other circumstances which do not result in the document being a “prospectus” as defined in the Companies (Winding Up and Miscellaneous Provisions) Ordinance (Cap. 32) of Hong Kong or which do not constitute an offer to the public within the meaning of that Ordinance. No advertisement, invitation or document relating to the ordinary shares has been or may be issued or has been or may be in the possession of any person for the purposes of issue, whether in Hong Kong or elsewhere, which is directed at, or the contents of which are likely to be accessed or read by, the public of Hong Kong (except if permitted to do so under the securities laws of Hong Kong) other than with respect to ordinary shares which are or are intended to be disposed of only to persons outside Hong Kong or only to “professional investors” as defined in the Securities and Futures Ordinance and any rules made under that Ordinance.

 

Notice to Prospective Investors in the People’s Republic of China

 

This prospectus may not be circulated or distributed in the PRC and the ordinary shares may not be offered or sold, and will not offer or sell to any person for re-offering or resale directly or indirectly to any resident of the PRC except pursuant to applicable laws, rules and regulations of the PRC. For the purpose of this paragraph only, the PRC does not include Taiwan and the special administrative regions of Hong Kong and Macau.

 

Notice to Prospective Investors in Taiwan

 

The ordinary shares have not been and will not be registered with the Financial Supervisory Commission of Taiwan pursuant to relevant securities laws and regulations and may not be sold, issued or offered within Taiwan through a public offering or in circumstances which constitutes an offer within the meaning of the Securities and Exchange Act of Taiwan that requires a registration or approval of the Financial Supervisory Commission of Taiwan. No person or entity in Taiwan has been authorized to offer, sell, give advice regarding or otherwise intermediate the offering and sale of the ordinary shares in Taiwan.

 

Stamp Taxes

 

If you purchase ordinary shares offered in this prospectus, you may be required to pay stamp taxes and other charges under the laws and practices of the country of purchase, in addition to the initial public offering price listed on the cover page of this prospectus.

 

Electronic Distribution

 

In connection with the offering, certain of the underwriters or securities dealers may distribute prospectuses by electronic means, such as e-mail.

 

109

 

  

EXPENSES RELATED TO THIS OFFERING

 

Set forth below is an itemization of the total expenses, excluding the underwriting discounts, which are expected to be incurred in connection with the sale of ordinary shares in this offering. With the exception of the registration fee payable to the SEC, the Nasdaq Capital Market listing fee and the filing fee payable to Financial Industry Regulatory Authority, Inc., or FINRA, all amounts are estimates.

 

SEC registration fee  $1,125 
The Nasdaq Capital Market listing fee   50,000 
FINRA filing fee   1,643 
Printing and engraving expenses   25,000 
Legal fees and expenses   325,000 
Accounting fees and expenses   50,000 
Transfer agent and registrar fee and expenses   3,000 
Miscellaneous   183,000 
Total  $638,768 

  

110

 

 

LEGAL MATTERS

 

We are being represented by K&L Gates LLP with respect to certain legal matters of U.S. federal securities. The validity of our shares underlying our ordinary shares and certain other matters of Cayman Islands law will be passed upon for us by Campbells. Certain legal matters as to PRC law will be passed upon for us by Beijing Dacheng Law Offices, LLP (Fuzhou). The underwriters are being represented by Sheppard, Mullin, Richter & Hampton LLP in connection with this offering. 

 

EXPERTS

 

The consolidated financial statements as of and for the years ended December 31, 2022 and 2021 included in this prospectus have been so included in reliance on the report of Wei, Wei & Co., LLP, an independent registered public accounting firm, given on the authority of said firm as experts in auditing and accounting.

 

The registered business address of Wei, Wei & Co., LLP is 13310 39th Avenue, Flushing, New York, 11354.

 

CHANGE IN REGISTRANT’S CERTIFYING ACCOUNTANT

 

On April 1, 2022, we dismissed Friedman LLP as our independent registered public accounting firm, effective as of April 7, 2022. On April 1, 2022, we approved the engagement of Wei, Wei & Co., LLP, an independent registered public accounting firm, as our independent registered public accounting firm, effective as of April 18, 2022. The decision to change independent registered public accounting firms was approved by our audit committee.

 

The report of Friedman LLP on our consolidated financial statements for the fiscal years ended December 31, 2020 and 2019 did not contain an adverse opinion or a disclaimer of opinion and was not qualified or modified as to uncertainty, audit scope or accounting principles.

 

During the fiscal years ended December 31, 2021 and 2020 and the subsequent interim period through April 7, 2022, there have been no (i) disagreements between us and Friedman LLP on any matter of accounting principles or practices, financial statement disclosure, or auditing scope or procedure, which disagreements if not resolved to the satisfaction of Friedman LLP would have caused them to make reference thereto in their report on the consolidated financial statements for such years, or (ii) reportable events as defined in Form 20-F Item 16F (a)(1)(v).

 

During each of the fiscal years ended December 31, 2021 and 2020 and the subsequent interim period through April 7, 2022, neither we nor anyone on behalf of us has consulted with Wei, Wei & Co., LLP regarding (i) the application of accounting principles to a specific transaction, either completed or proposed, or the type of audit opinion that might be rendered on our consolidated financial statements, and neither a written report nor oral advice was provided to us that Wei, Wei & Co., LLP concluded was an important factor considered by us in reaching a decision as to any accounting, auditing, or financial reporting issue, or (ii) any matter that was either the subject of a disagreement pursuant to Item 16F(a)(1)(iv) of the instructions to Form 20-F or a reportable event pursuant to Item 16F(a)(1)(v) of the instructions to Form 20-F.

 

We provided Friedman LLP with a copy of these disclosures and requested from Friedman LLP a letter addressed to the Securities and Exchange Commission indicating whether it agrees with such disclosures, and, if not, stating the respects in which it does not agree. A copy of Friedman LLP’s letter dated February 24, 2023 is filed herewith as Exhibit 16.1.

 

111

 

 

ENFORCEMENT OF LIABILITIES

 

We are incorporated under the laws of the Cayman Islands as an exempted company with limited liability. We are incorporated in the Cayman Islands because of certain benefits associated with being a Cayman Islands company, such as political and economic stability, an effective judicial system, a favorable tax system, the absence of foreign exchange control or currency restrictions and the availability of professional and support services. However, the Cayman Islands has a less developed body of securities laws as compared to the United States and provides less protection for investors. In addition, Cayman Islands companies do not have standing to sue before the federal courts of the United States.

 

All of our assets are located outside the United States. In addition, most of our directors and executive officers are nationals or residents of jurisdictions other than the United States and substantially all of their assets are located outside the United States. As a result, it may be difficult or impossible for you to effect service of process within the United States upon us or these persons, or to enforce judgments obtained in U.S. courts against us or them, including judgments predicated upon the civil liability provisions of the securities laws of the United States or any state in the United States. It may also be difficult for you to enforce judgments obtained in U.S. courts based on the civil liability provisions of the U.S. federal securities laws against us and our executive officers and directors.

 

We have appointed Puglisi & Associates as our agent to receive service of process with respect to any action brought against us in the United States in connection with this offering under the federal securities laws of the United States or of any State in the United States.

 

Cayman Islands

 

We have been advised by Campbells, our counsel as to Cayman Islands law, that the United States and the Cayman Islands do not have a treaty providing for reciprocal recognition and enforcement of judgments of U.S. courts in civil and commercial matters and that there is uncertainty as to whether a final judgment for the payment of money rendered by any federal or state court in the United States based on civil liability provisions, whether or not predicated solely upon the U.S. federal securities laws, would be enforceable in the Cayman Islands. This uncertainty relates to whether such a judgment would be determined by the courts of the Cayman Islands to be penal or punitive in nature.

 

We have also been advised by Campbells that, notwithstanding the above, a final and conclusive judgment obtained in U.S. federal or state courts under which a definite sum of money is payable as compensatory damages and not in respect of laws that are penal in nature (i.e., not being a sum claimed by a revenue authority for taxes or other charges of a similar nature by a governmental authority, or in respect of a fine or penalty or multiple or punitive damages) will be recognized and enforced in the courts of the Cayman Islands at common law, without any re-examination of the merits of the underlying dispute, by an action commenced on the foreign judgment debt in the Grand Court of the Cayman Islands, provided that: (a) the court that gave the judgment was competent to hear the action in accordance with private international law principles as applied by the courts in the Cayman Islands and the parties subject to such judgment either submitted to such jurisdiction or were resident or carrying on business within such jurisdiction and were duly served with process, (b) the judgment given by the foreign court was not in respect of penalties, taxes, fines or similar fiscal or revenue obligations, (c) the judgment was final and conclusive and for a liquidated sum, (d) the judgment was not obtained by fraud, and (e) the judgment was not obtained in a manner and is not of a kind the enforcement of which is contrary to natural justice or public policy in the Cayman Islands.

 

A Cayman Islands court may impose civil liability on us or our directors or officers in a suit brought in the Grand Court of the Cayman Islands against us or these persons with respect to a violation of U.S. federal securities laws, provided that the facts surrounding any violation constitute or give rise to a cause of action under Cayman Islands law.

 

PRC

 

We have been advised by Beijing Dacheng Law Offices, LLP (Fuzhou), our counsel as to PRC law, that the United States and the PRC do not have a treaty providing for reciprocal recognition and enforcement of judgments of U.S. courts in civil and commercial matters and that there is uncertainty as to whether a final judgment for the payment of money rendered by any federal or state court in the United States based on civil liability provisions, whether or not predicated solely upon the U.S. federal securities laws, would be enforceable in the PRC. This uncertainty relates to whether such a judgment would be determined by the courts of the PRC to be penal or punitive in nature. 

 

 We have also been advised by Beijing Dacheng Law Offices, LLP (Fuzhou) that, according to Civil Procedural Law of the People’s Republic of China, where a judgment or ruling made by a foreign court which has come into legal effect requires ratification and enforcement by a People's Court of the People's Republic of China, the parties concerned may submit an application directly to an intermediate People's Court of the People's Republic of China which has jurisdiction for ratification and enforcement, or the foreign court may, pursuant to the provisions of the international treaty concluded or participated by the country and the People's Republic of China or in accordance with the principle of reciprocity, request for ratification and enforcement by the People's Court. For a judgment or ruling made by a foreign court which has come into legal effect for which ratification and enforcement is applied or requested, where a People's Court concludes, upon examination pursuant to the international treaty concluded or participated by the People's Republic of China or in accordance with the principle of reciprocity, that the basic principle of the laws of the People's Republic of China or the sovereignty, security or public interest of the People’s Republic of China is not violated, the People's Court shall rule on ratification of the validity; where there is a need for enforcement, an enforcement order shall be issued and enforced pursuant to the relevant provisions of this Law. Where the People's Court deemed that the basic principle of the laws of the People's Republic of China or the sovereignty, security or public interest of the People’s Republic of China is violated, the judgment or ruling made by the foreign court shall not be ratified and enforced.

  

112

 

 

WHERE YOU CAN FIND ADDITIONAL INFORMATION

 

We have filed with the SEC a registration statement (including amendments and exhibits to the registration statement) on Form F-1 under the Securities Act. This prospectus, which forms a part of the registration statement, does not contain all of the information included in the registration statement and the exhibits and schedules to the registration statement. Certain information is omitted and you should refer to the registration statement and its exhibits and schedules for that information. If a document has been filed as an exhibit to the registration statement, we refer you to the copy of the document that has been filed. Each statement in this prospectus relating to a document filed as an exhibit is qualified in all respects by the filed exhibit.

 

You may review a copy of the registration statement, including exhibits and any schedule filed therewith, and obtain copies of such materials at the SEC’s Public Reference Room at 100 F Street, N.E., Washington, D.C. 20549. You may obtain information on the operation of the Public Reference Room by calling the SEC at 1-800-SEC-0330. The SEC maintains a website at http://www.sec.gov that contains reports, proxy and information statements and other information regarding issuers, like us, that file electronically with the SEC.

 

Upon completion of this offering, we will be subject to the information reporting requirements of the Exchange Act applicable to foreign private issuers. Accordingly, we will be required to file reports and other information with the SEC, including annual reports on Form 20-F and reports on Form 6-K. Those reports may be inspected without charge at the locations described above. As a foreign private issuer, we will be exempt from the rules under the Exchange Act related to the furnishing and content of proxy statements, and our officers, directors and principal shareholders will be exempt from the reporting and short-swing profit recovery provisions contained in Section 16 of the Exchange Act. In addition, we will not be required under the Exchange Act to file periodic reports and financial statements with the SEC as frequently or as promptly as U.S. companies whose securities are registered under the Exchange Act.

 

We maintain a website at http://www.cdthb.cn. Information contained on, or that can be accessed through, our website is not a part of, and shall not be incorporated by reference into, this prospectus.

 

113

 

 

CDT Environmental Technology Investment Holdings Limited

Index to Consolidated Financial Statements 

 

Six Months Ended June 30, 2023 and 2022 (Unaudited)

  Page
Financial Statements:    
Unaudited Condensed Consolidated Balance Sheets
  F-2
Unaudited Condensed Consolidated Statements of Income and Comprehensive Income (Loss)   F-3
Unaudited Condensed Consolidated Statements of Change in Shareholders’ Equity   F-4
Unaudited Condensed Consolidated Statements of Cash Flows   F-5
Notes to Unaudited Condensed Consolidated Financial Statements   F-6

 

Years Ended December 31, 2022 and 2021   Page
Report of Independent Registered Public Accounting Firm (Wei, Wei & Co., LLP, PCAOB ID#: 2388, Flushing, New York)   F-30
Financial Statements:    
Consolidated Balance Sheets   F-31
Consolidated Statements of Income and Comprehensive Income   F-32
Consolidated Statements of Change in Shareholders’ Equity   F-33
Consolidated Statements of Cash Flows   F-34
Notes to Consolidated Financial Statements   F-35

  

F-1

 

   

CDT ENVIRONMENTAL TECHNOLOGY INVESTMENT HOLDINGS LIMITED AND SUBSIDIARIES

UNAUDITED CONDENSED CONSOLIDATED BALANCE SHEETS

 

 

    June 30,   December 31,
    2023   2022
ASSETS                
CURRENT ASSETS                
Cash   $ 491,464     $ 199,864  
Restricted cash            
Accounts receivable, net     19,135,053       20,090,775  
Other receivables, net     319,620       208,704  
Other receivables - related parties     116,021       289,676  
Loans to third parties     37,366       57,433  
Contract assets     18,740,352       16,821,489  
Contract costs           899,662  
Deferred costs     7,004       45,727  
Prepayments and other current assets, net     1,980,349       2,354,769  
Total current assets     40,827,229       40,968,099  
                 
PROPERTY AND EQUIPMENT, NET     1,805,978       2,196,836  
                 
OTHER ASSETS                
Intangible assets, net     21,309       28,164  
Deferred tax assets, net     426,072       304,467  
Contract assets, noncurrent     11,888,905       9,268,901  
Prepaid initial public offering ("IPO") costs     944,896       833,817  
Right-of-use assets, net     251,377       310,443  
Total other assets     13,532,559       10,745,792  
                 
Total assets   $ 56,165,766     $ 53,910,727  
                 
LIABILITIES AND SHAREHOLDERS' EQUITY                
                 
CURRENT LIABILITIES                
Short-term loans - banks   $ 2,265,173     $ 843,911  
Short-term loans - third parties     348,058       453,867  
Accounts payable     15,232,953       14,862,676  
Other payables and accrued liabilities     2,288,471       2,426,520  
Other payables - related parties     269,928       271,132  
Short-term loans - related parties     4,251,137       4,231,368  
Lease liabilities     104,542       87,212  
Contract liabilities     27,175       29,196  
Taxes payable     4,796,714       4,863,577  
Total current liabilities     29,584,151       28,069,459  
                 
OTHER LIABILITIES                
Long-term loan - bank     67,785       47,861  
Lease liabilities, non-current     157,349       233,496  
Total other liabilities     225,134       281,357  
                 
Total liabilities     29,809,285       28,350,816  
                 
COMMITMENTS AND CONTINGENCIES                
                 
SHAREHOLDERS' EQUITY                
Ordinary shares, $0.0025 par value, 20,000,000 shares authorized, and 9,200,000 shares                
outstanding as of June 30, 2023 and December 31, 2022     23,000       23,000  
Additional paid-in capital     7,453,265       7,453,265  
Statutory reserves     2,629,667       2,396,539  
Retained earnings     18,422,413       16,621,556  
Accumulated other comprehensive (loss) income     (2,505,799 )     (1,490,621 )
Total CDT Environmental Technology Investment Holdings Limited shareholders' equity     26,022,546       25,003,739  
                 
Noncontrolling interests     333,935       556,172  
Total shareholders' equity     26,356,481       25,559,911  
                 
Total liabilities and shareholders’ equity   $ 56,165,766     $ 53,910,727  

 

The accompanying notes are an integral part of these unaudited condensed consolidated financial statements.

 

F-2

 

 

CDT ENVIRONMENTAL TECHNOLOGY INVESTMENT HOLDINGS LIMITED AND SUBSIDIARIES

 

UNAUDITED CONDENSED CONSOLIDATED STATEMENTS OF INCOME AND COMPREHENSIVE INCOME (LOSS)

 

   For the Six Months Ended
   June 30,
   2023  2022
       
REVENUES          
Sewage treatment systems  $14,445,779   $11,935,083 
Sewage treatment services and others   1,018,024    931,881 
Total revenues   15,463,803    12,866,964 
           
COST OF REVENUES          
Sewage treatment systems   9,947,063    7,567,370 
Sewage treatment services and others   692,580    612,539 
Total cost of revenues   10,639,643    8,179,909 
           
GROSS PROFIT   4,824,160    4,687,055 
           
OPERATING EXPENSES:          
Selling   51,435    89,389 
General and administrative   1,292,367    1,527,768 
Research and development   42,829    78,928 
Provision for credit losses   1,090,957    2,206,624 
Total operating expenses   2,477,588    3,902,709 
           
INCOME FROM OPERATIONS   2,346,572    784,346 
           
OTHER INCOME (EXPENSE)          
Interest income   7,448    1,082 
Interest expense   (47,301)   (36,931)
Other income (expense), net   (69,240)   21,039 
Total other income, net   (109,093)   (14,810)
           
INCOME BEFORE INCOME TAXES   2,237,479    769,536 
           
INCOME TAXES EXPENSE   429,197    215,944 
           
NET INCOME   1,808,282    553,592 
           
Less: net loss attributable to noncontrolling interest   (225,703)   (289,238)
           
NET INCOME ATTRIBUTABLE TO          
CDT ENVIRONMENTAL TECHNOLOGY INVESTMENT HOLDINGS LIMITED  $2,033,985   $842,830 
           
NET INCOME   1,808,282    553,592 
           
FOREIGN CURRENCY TRANSLATION ADJUSTMENT   (1,011,712)   (1,160,058)
           
TOTAL COMPREHENSIVE INCOME (LOSS)   796,570    (606,466)
           
Less: Comprehensive loss attributable to noncontrolling interest   (222,237)   (340,664)
           
COMPREHENSIVE INCOME (LOSS) ATTRIBUTABLE TO          
CDT ENVIRONMENTAL TECHNOLOGY INVESTMENT HOLDINGS LIMITED  $1,018,807   $(265,802)
           
WEIGHTED AVERAGE NUMBER OF ORDINARY SHARES          
Basic and diluted   9,200,000    9,200,000 
           
EARNINGS PER SHARE          
Basic and diluted  $0.22   $0.09 

 

The accompanying notes are an integral part of these unaudited condensed consolidated financial statements.

 

F-3

 

 

CDT ENVIRONMENTAL TECHNOLOGY INVESTMENT HOLDINGS LIMITED AND SUBSIDIARIES

 

UNAUDITED CONDENSED CONSOLIDATED STATEMENTS OF CHANGE IN SHAREHOLDERS' EQUITY

 

    Ordinary shares   Additional   Retained earnings   Accumulated other   Noncontrolling   Total
    Shares   Par value   paid-in capital   Statutory reserves   Unrestricted   comprehensive income (loss)   interest    
BALANCE, December 31, 2021     9,200,000     $ 23,000     $ 7,453,265     $ 1,761,628     $ 11,474,449     $ 559,752     $ 1,120,139     $ 22,392,234  
Net income                             842,830             (289,238 )     553,592  
Statutory reserve                       119,797       (119,797 )                  
Derecognition of noncontrolling interest upon disposal of a subsidiary                                         36,536       36,536  
Foreign currency translation adjustment                                   (1,108,632 )     (51,426 )     (1,160,058 )
BALANCE, June 30, 2022     9,200,000     $ 23,000     $ 7,453,265     $ 1,881,425     $ 12,197,482     $ (548,880 )   $ 816,011     $ 21,822,304  

 

   

   Ordinary shares  Additional  Retained earnings  Accumulated other  Noncontrolling  Total
   Shares  Par value  paid-in capital  Statutory reserves  Unrestricted  comprehensive Income (loss)  interest
Shares
   
Balance, December 31, 2022   9,200,000    23,000    7,453,265    2,396,539    16,621,556    (1,490,621)   556,172    25,559,911 
Net income                   2,033,985        (225,703)   1,808,282 
Statutory reserve               233,128    (233,128)            
Foreign currency translation adjustment                       (1,015,178)   3,466    (1,011,712)
BALANCE, June 30, 2023   9,200,000   $23,000   $7,453,265   $2,629,667   $18,422,413   $(2,505,799)  $333,935   $26,356,481 

 

The accompanying notes are an integral part of these unaudited condensed consolidated financial statements.

 

F-4

 

 

 

CDT ENVIRONMENTAL TECHNOLOGY INVESTMENT HOLDINGS LIMITED AND SUBSIDIARIES

 

UNAUDITED CONDENSED CONSOLIDATED STATEMENTS OF CASH FLOWS

 

   For the Six Months Ended
   June 30,
   2023  2022
CASH FLOWS FROM OPERATING ACTIVITIES:          
Net income  $1,808,282   $553,592 
Adjustments to reconcile net income to net cash used in          
operating activities:          
Depreciation   291,793    188,278 
Amortization of intangible assets   6,086    5,505 
Amortization of right-of-use assets   49,893    8,275 
Provision for credit loss   1,090,957    2,206,624 
Loss on disposal of a subsidiary       13,662 
Loss on disposal of equipment   168,545     
Deferred tax expense   (138,290)   (322,786)
Change in operating assets and liabilities          
Accounts receivable   (836,245)   (589,003)
Other receivables   (133,023)   (420,861)
Contract assets   (5,716,724)   (6,171,890)
Contract costs   904,271    (326,831)
Deferred costs   38,657     
Prepayments and other current assets   295,766    (307,193)
Accounts payable   946,396    2,754,776 
Other payables and accrued liabilities   (164,930)   (10,009)
Contract liabilities   (1,007)    
Lease liabilities   (49,248)   (13,561)
Taxes payable   113,611    454,520 
Net cash used in operating activities   (1,325,210)   (1,976,902)
           
CASH FLOWS FROM INVESTING ACTIVITIES:          
Purchases of equipment   (182,512)   (62,538)
Cash received from disposal of equipment   39,803     
Purchases of intangible assets       (13,879)
Repayments from Loan to third party   57,728     
Loan to third party   (38,966)    
Net cash used in investing activities   (123,947)   (76,417)
           
CASH FLOWS FROM FINANCING ACTIVITIES:          
Prepaid initial public offering ("IPO") costs   (39,434)    
Proceeds from short-term loans - banks   1,720,281    280,717 
Repayments of short-term loans - banks   (164,524)   (179,605)
Proceeds from long-term loan - bank   144,319     
Repayments of long-term loan - bank   (163,563)    
Repayments of short-term loans - third parties, net   (93,230)   (77,160)
Proceeds from other payables - related parties, net   170,172    7,440 
Proceeds from short-term loans - related parties, net   179,186    1,391,194 
Net cash provided by financing activities   1,753,207    1,422,586 
           
EFFECT OF EXCHANGE RATE CHANGES   (12,450)   (62,534)
           
NET CHANGE IN CASH AND RESTRICTED CASH   291,600    (693,267)
           
CASH AND RESTRICTED CASH, BEGINNING OF the period   199,864    1,134,962 
           
CASH AND RESTRICTED CASH, END OF the period  $491,464   $441,695 
           
SUPPLEMENTAL CASH FLOW INFORMATION:          
Cash paid for income tax  $   $5,958 
Cash paid for interest  $47,301   $1,437 
           
SUPPLEMENTAL NON-CASH INVESTING AND FINANCING INFORMATION:          
Initial recognition of operating right of use asset and lease liability upon commencement date for new lease and adoption date of ASU 2016-02, “Leases” (Topic 842) for existing leases   $   $207,336 
Recognition of other receivables from third party upon disposal of a subsidiary  $   $4,630 

 

 

The following table provides a reconciliation of cash and restricted cash reported within the statement of financial position that sum to the total of the same amounts shown in the statement of cash flows:

 

    June 30,   December 31,
    2022   2021
    (Unaudited)    
Cash   $ 441,695     $ 1,092,783  
Restricted cash           42,179  
Total cash and restricted cash shown in the consolidated statements of cash flows   $ 441,695     $ 1,134,962  

  

The accompanying notes are an integral part of these unaudited condensed consolidated financial statements.

 

F-5

 

 

CDT ENVIRONMENTAL TECHNOLOGY INVESTMENT HOLDINGS LIMITED AND SUBSIDIARIES

 

NOTES TO UNAUDITED CONDENSED CONSOLIDATED FINANCIAL STATEMENTS

(In U.S. dollars, unless stated otherwise)

 

Note 1– Nature of business and organization

 

CDT Environmental Technology Investment Holdings Limited (“CDT Cayman” or the “Company”) is a holding company incorporated on November 28, 2016, under the laws of the Cayman Islands. The Company has no substantive operations other than holding all of the outstanding equity of Chao Qiang Holdings Limited (“CQ BVI”) established under the laws of the British Virgin Islands on December 14, 2015 and all of the outstanding equity of CDT Environmental Technology Group Limited (“CDT BVI”) established under the laws of the British Virgin Islands on June 26, 2015.

 

CQ BVI is a holding company holding all of the outstanding equity of Ultra Leader Investments Limited (“Ultra HK”) which was established in Hong Kong on February 27, 2015. Ultra HK is a holding company holding 15% of the outstanding equity of Shenzhen CDT Environmental Technology Co., Ltd. (“Shenzhen CDT”) which was established on August 27, 2012 under the laws of the People’s Republic of China (“PRC” or “China”).

 

CDT BVI is a holding company holding all of the outstanding equity of CDT Environmental Technology (Hong Kong) Limited (“CDT HK”) which was established in Hong Kong on July 30, 2015. CDT HK is also a holding company holding 85% of the outstanding equity of Shenzhen CDT. The Company, through Ultra HK and CDT HK, holds 100% of the outstanding equity of Shenzhen CDT.

 

The Company, through its wholly owned subsidiary, Shenzhen CDT, and its subsidiaries, engages in developing, producing, selling and installing sewage treatment systems and providing sewage treatment services. The Company focuses on the harmless treatment of municipal and rural cesspool, pipe dredging, treatment of inland river sludge and rural sewage treatment, and providing one-stop solutions.

 

The accompanying unaudited condensed consolidated financial statements reflect the activities of CDT Cayman and each of the following entities:

 

Name   Background   Ownership
Chao Qiang Holdings Limited (“CQ BVI”)  

● A British Virgin Islands company

● Incorporated on December 14, 2015

● A holding company

  100% owned by CDT Cayman
CDT Environmental Technology Group Limited (“CDT BVI”)  

● A British Virgin Islands company

● Incorporated on June 26, 2015

● A holding company

  100% owned by CDT Cayman
Ultra Leader Investments Limited (“Ultra HK”)  

● A Hong Kong company

● Incorporated on February 27, 2015

● A holding company

  100% owned by CQ BVI
CDT Environmental Technology (Hong Kong) Limited (“CDT HK”)  

● A Hong Kong company

● Incorporated on July 30, 2015

● A holding company

  100% owned by CDT BVI

Shenzhen CDT Environmental Technology Co., Ltd.

(“Shenzhen CDT”)

 

● A PRC limited liability company

● Incorporated on August 27, 2012

● Registered capital of RMB 60,000,000

● Developing, producing, selling and installing sewage treatment systems and providing sewage treatment services

  100% collectively owned by Ultra HK (15%) and CDT HK (85%)

Beijing CDT Environmental Technology Co., Ltd.

(“BJ CDT”)

 

● A PRC limited liability company

● Incorporated on April 25, 2016

● Registered capital of RMB 20,000,000

● Providing sewage treatment services

  100% owned by Shenzhen CDT

Fuzhou LSY Environmental Technology Co., Ltd.

(“FJ LSY”)

 

● A PRC limited liability company

● Incorporated on March 13, 2015

● Registered capital of RMB 5,000,000

● Providing sewage treatment services

  51% owned by Shenzhen CDT

 

Tianjin CDT Environmental Technology Co., Ltd.

(“TJ CDT”)

 

● A PRC limited liability company

● Incorporated on October 22, 2014

● Registered capital of RMB 10,000,000

● Providing sewage treatment services

  100% owned by Shenzhen CDT

Chengde CDT Environmental Technology Co., Ltd.

(“CD CDT”)

 

● A PRC limited liability company

● Incorporated on March 26, 2015

● Registered capital of RMB 5,000,000

● Providing sewage treatment services

  51% owned by Shenzhen CDT

Beijing Innovation CDT Environmental Technology Co., Ltd.

(“BJ CX CDT”)

 

● A PRC limited liability company

● Incorporated on September 7, 2016

● Registered capital of RMB 5,000,000

● Providing sewage treatment services

  51% owned by Shenzhen CDT

Baoding CDT Environmental Technology Co., Ltd.

(“BD CDT”)

 

● A PRC limited liability company

● Incorporated on October 21, 2015

● Registered capital of RMB 5,000,000

● Providing sewage treatment services

  51% owned by Shenzhen CDT

Hengshui CDT Environmental Technology Co., Ltd.

(“HS CDT”)

 

● A PRC limited liability company

● Incorporated on May 18, 2015

● Registered capital of RMB 3,000,000

● Providing sewage treatment services

  51% owned by Shenzhen CDT

Guangxi CWT Environmental Technology Co., Ltd.

(“GX CDT”)

 

● A PRC limited liability company

● Incorporated on January 29, 2016

● Registered capital of RMB 5,000,000

● Providing sewage treatment services

  51% owned by Shenzhen CDT

Huzhou CDT Environmental Technology Co., Ltd.

(“HZ CDT”)

 

● A PRC limited liability company

● Incorporated on February 6, 2015

● Registered capital of RMB 5,000,000

● Providing sewage treatment services

  51% owned by Shenzhen CDT

Hohhot CDT Environmental Technology Co., Ltd.

(“HHHT CDT”)

 

● A PRC limited liability company

● Incorporated on February 11, 2015

● Registered capital of RMB 5,000,000

● Providing sewage treatment services

  51% owned by Shenzhen CDT

Taiyuan CDT Environmental Technology Co., Ltd.

(“TY CDT”)

 

● A PRC limited liability company

● Incorporated on March 23, 2015

● Registered capital of RMB 5,000,000

● Providing sewage treatment services

  51% owned by Shenzhen CDT

Xiamen YDT Environmental Technology Co., Ltd.

(“XM YDT”) (1)

 

● A PRC limited liability company

● Incorporated on April 9, 2015

● Registered capital of RMB 5,000,000

● Providing sewage treatment services

  51% owned by Shenzhen CDT

 

(1) In January 2022, the Company disposed of its entire 51% ownership in XM YDT and transferred its ownership to a third party for consideration of approximately $5,000. The disposal of XM YDT did not have a material impact on the Company’s unaudited condensed consolidated financial statements. 

 

F-6

 

 

Note 2 – Liquidity

 

In assessing the Company’s liquidity, the Company monitors and analyzes its cash on-hand and its operating requirements and capital expenditure commitments. The Company’s liquidity needs are to meet its working capital requirements, operating expenses and capital expenditure obligations.

 

The Company engages in installing sewage treatment systems and providing sewage treatment services in both urban and rural areas. The Company’s business is capital intensive. Working capital was approximately $11.2 million as of June 30, 2023, as compared to approximately $12.9 million as of December 31, 2022. As of June 30, 2023, cash on-hand balance was approximately $0.5 million. In addition to cash on-hand, the Company also has other current assets mainly composed of accounts receivable, contract assets, and contract costs. The Company had accounts receivable, net of approximately $19.1 million, and contract assets of approximately $18.7 million on June 30, 2023, all of which are short-term in nature and should be collected and utilized within the Company’s operating cycle to be used to support the Company’s working capital needs. 

 

Although the Company believes that it can realize its current assets in the normal course of business, its ability to repay its current obligations will depend on the future realization of its current assets. Management has considered historical experience, the economic environment, trends in the sewage treatment industry, and the expected collectability of accounts receivable and contract assets as of June 30, 2023. The Company expects to realize these outstanding balances, net of allowance within the normal operating cycle of twelve-months. As of date of this prospectus, the Company has received approximately $2.2 million of its accounts receivable. If the Company is unable to realize its current assets within the normal twelve-month operating cycle, the Company may have to consider supplementing its available sources of funds through the following:

 

Financing from the Company’s officers/shareholders; and
Other available sources of financing from PRC banks, other financial institutions and related parties, given the Company’s credit history.

 

Based on the above considerations, management believes that the Company has sufficient funds to meet its working capital requirements and debt obligations, for at least the next 12 months from the filing date of these unaudited condensed consolidated financial statements. However, there is no assurance that management will be successful in their plans. There are a number of factors that could potentially arise that could undermine the Company’s plans, such as changes in the demand for its services, economic conditions, competitive pricing in the sewage treatment services industry, its operating results may deteriorate and its bank and shareholders may not provide continued financial support.

 

Note 3 – Summary of significant accounting policies

 

Basis of presentation

 

The accompanying unaudited condensed consolidated financial statements have been prepared in accordance with accounting principles generally accepted in the United States of America (“U.S. GAAP”) and pursuant to the rules and regulations of the Securities Exchange Commission (“SEC”), and include all normal and recurring adjustments that management of the Company considers necessary for a fair presentation of its financial position and operating results. The results of operations for the six months ended June 30, 2023 are not necessarily indicative of results to be expected for the full year of 2023. Accordingly, these unaudited condensed consolidated financial statements should be read in conjunction with the Company’s audited financial statements as of and for the year ended December 31, 2022 and 2021.

 

F-7

 

 

Principles of consolidation

 

The unaudited condensed consolidated financial statements include the financial statements of the Company and its subsidiaries. All transactions and balances among the Company and its subsidiaries have been eliminated upon consolidation.

 

Subsidiaries are those entities in which the Company, directly or indirectly, controls more than one half of the voting power; or has the power to govern the financial and operating policies, to appoint or remove the majority of the members of the board of directors, or to cast a majority of votes at the meeting of directors.

 

Noncontrolling interest represents the portion of the net assets of a subsidiary attributable to interests that are not owned by the Company. The noncontrolling interest is presented in the unaudited condensed consolidated balance sheets, separately from equity attributable to the shareholders of the Company. Noncontrolling interest’s operating result is presented on the face of the unaudited condensed consolidated statements of income and comprehensive income (loss) as an allocation of the total income (loss) between noncontrolling shareholders and the shareholders of the Company.

  

Use of estimates and assumptions

 

The preparation of unaudited condensed consolidated financial statements in conformity with U.S. GAAP requires management to make estimates and assumptions that affect the reported amounts of assets and liabilities and disclosures of contingent assets and liabilities as of the date of the unaudited condensed consolidated financial statements and the reported amounts of revenues and expenses during the periods presented. Significant accounting estimates reflected in the Company’s unaudited condensed consolidated financial statements include the estimated cost or input measure method used to calculate the revenue recognized in the Company’s sewage treatment systems installation business, the useful lives of property and equipment and intangible assets, impairment of long-lived assets, allowance for doubtful accounts and allowance for deferred tax assets and uncertain tax position. Actual results could differ from these estimates.

 

Foreign currency translation and transaction

 

The reporting currency of the Company is the U.S. dollar. The Company in China conducts its businesses in the local currency, Renminbi (RMB), as its functional currency. Assets and liabilities are translated at the unified exchange rate as quoted by the People’s Bank of China at the end of the period. The statements of income accounts are translated at the average translation rates and the equity accounts are translated at historical rates. Translation adjustments resulting from this process are included in accumulated other comprehensive loss. Transaction gains and losses that arise from exchange rate fluctuations on transactions denominated in a currency other than the functional currency are included in the results of operations as incurred.

 

Translation adjustments included in accumulated other comprehensive loss amounted to $2,505,799 and $1,490,621 as of June 30, 2023 and December 31, 2022, respectively. The balance sheet amounts, with the exception of shareholders’ equity at June 30, 2023 and December 31, 2022 were translated at RMB 7.23 and RMB 6.96 to $1.00, respectively, and at HKD 7.84 and HKD 7.80 to $1.00, respectively. The shareholders’ equity accounts are stated at their historical exchange rates. The average translation rates applied to the statements of income accounts for the six months ended June 30, 2023 and 2022 were to RMB 6.93 and RMB 6.48 to $1.00, respectively, and were HKD 7.84 and HKD 7.83 to $1.00, respectively. Cash flows are also translated at average translation rates for the periods, therefore, amounts reported on the statements of cash flows will not necessarily agree with changes in the corresponding balances on the consolidated balance sheets.

 

Cash

 

Cash consists of cash on hand and deposits placed with banks or other financial institutions and have original maturities of less than three months.

 

The statements of cash flows of the Company explain the change during the year in the total of cash and amounts generally described as restricted cash or restricted cash equivalents.

 

Accounts receivable, net

 

Accounts receivable include trade accounts due from customers. Starting from January 1, 2023, the Company adopted ASU No.2016-13 “Financial Instruments – Credit Losses (Topic 326): Measurement of Credit Losses on Financial Instruments” (“ASC Topic 326”). The Company used a modified retrospective approach, and the adoption does not have an impact on our unaudited condensed consolidated financial statements. Management also periodically evaluates individual customer’s financial condition, credit history, and the current economic conditions to make adjustments in the allowance when it is considered necessary. Account balances are charged off against the allowance after all means of collection have been exhausted and the potential for recovery is considered remote. The Company’s management continues to evaluate the reasonableness of the valuation allowance policy and update it if necessary.

 

F-8

 

 

Other receivables, net

 

Other receivables primarily include advances to employees, and other deposits. Management regularly reviews the aging of receivables and changes in payment trends and records allowances when management believes collection of amounts due are at risk. Accounts considered uncollectable are written off against the allowance after exhaustive efforts at collection are made. As of June 30, 2023 and December 31, 2022, the allowance for the doubtful accounts for other receivables was $466,696 and $474,758, respectively. For the six months ended June 30, 2023 and 2022, the bad debt expense for other receivables amounted to $9,489 and $2,839, respectively.

 

Contract assets and contract liabilities

 

Projects with performance obligations recognized over time that have revenue recognized to date in excess of cumulative billings are reported on our consolidated balance sheets as “Contract assets”. Provisions for estimated losses of contract assets on uncompleted contracts are made in the period in which such losses are determined.

 

Contract assets having billing terms with the unconditional right to be billed beyond one year are classified as non-current assets.

 

Contract liabilities on uncompleted contracts represent the amounts of cash collected from clients, billings to clients on contracts in advance of work performed and revenue recognized. The majority of these amounts are expected to be earned within twelve months and are classified as current liabilities.

 

Contract costs

Contract costs incurred during the initial phases of the Company’s sales contracts are capitalized when the costs relate directly to the contract, are expected to be recovered, and generate or enhance resources to be used in satisfying the performance obligation and such deferred costs will be recognized upon the recognition of the related revenue. These costs primarily consist of labor and material costs directly related to the contract.

 

The Company performs periodic reviews to assess the recoverability of the contract costs. The carrying amount of the asset is compared to the remaining amount of consideration that the Company expects to receive for the services to which the asset relates, less the costs that relate directly to providing those services that have not yet been recognized. If the carrying amount is not recoverable, an impairment loss is recognized. For the six months ended June 30, 2023 and 2022, no impairment loss was recognized.

 

Deferred Cost

 

The Company recognizes deferred cost from costs to fulfill a contract with a client if the costs are specifically identifiable, generate or enhance resources used to satisfy future performance obligations, and are expected to be recovered. The Company determined that substantially all costs related to implementation activities are administrative in nature and meet the capitalization criteria under Accounting Standards Codification (“ASC”) 340-40. These capitalized costs principally relate to upfront direct costs to obtain the contract.

 

Prepayments, net

 

Prepayments are cash deposited or advanced to suppliers for future inventory purchases or service providers for future services. These amounts are refundable and bear no interest. Prepayments also consist of prepaid consulting fees remitted to third parties in acquiring contracts with customers. Such consulting fee is refundable if the contract with the customer is not signed within the certain period indicated in the consulting service contract term. As of June 30, 2023, the Company has recorded approximately $0.5 million of prepaid consulting fees in prepayments related to obtaining two contracts with customers. However, as of the date of this prospectus, the Company has not secured these two contracts through the bidding process. The Company has already collected approximately $0.4 million in prepaid consulting fees for the above mentioned contracts and expects to collect the remaining amount by April 2024.

 

For any prepayments determined by management that will not be completed by the receipt of inventories, services, or refunded, the Company will recognize an allowance account to reserve for such balances. Management reviews its advances to suppliers on a regular basis to determine if the valuation allowance is adequate and adjusts the allowance when necessary. Delinquent account balances are written-off against allowance after management has determined that the likelihood of completion or collection is not probable. The Company’s management continues to evaluate the reasonableness of the valuation allowance policy and update it if necessary. As of June 30, 2023 and 2022, valuation allowance for prepayments was $170,772 and $171,286, respectively.

 

F-9

 

 

Property and equipment, net

 

Property and equipment are stated at cost less accumulated depreciation. Depreciation is computed using the straight-line method over the estimated useful lives of the assets. The estimated useful lives are as follows:

 

    Useful Life
Building   45 years
Equipment   4 - 10 years
Office equipment, fixtures and furniture   3 - 5 years
Automobiles   5 - 10 years

 

The cost and related accumulated depreciation of assets sold or otherwise retired are eliminated from the accounts and any gain or loss is included in the consolidated statements of income and comprehensive income (loss). Expenditures for maintenance and repairs are charged to operations as incurred, while additions, renewals and betterments, which are expected to extend the useful life of assets, are capitalized. The Company also re-evaluates the periods of depreciation to determine whether subsequent events and circumstances warrant revised estimates of useful lives.

 

Intangible assets, net

 

The Company’s acquired intangible assets with definite useful lives only consist of patents. The Company amortizes its intangible assets with definite useful lives over their estimated useful lives and reviews these assets for impairment. The Company typically amortizes its patents with definite useful lives on a straight-line basis over the shorter of the contractual terms or the estimated economic lives, which is determined to be approximately eight to nine years.

 

Impairment for long-lived assets

 

Long-lived assets, including property and equipment and intangible assets with finite lives are reviewed for impairment whenever events or changes in circumstances (such as a significant adverse change to market conditions that will impact the future use of the assets) indicate that the carrying value of an asset may not be recoverable. The Company assesses the recoverability of the assets based on the undiscounted future cash flows the assets are expected to generate and recognize an impairment loss when estimated undiscounted future cash flows expected to result from the use of the asset plus net proceeds expected from disposition of the asset, if any, are less than the carrying value of the asset. If an impairment is identified, the Company will reduce the carrying amount of the asset to its estimated fair value based on a discounted cash flows approach or, when available and appropriate, to comparable market values. As of June 30, 2023 and December 31, 2022, no impairment of long-lived assets was recognized.

 

Fair value measurement

 

The accounting standard regarding fair value of financial instruments and related fair value measurements defines financial instruments and requires disclosure of the fair value of financial instruments held by the Company. 

 

The accounting standards define fair value, establish a three-level valuation hierarchy for disclosures of fair value measurement and enhance disclosure requirements for fair value measures. The three levels are defined as follow:

 

Level 1 inputs to the valuation methodology are quoted prices (unadjusted) for identical assets or liabilities in active markets.

 

Level 2 inputs to the valuation methodology include quoted prices for similar assets and liabilities in active markets, quoted prices for identical assets and liabilities in inactive markets and inputs that are observable for the assets or liabilities, either directly or indirectly, for substantially the full term of the financial instruments.

 

Level 3 inputs to the valuation methodology are unobservable and significant to the fair value.

 

Financial instruments included in current assets and current liabilities are reported in the consolidated balance sheets at face value or cost, which approximate fair value because of the short period of time between the origination of such instruments and their expected realization and their current market rates of interest.

 

F-10

 

 

Deferred IPO costs

 

Deferred IPO costs represents costs associated with the Company’s proposed offering of ordinary shares which will be netted against the proceeds of the offering. If the offering is not successful, these costs will be expensed.

 

Revenue recognition

 

The Company recognizes revenue under Financial Accounting Standards Board (“FASB”) Accounting Standards Codification (“ASC”) Topic 606, Revenue from Contracts with Customers (ASC 606). The Company recognizes revenue to depict the transfer of promised goods or services (that is, an asset) to customers in an amount that reflects the consideration to which the Company expects to receive in exchange for those goods or services. An asset is transferred when the customer obtains control of that asset. It also requires the Company to identify contractual performance obligations and determine whether revenue should be recognized at a point in time or over time, based on when control of goods or services transfers to a customer.

 

F-11

 

 

To achieve that core principle, the Company applies the five steps defined under Topic 606: (i) identify the contract(s) with a customer, (ii) identify the performance obligations in the contract, (iii) determine the transaction price, (iv) allocate the transaction price to the performance obligations in the contract, and (v) recognize revenue when (or as) the entity satisfies a performance obligation.

 

The Company accounts for a contract with a customer when the contract is committed in writing, the rights of the parties, including payment terms, are identified, the contract has commercial substance and consideration to collect is substantially probable.

 

In accordance with FASB ASC 340-40, “Other Assets and Deferred Costs”, which requires the capitalization of all incremental costs from obtaining and fulfilling a contract with a customer if such costs are expected to be recovered with the period of more than one year, the Company capitalizes certain contract acquisition costs consisting primarily of consulting fees and expects such consulting fees as a result of obtaining customer contracts to be recoverable. For contracts with a realization period of less than one year, the guidance provides a practical expedient that permits an entity to immediately expense contract acquisition costs when the asset that would have resulted from capitalizing these costs would have been amortized in one year or less.

 

Revenue recognition policies for each type of revenue steams are as follows:

 

i)Sewage treatment systems

 

a)Rendering of sewage treatment systems installation

 

Performance obligations satisfied over time

 

Sales relating to the installation of sewage treatment systems are generally recognized based on the Company’s efforts or inputs to the satisfaction of its performance obligation over time as work progresses because of the continuous transfer of control to the customer and the Company has the right to bill the customer as costs are incurred. The performance obligation includes the sewage treatment system and equipment that the Company sells as well as the continuous system installation to be performed. Typically, revenue is recognized over time using an input measure (i.e., costs incurred to date relative to total estimated costs at completion) to measure progress. The Company generally uses the cost-to-cost measure of progress method because it best depicts the transfer of control to the customer which occurs as the Company incurs costs on its contracts. Under the cost-to-cost measure of progress method, the extent of progress towards completion is measured based on the ratio of total costs incurred to date to the total estimated costs at completion of the performance obligation. Revenues, including estimated fees or profits, are recorded proportionally as costs are incurred. Any expected losses on construction-type contracts in progress are charged to operations, in total, in the period the losses are identified. Contract costs include all direct material and labor costs and those indirect costs related to contract performance, such as indirect labor and supplies. Contract modifications that extend or revise contract terms generally result in recognizing the impact of the revised terms prospectively over the remaining life of the modified contract (i.e., effectively like a new contract).

 

Part of the Company’s process of identifying whether there is a contract with a customer is to assess whether it is probable that the Company will collect substantially all of the consideration to which it will be entitled in exchange for goods or services that will be transferred to the customer. In assessing it is probable that the Company will collect substantially all of the consideration, the Company considers the following:

 

1)Customary business practice and its knowledge of the customer

 

The Company procures contracts from city or provincial level state-owned construction companies that are responsible for constructing rural sewage infrastructures for local governments to sell, install and operate decentralized rural sewage treatment systems. Although the Company does not have a long period of sewage treatment system operations, historically, the collections from state-owned companies or local governments of their accounts receivable for sewage treatment services did not result in any significant write-downs. As a result, the Company believes it will collect substantially all of the consideration to which it is entitled to.

 

2)Payment terms

 

The Company’s contract with the customer has payment terms specified based upon certain conditions completed. The payment terms usually include, but are not limited to, the following billing stages: 1) signing of the sales contract, 2) completion of delivery of system equipment to the job sites, 3) completion of system installations, 4) completion of water test and satisfaction of meeting national standards for sewage discharge, and 5) completion of maintenance periods. As the Company’s customers are required to pay the Company at different billing stages over the contract period, as such, the Company believes the progress payments limit the Company’s exposure to credit risk and the Company would be able to collect substantially all of the consideration gradually at different stages.

 

F-12

 

 

The timing of the satisfaction of our performance obligations is based upon the cost-to-cost measure of progress method, which is generally different than the timing of unconditional right of payment, and is based upon certain conditions completed as specified in the contract. The payment terms usually include, but are not limited to, the following billing stages: 1) signing of the sales contract, approximately 20% - 30% of the contract price, 2) completion of delivery of system equipment to the job sites, approximately 10% - 20% of the contract price, 3) completion of system installations, approximately 10% - 20% of the contract price, 4) completion of water test and satisfaction of national standards for sewage discharge, approximately 20% - 30% of the contract price, and 5) completion of maintenance periods, approximately 5% - 10% of the contract price. The timing between the satisfaction of our performance obligations and the unconditional right to payment would contribute to contract assets and contract liabilities.

 

Payment for sewage treatments systems is made by the customer pursuant to the billing schedule stipulated in the contract which is generally based on the progress of the construction. Cost based input methods of revenue recognition require the Company to make estimates of costs to complete its projects. In making such estimates, significant judgment is required to evaluate assumptions related to the costs to complete its projects, including materials, labor, contingencies, and other system costs. The estimate of unit material costs are reviewed and updated on a quarterly basis, based on the updated information available in the supply markets. The estimate of material quantities to be used for completion and the installation cost is also reviewed and updated on a quarterly basis, based on the updated information on the progress of project execution. If the estimated total costs on any contract, including any inefficient costs, are greater than the net contract revenues, the Company recognizes the entire estimated loss in the period the loss becomes known. The cumulative effect of revisions to estimates related to net contract revenues or costs to complete contracts are recorded in the period in which the revisions to estimates are identified and the amounts can be reasonably estimated. The effect of the changes on future periods are recognized as if the revised estimates had been used since revenue was initially recognized under the contract. Such revisions could occur in any reporting period, and the effects may be material depending on the size of the contracts or the changes in estimates.

 

The installation revenues of treatment system components are combined and considered as one performance obligation. The promises to transfer the equipment and system components and installation are not separately identifiable, which is evidenced by the fact that the Company provides a significant service of integrating the goods and services into a sewage treatment system for which the customer has contracted. The Company currently does not have any modifications of contracts and the contracts currently do not have any variable consideration. The transaction price is clearly identifiable within the Company’s sales contracts, the performance obligation of the Company’s equipment and system component and installation revenues.

 

Furthermore, the installation revenues and sales of treatment system components normally includes assurance-type warranties that the Company’s performance is free from material defect and consistent with the specifications of the Company’s contract, which do not give rise to a separate performance obligation. To the extent the warranty terms provide the customer with an additional service, such as extended maintenance services, such warranty is accounted for as a separate performance obligation even though it is embedded in the sewage treatment system and installation sales contract, which is generally between one to two years after installation. Revenue generated from maintenance services are clearly identifiable and distinguished from the equipment and system component and installation revenues.

 

The Company has no obligations for returns, refunds or similar obligations for its sewage treatment system installations.

 

As of June 30, 2023, the Company had collections allocated to remaining performance obligations for sewage treatment system installments amounting to $19,355,781 which is expected to be recognized upon the satisfaction of the performance obligations within 12 months from June 30, 2023 using an input measure method.

 

F-13

 

 

  b) Rendering of sewage treatment system maintenance services

 

Performance obligations satisfied over time

 

Revenue from sewage treatment system maintenance service contracts require the Company to render repair or maintenance on any system failure during the contracted maintenance periods, which is generally between one to two years. Revenue generated from sewage treatment system maintenance services is recognized over the coverage period on a straight-line basis.

 

The maintenance contract revenue is embedded in the installation contract but clearly identifiable for such maintenance services, which is generally between one to two years after installation. This clause includes identifiable payment terms within the sales contract, which the Company believes can be distinguished from the installation services should the Company need to separately enter the installation and maintenance service contracts. Maintenance services revenues are immaterial to the Company’s consolidated statements of income and comprehensive income (loss) for the six months ended June 30, 2023 and 2022.

 

As of June 30, 2023, the Company had transaction price allocated to remaining performance obligations for rendering sewage treatment services amounting to $126,664 which is expected to be recognized within 12 months from June 30, 2023 and $13,972 is expected to be recognized subsequent to December 31, 2023, all on a straight-line basis.

 

c)       Financing revenues

 

Performance obligations satisfied over time

 

Financing revenues on interest income from long term contracts with payment terms over one year are recognized as financing revenues over the payment term based on the effective interest rate method determined using the Company’s incremental borrowing rate.

 

ii)Sewage treatment services

 

a)Rendering of sewage treatment services

 

Performance obligations satisfied over time

 

Revenue from sewage treatment service contracts require the Company to render treatment services on a one-time basis or based upon a specified treatment period, which is generally one year or less. The Company’s performance obligations are generally satisfied over time because customers receive and consume the benefits of such services and the Company has the right to bill the customer as services are performed. Revenue generated from sewage treatment service is recognized using an input measure method, (i.e., labor costs incurred to date relative to total estimated labor cost at completion) to measure progress. Under the labor cost measure of progress method, the extent of progress towards completion is measured based on the ratio of total labor cost incurred to date to the total estimated labor cost at completion of the performance obligation. Revenue, including estimated fees or profits, are recorded proportionally as labor costs are incurred. The Company considers labor time as the best available indicator of the pattern and timing in which contract obligations are fulfilled. The Company has a long history of sewage treatment services resulting in its ability to reasonably estimate the service hours expected to be incurred and the progress toward completion on each fixed-price contract based on the proportion of service hours incurred to date relative to total estimated service hours at completion. Estimated contract costs are based on the budgeted service hours, which are updated based on the progress toward completion on a monthly basis. Pursuant to the contract terms, the Company has enforceable right to payments for the work performed. Provisions for estimated losses, if any, on uncompleted contracts are recorded in the period in which such losses become probable based on the current contract estimates. Costs of sewage treatment services are expensed in the period in which they are incurred.

 

F-14

 

 

The Company’s disaggregated revenue streams are summarized and disclosed in Note 17.

 

The Company applies a practical expedient to expense costs as incurred for costs to obtain a contract with a customer when the amortization period is one year or less. The Company has no material incremental costs of obtaining contracts with customers that the Company expects the benefit of those costs to be longer than one year which need to be recognized as assets. 

 

Warranty

 

The Company generally provides limited warranties for work performed under its contracts. At the time a sale is recognized, the Company records estimated future warranty costs under FASB ASC 460, “Guarantees”. Such estimated costs for warranties are estimated at completion and these warranties are not service warranties separately sold by the Company. Generally, the estimated claim rates of warranties is based on actual warranty experience or the Company’s best estimate. There were no such reserves for the six months ended June 30, 2023 and 2022 because the Company’s historical warranty expenses have been immaterial to the Company’s unaudited condensed consolidated financial statements.

 

Advertising costs

 

Advertising costs amounted to $9,309 and $34,198 for the six months ended June 30, 2023 and 2022, respectively. Advertising costs are expensed as incurred and included in selling expenses. 

 

Research and development (“R&D”)

 

R&D expenses include salaries and other compensation-related expenses paid to the Company’s research and product development personnel while they are working on R&D projects, as well as raw materials used for the R&D projects. R&D expenses amounted to $42,829 and $78,928 for the six months ended June 30, 2023 and 2022, respectively.

 

Value added taxes (“VAT”)

 

Revenue represents the invoiced value of products or services, net of VAT. The VAT is based on gross sales price and VAT rates range from 6% up to 17% prior to May 2018, up to 16% starting in May 2018, and up to 13% starting in April 2019, depending on the type of products sold or services provided. Entities that are VAT general taxpayers are allowed to offset qualified input VAT paid to suppliers against their output VAT liabilities. The net VAT balance between input VAT and output VAT is recorded in taxes payable. All of the VAT returns filed by the Company’s subsidiaries in China, have been and remain subject to examination by the tax authorities for five years from the date of filing.

 

Income taxes

 

The Company accounts for income taxes in accordance with ASC 740, “Accounting for income taxes”. The charge for taxation is based on the results for the fiscal year as adjusted for items, which are non-assessable or disallowed. It is calculated using tax rates that have been enacted or substantively enacted by the balance sheet date.

 

Deferred taxes are accounted for using the asset and liability method in respect of temporary differences arising from differences between the carrying amount of assets and liabilities in the unaudited condensed consolidated financial statements and the corresponding tax basis used in the computation of assessable tax profit. In principle, deferred tax liabilities are recognized for all taxable temporary differences. Deferred tax assets are recognized to the extent that it is probable that taxable profit will be available against which deductible temporary differences can be utilized. Deferred tax is calculated using tax rates that are expected to apply to the period when the asset is realized or the liability is settled. Deferred tax is charged or credited in the income statement, except when it is related to items credited or charged directly to equity, in which case the deferred tax is also dealt with in equity. Net deferred tax assets are reduced by a valuation allowance when, in the opinion of management, it is more likely than not that some portion or all of the net deferred tax asset will not be realized. Current income taxes are provided for in accordance with the laws of the relevant taxing authorities.

 

F-15

 

 

An uncertain tax position is recognized as a benefit only if it is “more likely than not” that the tax position would be sustained in a tax examination, with a tax examination being presumed to occur. The amount recognized is the largest amount of tax benefit that has greater than 50% likelihood of being realized on examination. For tax positions not meeting the “more likely than not” test, no tax benefit is recorded. No penalties and interest incurred related to underpayment of income tax are classified as other expense in the period incurred. PRC tax returns filed in 2018 to 2022 are subject to examination by any applicable tax authorities.

 

Comprehensive income (loss)

 

Comprehensive income (loss) consists of two components, net income (loss) and other comprehensive income (loss). Other comprehensive income (loss) refers to revenue, expenses, gains and losses that under GAAP are recorded as an element of shareholders’ equity but are excluded from net income. Other comprehensive income (loss) consists entirely of foreign currency translation adjustments resulting from the U.S. dollar not being the Company’s functional currency.

 

Earnings per share

 

The Company computes earnings per share (“EPS”) in accordance with FASB ASC 260, “Earnings per Share”. FASB ASC 260 requires companies to present basic and diluted EPS. Basic EPS is measured as net income divided by the weighted average ordinary shares outstanding during the reporting period. Diluted EPS presents the dilutive effect on a per share basis of the potential ordinary shares (e.g., convertible securities, options and warrants) as if they had been converted at the beginning of the periods presented, or issuance date, if later. Potential ordinary shares that have an anti-dilutive effect (i.e., those that increase income per share or decrease loss per share) are excluded from the calculation of diluted EPS. For the six months ended June 30, 2023 and 2022, there were no potential dilutive shares.

 

Employee benefits

 

The full-time employees of the Company are entitled to staff welfare benefits including medical care, housing fund, pension benefits, unemployment insurance and other welfare, which are government mandated defined contribution plans. The Company is required to accrue for these benefits based on certain percentages of the employees’ respective salaries, subject to certain ceilings, in accordance with the relevant PRC regulations, and make cash contributions to the state-sponsored plans out of the amounts accrued. Total expenses for the plans were $87,163 and $90,034 for the six months ended June 30, 2023 and 2022, respectively. 

 

Statutory reserves

 

Pursuant to the laws applicable to the PRC, PRC entities must make appropriations from after-tax profit to the non-distributable “statutory surplus reserve fund”. Subject to certain cumulative limits, the “statutory surplus reserve fund” requires annual appropriations of 10% of after-tax profits until the aggregated appropriations reach 50% of the registered capital (as determined under accounting principles generally accepted in the PRC (“PRC GAAP”) at each year-end). For foreign invested enterprises and joint ventures in the PRC, annual appropriations should be made to the “reserve fund”. For foreign invested enterprises, the annual appropriation for the “reserve fund” cannot be less than 10% of after-tax profits until the aggregated appropriations reach 50% of the registered capital (as determined under PRC GAAP at each year-end). If the Company has accumulated losses from prior periods, the Company is able to use the current period net income after tax to offset against the accumulated losses.

 

F-16

 

 

Contingencies

 

From time to time, the Company is a party to various legal actions arising in the ordinary course of business. The Company accrues costs associated with these matters when they become probable and the amount can be reasonably estimated. Legal costs incurred in connection with loss contingencies are expensed as incurred. The Company’s management does not expect any liability from the disposition of such claims and litigation individually or in the aggregate would have a material adverse impact on the Company’s consolidated financial position, results of operations and cash flows.

 

Lease

 

Effective January 1, 2022, the Company adopted ASU 2016-02, “Leases” (Topic 842), and elected the practical expedients that does not require us to reassess: (1) whether any expired or existing contracts are, or contain, leases, (2) lease classification for any expired or existing leases and (3) initial direct costs for any expired or existing leases. For lease terms of twelve months or fewer, a lessee is permitted to make an accounting policy election not to recognize lease assets and liabilities. The Company recognized ROU assets and lease liabilities of $201,180 upon adoption of this standard on January 1, 2022.

 

If any of the following criteria are met, the Company classifies the lease as a finance lease:

The lease transfers ownership of the underlying asset to the lessee by the end of the lease term;

·The lease grants the lessee an option to purchase the underlying asset that the Company is reasonably certain to exercise;

·The lease term is for 75% or more of the remaining economic life of the underlying asset, unless the commencement date falls within the last 25% of the economic life of the underlying asset;

 

·The present value of the sum of the lease payments equals or exceeds 90% of the fair value of the underlying asset; or

 

·The underlying asset is of such a specialized nature that it is expected to have no alternative use to the lessor at the end of the lease term.

Leases that do not meet any of the above criteria are accounted for as operating leases.

 

The Company combines lease and non-lease components in its contracts under Topic 842, when permissible.

 

Operating lease right-of-use (“ROU”) asset and lease liability are recognized at the adoption date of January 1, 2022 or the commencement date, whichever is earlier, based on the present value of lease payments over the lease term. Since the implicit rate for the Company’s leases is not readily determinable, the Company uses its incremental borrowing rate based on the information available at the commencement date in determining the present value of lease payments. The incremental borrowing rate is the rate of interest that the Company would have to pay to borrow, on a collateralized basis, an amount equal to the lease payments, in a similar economic environment and over a similar term.

 

Lease terms used to calculate the present value of lease payments generally do not include any options to extend, renew, or terminate the lease, as the Company does not have reasonable certainty at lease inception that these options will be exercised. The Company generally considers the economic life of its operating lease ROU asset to be comparable to the useful life of similar owned assets. The Company has elected the short-term lease exception, therefore operating lease ROU assets and liabilities do not include leases with a lease term of twelve months or less. Its leases generally do not provide a residual guarantee.

 

The operating lease ROU asset also excludes lease incentives. Lease expense is recognized on a straight-line basis over the lease term for operating lease.

 

The Company reviews the impairment of its ROU asset consistent with the approach applied for its other long-lived assets. The Company reviews the recoverability of its long-lived assets when events or changes in circumstances occur that indicate that the carrying value of the asset may not be recoverable. The assessment of possible impairment is based on its ability to recover the carrying value of the asset from the expected undiscounted future pre-tax cash flows of the related operations. The Company has elected to include the carrying amount of its operating lease liabilities in any tested asset group and includes the associated operating lease payments in the undiscounted future pre-tax cash flows. For the six months ended June 30, 2023 and 2022, the Company did not recognize an impairment loss on its operating lease ROU asset.

F-17

 

 

Recently issued accounting pronouncements

 

In May 2019, the FASB issued ASU 2019-05, which is an update to ASU Update No. 2016-13, Financial Instruments—Credit Losses (Topic 326): Measurement of Credit Losses on Financial Instruments, which introduced the expected credit losses methodology for the measurement of credit losses on financial assets measured at amortized cost basis, replacing the previous incurred loss methodology. The amendments in Update 2016-13 added Topic 326, Financial Instruments—Credit Losses, and made several consequential amendments to the Codification. Update 2016-13 also modified the accounting for available-for-sale debt securities, which must be individually assessed for credit losses when fair value is less than the amortized cost basis, in accordance with Subtopic 326-30, Financial Instruments— Credit Losses—Available-for-Sale Debt Securities. The amendments in this Update address those stakeholders’ concerns by providing an option to irrevocably elect the fair value option for certain financial assets previously measured at amortized cost basis. For those entities, the targeted transition relief will increase comparability of financial statement information by providing an option to align measurement methodologies for similar financial assets. Furthermore, the targeted transition relief also may reduce the costs for some entities to comply with the amendments in Update 2016-13 while still providing financial statement users with decision-useful information. In November 2019, the FASB issued ASU No. 2019-10, to update the effective date of ASU No. 2016-02 for private companies, not-for-profit organizations and certain smaller reporting companies applying for credit losses, leases, and hedging standard. The new effective date for these preparers is for fiscal years beginning after December 15, 2022. The adoption of this standard on January 1, 2023 did not have a material impact on the Company’s unaudited condensed consolidated financial statements.

 

In March 2020, the FASB issued ASU No. 2020-03, Codification Improvements to Financial Instruments, which makes improvements to various financial instruments Topics in the Codification to increase stakeholder awareness of the amendments and to expedite the improvement process. The issues includes: 1) Fair Value Option Disclosures, 2) Applicability of Portfolio Exception in Topic 820 to Nonfinancial Items, 3) Disclosures for Depository and Lending Institutions, 4) Cross-Reference to Line of-Credit or Revolving-Debt Arrangements Guidance in Subtopic 470-50, 5) Cross-Reference to Net Asset Value Practical Expedient in Subtopic 820-10, 6) Interaction of Topic 842 and Topic 326, and 7) Interaction of Topic 326 and Subtopic 860-20. Issue 3 became effective on January 1, 2020 and did not have a material effect on the Company’s unaudited condensed consolidated financial statements. Issue 1, 2, 4 and 5 became effective on January 1, 2021. Issue 6 became effective on January 1, 2022 and 7 became effective on January 1, 2023. The Company adopted this update which became effective on January 1, 2023. Upon adoption of this update, there was no material effect on the Company’s unaudited condensed consolidated financial statements.

  

Except as mentioned above, the Company does not believe other recently issued but not yet effective accounting standards, if currently adopted, would have a material effect on the Company’s consolidated balance sheets, statements of income and statements of cash flows.

 

F-18

 

 

Note 4 – Accounts receivable, net 

 

Accounts receivable, net consists of the following:

 

   June 30,
2023
  December 31,
2022
       
Accounts receivable  $23,240,778   $23,280,417 
Allowance for doubtful accounts   (4,105,725)   (3,189,642)
Total accounts receivable, net  $19,135,053   $20,090,775 

 

Movements of allowance for doubtful accounts are as follows:

 

   June 30,
2023
  December 31,
2022
       
Beginning balance  $3,189,642   $3,004,435 
Addition   1,075,546    555,133 
Recovery or write-off*       (86,994)
Exchange rate effect   (159,463)   (282,932)
Ending balance  $4,105,725   $3,189,642 

 

* The Company recovered account receivable for the year ended December 31, 2022 due to collection of account receivable’s balance that were allowanced in prior period.

 

Note 5 – Contract assets

 

Sewage treatment system revenues are recognized over time using an input measure method (cost-to-cost measure of progress method) to measure progress. Under this method, the extent of progress towards completion is measured based on the ratio of total costs incurred to date to the total estimated costs at completion of the performance obligation. Revenues to date are recognized by applying this ratio to the total contract price of the sewage treatment system revenues.

 

Projects with performance obligations recognized over time that have revenue recognized to date in excess of cumulative billings are reported on the Company’s consolidated balance sheets as “Contract assets”. Provisions for estimated losses of contract assets on uncompleted contracts are made in the period in which such losses are determined.

 

Contract assets that have billing terms with unconditional rights to be billed beyond one year are classified as non-current assets.

 

 Contract assets consist of the following:

 

   June 30,
2023
  December 31,
2022
       
Revenue recognized  $54,906,649   $44,587,741 
Less: progress billings   (24,277,392)   (18,497,351)
Contract assets  $30,629,257   $26,090,390 
Contract assets, current  $18,740,352   $16,821,489 
Contract assets, non-current  $11,888,905   $9,268,901 

 

Note 6 – Property and equipment, net

 

Property and equipment, net consist of the following:

 

   June 30,
2022
  December 31,
2022
       
Building  $1,112,680   $1,154,409 
Equipment   1,838,015    2,298,159 
Office equipment, fixtures and furniture   67,604    70,139 
Automobiles   1,079,496    1,248,848 
Subtotal   4,097,795    4,771,555 
Less: accumulated depreciation   (2,291,817)   (2,574,719)
Property and equipment, net  $1,805,978   $2,196,836 

 

Depreciation expense for the six months ended June 30, 2023 and 2022 amounted to $291,793 and $188,278, respectively.

 

F-19

 

 

Note 7 – Intangible assets, net

 

Intangible assets, net consist of the following:

 

   June 30,
2023
  December 31,
2022
       
Patents  $114,456   $118,749 
Less: accumulated amortization   (93,147)   (90,585)
Intangible assets, net  $21,309   $28,164 

 

Amortization expense for the six months ended June 30, 2023 and 2022 amounted to $6,086 and $5,505, respectively.

 

The estimated amortization is as follows:

 

Twelve months ending June 30,  Estimated
amortization expense
    
2024   $10,473 
2025    10,128 
2026    708 
Total   $21,309 

 

Note 8– Loans to third parties

 

Loans to third parties consist of the following:

 

Borrower name   Maturities   Interest Rate   June 30,
2023
  December 31,
2022
                 
Fujian Mingzheng Construction Development Ltd.   August 2021 (extended to August 2023, repaid in February 2023)     4.4 %   $     $ 14,358  
Jinhuo Chen   January 2021 (extended to January 2024, repaid in February 2023)     4.4 %           43,075  
Shenzhen Ledoufu Information Technology Ltd.   January 2023 (extended to December 2023, repaid in December 2023)     18.0 %     37,366        
Total               $ 37,366     $ 57,433  

     

Note 9 – Other payables and accrued liabilities

 

Other payables and accrued liabilities consist of the following:

 

   June 30,
2023
  December 31,
2022
       
Payables to non-trade vendors and service providers  $1,666,088   $1,618,111 
Salary payable   622,383    808,409 
Total other payables and accrued liabilities  $2,288,471   $2,426,520 

  

F-20

 

 

Note 10 – Related party balances and transactions

 

Related party balances

 

 Other receivables - related parties

 

Name of Related Party  Relationship  Nature  June 30,
2023
  December 31,
2022
Fujian Tantan Technology Co, Ltd (“FJ Tantan”)*  FJ Tantan’s legal representative is the secretary of Fujian Hongfa Group Ltd (“Fujian Hongfa”). Fujian Hongfa is the shareholder of FJ LSY.  Interest free, due December 14, 2023  $109,053   $251,271 
Fuzhou Jinhui Environmental service Co, Ltd (“FZ Jinhui”)*  Fujian Jinshun environmental Co, Ltd (“Jinshun”) is the major shareholder of FZ Jinhui. Weihao Chen is the Major shareholder of Jinshun, and the legal representative of FZ LSY.  Interest free, due on August 31, 2023   5,569    38,405 
Zhaozhao Xu*  General Manager of Chengde CDT Environmental Technology Co., Ltd.  Employee advance   1,399     
Total        $116,021   $289,676 

  

*As of the date of this prospectus, these receivables have been repaid by the related parties.

  

Other payables – related parties

 

Name of Related Party  Relationship  Nature  June 30,
2023
  December 31,
2022
Wanqiang Lin  Director of Ultra HK  Advance payment for operational expenses of the Company pending for reimbursement  $269,928   $271,132 

 

F-21

 

 

Short-term loans - related parties

 

         June 30,  December 31,
Name of Related Party  Relationship  Nature  2023  2022
             
Beijing Minhongyun Energy Supply Co. Ltd.  Yunwu Li, the Company’s Chief Executive Officer and Chairman of the Board of Directors and Chairman of the Board of Directors and General Manager of Shenzhen CDT Environmental Technology Co., Ltd is the director of this entity  Interest-free loan
due on demand
  $1,043,483   $1,082,617 
Shenzhen Li Yaxin Industrial Co., Ltd  Yunwu Li, the Company’s Chief Executive Officer and Chairman of the Company’s Board of Directors and Chairman of the Board of Directors and General Manager of Shenzhen CDT Environmental Technology Co., Ltd., is the sole shareholder of this entity  Interest-free loan
due on demand
   48,438    50,254 
Yunwu Li  Chairman of CDT Environmental Technology Co., Ltd.  Interest-free loan
due on demand
   2,622,197    2,260,144 
Jianzhong Zhao  Legal Representative, General Manager and Director of Hohhot CDT Environmental Technology Co., Ltd.  Interest-free loans, due on December 31, 2020
 (extended to December 31, 2024)
   308,920    286,749 
Jianshan Ma  Director and General Manager of Chengde CDT Environmental Technology Co., Ltd.  Interest-free loans, due on December 31, 2020
 (extended to December 31, 2024)
   121,730    86,516 
Yan Wang  Relative of Ying Wang, Supervisor of Huzhou CDT Environmental Technology Co., Ltd.  Interest-free loans, due on December 31, 2020
 (extended to December 31, 2024)
   106,369    57,161 
Xingsheng Pan  General manager of Shenzhen CDT Environmental Technology Co., Ltd  Interest-free loans, due on demand       374,369 
Yunfang Li  Sibling of Yunwu Li, the Company’s Chief Executive Officer and Chairman of the Board of Directors and Chairman of the Board of Directors and General Manager of Shenzhen CDT Environmental Technology Co., Ltd is the director of this entity  Interest-free loans, due on demand       14,358 
Guangqing shi  General manager of Tianjin CDT Environmental Technology Co., Ltd  Interest-free loans, due on demand       6,277 
Zhaozhao Xu  General manager of Shenzhen CDT Environmental Technology Co., Ltd  Interest-free loans, due on demand       12,923 
Total        $4,251,137   $4,231,368 

 

Interest expense pertaining to the above loans for the six months ended June 30, 2023 and 2022 amounted to $0. 

  

Note 11 – Credit facilities

 

Short-term loans – banks

 

Outstanding balances on short-term bank loans consist of the following:

 

Bank Name   Maturities   Interest Rate   Collateral/ Guarantee   June 30, 2023   December 31, 2022
China Construction Bank   September 2020 (renewed in December 2021, extended to June 2023, and repaid in June 2023)     5 %   Guaranteed by Weihao Chen, General Manager of Fuzhou LSY Environmental Technology Co., Ltd.   $     $ 138,127  
China Construction Bank   December 2023 (repaid in December 2023)     4.2 %   None     70,994       73,658  
China Bank of Communication(1)   August 2023 (repaid in August 2023)     4.9-5 %   Guaranteed by Yunwu Li, Chief Executive Officer and Chairman of the Board of Directors of the Company, and the line of credit is collateralized by a real estate property owned by Yunwu Li.     415,179       430,750  
China Bank of Communication(1)   January 2024 (repaid in January 2024)     4.6 %   Guaranteed by Yunwu Li, Chief Executive Officer and Chairman of the Board of Directors of the Company, and the line of credit is collateralized by a real estate property owned by Yunwu Li.     691,965        
Industrial and Commercial Bank of China   February 2023 (repaid in February 2023)     3.8 %   None           100,508  
Weizhong Bank   August 2023 (repaid in August 2023)     5.9 %   Guaranteed by Yunhui Xu, the legal representative of TY CDT     27,679       37,691  
Weizhong Bank   June 2023 (repaid in June 2023)     5.1 %   Guaranteed by Yunwu Li, Chief Executive Officer and Chairman of the Board of Directors of the Company and Chairman of the Board of Directors and General Manager of Shenzhen CDT Environmental Technology Co., Ltd.           63,177  
China Resource Bank   March 2024 (repaid in March 2024)     5.8 %   None     404,108        
Postal Saving Bank of China (2)   June 2024     5.7 %   Guaranteed by Yunwu Li, Chief Executive Officer and Chairman of the Board of Directors of the Company and Chairman of the Board of Directors and General Manager of Shenzhen CDT Environmental Technology Co., Ltd.     553,572        
Weizhong Bank   February 2025 (3)     6.1-9.7 %   Guaranteed by Yunwu Li, Chief Executive Officer and Chairman of the Board of Directors of the Company and Chairman of the Board of Directors and General Manager of Shenzhen CDT Environmental Technology Co., Ltd.     101,676        
Total                   $ 2,265,173     $ 843,911  

  

F-22

 

 

(1)In August 2022, the Company secured a renewable line of credit (“Line of Credit 1) worth approximately $1.1 million from China Bank of Communication for a two-year period. This line of credit is backed by the guarantee of Yunwu Li, the Chief Executive Officer and Chairman of the Board of Directors of the Company, and it is secured by a real estate property owned by Yunwu Li. As of December 31, 2022, the Company has withdrawn two separate loans with an aggregated total of approximately $0.4 million from Line of Credit 1 that was due in August 2023 with 4.9% to 5.0% interest rate per annum. In August 2023, the Company has repaid $0.4 million to Line of Credit 1.

 

(2)In June 2023, the Company secured a renewable line of credit (“Line of Credit 2”) worth approximately $0.6 million from Postal Savings Bank of China for a two-year term. This line of credit is guaranteed by Yunwu Li, the Chief Executive Officer and Chairman of the Board of Directors of the Company. Simultaneously, on the same date, the Company withdrew approximately $0.6 million from Line of Credit 2, which carries an interest rate of 5.7% and is set to mature in June 2024.

 

  (3) Represent balance due within the next twelve months from below long-term loans – bank.

 

Long-term loans – bank

 

Outstanding balances on long-term bank loans consist of the following:

 

Bank Name  Maturities  Interest
Rate
  Collateral/Guarantee  June 30,
2023
  December 31,
2022
               
Weizhong Bank   July 2023 (renewal to February 2025)    6.1-9.7%   Guaranteed by Yunwu Li, Chief Executive Officer and Chairman of the Board of Directors of the Company and Chairman of the Board of Directors and General Manager of Shenzhen CDT Environmental Technology Co., Ltd.   $67,785   $47,861 

 

Short-term loans – third parties

 

Outstanding balances on long-term third-party loans consist of the following:

 

Lender Name  Maturities  Interest Rate  Collateral/ Guarantee  June 30,
2023
  December 31,
2022
                
Deyun Zhou  February 2023 (repaid in January 2023)   0%   None    $   $71,792 
Lingyu Ye  December 2019
(renewed in December 2020, extended to December 2024)
   0%   None    27,678    28,717 
Runze Li  December 2024   0%   None    85,112    109,267 
Shanghai Xinjing Construction Labor Service Center  August 2021 (extended to June 2024)   0%   None    207,589    215,375 
Xiamen Haosheng Investing Co., Ltd.  April 2020 (extended to April 2024)   0%   None    27,679    28,716 
 Total               $348,058   $453,867 

 

Interest expense pertaining to the above loans for the six months ended June 30, 2023 and 2022 amounted to $47,301 and $36,931, respectively.

 

Note 12 – Taxes

 

Income tax

 

Cayman Islands

 

Under the current laws of the Cayman Islands, the Company is not subject to tax on income or capital gain. Additionally, upon payments of dividends to the shareholders, no Cayman Islands withholding tax will be imposed.

 

F-23

 

 

British Virgin Islands

 

CQ BVI and CDT BVI are incorporated in the British Virgin Islands and are not subject to tax on income or capital gains under current British Virgin Islands law. In addition, upon payments of dividends by these entities to their shareholders, no British Virgin Islands withholding tax will be imposed.

 

Hong Kong

 

Ultra HK and BVI HK are incorporated in Hong Kong and are subject to Hong Kong Profits Tax on the taxable income as reported in its statutory financial statements adjusted in accordance with relevant Hong Kong tax laws. The applicable tax rate is 16.5% in Hong Kong. The Company did not make any provisions for Hong Kong profit tax as there were no assessable profits derived from or earned in Hong Kong since inception.

 

PRC

 

Shenzhen CDT and its subsidiaries are governed by the income tax laws of the PRC and the income tax provision in respect to operations in the PRC is calculated at the applicable tax rates on the taxable income for the periods based on existing legislation, interpretations and practices in respect thereof. Under the Enterprise Income Tax Laws of the PRC (the “EIT Laws”), Chinese enterprises are subject to income tax at a rate of 25% after appropriate tax adjustments. Shenzhen CDT obtained the “high-tech enterprise” tax status in December 2016, which reduced its statutory income tax rate to 15% from December 2016 to November 2019. The Company renewed its “high-tech enterprise” tax status in November 2022 upon expiration of its then current “high-tech enterprise” tax status. The renewal was approved by the PRC tax authority, and the high-tech enterprise tax status will expire in November 2024. Except for Shenzhen CDT, the rest of the PRC subsidiaries benefit from tax rate reduction in accordance with the PRC small business preferential rate policy. Going forward, the future tax rate is determined by the taxable income according to the PRC small business preferential rate policy mentioned above. As a result, PRC subsidiaries except Shenzhen CDT reduced their statutory income tax rate to 2.5% for the six months ended June 30, 2023.

 

Income tax savings due to the preferential rates on taxable subsidiaries for the six months ended June 30, 2023 and 2022 amounted to $136,003 and $149,911, respectively.

 

The Company’s basic and diluted earning per shares would have been lower by $0.01 and $0.02 per share for the six months ended June 30, 2023 and 2022, respectively, without the preferential tax rate reduction.

 

Income tax expense for the six months ended June 30, 2023 and 2022 amounted to $429,197 and $215,944, respectively. The effective tax rate for the six months ended June 30, 2023 and 2022 was 19.2% and 28.1%, respectively.

 

Significant components of the provision for income taxes are as follows:

 

   For the six
months
ended
June 30, 2023
  For the six
months
ended
June 30, 2022
       
Current  $567,487   $538,730 
Deferred   (138,290)   (322,786)
Provision for (benefit from) income taxes  $429,197   $215,944 

 

Deferred tax assets – China and Hong Kong

 

Significant components of deferred tax assets are as follows:

 

   June 30,
2023
  December 31,
2022
       
Allowance for doubtful accounts  $565,440   $444,857 
Net operating loss carryforwards   328,129    321,754 
Valuation allowance   (467,497)   (462,144)
Deferred tax assets, net  $426,072   $304,467 

 

F-24

 

 

As of June 30, 2023 and December 31, 2022, the Company had net operating loss carryforwards of $2,751,630 and $2,387,142, respectively, from the Company’s PRC subsidiaries which were operating at losses, which will expire by December 31, 2028 and 2027, based upon the level of historical operating losses in the Company’s PRC subsidiaries, other than Shenzhen CDT, which were operating at cumulative losses as of June 30, 2023. The Company also had net operating loss carryforwards of $762,576 and $748,817 as of June 30, 2023 and December 31, 2022, respectively, from Company’s Hong Kong subsidiaries which were operating at losses. The Company believes it is less likely than not that its PRC and Hong Kong operations will be able to fully utilize its deferred tax assets related to the net operating loss carryforwards in the PRC and Hong Kong. As a result, the Company provided 100% allowance on all deferred tax assets on the net operating losses of $202,304 and $198,199 related to its operations in the PRC at June 30, 2023 and December 31, 2022, respectively. The Company also provided 100% allowance on all deferred assets on net operating losses of $125,825 and $123,555 related to its operations in Hong Kong at June 30, 2023 and December 31, 2022, respectively.

 

Certain of the Company’s allowances for doubtful accounts are for the Company’s PRC subsidiaries which the Company believes it is less likely than not that its PRC operations, other than Shenzhen CDT will be able to fully utilize its deferred tax assets related to the allowance for doubtful account in the PRC. As a result, the Company provided 100% allowance on all deferred tax assets on the allowance for doubtful accounts of $139,368 and $140,390 related to its operations in the PRC, other than Shenzhen CDT at June 30, 2023 and December 31, 2022.

 

Uncertain tax positions

 

The Company evaluates each uncertain tax position (including the potential application of interest and penalties) based on the technical merits, and measures the unrecognized benefits associated with the tax positions. As June 30, 2023 and December 31, 2022, the Company did not have any significant unrecognized uncertain tax positions.

 

Taxes payable consist of the following: 

 

   June 30,
2023
  December 31,
2022
       
VAT taxes payable  $1,018,432   $1,463,890 
Income taxes payable   3,769,867    3,346,842 
Other taxes payable   8,415    52,845 
Totals  $4,796,714   $4,863,577 

 

Note 13– Concentration of risk

 

Credit risk

 

Financial instruments that potentially subject the Company to significant concentrations of credit risk consist primarily of cash. As of June 30, 2023 and December 31, 2022, $431,873 and $140,681 were deposited with financial institutions located in the PRC, respectively. The deposit insurance system in China only insures each depositor at each bank for a maximum of approximately $77,000 (RMB 500,000). As of June 30, 2023 and December 31, 2022, $90,058 and $0 were over the China deposit insurance limit, respectively. As of June 30, 2023, $19,403 was deposited with financial institutions located in Hong Kong. The deposit insurance system in Hong Kong only insures each depositor at each bank for a maximum of approximately $64,000 (HKD 500,000). As of December 31, 2022, none of these balances are over the Hong Kong Deposit Protection Board limit.

 

The Company is also exposed to risk from its accounts receivable and other receivables. These assets are subjected to credit evaluations. An allowance has been made for estimated unrecoverable amounts which have been determined by reference to past default experience and the current economic environment.

 

F-25

 

 

All of the Company’s expense transactions are denominated in RMB and HKD, and all of the Company and its subsidiaries’ assets and liabilities are denominated in RMB and HKD. RMB is not freely convertible into foreign currencies. In the PRC, certain foreign exchange transactions are required by law to be transacted only by authorized financial institutions at exchange rates set by the People’s Bank of China (“PBOC”). Remittances in currencies other than RMB by the Company in China must be processed through the PBOC or other China foreign exchange regulatory bodies which require certain supporting documentation in order to affect the remittance.

 

The Company’s functional currency is the RMB, and its financial statements are presented in U.S. dollars. The RMB depreciated by 3.75% from December 31, 2022 to June 30, 2023 and depreciated by 9.2% from December 31, 2021 to December 31, 2022. It is difficult to predict how market forces or PRC or U.S. government policies may impact the exchange rate between the RMB and the U.S. dollar in the future. The change in the value of the RMB relative to the U.S. dollar may affect its financial results reported in U.S. dollar terms without giving effect to any underlying changes in its business or results of operations. Currently, the Company’s assets, liabilities, revenues and costs are denominated in RMB.

 

To the extent that the Company needs to convert U.S. dollars into RMB for capital expenditures and working capital and other business purposes, appreciation of RMB against the U.S. dollar would have an adverse effect on the RMB amount the Company would receive from the conversion. Conversely, if the Company decides to convert RMB into U.S. dollars for the purpose of making payments for dividends, strategic acquisitions or investments or other business purposes, appreciation of U.S. dollar against the RMB would have a negative effect on the U.S. dollar amount available to the Company.

 

Customer concentration risk

 

For the six months ended June 30, 2023, two customers accounted for 52.7% and 23.0% of the Company’s total revenues, respectively. For the six months ended June 30, 2022, two customers accounted for 58.4% and 25.7% of the Company’s total revenues, respectively.

 

As of June 30, 2023, three customers accounted for 17.6%, 16.7%, and 10.8% of total balance of accounts receivable, respectively. As of December 31, 2022, four customers accounted for 18.2%, 15.1%, 12.9% and 11.2% of total balance of accounts receivable, respectively.

 

Vendor concentration risk

For the six months ended June 30, 2023, one vendors accounted for 59.5% of the Company’s total purchases, respectively. For the six months ended June 30, 2021, two vendor accounted for 41.8% and 27.1% of the Company’s total purchases, respectively.

  

As of June 30, 2023, three vendors accounted for 12.4%, 11.5%, and 10.8% of total balance of accounts payable, respectively. As of December 31, 2022, two vendors accounted for 12.6% and 10.9% of total balance of accounts payable, respectively.

 

Note 14 – Shareholders’ equity

 

Ordinary shares

 

CDT Cayman was established under the laws of Cayman Islands on November 28, 2016. The authorized number of ordinary shares was 38,000,000 share with a par value of HK$0.01.

 

F-26

 

 

On October 15, 2019, the shareholders of the Company resolved to create an additional 50,000,000 of the authorized ordinary shares with a par value of US$ 0.001 (the “Increase in Share Capital”). Following the Increase in Share Capital, the Company newly issued 23,000,000 ordinary shares with a par value of US$0.001 (the “USD Shares Issued”). Following the USD Shares Issued, the Company repurchased and cancelled 900,000 of the outstanding ordinary shares with a par value of HK$0.01 then issued and outstanding as well as cancelled 38,000,000 of the authorized ordinary shares with a par value of HK$ 0.01.

 

The Company considered the above transactions as a 25.56-for-1 split of its ordinary shares and deemed the cancellation of 900,000 original ordinary shares with par value of HK$ 0.01 and the new issuance of 23,000,000 ordinary shares with par value of US$0.001 were part of the Company’s recapitalization prior to completion of its initial public offering. The Company believed it is appropriate to reflect the above transactions on a retroactive basis similar to stock split or dividend pursuant to FASB ASC 260 “Earnings Per Share”. 

 

On December 30, 2020, the shareholders of the Company resolved to divide 50,000,000 of the authorized ordinary shares with a par value of US$ 0.001 (the “Decrease in Share Capital”) into 20,000,000 of the authorized ordinary shares with a par value of US$0.0025. Following the Decrease in Share Capital, the Company’s then existing 23,000,000 ordinary shares with a par value of US$0.001 were divided into 9,200,000 ordinary shares with a par value of US$0.0025. The Company considered the above transactions as a 1-for-2.5 reverse split of its ordinary shares. The Company believed it is appropriate to reflect the above transactions on a retroactive basis similar to stock split or dividend pursuant to FASB ASC 260. All share and per share amounts used herein and in the accompanying unaudited condensed consolidated financial statements have been retroactively adjusted to reflect the share split.

 

Restricted assets

 

The Company’s ability to pay dividends is primarily dependent on the Company receiving distributions of funds from its subsidiaries. Relevant PRC statutory laws and regulations permit payments of dividends by Shenzhen CDT and its subsidiaries (collectively “CDT PRC entities”) only out of its retained earnings, if any, as determined in accordance with PRC accounting standards and regulations. The results of operations reflected in the accompanying unaudited condensed consolidated financial statements prepared in accordance with U.S. GAAP differ from those reflected in the statutory financial statements of CDT PRC entities.

 

CDT PRC entities are required to set aside at least 10% of their after-tax profits each year, if any, to fund certain statutory reserve funds until such reserve funds reach 50% of its registered capital. In addition, CDT PRC entities may allocate a portion of its after-tax profits based on PRC accounting standards to enterprise expansion fund and staff bonus and welfare fund at its discretion. CDT PRC entities may allocate a portion of its after-tax profits based on PRC accounting standards to a discretionary surplus fund at its discretion. The statutory reserve funds and the discretionary funds are not distributable as cash dividends. Remittance of dividends by a wholly foreign-owned company out of China is subject to examination by the banks designated by State Administration of Foreign Exchange.

 

As a result of the foregoing restrictions, CDT PRC entities are restricted in their ability to transfer their assets to the Company. Foreign exchange and other regulation in the PRC may further restrict CDT PRC entities from transferring funds to the Company in the form of dividends, loans and advances. As of June 30, 2023 and December 31, 2022, amounts restricted are the paid-in-capital and statutory reserve of CDT PRC entities, which amounted to $7,299,386 and $7,092,665, respectively.

 

Statutory reserves

 

During the six months ended June 30, 2023 and 2022, CDT PRC entities collectively attributed $233,128 and $119,797 of retained earnings for their statutory reserves, respectively.

 

F-27

 

 

Note 15 – Leases

As of June 30, 2023, the Company leases one warehouse and three office in varies location within PRC, under non-cancelable operating leases, which lease terms are expired from December 2024 to January 2028. The Company determines if a contract contains a lease at inception. U.S. GAAP requires that the Company’s leases be evaluated and classified as operating or finance leases for financial reporting purposes. The classification evaluation begins at the commencement date and the lease term used in the evaluation includes the non-cancellable period for which the Company has the right to use the underlying asset, together with renewal option periods when the exercise of the renewal option is reasonably certain and failure to exercise such option which result in an economic penalty. The Company’s office and warehouse leases were classified as operating leases. The leases generally do not contain options to extend at the time of expiration. Lease expense for lease payment is recognized on a straight-line basis over the lease terms.

The Company has elected the short-term lease exception; therefore operating leases’ ROU asset and liability do not include leases with a lease term of twelve months or less.

For operating leases that include rent escalation clauses, the Company recognized lease expense on a straight-line basis over the lease term from the date it takes possession of the leased property. The Company records the straight-line lease expense and any contingent rent, if applicable, in general and administrative expenses on the consolidated statements of income and comprehensive income.

During the year ended December 31, 2022 and the six months ended June 30, 2023, the Company recognized $407,446 and $0 of initial ROU assets and same amount of operating lease liability based on the present value of the future minimum rental payments of leases by using a weighted-average incremental borrowing rate of 5.5%. As of June 30, 2023 and December 31, 2022, the weighted-average lease term was 3.2 years and 4.7 years for the remaining leases, respectively. The Company’s lease agreements do not contain any material residual value guarantees or material restrictive covenants. The Company’s lease liabilities under the remaining operating leases as of June 30, 2023 for the next five years is as follows:

 

Twelve months ending June 30,  Operating lease payment
    
2024   $122,280 
2025    77,874 
2026    33,754 
2027    34,767 
2028 and thereafter    20,785 
Total undiscounted lease payments    289,460 
Less imputed interest    (27,569)
Total lease liabilities   $261,891 

Rent expense for the six months ended June 30, 2023 and 2022 was $124,061 and $186,301, including short-term lease expense with lease term of twelve months or less, amounted to $66,197 and $175,754, respectively.

 

Note 16 – Commitments and contingencies

 

Legal contingencies

 

From time to time, the Company is party to certain legal proceedings, as well as certain asserted and un-asserted claims. Amounts accrued, as well as the total amount of reasonably possible losses with respect to such matters, individually and in the aggregate, are not deemed to be material to the consolidated financial statements.

  

Note 17 – Enterprise wide disclosure

 

The Company follows FASB ASC 280, Segment Reporting, which requires companies to disclose segment data based on how management makes decision about allocating resources to each segment and evaluating their performances. The Company’s chief operating decision-makers (i.e., the Company’s chief executive officer and his direct reports, including the Company’s chief financial officer) review financial information presented on a consolidated basis, accompanied by disaggregated information about revenues, cost of revenues, and gross profit by business lines (sewage treatment systems and sewage treatment services) for purposes of allocating resources and evaluating financial performance. There are no segment managers who are held accountable for operations, operating results and plans for levels or components below the consolidated unit level. In addition, all of the Company’s long-lived assets are located in the PRC and all of the Company’s revenues are derived solely from the PRC, accordingly, no geographical information is presented. Based on qualitative and quantitative criteria established by FASB ASC 280, the Company considers itself to be operating within one reportable segment.

 

F-28

 

 

Disaggregated information of revenues, cost of revenues and gross profit by business lines are as follows:

 

   For the six months ended
   June 30, 2023  June 30, 2022
       
Sewage treatment systems  $14,445,779   $11,935,083 
Sewage treatment services and others   1,018,024    931,881 
Total revenues  $15,463,803   $12,866,964 

 

   For the six months ended
   June 30, 2023  June 30, 2022
       
Sewage treatment systems  $9,947,063   $7,567,370 
Sewage treatment services and others   692,580    612,539 
Total cost of revenues  $10,639,643   $8,179,909 

 

   For the six months ended
   June 30, 2023  June 30, 2022
       
Sewage treatment systems  $4,498,716   $4,367,713 
Sewage treatment services and others   325,444    319,342 
Total gross profit  $4,824,160   $4,687,055 

 

Note 18 – Subsequent events

 

In preparing these unaudited condensed consolidated financial statements, the Company has evaluated events and transactions for potential recognition or disclosure through the date of this audit report. No other events require adjustment to or disclosure in the unaudited condensed consolidated financial statements other than the following:

 

In August 2023, the Company repaid approximately $0.4 million from Line of Credit 1 and withdrew another approximately $0.4 million from Line of Credit 1, which bears an interest rate of 4.5% and is set to mature in July 2024.

In November 2023, the Company entered into a loan agreement with Bank of China to obtain a loan amounting to $431,034 at an interest rate of 3.9% per annum. This loan is scheduled to mature in November 2024.

In November 2023, the Company entered into a loan agreement with Weizhong Bank to obtain a loan amounting to $110,714 at an interest rate of 6.1% per annum. This loan is scheduled to mature in November 2025.

In December 2023, the Company entered into a loan agreement with Construction Bank of China to obtain a loan amounting to $51,205 at an interest rate of 4.0% per annum. This loan is scheduled to mature in December 2024.

F-29

 

 

REPORT OF INDEPENDENT REGISTERED PUBLIC ACCOUNTING FIRM

 

To the Board of Directors and Shareholders of

CDT Environmental Technology Investment Holdings Limited

 

Opinion on the Consolidated Financial Statements

 

We have audited the accompanying consolidated balance sheets of CDT Environmental Technology Investment Holdings Limited and subsidiaries (the “Company”) as of December 31, 2022 and 2021, and the related consolidated statements of income and comprehensive income (loss), changes in shareholders’ equity, and cash flows for each of the years in the two-year period ended December 31, 2022, and the related notes (collectively referred to as the “consolidated financial statements”). In our opinion, the consolidated financial statements present fairly, in all material respects, the financial position of the Company as of December 31, 2022 and 2021, and the results of its operations and its cash flows for each of the years in the two-year period ended December 31, 2022, in conformity with accounting principles generally accepted in the United States of America.

 

Basis for Opinion

 

These consolidated financial statements are the responsibility of the Company’s management. Our responsibility is to express an opinion on the Company’s consolidated financial statements based on our audits. We are a public accounting firm registered with the Public Company Accounting Oversight Board (United States) (PCAOB) and are required to be independent with respect to the Company in accordance with the U.S. federal securities laws and the applicable rules and regulations of the Securities and Exchange Commission and the PCAOB.

 

We conducted our audits in accordance with the standards of the PCAOB. Those standards require that we plan and perform the audit to obtain reasonable assurance about whether the consolidated financial statements are free of material misstatement, whether due to error or fraud. The Company is not required to have, nor were we engaged to perform, an audit of its internal control over financial reporting. As part of our audits, we are required to obtain an understanding of internal control over financial reporting, but not for the purpose of expressing an opinion on the effectiveness of the Company’s internal control over financial reporting. Accordingly, we express no such opinion.

 

Our audits included performing procedures to assess the risks of material misstatement of the consolidated financial statements, whether due to error or fraud, and performing procedures that respond to those risks. Such procedures included examining, on a test basis, evidence regarding the amounts and disclosures in the consolidated financial statements. Our audits also included evaluating the accounting principles used and significant estimates made by management, as well as evaluating the overall presentation of the financial statements. We believe that our audits provide a reasonable basis for our opinion.

 

/s/ Wei, Wei & Co., LLP

We have served as the Company’s auditors since 2022.

Flushing, New York

 

November 20, 2023

 

F-30

 

 

CDT ENVIRONMENTAL TECHNOLOGY INVESTMENT HOLDINGS LIMITED AND SUBSIDIARIES
 
CONSOLIDATED BALANCE SHEETS

 

    December 31,   December 31,
    2022   2021
         
ASSETS                
CURRENT ASSETS                
Cash   $ 199,864     $ 1,092,783  
Restricted cash           42,179  
Accounts receivable, net     20,090,775       14,671,310  
Other receivables, net     208,704       252,218  
Other receivables - related parties     289,676       274,480  
Loans to third parties     57,433       62,738  
Contract assets     16,821,489       15,647,217  
Contract costs     899,662       1,764,109  
Deferred costs     45,727        
Prepayments and other current assets, net     2,354,769       3,760,861  
Total current assets     40,968,099       37,567,895  
                 
PROPERTY AND EQUIPMENT, NET     2,196,836       2,818,469  
                 
OTHER ASSETS                
Intangible assets, net     28,164       10,383  
Deferred tax assets, net     304,467       367,744  
Contract assets, noncurrent     9,268,901       30,235  
Prepaid initial public offering ("IPO") costs     833,817       458,720  
Right-of-use assets, net     310,443        
Total other assets     10,745,792       867,082  
                 
Total assets   $ 53,910,727     $ 41,253,446  
                 
LIABILITIES AND SHAREHOLDERS' EQUITY                
CURRENT LIABILITIES                
Short-term loans - banks   $ 843,911     $ 982,637  
Short-term loans - third parties     453,867       376,429  
Accounts payable     14,862,676       10,298,480  
Other payables and accrued liabilities     2,426,520       2,313,811  
Other payables - related parties     271,132       289,829  
Short-term loans - related parties     4,231,368       542,492  
Lease liabilities     87,212        
Contract liabilities     29,196       28,179  
Taxes payable     4,863,577       3,893,866  
Total current liabilities     28,069,459       18,725,723  
                 
OTHER LIABILITIES                
Long-term loan - bank     47,861       135,489  
Lease liabilities, non-current     233,496        
Total other liabilities     281,357       135,489  
                 
Total liabilities     28,350,816       18,861,212  
                 
COMMITMENTS AND CONTINGENCIES                
                 
SHAREHOLDERS' EQUITY                
Ordinary shares, $0.0025 par value, 20,000,000 shares authorized, and 9,200,000 shares                
outstanding as of December 31, 2022 and 2021     23,000       23,000  
Additional paid-in capital     7,453,265       7,453,265  
Statutory reserves     2,396,539       1,761,628  
Retained earnings     16,621,556       11,474,449  
Accumulated other comprehensive (loss) income     (1,490,621 )     559,753  
Total CDT Environmental Technology Investment Holdings Limited shareholders' equity     25,003,739       21,272,095  
                 
Noncontrolling interests     556,172       1,120,139  
Total shareholders' equity     25,559,911       22,392,234  
                 
Total liabilities and shareholders' equity   $ 53,910,727     $ 41,253,446  

The accompanying notes are an integral part of these consolidated financial statements.

 

F-31

 

 

CDT ENVIRONMENTAL TECHNOLOGY INVESTMENT HOLDINGS LIMITED AND SUBSIDIARIES
 
CONSOLIDATED STATEMENTS OF INCOME AND COMPREHENSIVE INCOME

 

   For the Years Ended
   December 31,
   2022  2021
       
REVENUES          
Sewage treatment systems  $26,552,481   $20,272,996 
Sewage treatment services and others   2,296,881    3,283,824 
Total revenues   28,849,362    23,556,820 
           
COST OF REVENUES          
Sewage treatment systems   17,170,669    12,816,882 
Sewage treatment services and others   1,425,538    2,245,608 
Total cost of revenues   18,596,207    15,062,490 
           
GROSS PROFIT   10,253,155    8,494,330 
           
OPERATING EXPENSES:          
Selling   164,583    177,147 
General and administrative   3,150,512    2,400,318 
Research and development   112,668    136,690 
Provision for (recovery from) doubtful accounts   471,454    (1,865,622)
Total operating expenses   3,899,217    848,533 
           
INCOME FROM OPERATIONS   6,353,938    7,645,797 
           
OTHER INCOME (EXPENSE)          
Interest income   13,437    89,510 
Interest expense   (64,658)   (68,656)
Other income (expense), net   93,035    119,419 
Total other income (expense), net   41,814    140,273 
           
INCOME BEFORE INCOME TAXES   6,395,752    7,786,070 
           
INCOME TAXES EXPENSE   1,152,963    1,207,810 
           
NET INCOME   5,242,789    6,578,260 
           
Less: net loss attributable to noncontrolling interest   (539,229)   (197,479)
           
NET INCOME ATTRIBUTABLE TO          
CDT ENVIRONMENTAL TECHNOLOGY INVESTMENT HOLDINGS LIMITED  $5,782,018   $6,775,739 
           
NET INCOME   5,242,789    6,578,260 
           
FOREIGN CURRENCY TRANSLATION ADJUSTMENT   (2,110,311)   428,196 
           
TOTAL COMPREHENSIVE INCOME   3,132,478    7,006,456 
           
Less: Comprehensive loss attributable to noncontrolling interest   (599,166)   (116,532)
           
COMPREHENSIVE INCOME ATTRIBUTABLE TO          
CDT ENVIRONMENTAL TECHNOLOGY INVESTMENT HOLDINGS LIMITED  $3,731,644   $7,122,988 
           
WEIGHTED AVERAGE NUMBER OF ORDINARY SHARES          
Basic and diluted   9,200,000    9,200,000 
           
EARNINGS PER SHARE          
Basic and diluted  $0.63   $0.74 

 

The accompanying notes are an integral part of these consolidated financial statements.

 

F-32

 

 

CDT ENVIRONMENTAL TECHNOLOGY INVESTMENT HOLDINGS LIMITED AND SUBSIDIARIES
 
CONSOLIDATED STATEMENTS OF CHANGE IN SHAREHOLDERS' EQUITY

 

   Ordinary shares  Additional  Retained earnings  Accumulated other  Noncontrolling   
   Shares  Par value  paid-in capital  Statutory reserves  Unrestricted  comprehensive Income (loss)  interest  Total
BALANCE, December 31,2020   9,200,000   $23,000   $7,453,265   $1,061,217   $5,399,121   $212,504   $1,236,671   $15,385,778 
Net Income                    6,775,739        (197,479)   6,578,260 
Statutory reserve               700,411    (700,411)            
Foreign currency translation adjustment                       347,249    80,947    428,196 
BALANCE, December 31, 2021   9,200,000   $23,000   $7,453,265   $1,761,628   $11,474,449   $559,753   $1,120,139   $22,392,234 
Net income                   5,782,018        (539,229)   5,242,789 
Statutory reserve               634,911    (634,911)            
Derecognition of noncontrolling interest upon disposal of a subsidiary                           35,199    35,199 
Foreign currency translation adjustment                       (2,050,374)   (59,937)   (2,110,311)
BALANCE, December 31, 2022   9,200,000   $23,000   $7,453,265   $2,396,539   $16,621,556   $(1,490,621)  $556,172   $25,559,911 

 

The accompanying notes are an integral part of these consolidated financial statements.

 

F-33

 

 

CDT ENVIRONMENTAL TECHNOLOGY INVESTMENT HOLDINGS LIMITED AND SUBSIDIARIES
 
CONSOLIDATED STATEMENTS OF CASH FLOWS

 

   For the Years Ended
   December 31,
   2022  2021
CASH FLOWS FROM OPERATING ACTIVITIES:          
Net income  $5,242,789   $6,578,260 
Adjustments to reconcile net income to net cash used in          
operating activities:          
Depreciation   383,827    282,838 
Amortization of intangible assets   14,434    10,369 
Provision for (recovery from) doubtful accounts   471,454    (1,865,622)
Loss on disposal of a subsidiary   13,162     
Amortization of right-of-use assets   85,995     
Deferred tax expense   33,323    303,049 
Change in operating assets and liabilities          
Accounts receivable   (7,364,305)   (453,313)
Other receivables   (119,353)   50,253 
Employee advances - related parties       28,378 
Contract assets   (12,154,800)   (10,936,944)
Contract costs   740,644    8,680 
Deferred costs   (47,348)    
Prepayments and other current assets   1,267,770    (1,189,385)
Accounts payable   5,627,716    5,852,143 
Other payables and accrued liabilities   58,676    463,911 
Contract liabilities   3,520     
Lease liabilities   (75,365)    
Taxes payable   1,345,081    737,744 
Net cash used in operating activities   (4,472,780)   (129,639)
           
CASH FLOWS FROM INVESTING ACTIVITIES:          
Purchases of equipment   (53,187)   (101,279)
Purchases of intangible assets   (33,754)    
Repayments from third parties       1,578,067 
Repayments from related parties   (7,511)   356,049 
Net cash provided by (used in) investing activities   (94,452)   1,832,837 
           
CASH FLOWS FROM FINANCING ACTIVITIES:          
Prepaid initial public offering ("IPO") costs   (68,858)   (102,766)
Proceeds from short-term loans - banks   716,470    932,031 
Repayments of short-term loans - banks   (891,981)   (1,212,121)
Proceeds from long-term loan - bank   187,627    155,003 
Repayments of long-term loan - bank   (148,600)   (21,106)
Proceeds from (repayments of) short-term loans - third parties, net   113,141    (363,960)
Repayments of other payables - related parties, net   (39,767)   (67,740)
Proceeds from (repayments of) short-term loans - related parties, net   3,864,710    (247,167)
Net cash provided by (used in) financing activities   3,732,742    (927,826)
           
EFFECT OF EXCHANGE RATE CHANGES   (100,608)   (4,106)
           
NET CHANGE IN CASH AND RESTRICTED CASH   (935,098)   771,266 
           
CASH AND RESTRICTED CASH, BEGINNING OF YEAR   1,134,962    363,696 
           
CASH AND RESTRICTED CASH, END OF YEAR  $199,864   $1,134,962 
           
SUPPLEMENTAL CASH FLOW INFORMATION:          
Cash paid for income tax  $2,572   $22,640 
Cash paid for interest  $64,658   $58,709 
           
SUPPLEMENTAL NON-CASH INVESTING AND FINANCING INFORMATION:          
Initial recognition of operating right of use asset and lease liability upon commencement date for new lease and adoption date of ASU 2016-02, “Leases” (Topic 842) for existing leases  $407,446   $ 
Recognition of other receivables from third party upon disposal of a subsidiary  $4,460   $ 

 

The following table provides a reconciliation of cash and restricted cash reported within the statement of financial position that sum to the total of the same amounts shown in the statement of cash flows:

 

   December 31,  December 31,
   2022  2021
       
Cash  $199,864   $1,092,783 
Restricted cash       42,179 
Total cash and restricted cash shown in the consolidated statements of cash flows  $199,864   $1,134,962 

   

The accompanying notes are an integral part of these consolidated financial statements.

 

F-34

 

 

CDT ENVIRONMENTAL TECHNOLOGY INVESTMENT HOLDINGS LIMITED AND SUBSIDIARIES

 

NOTES TO CONSOLIDATED FINANCIAL STATEMENTS 

 

(In U.S. dollars, unless stated otherwise)

 

Note 1– Nature of business and organization

 

CDT Environmental Technology Investment Holdings Limited (“CDT Cayman” or the “Company”) is a holding company incorporated on November 28, 2016, under the laws of the Cayman Islands. The Company has no substantive operations other than holding all of the outstanding equity of Chao Qiang Holdings Limited (“CQ BVI”) established under the laws of the British Virgin Islands on December 14, 2015 and all of the outstanding equity of CDT Environmental Technology Group Limited (“CDT BVI”) established under the laws of the British Virgin Islands on June 26, 2015.

 

CQ BVI is a holding company holding all of the outstanding equity of Ultra Leader Investments Limited (“Ultra HK”) which was established in Hong Kong on February 27, 2015. Ultra HK is a holding company holding 15% of the outstanding equity of Shenzhen CDT Environmental Technology Co., Ltd. (“Shenzhen CDT”) which was established on August 27, 2012 under the laws of the People’s Republic of China (“PRC” or “China”).

 

CDT BVI is a holding company holding all of the outstanding equity of CDT Environmental Technology (Hong Kong) Limited (“CDT HK”) which was established in Hong Kong on July 30, 2015. CDT HK is also a holding company holding 85% of the outstanding equity of Shenzhen CDT. The Company, through Ultra HK and CDT HK, holds 100% of the outstanding equity of Shenzhen CDT.

 

The Company, through its wholly owned subsidiary, Shenzhen CDT, and its subsidiaries, engages in developing, producing, selling and installing sewage treatment systems and providing sewage treatment services. The Company focuses on the harmless treatment of municipal and rural cesspool, pipe dredging, treatment of inland river sludge and rural sewage treatment, and providing one-stop solutions.

 

The accompanying consolidated financial statements reflect the activities of CDT Cayman and each of the following entities:

 

Name   Background   Ownership
Chao Qiang Holdings Limited (“CQ BVI”)  

● A British Virgin Islands company

● Incorporated on December 14, 2015

● A holding company

  100% owned by CDT Cayman
CDT Environmental Technology Group Limited (“CDT BVI”)  

● A British Virgin Islands company

● Incorporated on June 26, 2015

● A holding company

  100% owned by CDT Cayman
Ultra Leader Investments Limited (“Ultra HK”)  

● A Hong Kong company

● Incorporated on February 27, 2015

● A holding company

  100% owned by CQ BVI
CDT Environmental Technology (Hong Kong) Limited (“CDT HK”)  

● A Hong Kong company

● Incorporated on July 30, 2015

● A holding company

  100% owned by CDT BVI

Shenzhen CDT Environmental Technology Co., Ltd.

(“Shenzhen CDT”)

 

● A PRC limited liability company

● Incorporated on August 27, 2012

● Registered capital of RMB 60,000,000

● Developing, producing, selling and installing sewage treatment systems and providing sewage treatment services

  100% collectively owned by Ultra HK (15%) and CDT HK (85%)

Beijing CDT Environmental Technology Co., Ltd.

(“BJ CDT”)

 

● A PRC limited liability company

● Incorporated on April 25, 2016

● Registered capital of RMB 20,000,000

● Providing sewage treatment services

  100% owned by Shenzhen CDT

Fuzhou LSY Environmental Technology Co., Ltd.

(“FJ LSY”)

 

● A PRC limited liability company

● Incorporated on March 13, 2015

● Registered capital of RMB 5,000,000

● Providing sewage treatment services

  51% owned by Shenzhen CDT

 

F-35

 

 

Tianjin CDT Environmental Technology Co., Ltd.

(“TJ CDT”)

 

● A PRC limited liability company

● Incorporated on October 22, 2014

● Registered capital of RMB 10,000,000

● Providing sewage treatment services

  100% owned by Shenzhen CDT

Chengde CDT Environmental Technology Co., Ltd.

(“CD CDT”)

 

● A PRC limited liability company

● Incorporated on March 26, 2015

● Registered capital of RMB 5,000,000

● Providing sewage treatment services

  51% owned by Shenzhen CDT

Beijing Innovation CDT Environmental Technology Co., Ltd.

(“BJ CX CDT”)

 

● A PRC limited liability company

● Incorporated on September 7, 2016

● Registered capital of RMB 5,000,000

● Providing sewage treatment services

  51% owned by Shenzhen CDT

Baoding CDT Environmental Technology Co., Ltd.

(“BD CDT”)

 

● A PRC limited liability company

● Incorporated on October 21, 2015

● Registered capital of RMB 5,000,000

● Providing sewage treatment services

  51% owned by Shenzhen CDT

Hengshui CDT Environmental Technology Co., Ltd.

(“HS CDT”)

 

● A PRC limited liability company

● Incorporated on May 18, 2015

● Registered capital of RMB 3,000,000

● Providing sewage treatment services

  51% owned by Shenzhen CDT

Guangxi CWT Environmental Technology Co., Ltd.

(“GX CDT”)

 

● A PRC limited liability company

● Incorporated on January 29, 2016

● Registered capital of RMB 5,000,000

● Providing sewage treatment services

  51% owned by Shenzhen CDT

Huzhou CDT Environmental Technology Co., Ltd.

(“HZ CDT”)

 

● A PRC limited liability company

● Incorporated on February 6, 2015

● Registered capital of RMB 5,000,000

● Providing sewage treatment services

  51% owned by Shenzhen CDT

 

Hohhot CDT Environmental Technology Co., Ltd.

(“HHHT CDT”)

 

● A PRC limited liability company

● Incorporated on February 11, 2015

● Registered capital of RMB 5,000,000

● Providing sewage treatment services

  51% owned by Shenzhen CDT

Taiyuan CDT Environmental Technology Co., Ltd.

(“TY CDT”)

 

● A PRC limited liability company

● Incorporated on March 23, 2015

● Registered capital of RMB 5,000,000

● Providing sewage treatment services

  51% owned by Shenzhen CDT

Xiamen YDT Environmental Technology Co., Ltd.

(“XM YDT”) (1)

 

● A PRC limited liability company

● Incorporated on April 9, 2015

● Registered capital of RMB 5,000,000

● Providing sewage treatment services

  51% owned by Shenzhen CDT

 

(1) In January 2022, the Company disposed of its entire 51% ownership in XM YDT and transferred its ownership to a third party for consideration of approximately $5,000. The disposal of XM YDT did not have a material impact on the Company’s consolidated financial statements. 

 

F-36

 

 

Note 2 – Liquidity

  

 

In assessing the Company’s liquidity, the Company monitors and analyzes its cash on-hand and its operating requirements and capital expenditure commitments. The Company’s liquidity needs are to meet its working capital requirements, operating expenses and capital expenditure obligations.

 

The Company engages in installing sewage treatment systems and providing sewage treatment services in both urban and rural areas. The Company’s business is capital intensive. Working capital was approximately $12.9 million as of December 31, 2022, as compared to approximately $18.8 million as of December 31, 2021. As of December 31, 2022, cash on-hand balance was approximately $0.2 million. In addition to cash on-hand, the Company also has other current assets mainly composed of accounts receivable, contract assets, and contract costs. The Company had accounts receivable, net of approximately $20.1 million, and contract assets of approximately $16.8 million on December 31, 2022, all of which are short-term in nature and should be collected and utilized within the Company’s operating cycle to be used to support the Company’s working capital needs. 

 

Although the Company believes that it can realize its current assets in the normal course of business, its ability to repay its current obligations will depend on the future realization of its current assets. Management has considered historical experience, the economic environment, trends in the sewage treatment industry, and the expected collectability of accounts receivable and contract assets as of December 31, 2022. The Company expects to realize these outstanding balances, net of allowance within the normal operating cycle of twelve-months. As of date of this prospectus, the Company has received approximately $10.7 million of its accounts receivable. If the Company is unable to realize its current assets within the normal twelve-month operating cycle, the Company may have to consider supplementing its available sources of funds through the following:

 

Financing from the Company’s officers/shareholders; and
Other available sources of financing from PRC banks, other financial institutions and related parties, given the Company’s credit history.

 

Based on the above considerations, management believes that the Company has sufficient funds to meet its working capital requirements and debt obligations, for at least the next 12 months from the filing date of these consolidated financial statements. However, there is no assurance that management will be successful in their plans. There are a number of factors that could potentially arise that could undermine the Company’s plans, such as changes in the demand for its services, economic conditions, competitive pricing in the sewage treatment services industry, its operating results may deteriorate and its bank and shareholders may not provide continued financial support.

 

Note 3 – Summary of significant accounting policies

 

Basis of presentation

 

The accompanying consolidated financial statements have been prepared in accordance with accounting principles generally accepted in the United States of America (“U.S. GAAP”) for information pursuant to the rules and regulations of the Securities Exchange Commission (“SEC”).

 

Principles of consolidation

 

The consolidated financial statements include the financial statements of the Company and its subsidiaries. All transactions and balances among the Company and its subsidiaries have been eliminated upon consolidation.

 

Subsidiaries are those entities in which the Company, directly or indirectly, controls more than one half of the voting power; or has the power to govern the financial and operating policies, to appoint or remove the majority of the members of the board of directors, or to cast a majority of votes at the meeting of directors. 

 

Noncontrolling interest represents the portion of the net assets of a subsidiary attributable to interests that are not owned by the Company. The noncontrolling interest is presented in the consolidated balance sheets, separately from equity attributable to the shareholders of the Company. Noncontrolling interest’s operating results are presented on the face of the consolidated statements of income and comprehensive income as an allocation of the total income for the year between noncontrolling shareholders and the shareholders of the Company.

 

F-37

 

 

Use of estimates and assumptions

 

The preparation of consolidated financial statements in conformity with U.S. GAAP requires management to make estimates and assumptions that affect the reported amounts of assets and liabilities and disclosures of contingent assets and liabilities as of the date of the consolidated financial statements and the reported amounts of revenues and expenses during the periods presented. Significant accounting estimates reflected in the Company’s consolidated financial statements include the estimated cost or input measure method used to calculate the revenue recognized in the Company’s sewage treatment systems installation business, the useful lives of property and equipment and intangible assets, impairment of long-lived assets, allowance for doubtful accounts and allowance for deferred tax assets and uncertain tax position. Actual results could differ from these estimates.

 

Foreign currency translation and transaction

 

The reporting currency of the Company is the U.S. dollar. The Company in China conducts its businesses in the local currency, Renminbi (RMB), as its functional currency. Assets and liabilities are translated at the unified exchange rate as quoted by the People’s Bank of China at the end of the period. The statements of income accounts are translated at the average translation rates and the equity accounts are translated at historical rates. Translation adjustments resulting from this process are included in accumulated other comprehensive income (loss). Transaction gains and losses that arise from exchange rate fluctuations on transactions denominated in a currency other than the functional currency are included in the results of operations as incurred.

 

Translation adjustments included in accumulated other comprehensive income (loss) amounted to ($1,490,621) and $559,752 as of December 31, 2022 and 2021, respectively. The balance sheet amounts, with the exception of shareholders’ equity at December 31, 2022 and December 31, 2021 were translated at RMB 6.96 and RMB 6.38 to $1.00, respectively, and at HKD 7.80 to $1.00. The shareholders’ equity accounts are stated at their historical exchange rates. The average translation rates applied to the statements of income accounts for the years ended December 31, 2022 and 2021 were RMB 6.73 and RMB 6.45 to $1.00, respectively, and were HKD 7.83 and HKD 7.77 to $1.00, respectively. Cash flows are also translated at average translation rates for the periods, therefore, amounts reported on the statements of cash flows will not necessarily agree with changes in the corresponding balances on the consolidated balance sheets.

 

Cash and restricted cash

 

Cash consists of cash on hand and deposits placed with banks or other financial institutions and have original maturities of less than three months. Restricted cash consists of deposits which are required to be withheld in the bank by the Company to compensate the customer in case of breach of contract.

 

The statements of cash flows of the Company explain the change during the year in the total of cash and amounts generally described as restricted cash or restricted cash equivalents.

 

Accounts receivable, net

 

Accounts receivable include trade accounts due from customers. In establishing the required allowance for doubtful accounts, management considers historical collection experience, aging of the receivables, the economic environment, industry trend analysis, and the credit history and financial conditions of the customers. Management reviews its account receivables on a regular basis to determine if the bad debt allowance is adequate and adjusts the allowance when necessary. Delinquent account balances are written-off against allowance for doubtful accounts after management has determined that the likelihood of collection is not probable. 

 

F-38

 

 

Other receivables, net

 

Other receivables primarily include advances to employees, and other deposits. Management regularly reviews the aging of receivables and changes in payment trends and records allowances when management believes collection of amounts due are at risk. Accounts considered uncollectable are written off against the allowance after exhaustive efforts at collection are made. As of December 31, 2022 and 2021, the allowance for the doubtful accounts for other receivables was $474,758 and $387,019, respectively. For the years ended December 31, 2022 and 2021, the bad debt expense for other receivables amounted to $144,415 and $37,032, respectively.

 

Contract assets and contract liabilities

 

Projects with performance obligations recognized over time that have revenue recognized to date in excess of cumulative billings are reported on our consolidated balance sheets as “Contract assets”. Provisions for estimated losses of contract assets on uncompleted contracts are made in the period in which such losses are determined.

 

Contract assets having billing terms with the unconditional right to be billed beyond one year are classified as non-current assets.

 

Contract liabilities on uncompleted contracts represent the amounts of cash collected from clients, billings to clients on contracts in advance of work performed and revenue recognized. The majority of these amounts are expected to be earned within twelve months and are classified as current liabilities.

 

Contract costs

 

Contract costs incurred during the initial phases of the Company’s sales contracts are capitalized when the costs relate directly to the contract, are expected to be recovered, and generate or enhance resources to be used in satisfying the performance obligation and such deferred costs will be recognized upon the recognition of the related revenue. These costs primarily consist of labor and material costs directly related to the contract. As of December 31, 2022, the Company has recorded approximately $0.9 million of contract costs which consisted of one sewage treatment system project that the Company completed in March 2023. As of the date of this prospectus, the Company has realized approximately $0.9 million contract costs upon recognition of the related revenue.

 

The Company performs periodic reviews to assess the recoverability of the contract costs. The carrying amount of the asset is compared to the remaining amount of consideration that the Company expects to receive for the services to which the asset relates, less the costs that relate directly to providing those services that have not yet been recognized. If the carrying amount is not recoverable, an impairment loss is recognized. For the years ended December 31, 2022 and 2021, no impairment loss was recognized.

 

Deferred Cost

 

The Company recognizes deferred cost from costs to fulfill a contract with a client if the costs are specifically identifiable, generate or enhance resources used to satisfy future performance obligations, and are expected to be recovered. The Company determined that substantially all costs related to implementation activities are administrative in nature and meet the capitalization criteria under Accounting Standards Codification (“ASC”) 340-40. These capitalized costs principally relate to upfront direct costs to obtain the contract.

 

Prepayments, net

Prepayments are cash deposited or advanced to suppliers for future inventory purchases or service providers for future services. These amounts are refundable and bear no interest. Prepayments also consist of prepaid consulting fees remitted to third parties in acquiring contracts with customers. Such consulting fee is refundable if the contract with the customer is not signed within the certain period indicated in the consulting service contract term. As of December 31, 2022, the Company has recorded approximately $1.8 million of prepaid consulting fees in prepayments related to obtaining two contracts with customers. However, as of the date of this prospectus, the Company has not secured these two contracts through the bidding process. The Company has already collected approximately $1.6 million in prepaid consulting fees for the mentioned contracts and expects to collect the remaining amount by December 2023.

 

F-39

 

 

For any prepayments determined by management that will not be completed by the receipt of inventories, services, or refunded, the Company will recognize an allowance account to reserve for such balances. Management reviews its advances to suppliers on a regular basis to determine if the valuation allowance is adequate, and adjusts the allowance when necessary. Delinquent account balances are written-off against allowance after management has determined that the likelihood of completion or collection is not probable. The Company’s management continues to evaluate the reasonableness of the valuation allowance policy and update it if necessary. As of December 31, 2022 and December 31, 2021, valuation allowance for prepayments was $171,286 and $335,962, respectively.

 

Property and equipment, net

 

Property and equipment are stated at cost less accumulated depreciation. Depreciation is computed using the straight-line method over the estimated useful lives of the assets. The estimated useful lives are as follows:

 

    Useful Life
Building   45 years
Equipment   4 - 10 years
Office equipment, fixtures and furniture   3 - 5 years
Automobiles   5 - 10 years

 

The cost and related accumulated depreciation of assets sold or otherwise retired are eliminated from the accounts and any gain or loss is included in the consolidated statements of income and comprehensive income (loss). Expenditures for maintenance and repairs are charged to operations as incurred, while additions, renewals and betterments, which are expected to extend the useful life of assets, are capitalized. The Company also re-evaluates the periods of depreciation to determine whether subsequent events and circumstances warrant revised estimates of useful lives.

 

Intangible assets, net

 

The Company’s acquired intangible assets with definite useful lives only consist of patents. The Company amortizes its intangible assets with definite useful lives over their estimated useful lives and reviews these assets for impairment. The Company typically amortizes its patents with definite useful lives on a straight-line basis over the shorter of the contractual terms or the estimated economic lives, which is determined to be approximately eight to nine years.

 

Impairment for long-lived assets

 

Long-lived assets, including property and equipment and intangible assets with finite lives are reviewed for impairment whenever events or changes in circumstances (such as a significant adverse change to market conditions that will impact the future use of the assets) indicate that the carrying value of an asset may not be recoverable. The Company assesses the recoverability of the assets based on the undiscounted future cash flows the assets are expected to generate and recognize an impairment loss when estimated undiscounted future cash flows expected to result from the use of the asset plus net proceeds expected from disposition of the asset, if any, are less than the carrying value of the asset. If an impairment is identified, the Company will reduce the carrying amount of the asset to its estimated fair value based on a discounted cash flows approach or, when available and appropriate, to comparable market values. As of December 31, 2022 and 2021, no impairment of long-lived assets was recognized.

 

Fair value measurement

 

The accounting standards regarding fair value of financial instruments and related fair value measurements defines financial instruments and requires disclosure of the fair value of financial instruments held by the Company.

 

F-40

 

 

The accounting standards define fair value, establish a three-level valuation hierarchy for disclosures of fair value measurement and enhance disclosure requirements for fair value measures. The three levels are defined as follow:

 

  Level 1 inputs to the valuation methodology are quoted prices (unadjusted) for identical assets or liabilities in active markets.

 

  Level 2 inputs to the valuation methodology include quoted prices for similar assets and liabilities in active markets, quoted prices for identical assets and liabilities in inactive markets and inputs that are observable for the assets or liabilities, either directly or indirectly, for substantially the full term of the financial instruments.

 

  Level 3 inputs to the valuation methodology are unobservable and significant to the fair value.

 

Financial instruments included in current assets and current liabilities are reported in the consolidated balance sheets at face value or cost, which approximate fair value because of the short period of time between the origination of such instruments and their expected realization and their current market rates of interest.

 

Deferred IPO costs

 

Deferred IPO costs represents costs associated with the Company’s proposed offering of ordinary shares which will be netted against the proceeds of the offering. If the offering is not successful, these costs will be expensed.

 

Revenue recognition

 

The Company recognizes revenue under Financial Accounting Standards Board (“FASB”) Accounting Standards Codification (“ASC”) Topic 606, Revenue from Contracts with Customers (ASC 606). The Company recognizes revenue to depict the transfer of promised goods or services (that is, an asset) to customers in an amount that reflects the consideration to which the Company expects to receive in exchange for those goods or services. An asset is transferred when the customer obtains control of that asset. It also requires the Company to identify contractual performance obligations and determine whether revenue should be recognized at a point in time or over time, based on when control of goods or services transfers to a customer.

 

To achieve that core principle, the Company applies the five steps defined under Topic 606: (i) identify the contract(s) with a customer, (ii) identify the performance obligations in the contract, (iii) determine the transaction price, (iv) allocate the transaction price to the performance obligations in the contract, and (v) recognize revenue when (or as) the entity satisfies a performance obligation.

 

The Company accounts for a contract with a customer when the contract is committed in writing, the rights of the parties, including payment terms, are identified, the contract has commercial substance and consideration to collect is substantially probable.

 

Revenue recognition policies for each type of revenue steams are as follows:

 

  i) Sewage treatment systems

 

  a) Rendering of sewage treatment systems installation

 

F-41

 

 

Performance obligations satisfied over time

 

Sales relating to the installation of sewage treatment systems are generally recognized based on the Company’s efforts or inputs to the satisfaction of its performance obligation over time as work progresses because of the continuous transfer of control to the customer and the Company has the right to bill the customer as costs are incurred. The performance obligation includes the sewage treatment system and equipment that the Company sells as well as the continuous system installation to be performed. Typically, revenue is recognized over time using an input measure (i.e., costs incurred to date relative to total estimated costs at completion) to measure progress. The Company generally uses the cost-to-cost measure of progress method because it best depicts the transfer of control to the customer which occurs as the Company incurs costs on its contracts. Under the cost-to-cost measure of progress method, the extent of progress towards completion is measured based on the ratio of total costs incurred to date to the total estimated costs at completion of the performance obligation. Revenues, including estimated fees or profits, are recorded proportionally as costs are incurred. Any expected losses on construction-type contracts in progress are charged to operations, in total, in the period the losses are identified. Contract costs include all direct material and labor costs and those indirect costs related to contract performance, such as indirect labor and supplies. Contract modifications that extend or revise contract terms generally result in recognizing the impact of the revised terms prospectively over the remaining life of the modified contract (i.e., effectively like a new contract).

 

Part of the Company’s process of identifying whether there is a contract with a customer is to assess whether it is probable that the Company will collect substantially all of the consideration to which it will be entitled in exchange for goods or services that will be transferred to the customer. In assessing it is probable that the Company will collect substantially all of the consideration, the Company considers the following:

 

  1) Customary business practice and its knowledge of the customer

 

The Company procures contracts from city or provincial level state-owned construction companies that are responsible for constructing rural sewage infrastructures for local governments to sell, install and operate decentralized rural sewage treatment systems. Although the Company does not have a long period of sewage treatment system operations, historically, the collections from state-owned companies or local governments of their accounts receivable for sewage treatment services did not result in any significant write-downs. As a result, the Company believes it will collect substantially all of the consideration to which it is entitled to.

 

  2) Payment terms

 

The Company’s contract with the customer has payment terms specified based upon certain conditions completed. The payment terms usually include, but are not limited to, the following billing stages: 1) signing of the sales contract, 2) completion of delivery of system equipment to the job sites, 3) completion of system installations, 4) completion of water test and satisfaction of meeting national standards for sewage discharge, and 5) completion of maintenance periods. As the Company’s customers are required to pay the Company at different billing stages over the contract period, as such, the Company believes the progress payments limit the Company’s exposure to credit risk and the Company would be able to collect substantially all of the consideration gradually at different stages.

 

The timing of the satisfaction of our performance obligations is based upon the cost-to-cost measure of progress method, which is generally different than the timing of unconditional right of payment, and is based upon certain conditions completed as specified in the contract. The payment terms usually include, but are not limited to, the following billing stages: 1) signing of the sales contract, approximately 20% - 30% of the contract price, 2) completion of delivery of system equipment to the job sites, approximately 10% - 20% of the contract price, 3) completion of system installations, approximately 10% - 20% of the contract price, 4) completion of water test and satisfaction of national standards for sewage discharge, approximately 20% - 30% of the contract price, and 5) completion of maintenance periods, approximately 5% - 10% of the contract price. The timing between the satisfaction of our performance obligations and the unconditional right to payment would contribute to contract assets and contract liabilities.

 

Payment for sewage treatments systems is made by the customer pursuant to the billing schedule stipulated in the contract which is generally based on the progress of the construction. Cost based input methods of revenue recognition require the Company to make estimates of costs to complete its projects. In making such estimates, significant judgment is required to evaluate assumptions related to the costs to complete its projects, including materials, labor, contingencies, and other system costs. The estimate of unit material costs are reviewed and updated on a quarterly basis, based on the updated information available in the supply markets. The estimate of material quantities to be used for completion and the installation cost is also reviewed and updated on a quarterly basis, based on the updated information on the progress of project execution. If the estimated total costs on any contract, including any inefficient costs, are greater than the net contract revenues, the Company recognizes the entire estimated loss in the period the loss becomes known. The cumulative effect of revisions to estimates related to net contract revenues or costs to complete contracts are recorded in the period in which the revisions to estimates are identified and the amounts can be reasonably estimated. The effect of the changes on future periods are recognized as if the revised estimates had been used since revenue was initially recognized under the contract. Such revisions could occur in any reporting period, and the effects may be material depending on the size of the contracts or the changes in estimates.

 

F-42

 

 

The installation revenues of treatment system components are combined and considered as one performance obligation. The promises to transfer the equipment and system components and installation are not separately identifiable, which is evidenced by the fact that the Company provides a significant service of integrating the goods and services into a sewage treatment system for which the customer has contracted. The Company currently does not have any modifications of contracts and the contracts currently do not have any variable consideration. The transaction price is clearly identifiable within the Company’s sales contracts, the performance obligation of the Company’s equipment and system component and installation revenues.

 

Furthermore, the installation revenues and sales of treatment system components normally includes assurance-type warranties that the Company’s performance is free from material defect and consistent with the specifications of the Company’s contract, which do not give rise to a separate performance obligation. To the extent the warranty terms provide the customer with an additional service, such as extended maintenance services, such warranty is accounted for as a separate performance obligation even though it is embedded in the sewage treatment system and installation sales contract, which is generally between one to two years after installation. Revenue generated from maintenance services are clearly identifiable and distinguished from the equipment and system component and installation revenues.

 

The Company has no obligations for returns, refunds or similar obligations for its sewage treatment system installations.

 

As of December 31, 2022, the Company had collections allocated to remaining performance obligations for sewage treatment system installments amounting to $12,605,494 which is expected to be recognized upon the satisfaction of the performance obligations within 12 months from December 31, 2022 using an input measure method.

 

  b) Rendering of sewage treatment system maintenance services

 

Performance obligations satisfied over time

 

Revenue from sewage treatment system maintenance service contracts require the Company to render repair or maintenance on any system failure during the contracted maintenance periods, which is generally between one to two years. Revenue generated from sewage treatment system maintenance services is recognized over the coverage period on a straight-line basis.

 

The maintenance contract revenue is embedded in the installation contract but clearly identifiable for such maintenance services, which is generally between one to two years after installation. This clause includes identifiable payment terms within the sales contract, which the Company believes can be distinguished from the installation services should the Company need to separately enter the installation and maintenance service contracts. Maintenance services revenues are immaterial to the Company’s consolidated statements of income and comprehensive income for the years ended December 31, 2022 and 2021.

 

As of December 31, 2022, the Company had transaction price allocated to remaining performance obligations for rendering sewage treatment services amounting to $96,251 which is expected to be recognized within 12 months from December 31, 2022 and $58,018 is expected to be recognized subsequent to December 31, 2023, all on a straight-line basis.

  

F-43

 

 

c) Financing revenues

 

Performance obligations satisfied over time

 

Financing revenues on interest income from long term contracts with payment terms over one year are recognized as financing revenues over the payment term based on the effective interest rate method determined using the Company’s incremental borrowing rate.

 

  ii) Sewage treatment services

 

  a) Rendering of sewage treatment services

 

Performance obligations satisfied over time

 

Revenue from sewage treatment service contracts require the Company to render treatment services on a one-time basis or based upon a specified treatment period, which is generally one year or less. The Company’s performance obligations are generally satisfied over time because customers receive and consume the benefits of such services and the Company has the right to bill the customer as services are performed. Revenue generated from sewage treatment service is recognized using an input measure method, (i.e., labor costs incurred to date relative to total estimated labor cost at completion) to measure progress. Under the labor cost measure of progress method, the extent of progress towards completion is measured based on the ratio of total labor cost incurred to date to the total estimated labor cost at completion of the performance obligation. Revenue, including estimated fees or profits, are recorded proportionally as labor costs are incurred. The Company considers labor time as the best available indicator of the pattern and timing in which contract obligations are fulfilled. The Company has a long history of sewage treatment services resulting in its ability to reasonably estimate the service hours expected to be incurred and the progress toward completion on each fixed-price contract based on the proportion of service hours incurred to date relative to total estimated service hours at completion. Estimated contract costs are based on the budgeted service hours, which are updated based on the progress toward completion on a monthly basis. Pursuant to the contract terms, the Company has enforceable right to payments for the work performed. Provisions for estimated losses, if any, on uncompleted contracts are recorded in the period in which such losses become probable based on the current contract estimates. Costs of sewage treatment services are expensed in the period in which they are incurred.

 

The Company’s disaggregated revenue streams are summarized and disclosed in Note 17.

 

The Company applies a practical expedient to expense costs as incurred for costs to obtain a contract with a customer when the amortization period is one year or less. The Company has no material incremental costs of obtaining contracts with customers that the Company expects the benefit of those costs to be longer than one year which need to be recognized as assets. 

 

Warranty

 

The Company generally provides limited warranties for work performed under its contracts. At the time a sale is recognized, the Company records estimated future warranty costs under FASB ASC 460, “Guarantees”. Such estimated costs for warranties are estimated at completion and these warranties are not service warranties separately sold by the Company. Generally, the estimated claim rates of warranties is based on actual warranty experience or the Company’s best estimate. There were no such reserves for years ended December 31, 2022 and 2021 because the Company’s historical warranty expenses have been immaterial to the Company’s consolidated financial statements.

 

Advertising costs

 

Advertising costs amounted to $61,566 and $95,808 for the years ended December 31, 2022 and 2021, respectively. Advertising costs are expensed as incurred and included in selling expenses. 

 

F-44

 

 

Research and development (“R&D”)

 

Research and development expenses include salaries and other compensation-related expenses paid to the Company’s research and product development personnel while they are working on R&D projects, as well as raw materials used for the R&D projects.

 

Value added taxes (“VAT”)

 

Revenue represents the invoiced value of products or services, net of VAT. The VAT is based on gross sales price and VAT rates range from 6% up to 17% prior to May 2018, up to 16% starting in May 2018, and up to 13% starting in April 2019, depending on the type of products sold or services provided. Entities that are VAT general taxpayers are allowed to offset qualified input VAT paid to suppliers against their output VAT liabilities. The net VAT balance between input VAT and output VAT is recorded in taxes payable. All of the VAT returns filed by the Company’s subsidiaries in China, have been and remain subject to examination by the tax authorities for five years from the date of filing.

 

Income taxes

 

The Company accounts for income taxes in accordance with ASC 740, “Accounting for income taxes”. The charge for taxation is based on the results for the fiscal year as adjusted for items, which are non-assessable or disallowed. It is calculated using tax rates that have been enacted or substantively enacted by the balance sheet date.

  

Deferred taxes are accounted for using the asset and liability method in respect of temporary differences arising from differences between the carrying amount of assets and liabilities in the consolidated financial statements and the corresponding tax basis used in the computation of assessable tax profit. In principle, deferred tax liabilities are recognized for all taxable temporary differences. Deferred tax assets are recognized to the extent that it is probable that taxable profit will be available against which deductible temporary differences can be utilized. Deferred tax is calculated using tax rates that are expected to apply to the period when the asset is realized or the liability is settled. Deferred tax is charged or credited in the income statement, except when it is related to items credited or charged directly to equity, in which case the deferred tax is also dealt with in equity. Net deferred tax assets are reduced by a valuation allowance when, in the opinion of management, it is more likely than not that some portion or all of the net deferred tax asset will not be realized. Current income taxes are provided for in accordance with the laws of the relevant taxing authorities.

 

An uncertain tax position is recognized as a benefit only if it is “more likely than not” that the tax position would be sustained in a tax examination, with a tax examination being presumed to occur. The amount recognized is the largest amount of tax benefit that has greater than 50% likelihood of being realized on examination. For tax positions not meeting the “more likely than not” test, no tax benefit is recorded. No penalties and interest incurred related to underpayment of income tax are classified as other expense in the period incurred. PRC tax returns filed in 2018 to 2022 are subject to examination by any applicable tax authorities.

 

Comprehensive income (loss)

 

Comprehensive income (loss) consists of two components, net income (loss) and other comprehensive income (loss). Other comprehensive income (loss) refers to revenue, expenses, gains and losses that under GAAP are recorded as an element of shareholders’ equity but are excluded from net income. Other comprehensive income (loss) consists entirely of foreign currency translation adjustments resulting from the U.S. dollar not being the Company’s functional currency.

 

F-45

 

 

Earnings per share

 

The Company computes earnings per share (“EPS”) in accordance with FASB ASC 260, “Earnings per Share”. FASB ASC 260 requires companies to present basic and diluted EPS. Basic EPS is measured as net income divided by the weighted average ordinary shares outstanding during the reporting period. Diluted EPS presents the dilutive effect on a per share basis of the potential ordinary shares (e.g., convertible securities, options and warrants) as if they had been converted at the beginning of the periods presented, or issuance date, if later. Potential ordinary shares that have an anti-dilutive effect (i.e., those that increase income per share or decrease loss per share) are excluded from the calculation of diluted EPS. For the years ended December 31, 2022 and 2021, there were no potential dilutive shares.

  

Employee benefits

 

The full-time employees of the Company are entitled to staff welfare benefits including medical care, housing fund, pension benefits, unemployment insurance and other welfare, which are government mandated defined contribution plans. The Company is required to accrue for these benefits based on certain percentages of the employees’ respective salaries, subject to certain ceilings, in accordance with the relevant PRC regulations, and make cash contributions to the state-sponsored plans out of the amounts accrued. Total expenses for the plans were $171,674 and $135,713 for the years ended December 31, 2022 and 2021, respectively. 

 

Statutory reserves

 

Pursuant to the laws applicable to the PRC, PRC entities must make appropriations from after-tax profit to the non-distributable “statutory surplus reserve fund”. Subject to certain cumulative limits, the “statutory surplus reserve fund” requires annual appropriations of 10% of after-tax profits until the aggregated appropriations reach 50% of the registered capital (as determined under accounting principles generally accepted in the PRC (“PRC GAAP”) at each year-end). For foreign invested enterprises and joint ventures in the PRC, annual appropriations should be made to the “reserve fund”. For foreign invested enterprises, the annual appropriation for the “reserve fund” cannot be less than 10% of after-tax profits until the aggregated appropriations reach 50% of the registered capital (as determined under PRC GAAP at each year-end). If the Company has accumulated losses from prior periods, the Company is able to use the current period net income after tax to offset against the accumulated losses.

 

Contingencies

 

From time to time, the Company is a party to various legal actions arising in the ordinary course of business. The Company accrues costs associated with these matters when they become probable and the amount can be reasonably estimated. Legal costs incurred in connection with loss contingencies are expensed as incurred. The Company’s management does not expect any liability from the disposition of such claims and litigation individually or in the aggregate would have a material adverse impact on the Company’s consolidated financial position, results of operations and cash flows.

 

Lease

 

Effective January 1, 2022, the Company adopted ASU 2016-02, “Leases” (Topic 842), and elected the practical expedients that does not require us to reassess: (1) whether any expired or existing contracts are, or contain, leases, (2) lease classification for any expired or existing leases and (3) initial direct costs for any expired or existing leases. For lease terms of twelve months or fewer, a lessee is permitted to make an accounting policy election not to recognize lease assets and liabilities. The Company recognized ROU assets and lease liabilities of $201,180 upon adoption of this standard on January 1, 2022.

If any of the following criteria are met, the Company classifies the lease as a finance lease:

The lease transfers ownership of the underlying asset to the lessee by the end of the lease term;

  The lease grants the lessee an option to purchase the underlying asset that the Company is reasonably certain to exercise;
     
  The lease term is for 75% or more of the remaining economic life of the underlying asset, unless the commencement date falls within the last 25% of the economic life of the underlying asset;
     
  The present value of the sum of the lease payments equals or exceeds 90% of the fair value of the underlying asset; or
     
  The underlying asset is of such a specialized nature that it is expected to have no alternative use to the lessor at the end of the lease term.

 
Leases that do not meet any of the above criteria are accounted for as operating leases.

The Company combines lease and non-lease components in its contracts under Topic 842, when permissible.

Operating lease right-of-use (“ROU”) asset and lease liability are recognized at the adoption date of January 1, 2022 or the commencement date, whichever is earlier, based on the present value of lease payments over the lease term. Since the implicit rate for the Company’s leases is not readily determinable, the Company uses its incremental borrowing rate based on the information available at the commencement date in determining the present value of lease payments. The incremental borrowing rate is the rate of interest that the Company would have to pay to borrow, on a collateralized basis, an amount equal to the lease payments, in a similar economic environment and over a similar term.

Lease terms used to calculate the present value of lease payments generally do not include any options to extend, renew, or terminate the lease, as the Company does not have reasonable certainty at lease inception that these options will be exercised. The Company generally considers the economic life of its operating lease ROU asset to be comparable to the useful life of similar owned assets. The Company has elected the short-term lease exception, therefore operating lease ROU assets and liabilities do not include leases with a lease term of twelve months or less. Its leases generally do not provide a residual guarantee.

The operating lease ROU asset also excludes lease incentives. Lease expense is recognized on a straight-line basis over the lease term for operating lease.

The Company reviews the impairment of its ROU asset consistent with the approach applied for its other long-lived assets. The Company reviews the recoverability of its long-lived assets when events or changes in circumstances occur that indicate that the carrying value of the asset may not be recoverable. The assessment of possible impairment is based on its ability to recover the carrying value of the asset from the expected undiscounted future pre-tax cash flows of the related operations. The Company has elected to include the carrying amount of its operating lease liabilities in any tested asset group and includes the associated operating lease payments in the undiscounted future pre-tax cash flows. For the years ended December 31, 2022 and 2021, the Company did not recognize an impairment loss on its operating lease ROU asset.   

F-46

 

 

Recently issued accounting pronouncements

  

In May 2019, the FASB issued ASU 2019-05, which is an update to ASU Update No. 2016-13, Financial Instruments—Credit Losses (Topic 326): Measurement of Credit Losses on Financial Instruments, which introduced the expected credit losses methodology for the measurement of credit losses on financial assets measured at amortized cost basis, replacing the previous incurred loss methodology. The amendments in Update 2016-13 added Topic 326, Financial Instruments—Credit Losses, and made several consequential amendments to the Codification. Update 2016-13 also modified the accounting for available-for-sale debt securities, which must be individually assessed for credit losses when fair value is less than the amortized cost basis, in accordance with Subtopic 326-30, Financial Instruments— Credit Losses—Available-for-Sale Debt Securities. The amendments in this Update address those stakeholders’ concerns by providing an option to irrevocably elect the fair value option for certain financial assets previously measured at amortized cost basis. For those entities, the targeted transition relief will increase comparability of financial statement information by providing an option to align measurement methodologies for similar financial assets. Furthermore, the targeted transition relief also may reduce the costs for some entities to comply with the amendments in Update 2016-13 while still providing financial statement users with decision-useful information. In November 2019, the FASB issued ASU No. 2019-10, to update the effective date of ASU No. 2016-02 for private companies, not-for-profit organizations and certain smaller reporting companies applying for credit losses, leases, and hedging standard. The new effective date for these preparers is for fiscal years beginning after December 15, 2022. The adoption of this standard on January 1, 2023 did not have a material impact on the Company’s consolidated financial statements.

    

In March 2020, the FASB issued ASU No. 2020-03, Codification Improvements to Financial Instruments, which makes improvements to various financial instruments Topics in the Codification to increase stakeholder awareness of the amendments and to expedite the improvement process. The issues includes: 1) Fair Value Option Disclosures, 2) Applicability of Portfolio Exception in Topic 820 to Nonfinancial Items, 3) Disclosures for Depository and Lending Institutions, 4) Cross-Reference to Line of-Credit or Revolving-Debt Arrangements Guidance in Subtopic 470-50, 5) Cross-Reference to Net Asset Value Practical Expedient in Subtopic 820-10, 6) Interaction of Topic 842 and Topic 326, and 7) Interaction of Topic 326 and Subtopic 860-20. Issue 3 became effective on January 1, 2020 and did not have a material effect on the Company’s consolidated financial statements. Issue 1, 2, 4 and 5 became effective on January 1, 2021. Issue 6 became effective on January 1, 2022 and 7 became effective on January 1, 2023. The Company adopted this update which became effective on January 1, 2023. Upon adoption of this update, there was no material effect on the Company’s consolidated financial statements.

 

Except as mentioned above, the Company does not believe other recently issued but not yet effective accounting standards, if currently adopted, would have a material effect on the Company’s consolidated balance sheets, statements of income and statements of cash flows.

 

Note 4 – Accounts receivable, net 

 

Accounts receivable, net consists of the following:

 

    December 31,
2022
  December 31,
2021
         
Accounts receivable   $ 23,280,417     $ 17,675,745  
Allowance for doubtful accounts     (3,189,642 )     (3,004,435 )
Total accounts receivable, net   $ 20,090,775     $ 14,671,310  

 

Movements of allowance for doubtful accounts are as follows:

 

    December 31,
2022
  December 31,
2021
         
Beginning balance   $ 3,004,435     $ 5,145,265  
Addition     555,133       69,999  
Recovery or write-off*     (86,994 )     (2,304,668 )
Exchange rate effect     (282,932 )     93,839  
Ending balance   $ 3,189,642     $ 3,004,435  

  

*The Company recovered account receivable for the years ended December 31, 2022 and 2021 due to collection of account receivable’s balance that were allowanced in prior period.

 

F-47

 

 

Note 5 – Contract assets

 

Sewage treatment system revenues are recognized over time using an input measure method (cost-to-cost measure of progress method) to measure progress. Under this method, the extent of progress towards completion is measured based on the ratio of total costs incurred to date to the total estimated costs at completion of the performance obligation. Revenues to date are recognized by applying this ratio to the total contract price of the sewage treatment system revenues.

 

Projects with performance obligations recognized over time that have revenue recognized to date in excess of cumulative billings are reported on the Company’s consolidated balance sheets as “Contract assets”. Provisions for estimated losses of contract assets on uncompleted contracts are made in the period in which such losses are determined.

 

Contract assets that have billing terms with unconditional rights to be billed beyond one year are classified as non-current assets.

 

Contract assets consist of the following:

 

    December 31,
2022
  December 31,
2021
         
Revenue recognized   $ 44,587,741     $ 22,454,626  
Less: progress billings     (18,497,351 )     (6,777,174 )
Contract assets   $ 26,090,390     $ 15,677,452  
Contract assets, current   $ 16,821,489     $ 15,647,217  
Contract assets, non-current   $ 9,268,901     $ 30,235  

  

Note 6 – Property and equipment, net

 

Property and equipment, net consist of the following:

 

    December 31,
2022
  December 31,
2021
         
Building   $ 1,154,409     $ 1,261,038  
Equipment     2,298,159       2,654,370  
Office equipment, fixtures and furniture     70,139       42,613  
Automobiles     1,248,848       1,361,099  
Subtotal     4,771,555       5,319,120  
Less: accumulated depreciation     (2,574,719 )     (2,500,651 )
Property and equipment, net   $ 2,196,836     $ 2,818,469  

 

Depreciation expense for the years ended December 31, 2022 and 2021 amounted to $383,827 and $282,838, respectively.

 

F-48

 

 

Note 7 – Intangible assets, net

 

Intangible assets, net consist of the following:

 

    December 31,
2022
  December 31,
2021
         
Patents   $ 118,749     $ 94,107  
Less: accumulated amortization     (90,585 )     (83,724 )
Intangible assets, net   $ 28,164     $ 10,383  

  

Amortization expense for the years ended December 31, 2022 and 2021 amounted to $14,434 and $10,369, respectively.

 

The estimated amortization is as follows:

 

Twelve months ending December 31,   Estimated
amortization expense
     
  2023     $ 11,489  
  2024       10,866  
  2025       5,809  
  Total     $ 28,164  

 

Note 8 – Loans to third parties

 

Loans to third parties consist of the following:

 

Borrower name  Maturities  Interest Rate  December 31,
2022
  December 31,
2021
             
Fujian Mingzheng Construction Development Ltd.*  August 2021 (extended to August 2023, repaid in February 2023)   4.4%  $14,358   $15,685 
Jinhuo Chen*  January 2021 (extended to January 2024, repaid in February 2023)   4.4%   43,075    47,053 
Total          $57,433   $62,738 

 

*As of the date of this prospectus, these loans have been repaid by the third parties.

   

Note 9 – Other payables and accrued liabilities

 

Other payables and accrued liabilities consist of the following:

 

   December 31,
2022
  December 31,
2021
       
Payables to non-trade vendors and service providers  $1,618,111   $1,494,168 
Salary payable   808,409    819,643 
Total other payables and accrued liabilities  $2,426,520   $2,313,811 

  

Note 10 – Related party balances and transactions

 

Related party balances 

 

Other receivables - related parties

 

Name of Related Party   Relationship   Nature   December 31,
2022
  December 31,
202
Fujian Tantan Technology Co, Ltd (“FJ Tantan”)*   FJ Tantan’s legal representative is the secretary of Fujian Hongfa Group Ltd (“Fujian Hongfa”). Fujian Hongfa is the shareholder of FJ LSY.   Interest free, due December 14, 2023   $ 251,271     $  
Fuzhou Jinhui Environmental service Co, Ltd (“FZ Jinhui”)*   Fujian Jinshun environmental Co, Ltd (“Jinshun”) is the major shareholder of FZ Jinhui. Weihao Chen is the Major shareholder of Jinshun, and the legal representative of FZ LSY.   Interest free, due on August 31, 2023     38,405        
Fujian Province Qicheng Investment Management Co., Ltd.*   Fujian Hongfa Industrial Group Co., Ltd holds 51% of the total share and Mr. Weihao Chen who is the legal representative, general manager and director of FJLSY is also the legal representative, executive director and manager of Fujian Hongfa Industrial Group Co., Ltd.   Interest free, due on demand           274,480  
Total           $ 289,676     $ 274,480  

 

*As of the date of this prospectus, these receivables have been repaid by the related parties.

 

F-49 

 

 

Other payables – related parties

 

Name of Related Party  Relationship  Nature  December 31,
2022
  December 31,
2021
Changfu Ma  General Manager of Beijing CDT Environmental Technology Co., Ltd.  Advance payment for operational expenses of the Company pending for reimbursement  $   $7,924 
Wanqiang Lin  Director of Ultra HK  Advance payment for operational expenses of the Company pending for reimbursement   271,132    271,198 
Zhenhong Zhang  Director and Manager of XM YDT (1)  Advance payment for operational expenses of the Company pending for reimbursement       10,707 
Total        $271,132   $289,829 

 

(1) In January 2022, the Company disposed of its entire 51% ownership in XM YDT and transferred its ownership to a third party for consideration of approximately $5,000. The disposal of XM YDT did not have a material impact on the Company’s consolidated financial statements.

 

Short-term loans - related parties

 

Name of Related        December 31,  December 31,
Party  Relationship  Nature  2022  2021
             
Guangxi Qianwang IOT Technology Co., Ltd.  49% shareholder of Guangxi CWT Environmental Technology Co., Ltd.  14.4% annual interest, due on July 19, 2021
(extended to July 19, 2022, and repaid in June, 2022)
  $   $45,335 
Beijing Minhongyun Energy Supply Co. Ltd.  Yunwu Li, the Company’s Chief Executive Officer and Chairman of the Board of Directors and Chairman of the Board of Directors and General Manager of Shenzhen CDT Environmental Technology Co., Ltd is the director of this entity  Interest-free loan
due on demand
   1,082,617    6,273 
Shenzhen Li Yaxin Industrial Co., Ltd  Yunwu Li, the Company’s Chief Executive Officer and Chairman of the Company’s Board of Directors and Chairman of the Board of Directors and General Manager of Shenzhen CDT Environmental Technology Co., Ltd., is the sole shareholder of this entity  Interest-free loan
due on demand
   50,254    62,738 
Yunwu Li  Chairman of CDT Environmental Technology Co., Ltd.  Interest-free loan
due on demand
   2,260,144    128,206 
Jianzhong Zhao  Legal Representative, General Manager and Director of Hohhot CDT Environmental Technology Co., Ltd.  Interest-free loans, due on December 31, 2020
 (extended to December 31, 2023)
   286,749    201,828 
Jianshan Ma  Director and General Manager of Chengde CDT Environmental Technology Co., Ltd.  Interest-free loans, due on December 31, 2020
 (extended to December 31, 2023)
   86,516    87,901 
Yan Wang  Relative of Ying Wang, Supervisor of Huzhou CDT Environmental Technology Co., Ltd.  Interest-free loans, due on December 31, 2020
 (extended to December 31, 2023)
   57,161    10,211 
Xingsheng Pan  General manager of Shenzhen CDT Environmental Technology Co., Ltd  Interest-free loans, due on demand   374,369     
Yunfang Li  Sibling of Yunwu Li, the Company’s Chief Executive Officer and Chairman of the Board of Directors and Chairman of the Board of Directors and General Manager of Shenzhen CDT Environmental Technology Co., Ltd is the director of this entity  Interest-free loans, due on demand   14,358     
Guangqing shi  General manager of Tianjin CDT Environmental Technology Co., Ltd  Interest-free loans, due on demand   6,277     
Zhaozhao Xu  General manager of Shenzhen CDT Environmental Technology Co., Ltd  Interest-free loans, due on demand   12,923     
Total        $4,231,368   $542,492 

  

Interest expense pertaining to the above loans for the years ended December 31, 2022 and 2021 amounted to $0 and $3,348, respectively. 

 

F-50 

 

 

Note 11 – Credit facilities

 

Short-term loans – banks

 

Outstanding balances on short-term bank loans consist of the following:

 

Bank Name  Maturities  Interest Rate  Collateral/Guarantee  December 31,
2022
  December 31,
2021
China Construction Bank  September 2020 (renewed in December 2021, extended to June 2023, and repaid in June 2023)   5.0%  Guaranteed by Weihao Chen, General Manager of Fuzhou LSY Environmental Technology Co., Ltd.  $138,127   $150,885 
China Construction Bank  December 2023   4.2%  None   73,658    80,462 
China Bank of Communication  July 2022 (repaid in July 2022)   5.0%  Guaranteed by Yunwu Li, Chief Executive Officer and Chairman of the Board of Directors of the Company, and the line of credit is collateralized by a real estate property owned by Yunwu Li.       437,599 
China Bank of Communication  September 2022 (repaid in August 2022)   5.0%  Guaranteed by Yunwu Li, Chief Executive Officer and Chairman of the Board of Directors of the Company       313,691 
China Bank of Communication (1)  August 2023 (repaid in August 2023)   4.9%-5.0% 

Guaranteed by Yunwu Li, Chief Executive Officer and Chairman of the Board of Directors of the Company, and it is collateralized by a real estate property owned by Yunwu Li

   430,750     
Industrial and Commercial Bank of China  February 2023 (repaid in February 2023)   3.8%  None   100,508     
Weizhong Bank  August 2023 (repaid in August 2023)   5.9%  Guaranteed by Yunhui Xu, the legal representative of TY CDT   37,691     
Weizhong Bank  June 2023 (repaid in June 2023)   5.1%  Guaranteed by Yunwu Li, Chief Executive Officer and Chairman of the Board of Directors of the Company and Chairman of the Board of Directors and General Manager of Shenzhen CDT Environmental Technology Co., Ltd.   63,177     
Total             $843,911   $982,637 

 

(1)In August 2022, the Company secured a renewable line of credit (“Line of Credit 1) worth approximately $1.1 million from China Bank of Communication for a two-year period. This line of credit is backed by the guarantee of Yunwu Li, the Chief Executive Officer and Chairman of the Board of Directors of the Company, and it is secured by a real estate property owned by Yunwu Li. As of December 31, 2022, the Company has withdrawn two separate loans with an aggregated total of approximately $0.4 million from Line of Credit 1 that was due in August 2023 with 4.9% to 5.0% interest rate per annum. In August 2023, the Company has repaid $0.4 million to Line of Credit 1.

 

Long-term loans – bank

 

Outstanding balances on long-term bank loans consist of the following:

 

Bank Name  Maturities  Interest Rate  Collateral/Guarantee  December 31,
2022
  December 31,
2021
Weizhong Bank   July 2023 (extended to February 2025)    9.7%   Guaranteed by Yunwu Li, Chief Executive Officer and Chairman of the Board of Directors of the Company and Chairman of the Board of Directors and General Manager of Shenzhen CDT Environmental Technology Co., Ltd.   $47,861   $135,489 

  

Short-term loans – third parties

 

Outstanding balances on long-term third-party loans consist of the following:

 

Lender Name  Maturities  Interest Rate  Collateral/Guarantee  December 31,
2022
  December 31,
2021
                
Deyun Zhou  February 2023 (repaid in January 2023)   0%  None  $71,792   $ 
Lingyu Ye  December 2019
(renewed in December 2020, extended to December 2023)
   0%  None   28,717    31,366 
Runze Li  December 2023 (repaid in January 2023)   0%  None   109,267     
Yishan Zhang  December 2020 (extended to December 2022, repaid in June 2022)   0%  None       78,423 
Shanghai Xinjing Construction Labor Service Center  June 2021 (extended to December 2023, repaid in December 2022)   0%  None       78,425 
Shanghai Xinjing Construction Labor Service Center  August 2021 (extended to June 2024)   0%  None   215,375    156,846 
Xiamen Haosheng Investing Co., Ltd.  April 2020 (extended to April 2024)   0%  None   28,716    31,369 
Total             $453,867   $376,429 

  

F-51 

 

 

Interest expense pertaining to the above loans for the years ended December 31, 2022 and 2021 amounted to $64,658 and $65,308, respectively.

 

Note 12 – Taxes

 

Income tax

 

Cayman Islands

 

Under the current laws of the Cayman Islands, the Company is not subject to tax on income or capital gain. Additionally, upon payments of dividends to the shareholders, no Cayman Islands withholding tax will be imposed.

 

British Virgin Islands

 

CQ BVI and CDT BVI are incorporated in the British Virgin Islands and are not subject to tax on income or capital gains under current British Virgin Islands law. In addition, upon payments of dividends by these entities to their shareholders, no British Virgin Islands withholding tax will be imposed.

 

Hong Kong

 

Ultra HK and BVI HK are incorporated in Hong Kong and are subject to Hong Kong Profits Tax on the taxable income as reported in its statutory financial statements adjusted in accordance with relevant Hong Kong tax laws. The applicable tax rate is 16.5% in Hong Kong. The Company did not make any provisions for Hong Kong profit tax as there were no assessable profits derived from or earned in Hong Kong since inception.

 

PRC

 

Shenzhen CDT and its subsidiaries are governed by the income tax laws of the PRC and the income tax provision in respect to operations in the PRC is calculated at the applicable tax rates on the taxable income for the periods based on existing legislation, interpretations and practices in respect thereof. Under the Enterprise Income Tax Laws of the PRC (the “EIT Laws”), Chinese enterprises are subject to income tax at a rate of 25% after appropriate tax adjustments. Shenzhen CDT obtained the “high-tech enterprise” tax status in December 2016, which reduced its statutory income tax rate to 15% from December 2016 to November 2019. The Company renewed its “high-tech enterprise” tax status in November 2022 upon expiration of its then current “high-tech enterprise” tax status. The renewal was approved by the PRC tax authority, and the high-tech enterprise tax status will expire in November 2024. Except for Shenzhen CDT, the rest of the PRC subsidiaries benefit from tax rate reduction in accordance with the PRC small business preferential rate policy. Going forward, the future tax rate is determined by the taxable income according to the PRC small business preferential rate policy mentioned above. As a result, PRC subsidiaries except Shenzhen CDT reduced their statutory income tax rate to 2.5% for the year ended December 31, 2022.

 

F-52 

 

 

Income tax savings due to preferential rates on taxable subsidiaries for the years ended December 31, 2022 and 2021 amounted to $466,048 and $742,814, respectively.

 

The Company’s basic and diluted earning per shares would have been lower by $0.05 and $0.08 per share for the years ended December 31, 2022 and 2021, respectively, without the preferential tax rate reduction.

 

Income tax expense for the year ended December 31, 2022 and 2021 amounted to $1,152,963 and $1,207,810, respectively. The effective tax rate for the years ended December 31, 2022 and 2021 was 18.0% and 15.5%, respectively.

 

Significant components of the provision for income taxes are as follows:

  

   For the year ended December 31, 2022  For the year ended December 31, 2021
       
Current  $1,119,640   $904,761 
Deferred   33,323    303,049 
Provision for (benefit from) income taxes  $1,152,963   $1,207,810 

 

The following table reconciles China statutory rates to the Company’s effective tax rate:

 

   For the year ended
December 31, 2022
  For the year ended
December 31, 2021
       
China statutory income tax rate   25.0%   25.0%
Preferential tax rate reduction   (7.6%)   (10.3%)
Change in valuation allowance   0.5%   0.7%
Permanent difference*   0.1%   0.1%
Effective tax rate   18.0%   15.5%

 

*Permanent difference mainly consisted of the meal and entertainment expenses which is partially non-deductible under PRC income tax law.

 

Deferred tax assets – China and Hong Kong

 

Significant components of deferred tax assets are as follows:

 

   December 31,
2022
  December 31,
2021
       
Allowance for doubtful accounts  $444,857   $505,292 
Net operating loss carryforwards   321,754    323,808 
Valuation allowance   (462,144)   (461,356)
Deferred tax assets, net  $304,467   $367,744 

 

As of December 31, 2022 and 2021, the Company had net operating loss carryforwards of $2,387,142 and $2,017,533, respectively, from the Company’s PRC subsidiaries which were operating at losses, which will expire by December 31, 2027 and 2026, based upon the level of historical operating losses in the Company’s PRC subsidiaries, other than Shenzhen CDT, which were operating at cumulative losses as of December 31, 2022. The Company also had net operating loss carryforwards of $748,817 and $739,729 as of December 31, 2022 and 2021, respectively, from Company’s Hong Kong subsidiaries which were operating at losses. The Company believes it is less likely than not that its PRC and Hong Kong operations will be able to fully utilize its deferred tax assets related to the net operating loss carryforwards in the PRC and Hong Kong. As a result, the Company provided 100% allowance on all deferred tax assets on the net operating losses of $198,199 and $201,753 related to its operations in the PRC at December 31, 2022 and 2021, respectively. The Company also provided 100% allowance on all deferred assets on net operating losses of $123,555 and $122,055 related to its operations in Hong Kong at December 31, 2022 and 2021, respectively.

 

Certain of the Company’s allowances for doubtful accounts are for the Company’s PRC subsidiaries which the Company believes it is less likely than not that its PRC operations, other than Shenzhen CDT will be able to fully utilize its deferred tax assets related to the allowance for doubtful account in the PRC. As a result, the Company provided 100% allowance on all deferred tax assets on the allowance for doubtful accounts of $140,390 and $137,548 related to its operations in the PRC, other than Shenzhen CDT at December 31, 2022 and 2021, respectively.

  

F-53 

 

 

Uncertain tax positions

 

The Company evaluates each uncertain tax position (including the potential application of interest and penalties) based on the technical merits, and measures the unrecognized benefits associated with the tax positions. As of December 31, 2022 and 2021, the Company did not have any significant unrecognized uncertain tax positions.

 

Taxes payable consist of the following: 

 

  

December 31,

2022

  December 31,
2021
       
VAT taxes payable  $1,463,890   $1,371,170 
Income taxes payable   3,346,842    2,478,443 
Other taxes payable   52,845    44,253 
Totals  $4,863,577   $3,893,866 

 

Note 13 – Concentration of risk

 

Credit risk

 

Financial instruments that potentially subject the Company to significant concentrations of credit risk consist primarily of cash. As of December 31, 2022 and 2021, $140,681, and $1,024,949 was deposited with financial institutions located in the PRC, respectively. The deposit insurance system in China only insures each depositor at each bank for a maximum of approximately $77,000 (RMB 500,000). As of December 31, 2022, none of the deposit financial institutions located in the PRC are over the China deposit insurance limit. As of December 31, 2022, $33,407 was deposited with financial institutions located in Hong Kong. The deposit insurance system in Hong Kong only insures each depositor at each bank for a maximum of approximately $64,000 (HKD 500,000). As of December 31, 2022, none of these balances are over the Hong Kong Deposit Protection Board limit.

 

The Company is also exposed to risk from its accounts receivable and other receivables. These assets are subjected to credit evaluations. An allowance has been made for estimated unrecoverable amounts which have been determined by reference to past default experience and the current economic environment.

 

All of the Company’s expense transactions are denominated in RMB and HKD, and all of the Company and its subsidiaries’ assets and liabilities are denominated in RMB and HKD. RMB is not freely convertible into foreign currencies. In the PRC, certain foreign exchange transactions are required by law to be transacted only by authorized financial institutions at exchange rates set by the People’s Bank of China (“PBOC”). Remittances in currencies other than RMB by the Company in China must be processed through the PBOC or other China foreign exchange regulatory bodies which require certain supporting documentation in order to affect the remittance.

 

The Company’s functional currency is the RMB, and its financial statements are presented in U.S. dollars. The RMB depreciated by 9.2% from December 31, 2021 to December 31, 2022 and appreciated by 2.3% from December 31, 2020 to December 31, 2021. It is difficult to predict how market forces or PRC or U.S. government policies may impact the exchange rate between the RMB and the U.S. dollar in the future. The change in the value of the RMB relative to the U.S. dollar may affect its financial results reported in U.S. dollar terms without giving effect to any underlying changes in its business or results of operations. Currently, the Company’s assets, liabilities, revenues and costs are denominated in RMB.

 

To the extent that the Company needs to convert U.S. dollars into RMB for capital expenditures and working capital and other business purposes, appreciation of RMB against the U.S. dollar would have an adverse effect on the RMB amount the Company would receive from the conversion. Conversely, if the Company decides to convert RMB into U.S. dollars for the purpose of making payments for dividends, strategic acquisitions or investments or other business purposes, appreciation of U.S. dollar against the RMB would have a negative effect on the U.S. dollar amount available to the Company.

 

F-54 

 

 

Customer concentration risk

 

For the year ended December 31, 2022 three customers accounted for 48.5%, 15.2%, and 14.6% of the Company’s total revenues, respectively. For the year ended December 31, 2021, two customers accounted for 48.9%, and 20.8% of the Company’s total revenues, respectively.

 

As of December 31, 2022, four customers accounted for 18.2%, 15.1%, 12.9% and 11.2% of total balance of accounts receivable, respectively. As of December 31, 2021, four customers accounted for 16.1%, 13.1%, 11.6% and 10.2% of total balance of accounts receivable, respectively.

 

Vendor concentration risk

 

For the year ended December 31, 2022, two vendors accounted for 19.7% and 10.0% of the Company’s total purchases, respectively. For the year ended December 31, 2021, four vendors accounted for 40.7%, 23.6%, 11.7% and 10.0% of the Company’s total purchases, respectively.

 

As of December 31, 2022, two vendors accounted for 12.6% and 10.9% of total balance of accounts payable, respectively. As of December 31, 2021, five vendors accounted for 15.3%, 14.5%, 13.2%, 11.3% and 10.3% of total balance of accounts payable, respectively.

 

Note 14 – Shareholders’ equity

 

Ordinary shares

 

CDT Cayman was established under the laws of Cayman Islands on November 28, 2016. The authorized number of ordinary shares was 38,000,000 share with a par value of HK$0.01.

 

On October 15, 2019, the shareholders of the Company resolved to create an additional 50,000,000 of the authorized ordinary shares with a par value of US$ 0.001 (the “Increase in Share Capital”). Following the Increase in Share Capital, the Company newly issued 23,000,000 ordinary shares with a par value of US$0.001 (the “USD Shares Issued”). Following the USD Shares Issued, the Company repurchased and cancelled 900,000 of the outstanding ordinary shares with a par value of HK$0.01 then issued and outstanding as well as cancelled 38,000,000 of the authorized ordinary shares with a par value of HK$ 0.01.

 

The Company considered the above transactions as a 25.56-for-1 split of its ordinary shares and deemed the cancellation of 900,000 original ordinary shares with par value of HK$ 0.01 and the new issuance of 23,000,000 ordinary shares with par value of US$0.001 were part of the Company’s recapitalization prior to completion of its initial public offering. The Company believed it is appropriate to reflect the above transactions on a retroactive basis similar to stock split or dividend pursuant to FASB ASC 260 “Earnings Per Share”. 

 

On December 30, 2020, the shareholders of the Company resolved to divide 50,000,000 of the authorized ordinary shares with a par value of US$ 0.001 (the “Decrease in Share Capital”) into 20,000,000 of the authorized ordinary shares with a par value of US$0.0025. Following the Decrease in Share Capital, the Company’s then existing 23,000,000 ordinary shares with a par value of US$0.001 were divided into 9,200,000 ordinary shares with a par value of US$0.0025. The Company considered the above transactions as a 1-for-2.5 reverse split of its ordinary shares. The Company believed it is appropriate to reflect the above transactions on a retroactive basis similar to stock split or dividend pursuant to FASB ASC 260. All share and per share amounts used herein and in the accompanying consolidated financial statements have been retroactively adjusted to reflect the share split.

  

F-55 

 

 

Restricted assets

 

The Company’s ability to pay dividends is primarily dependent on the Company receiving distributions of funds from its subsidiaries. Relevant PRC statutory laws and regulations permit payments of dividends by Shenzhen CDT and its subsidiaries (collectively “CDT PRC entities”) only out of its retained earnings, if any, as determined in accordance with PRC accounting standards and regulations. The results of operations reflected in the accompanying consolidated financial statements prepared in accordance with U.S. GAAP differ from those reflected in the statutory financial statements of CDT PRC entities.

 

CDT PRC entities are required to set aside at least 10% of their after-tax profits each year, if any, to fund certain statutory reserve funds until such reserve funds reach 50% of its registered capital. In addition, CDT PRC entities may allocate a portion of its after-tax profits based on PRC accounting standards to enterprise expansion fund and staff bonus and welfare fund at its discretion. CDT PRC entities may allocate a portion of its after-tax profits based on PRC accounting standards to a discretionary surplus fund at its discretion. The statutory reserve funds and the discretionary funds are not distributable as cash dividends. Remittance of dividends by a wholly foreign-owned company out of China is subject to examination by the banks designated by State Administration of Foreign Exchange.

 

As a result of the foregoing restrictions, CDT PRC entities are restricted in their ability to transfer their assets to the Company. Foreign exchange and other regulation in the PRC may further restrict CDT PRC entities from transferring funds to the Company in the form of dividends, loans and advances. As of December 31, 2022 and 2021, amounts restricted are the paid-in-capital and statutory reserve of CDT PRC entities, which amounted to $7,092,665 and $6,457,754, respectively.

 

Statutory reserves

 

During the years ended December 31, 2022 and 2021, CDT PRC entities collectively attributed $634,911 and $700,411 of retained earnings for their statutory reserves, respectively.

 

Note 15 – Leases

 

As of December 31, 2022, the Company leases one warehouse and three office in varies location within PRC, under non-cancelable operating leases, which lease terms are expired from December 2024 to January 2028. The Company determines if a contract contains a lease at inception. U.S. GAAP requires that the Company’s leases be evaluated and classified as operating or finance leases for financial reporting purposes. The classification evaluation begins at the commencement date and the lease term used in the evaluation includes the non-cancellable period for which the Company has the right to use the underlying asset, together with renewal option periods when the exercise of the renewal option is reasonably certain and failure to exercise such option which result in an economic penalty. The Company’s office and warehouse leases were classified as operating leases. The leases generally do not contain options to extend at the time of expiration. Lease expense for lease payment is recognized on a straight-line basis over the lease terms.

 

The Company has elected the short-term lease exception; therefore operating leases’ ROU asset and liability do not include leases with a lease term of twelve months or less.

 

For operating leases that include rent escalation clauses, the Company recognized lease expense on a straight-line basis over the lease term from the date it takes possession of the leased property. The Company records the straight-line lease expense and any contingent rent, if applicable, in general and administrative expenses on the consolidated statements of income and comprehensive income.

 

Upon adoption of ASU 2016-02, “Leases” (Topic 842) on January 1, 2022 and during the year ended December 31, 2022, the Company recognized $407,446 of initial ROU assets and same amount of operating lease liability based on the present value of the future minimum rental payments of leases by using a weighted-average incremental borrowing rate of 5.5%. As of December 31, 2022, the weighted-average lease term is 4.7 years for the remaining leases. The Company’s lease agreements do not contain any material residual value guarantees or material restrictive covenants. The Company’s lease liabilities under the remaining operating leases as of December 31, 2022 for the next five years is as follows:

 

Twelve months ending December 31,   Operating lease payment
     
2023  $118,311 
2024   118,141 
2025   41,584 
2026   35,543 
2027 and thereafter   36,609 
Total undiscounted lease payments   353,270 
Less imputed interest   (32,562)
Total lease liabilities  $320,708 

  

Rent expense for years ended December 31, 2022 and 2021 was $292,215 and $267,900, respectively.

 

F-56 

 

 

Note 16 – Commitments and contingencies

 

Legal contingencies

 

From time to time, the Company is party to certain legal proceedings, as well as certain asserted and un-asserted claims. Amounts accrued, as well as the total amount of reasonably possible losses with respect to such matters, individually and in the aggregate, are not deemed to be material to the consolidated financial statements.

  

Note 17 – Enterprise wide disclosure

 

The Company follows FASB ASC 280, Segment Reporting, which requires companies to disclose segment data based on how management makes decision about allocating resources to each segment and evaluating their performances. The Company’s chief operating decision-makers (i.e., the Company’s chief executive officer and his direct reports, including the Company’s chief financial officer) review financial information presented on a consolidated basis, accompanied by disaggregated information about revenues, cost of revenues, and gross profit by business lines (sewage treatment systems and sewage treatment services) for purposes of allocating resources and evaluating financial performance. There are no segment managers who are held accountable for operations, operating results and plans for levels or components below the consolidated unit level. In addition, all of the Company’s long-lived assets are located in the PRC and all of the Company’s revenues are derived solely from the PRC, accordingly, no geographical information is presented. Based on qualitative and quantitative criteria established by FASB ASC 280, the Company considers itself to be operating within one reportable segment.

 

Disaggregated information of revenues, cost of revenues and gross profit by business lines are as follows:

 

   For the years ended
   December 31, 2022  December 31, 2021
       
Sewage treatment systems  $26,552,481   $20,272,996 
Sewage treatment services and others   2,296,881    3,283,824 
Total revenues  $28,849,362   $23,556,820 

 

   For the years ended
   December 31, 2022  December 31, 2021
       
Sewage treatment systems  $17,170,669   $12,816,882 
Sewage treatment services and others   1,425,538    2,245,608 
Total cost of revenues  $18,596,207   $15,062,490 

  

F-57 

 

  

   For the years ended
   December 31, 2022  December 31, 2021
       
Sewage treatment systems  $9,381,812   $7,456,114 
Sewage treatment services and others   871,343    1,038,216 
Total gross profit  $10,253,155   $8,494,330 

 

Note 18 – Subsequent events

 

In preparing these consolidated financial statements, the Company has evaluated events and transactions for potential recognition or disclosure through the date of this audit report. No other events require adjustment to or disclosure in the consolidated financial statements other than the following:

In January 2023, the Company withdrew approximately $0.7 million from Line of Credit 1. This withdrawn amount carries a 4.6% interest rate and is scheduled to mature in January 2024. In August 2023, the Company repaid approximately $0.4 million that it previously withdrew from Line of Credit 1 and made another withdrawal of approximately $0.4 million from Line of Credit 1, which bears an interest rate of 4.5% and is set to mature in July 2024.

In March 2023, the Company entered into a loan agreement with China Resource Bank, securing a loan amounting to $404,108 at an interest rate of 5.8% per annum. This loan is scheduled to mature in March 2024.

 

In June 2023, the Company secured a renewable line of credit (“Line of Credit 2”) worth approximately $0.6 million from Postal Savings Bank of China for a two-year term. This line of credit is guaranteed by Yunwu Li, the Chief Executive Officer and Chairman of the Board of Directors of the Company. Simultaneously, on the same date, the Company withdrew approximately $0.6 million from Line of Credit 2, which carries an interest rate of 5.7% and is set to mature in June 2024.

 

In August 2023, the Company repaid approximately $0.4 million from Line of Credit 1 and withdrew another approximately $0.4 million from Line of Credit 1, which bears an interest rate of 4.5% and is set to mature in July 2024.

 

In November 2023, the Company entered into a loan agreement with Bank of China to obtain a loan amounting to $431,034 at an interest rate of 3.9% per annum. This loan is scheduled to mature in November 2024.

 

Note 19 – Condensed financial information of the parent company

 

The Company performed a test on the restricted net assets of consolidated subsidiary in accordance with Securities and Exchange Commission Regulation S-X Rule 4-08(e)(3), “General Notes to Financial Statements” and concluded that it was applicable for the Company to disclose the financial statements for the parent company.

 

The subsidiary did not pay any dividends to the Company for the periods presented. For the purpose of presenting parent only financial information, the Company records its investment in its subsidiaries under the equity method of accounting. Such investment is presented on the separate condensed balance sheets of the Company as “Investment in subsidiaries” and the income (loss) of the subsidiaries is presented as “Equity income (loss) of subsidiaries”. Certain information and footnote disclosures generally included in financial statements prepared in accordance with U.S. GAAP have been condensed and omitted.

 

The Company does not have significant capital and other commitments, long-term obligations, or guarantees as of December 31, 2022 and 2021.

 

PARENT COMPANY BALANCE SHEETS

 

   December 31, 2022  December 31, 2021
       
ASSETS          
OTHER ASSETS          
Investment in subsidiaries  $25,003,739   $21,272,094 
Total assets  $25,003,739   $21,272,094 
           
LIABILITIES AND SHAREHOLDERS' EQUITY          
           
LIABILITIES  $   $ 
           
COMMITMENTS AND CONTINGENCIES          
           
SHAREHOLDERS' EQUITY          
Ordinary shares, $0.0025 par value, 20,000,000 shares authorized, and 9,200,000 shares outstanding as of December 31, 2022 and 2021   23,000    23,000 
Additional paid-in capital   7,453,265    7,453,265 
Statutory reserves   2,396,539    1,761,628 
Retained earnings   16,621,556    11,474,449 
Accumulated other comprehensive income   (1,490,621)   559,752 
Total shareholders' equity   25,003,739    21,272,094 
           
Total liabilities and shareholders' equity  $25,003,739   $21,272,094 

 

F-58 

 

 

PARENT COMPANY STATEMENTS OF INCOME AND COMPREHENSIVE INCOME

 

   For the Years Ended December 31,
   2022  2021
       
EQUITY INCOME OF SUBSIDIARIES  $5,782,018   $6,775,739 
           
NET INCOME   5,782,018    6,775,739 
FOREIGN CURRENCY TRANSLATION ADJUSTMENT   (2,050,374)   347,249 
COMPREHENSIVE INCOME  $3,731,644   $7,122,988 

  

PARENT COMPANY STATEMENTS OF CASH FLOWS

 

   For the Years Ended December 31,
   2022  2021
       
CASH FLOWS FROM OPERATING ACTIVITIES:          
Net income  $5,782,018   $6,775,739 
Adjustments to reconcile net income to cash used in operating activities:          
Equity income of subsidiaries   (5,782,018)   (6,775,739)
Net cash used in operating activities        
           
CHANGES IN CASH        
           
CASH, beginning of year        
           
CASH, end of year  $   $ 

  

F-59 

 

 

1,500,000 Ordinary Shares

 

 

 

CDT Environmental Technology Investment Holdings Limited

 

Ordinary Shares

 

PROSPECTUS

 

WESTPARK CAPITAL

 

 

img_loo 

 

April 17, 2024

 

Until and including May 12, 2024 (25 days after the date of this prospectus), all dealers that buy, sell or trade our ordinary shares, whether or not participating in this offering, may be required to deliver a prospectus. This delivery requirement is in addition to the obligation of dealers to deliver a prospectus when acting as underwriters and with respect to their unsold allotments or subscriptions.